429 Panaro Lane Haines City, FL 33844
For Sale MLS# TB8483360
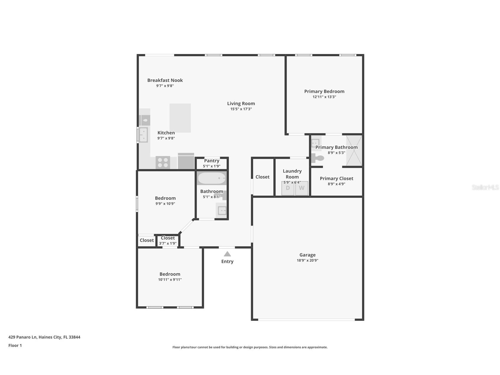
3 beds 2 baths 1,312 sq ft Single Family
Details for 429 Panaro Lane
MLS# TB8483360
Description for 429 Panaro Lane, Haines City, FL, 33844
MOTIVATED SELLER*** HOME BEING SOLD WITH WHAT FURNITURE IS THERE*** This bright and beautifully maintained 1,312-square-foot gem delivers the perfect blend of style, comfort, and effortless living—and it still looks and feels like new! Featuring three spacious bedrooms and two modern bathrooms, the open, airy layout welcomes you from the moment you step inside. Natural light fills the living spaces, creating a warm and inviting atmosphere you’ll love coming home to. The furniture may be included offering an added layer of convenience for a truly move-in-ready experience. Enjoy a lifestyle designed for relaxation and connection. Within walking distance, you’ll find a sparkling community pool, a charming park, and a dog park—perfect for weekend unwinding, outdoor fun, and everyday enjoyment. The peaceful setting and well-maintained neighborhood only add to this home’s appeal. You’ll find the sparkling community pool, a playful dog park, and a fun-filled playground. You’re only minutes from Highway 27, where endless shops, supermarkets, restaurants, and hardware stores make everyday errands simple. For Theme Park Adventures, you’re just a 27 miles from Disney World** and **12 miles from Legoland**—perfect for family outings! Whether you’re searching for your next home or a maybe your warm winter home, this property offers comfort, convenience, and a place where life simply feels easier.
Listing Information
Property Type: Residential, Single Family Residence
Status: Active
Bedrooms: 3
Bathrooms: 2
Lot Size: 0.13 Acres
Square Feet: 1,312 sq ft
Year Built: 2022
Garage: Yes
Stories: 1 Story
Construction: Block,Stucco
Subdivision: Magnolia Park Ph 1 & 2
Foundation: Slab
County: Polk
School Information
Elementary: Alta Vista Elem
Middle: Boone Middle
High: Haines City Senior High
Room Information
Main Floor
Kitchen:
Primary Bedroom:
Living Room:
Bathrooms
Full Baths: 2
Additonal Room Information
Laundry: Laundry Room
Interior Features
Appliances: Washer, Water Softener, Electric Water Heater, Dishwasher, Dryer, Microwave, Range, Refrigerator
Flooring: Carpet,Tile
Additional Interior Features: Kitchen/Family Room Combo, Living/Dining Room
Utilities
Water: Public
Sewer: Public Sewer
Other Utilities: Cable Connected,Electricity Connected,Sewer Connected,Water Connected
Cooling: Central Air
Heating: Central, Electric
Exterior / Lot Features
Attached Garage: Attached Garage
Garage Spaces: 2
Roof: Shingle
Pool: Association
Additional Exterior/Lot Features: Kennel, Covered, Rear Porch
Community Features
Community Features: Sidewalks
Association Amenities: Park, Pool, Playground
HOA Dues Include: Insurance, Pool(s), Reserve Fund, Maintenance Grounds
Homeowners Association: Yes
HOA Dues: $21 / Monthly
Driving Directions
Take Exit 55 from I-4 (the exit for US-27 toward Haines City/Clermont). Merge onto US-27 South and continue for approximately 8–9 miles. Continue on US-27 S until you reach the intersection with CR 544 (also known as E Baker St). Turn left (East) onto CR 544. Drive for about 1.5 miles until you reach the intersection with US-17 (Scenic Hwy). Turn right (South) onto US-17 S (Scenic Hwy). Drive south on US-17 for about 1 mile. Turn right into the Magnolia Park subdivision entrance (look for Tanaro Lane). Once inside the subdivision, take the first right onto Piave Street. Then, take the first left onto Panaro Lane. 429 Panaro Ln will be on your left.
Financial Considerations
Terms: Cash,Conventional,FHA,VA Loan
Tax/Property ID: 27-28-04-815029-000230
Tax Amount: 3101
Tax Year: 2025
A broker reciprocity listing courtesy: REDFIN CORPORATION
Based on information provided by Stellar MLS as distributed by the MLS GRID. Information from the Internet Data Exchange is provided exclusively for consumers’ personal, non-commercial use, and such information may not be used for any purpose other than to identify prospective properties consumers may be interested in purchasing. This data is deemed reliable but is not guaranteed to be accurate by Edina Realty, Inc., or by the MLS. Edina Realty, Inc., is not a multiple listing service (MLS), nor does it offer MLS access.
Copyright 2026 Stellar MLS as distributed by the MLS GRID. All Rights Reserved.
Payment Calculator
Interest rate and annual percentage rate (APR) are based on current market conditions, are for informational purposes only, are subject to change without notice and may be subject to pricing add-ons related to property type, loan amount, loan-to-value, credit score and other variables. Estimated closing costs used in the APR calculation are assumed to be paid by the borrower at closing. If the closing costs are financed, the loan, APR and payment amounts will be higher. If the down payment is less than 20%, mortgage insurance may be required and could increase the monthly payment and APR. Contact us for details. Additional loan programs may be available. Accuracy is not guaranteed, and all products may not be available in all borrower's geographical areas and are based on their individual situation. This is not a credit decision or a commitment to lend.
Sales History & Tax Summary for 429 Panaro Lane
Sales History
| Date | Price | |
|---|---|---|
| Currently not available. | ||
Tax Summary
| Tax Year | Estimated Market Value | Total Tax |
|---|---|---|
| Currently not available. | ||
Data powered by ATTOM Data Solutions. Copyright© 2026. Information deemed reliable but not guaranteed.
Schools
Schools nearby 429 Panaro Lane
| Schools in attendance boundaries | Grades | Distance | Rating |
|---|---|---|---|
| Loading... | |||
| Schools nearby | Grades | Distance | Rating |
|---|---|---|---|
| Loading... | |||
Data powered by ATTOM Data Solutions. Copyright© 2026. Information deemed reliable but not guaranteed.
The schools shown represent both the assigned schools and schools by distance based on local school and district attendance boundaries. Attendance boundaries change based on various factors and proximity does not guarantee enrollment eligibility. Please consult your real estate agent and/or the school district to confirm the schools this property is zoned to attend. Information is deemed reliable but not guaranteed.
SchoolDigger ® Rating
The SchoolDigger rating system is a 1-5 scale with 5 as the highest rating. SchoolDigger ranks schools based on test scores supplied by each state's Department of Education. They calculate an average standard score by normalizing and averaging each school's test scores across all tests and grades.
Coming soon properties will soon be on the market, but are not yet available for showings.