4300 14th Avenue N Saint Petersburg, FL 33713
For Sale MLS# TB8435061
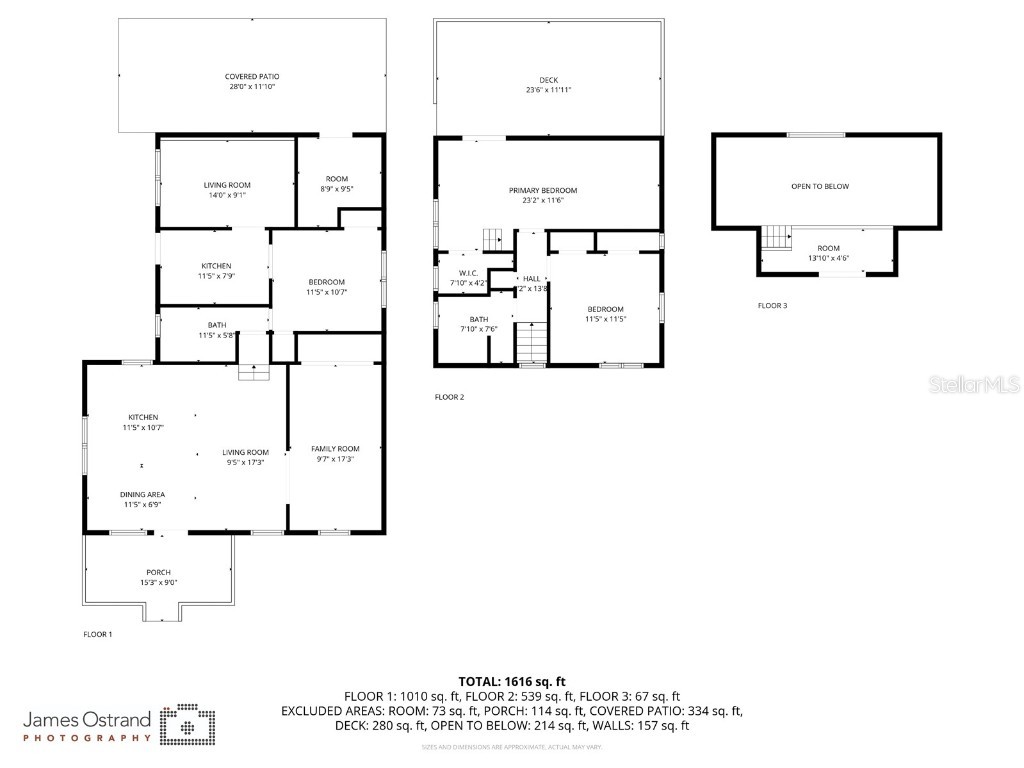
4 beds 2 baths 1,548 sq ft Single Family
Details for 4300 14th Avenue N
MLS# TB8435061
Description for 4300 14th Avenue N, Saint Petersburg, FL, 33713
Spacious and sunny, this versatile property offers both comfort and income potential! Located in a highly desirable neighborhood within X flood zone, no flood insurance required. The main home features 2 bedrooms, including a primary suite with soaring ceilings, loft space, and access to a private deck balcony. A generous bonus room downstairs provides flexibility for a third bedroom, family room, or office. Updates include newer windows for added efficiency. Adding incredible value, the property also includes a separate 2-bedroom apartment with its own private entrance, full kitchen, and bath—ideal for generating rental income. Enjoy a huge fenced backyard perfect for entertaining, gardening, or future expansion, along with a convenient downstairs enclosed storage area. Centrally located, this property is just minutes from Florida’s world-famous Gulf beaches, vibrant Downtown St. Pete, shopping, and dining.
Listing Information
Property Type: Residential, Single Family Residence
Status: Active
Bedrooms: 4
Bathrooms: 2
Lot Size: 0.15 Acres
Square Feet: 1,548 sq ft
Year Built: 1933
Stories: 3 Story
Construction: Wood Frame
Subdivision: El Dorado Hills Annex
Foundation: Other
County: Pinellas
Room Information
Main Floor
Living Room: 17x9
Kitchen: 10x11
Upper Floor
Porch: 11x23
Bedroom 2: 11x11
Loft: 4x13
Primary Bedroom: 11x23
Bathrooms
Full Baths: 2
Additonal Room Information
Laundry: Inside
Interior Features
Appliances: Microwave, Range, Refrigerator
Flooring: Tile,Wood
Additional Interior Features: Upper Level Primary, Ceiling Fan(s), Vaulted Ceiling(s), Other, Loft, Walk-In Closet(s), High Ceilings
Utilities
Water: Public
Sewer: Public Sewer
Other Utilities: Cable Available,Electricity Available
Cooling: Ceiling Fan(s), Wall/Window Unit(s)
Heating: Electric
Exterior / Lot Features
Roof: Shingle
Lot Dimensions: 51x127
Fencing: fenced
Additional Exterior/Lot Features: Storage, Balcony, Balcony
Community Features
Community Features: Street Lights
Driving Directions
If coming North from 9th Ave N, turn right on 43rd St N, home is on your left, on the corner of 43rd St N and 14th Ave N.
Financial Considerations
Terms: Cash,Conventional
Tax/Property ID: 15-31-16-25506-012-0150
Tax Amount: 4636.65
Tax Year: 2024
A broker reciprocity listing courtesy: COLDWELL BANKER REALTY
Based on information provided by Stellar MLS as distributed by the MLS GRID. Information from the Internet Data Exchange is provided exclusively for consumers’ personal, non-commercial use, and such information may not be used for any purpose other than to identify prospective properties consumers may be interested in purchasing. This data is deemed reliable but is not guaranteed to be accurate by Edina Realty, Inc., or by the MLS. Edina Realty, Inc., is not a multiple listing service (MLS), nor does it offer MLS access.
Copyright 2026 Stellar MLS as distributed by the MLS GRID. All Rights Reserved.
Payment Calculator
Interest rate and annual percentage rate (APR) are based on current market conditions, are for informational purposes only, are subject to change without notice and may be subject to pricing add-ons related to property type, loan amount, loan-to-value, credit score and other variables. Estimated closing costs used in the APR calculation are assumed to be paid by the borrower at closing. If the closing costs are financed, the loan, APR and payment amounts will be higher. If the down payment is less than 20%, mortgage insurance may be required and could increase the monthly payment and APR. Contact us for details. Additional loan programs may be available. Accuracy is not guaranteed, and all products may not be available in all borrower's geographical areas and are based on their individual situation. This is not a credit decision or a commitment to lend.
Sales History & Tax Summary for 4300 14th Avenue N
Sales History
| Date | Price | |
|---|---|---|
| Currently not available. | ||
Tax Summary
| Tax Year | Estimated Market Value | Total Tax |
|---|---|---|
| Currently not available. | ||
Data powered by ATTOM Data Solutions. Copyright© 2026. Information deemed reliable but not guaranteed.
Schools
Schools nearby 4300 14th Avenue N
| Schools in attendance boundaries | Grades | Distance | Rating |
|---|---|---|---|
| Loading... | |||
| Schools nearby | Grades | Distance | Rating |
|---|---|---|---|
| Loading... | |||
Data powered by ATTOM Data Solutions. Copyright© 2026. Information deemed reliable but not guaranteed.
The schools shown represent both the assigned schools and schools by distance based on local school and district attendance boundaries. Attendance boundaries change based on various factors and proximity does not guarantee enrollment eligibility. Please consult your real estate agent and/or the school district to confirm the schools this property is zoned to attend. Information is deemed reliable but not guaranteed.
SchoolDigger ® Rating
The SchoolDigger rating system is a 1-5 scale with 5 as the highest rating. SchoolDigger ranks schools based on test scores supplied by each state's Department of Education. They calculate an average standard score by normalizing and averaging each school's test scores across all tests and grades.
Coming soon properties will soon be on the market, but are not yet available for showings.