$430,000
4301 Marine Parkway New Port Richey, FL 34652
For Sale MLS# W7880624
3 beds 2 baths 1,754 sq ft Single Family
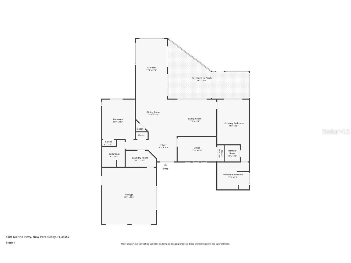
Details for 4301 Marine Parkway
MLS# W7880624
Description for 4301 Marine Parkway, New Port Richey, FL, 34652
Welcome to this stunning fully remodeled 3-bedroom, 2-bathroom home with a 2-car garage, perfectly situated in the desirable Gulf Harbors community. From the moment you arrive, you’ll appreciate the attention to detail and modern upgrades that make this home truly move-in ready. Step inside to find an open-concept floor plan filled with natural light, featuring luxury vinyl plank flooring, fresh paint, and elegant finishes throughout. The brand-new kitchen boasts custom cabinetry, quartz countertops, stainless steel appliances, and a spacious breakfast bar—perfect for entertaining or everyday living. Both bathrooms have been beautifully updated with contemporary tile work, sleek vanities, and stylish fixtures. The primary suite offers ample closet space and a private en-suite bath for your comfort. The exterior features fresh landscaping and a large screened patio—ideal for relaxing and enjoying Florida’s coastal lifestyle. As a member of this community you have access to the private Gulf Harbors Beach Club, boat slip, pool, and private beach. Shopping, and dining just minuets away. This home combines modern luxury with the best of coastal living.
Listing Information
Property Type: Residential, Single Family Residence
Status: Active
Bedrooms: 3
Bathrooms: 2
Lot Size: 0.34 Acres
Square Feet: 1,754 sq ft
Year Built: 1980
Garage: Yes
Stories: 1 Story
Construction: Block
Subdivision: Gulf Harbors Woodlands
Foundation: Slab
County: Pasco
Room Information
Main Floor
Living Room: 10x10
Kitchen: 8x8
Primary Bedroom: 8x10
Bathrooms
Full Baths: 2
Additonal Room Information
Laundry: Laundry Room
Interior Features
Appliances: Dishwasher, Microwave, Range, Refrigerator, Electric Water Heater
Flooring: Luxury Vinyl
Additional Interior Features: Vaulted Ceiling(s)
Utilities
Sewer: Public Sewer
Other Utilities: Cable Connected,Electricity Connected,Municipal Utilities,Sewer Connected,Water Connected,Water Not Available
Cooling: Central Air
Heating: Central
Exterior / Lot Features
Attached Garage: Attached Garage
Garage Spaces: 2
Roof: Shingle
Driving Directions
From US 19 and Marine Parkway - turn west onto Marine Parkway - home will be on the right side (north side of Marine Pkwy)
Financial Considerations
Terms: Cash,Conventional,FHA,VA Loan
Tax/Property ID: 16-26-07-0380-00000-2750
Tax Amount: 1919.39
Tax Year: 2024
A broker reciprocity listing courtesy: LPT REALTY, LLC
Based on information provided by Stellar MLS as distributed by the MLS GRID. Information from the Internet Data Exchange is provided exclusively for consumers’ personal, non-commercial use, and such information may not be used for any purpose other than to identify prospective properties consumers may be interested in purchasing. This data is deemed reliable but is not guaranteed to be accurate by Edina Realty, Inc., or by the MLS. Edina Realty, Inc., is not a multiple listing service (MLS), nor does it offer MLS access.
Copyright 2025 Stellar MLS as distributed by the MLS GRID. All Rights Reserved.
Payment Calculator
Interest rate and annual percentage rate (APR) are based on current market conditions, are for informational purposes only, are subject to change without notice and may be subject to pricing add-ons related to property type, loan amount, loan-to-value, credit score and other variables. Estimated closing costs used in the APR calculation are assumed to be paid by the borrower at closing. If the closing costs are financed, the loan, APR and payment amounts will be higher. If the down payment is less than 20%, mortgage insurance may be required and could increase the monthly payment and APR. Contact us for details. Additional loan programs may be available. Accuracy is not guaranteed, and all products may not be available in all borrower's geographical areas and are based on their individual situation. This is not a credit decision or a commitment to lend.
Sales History & Tax Summary for 4301 Marine Parkway
Sales History
| Date | Price | Change |
|---|---|---|
| Currently not available. | ||
Tax Summary
| Tax Year | Estimated Market Value | Total Tax |
|---|---|---|
| Currently not available. | ||
Data powered by ATTOM Data Solutions. Copyright© 2025. Information deemed reliable but not guaranteed.
Schools
Schools nearby 4301 Marine Parkway
| Schools in attendance boundaries | Grades | Distance | Rating |
|---|---|---|---|
| Loading... | |||
| Schools nearby | Grades | Distance | Rating |
|---|---|---|---|
| Loading... | |||
Data powered by ATTOM Data Solutions. Copyright© 2025. Information deemed reliable but not guaranteed.
The schools shown represent both the assigned schools and schools by distance based on local school and district attendance boundaries. Attendance boundaries change based on various factors and proximity does not guarantee enrollment eligibility. Please consult your real estate agent and/or the school district to confirm the schools this property is zoned to attend. Information is deemed reliable but not guaranteed.
SchoolDigger ® Rating
The SchoolDigger rating system is a 1-5 scale with 5 as the highest rating. SchoolDigger ranks schools based on test scores supplied by each state's Department of Education. They calculate an average standard score by normalizing and averaging each school's test scores across all tests and grades.
Coming soon properties will soon be on the market, but are not yet available for showings.