$195,000
431 Oak Ridge Road W Lakeland, FL 33801
For Sale MLS# L4957523
2 beds 2 baths 1,377 sq ft Single Family
Details for 431 Oak Ridge Road W
MLS# L4957523
Description for 431 Oak Ridge Road W, Lakeland, FL, 33801
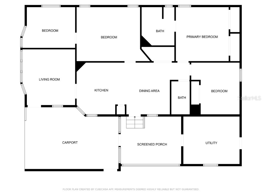
Discover this charming home featuring 2 true bedrooms plus 2 additional versatile rooms that can easily serve as extra bedrooms, an office, playroom, or hobby space. The property sits on a spacious land lot, offering plenty of room for outdoor living, gardening, or future expansion. Best of all-NO HOA, giving you the freedom to use your property your way. With its flexible layout and generous outdoor space, this home is perfect for anyone seeking comfort, convenience, and privacy. In a quiet community with easy access to shopping, dining, and major roadways. The roof was replaced in 2018 and the AC was replaced in 2022. Arriving at the home you’ll find a single car carport and a spacious screened porch just beyond. Inside you’ll find a cozy living room with plenty of natural light. In the kitchen you’ll find stainless steel appliances, wood cabinets and a kitchen pantry. Along with a separate dining area, the perfect spot for enjoying a meal together. The primary bedroom provides ample space and features a double closet. The en-suite bathroom offers a dual sink vanity with storage and a tub/shower combo. The remaining bedrooms are roomy and share the main bathroom with a single sink vanity and a stand up shower. The home also features a large utility room with washer/dryer hook-ups and plenty of storage. Outside, you’ll find your fully PVC fenced in backyard along with a 13 X 17 patio, the perfect spot for BBQ’s with friends! There is a storage shed outside for additional storage. And even a swing set that conveys with the home! The seller has converted the large bonus room and is currently using it as 2 additional bedrooms. This home has so much to offer, schedule your private showing today!
Listing Information
Property Type: Residential, Manufactured Home
Status: Active
Bedrooms: 2
Bathrooms: 2
Lot Size: 0.15 Acres
Square Feet: 1,377 sq ft
Year Built: 1999
Stories: 1 Story
Construction: Vinyl Siding,Wood Frame
Subdivision: Village Unit 04 Add Lakeland
Foundation: Crawlspace
County: Polk
School Information
Elementary: Clarence Boswell Elem
Middle: Crystal Lake Middle/Jun
High: Tenoroc Senior
Room Information
Main Floor
Porch: 11x14
Bathroom 2: 7x4
Primary Bathroom: 9x8
Bedroom 2: 12x11
Primary Bedroom: 13x13
Dining Room: 12x15
Living Room: 13x13
Kitchen: 12x11
Bathrooms
Full Baths: 2
Additonal Room Information
Laundry: Outside, Laundry Room
Interior Features
Appliances: Range, Refrigerator, Dishwasher, Microwave
Flooring: Tile,Vinyl
Basement: Crawl Space
Additional Interior Features: Eat-In Kitchen, Ceiling Fan(s), Main Level Primary
Utilities
Water: Public
Sewer: Public Sewer
Other Utilities: Cable Available,Electricity Available,Phone Available
Cooling: Ceiling Fan(s), Central Air
Heating: Central
Exterior / Lot Features
Roof: Shingle
Fencing: Vinyl
Additional Exterior/Lot Features: Lighting, Rain Gutters, Storage, Patio, Porch, Screened, Landscaped
Out Buildings: Shed(s)
Driving Directions
Traveling north on Reynolds Rd, turn right onto Barrington Avenue. Follow to Oak Ridge W and turn left. Home will be on your left.
Financial Considerations
Terms: Cash,Conventional,FHA,VA Loan
Tax/Property ID: 24-28-23-242232-000200
Tax Amount: 1423
Tax Year: 2024
A broker reciprocity listing courtesy: KELLER WILLIAMS REALTY SMART
Based on information provided by Stellar MLS as distributed by the MLS GRID. Information from the Internet Data Exchange is provided exclusively for consumers’ personal, non-commercial use, and such information may not be used for any purpose other than to identify prospective properties consumers may be interested in purchasing. This data is deemed reliable but is not guaranteed to be accurate by Edina Realty, Inc., or by the MLS. Edina Realty, Inc., is not a multiple listing service (MLS), nor does it offer MLS access.
Copyright 2025 Stellar MLS as distributed by the MLS GRID. All Rights Reserved.
Payment Calculator
Interest rate and annual percentage rate (APR) are based on current market conditions, are for informational purposes only, are subject to change without notice and may be subject to pricing add-ons related to property type, loan amount, loan-to-value, credit score and other variables. Estimated closing costs used in the APR calculation are assumed to be paid by the borrower at closing. If the closing costs are financed, the loan, APR and payment amounts will be higher. If the down payment is less than 20%, mortgage insurance may be required and could increase the monthly payment and APR. Contact us for details. Additional loan programs may be available. Accuracy is not guaranteed, and all products may not be available in all borrower's geographical areas and are based on their individual situation. This is not a credit decision or a commitment to lend.
Sales History & Tax Summary for 431 Oak Ridge Road W
Sales History
| Date | Price | Change |
|---|---|---|
| Currently not available. | ||
Tax Summary
| Tax Year | Estimated Market Value | Total Tax |
|---|---|---|
| Currently not available. | ||
Data powered by ATTOM Data Solutions. Copyright© 2025. Information deemed reliable but not guaranteed.
Schools
Schools nearby 431 Oak Ridge Road W
| Schools in attendance boundaries | Grades | Distance | Rating |
|---|---|---|---|
| Loading... | |||
| Schools nearby | Grades | Distance | Rating |
|---|---|---|---|
| Loading... | |||
Data powered by ATTOM Data Solutions. Copyright© 2025. Information deemed reliable but not guaranteed.
The schools shown represent both the assigned schools and schools by distance based on local school and district attendance boundaries. Attendance boundaries change based on various factors and proximity does not guarantee enrollment eligibility. Please consult your real estate agent and/or the school district to confirm the schools this property is zoned to attend. Information is deemed reliable but not guaranteed.
SchoolDigger ® Rating
The SchoolDigger rating system is a 1-5 scale with 5 as the highest rating. SchoolDigger ranks schools based on test scores supplied by each state's Department of Education. They calculate an average standard score by normalizing and averaging each school's test scores across all tests and grades.
Coming soon properties will soon be on the market, but are not yet available for showings.