4310 Commercial Street Port Charlotte, FL 33953
For Sale MLS# D6143648
2 beds 1 baths 968 sq ft Single Family
Details for 4310 Commercial Street
MLS# D6143648
Description for 4310 Commercial Street, Port Charlotte, FL, 33953
This property features a 2-bedroom, 1-bathroom single-family home with approximately 968 sq ft of living space on a 5,600 sq ft lot. Built in 1950, the home rests on piers, boasts a metal roof, and is constructed with wood and metal exterior materials. The Flood Insurance Policy is transferable saving you money. Conveniently situated in a growing Port Charlotte neighborhood, the home is just a short drive from major roads, shopping, dining, schools, parks, and boating access—offering both comfort and accessibility. Whether you’re looking for a cozy residence or an investment starter, this home offers great potential in a well-located community. Schedule a showing today and explore the possibilities!
Listing Information
Property Type: Residential, Single Family Residence
Status: Active
Bedrooms: 2
Bathrooms: 1
Lot Size: 0.13 Acres
Square Feet: 968 sq ft
Year Built: 1950
Stories: 1 Story
Construction: Wood Siding,Wood Frame
Subdivision: El Jobean Ward 01 Resub Resv
Foundation: Pillar/Post/Pier
County: Charlotte
School Information
Elementary: Liberty Elementary
Middle: Murdock Middle
High: Charlotte High
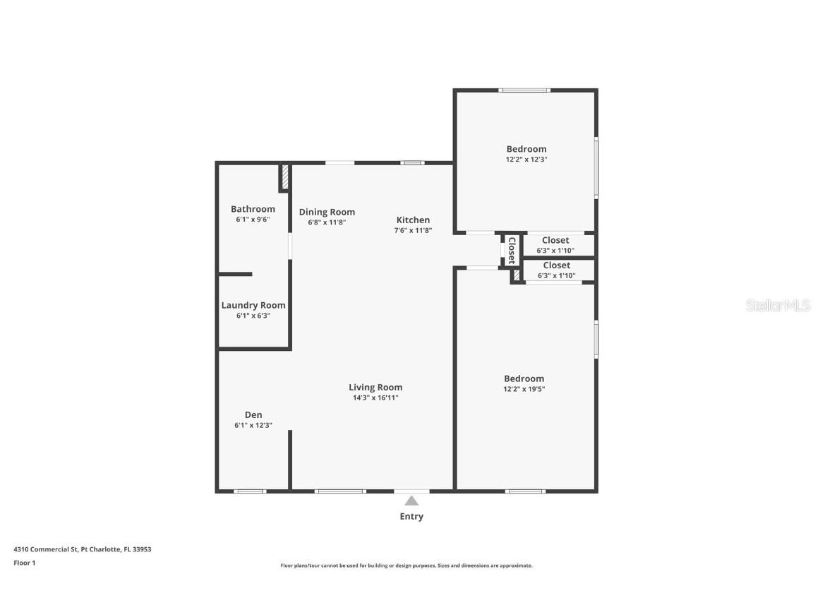
Room Information
Main Floor
Laundry: 7x6
Den: 13x6
Bedroom 2: 13x13
Bathroom 1: 10x6
Primary Bedroom: 20x13
Kitchen: 12x8
Dining Room: 12x7
Living Room: 17x15
Bathrooms
Full Baths: 1
Additonal Room Information
Laundry: Inside, Washer Hookup, Laundry Room, Electric Dryer Hookup
Interior Features
Flooring: Luxury Vinyl
Additional Interior Features: Ceiling Fan(s)
Utilities
Water: Public
Sewer: Septic Tank
Other Utilities: Cable Available,Electricity Connected,High Speed Internet Available,Phone Available,Water Connected
Cooling: Ceiling Fan(s), Ductless
Heating: Central, Electric
Exterior / Lot Features
Roof: Metal
Lot Dimensions: 50x100
Additional Exterior/Lot Features: Rain Gutters
Driving Directions
From Tamiami Trail (US-41), head west on Chamberlain Blvd for about 1.5 miles, then turn right onto Flamingo Blvd. Continue straight and turn left onto Commercial St. Follow the road to 4310 Commercial St, Port Charlotte, FL 33953.
Financial Considerations
Terms: Cash,Conventional,FHA,VA Loan
Tax/Property ID: 402128404002
Tax Amount: 737
Tax Year: 2024
A broker reciprocity listing courtesy: CENTURY 21 SUNBELT REALTY
Based on information provided by Stellar MLS as distributed by the MLS GRID. Information from the Internet Data Exchange is provided exclusively for consumers’ personal, non-commercial use, and such information may not be used for any purpose other than to identify prospective properties consumers may be interested in purchasing. This data is deemed reliable but is not guaranteed to be accurate by Edina Realty, Inc., or by the MLS. Edina Realty, Inc., is not a multiple listing service (MLS), nor does it offer MLS access.
Copyright 2025 Stellar MLS as distributed by the MLS GRID. All Rights Reserved.
Payment Calculator
Interest rate and annual percentage rate (APR) are based on current market conditions, are for informational purposes only, are subject to change without notice and may be subject to pricing add-ons related to property type, loan amount, loan-to-value, credit score and other variables. Estimated closing costs used in the APR calculation are assumed to be paid by the borrower at closing. If the closing costs are financed, the loan, APR and payment amounts will be higher. If the down payment is less than 20%, mortgage insurance may be required and could increase the monthly payment and APR. Contact us for details. Additional loan programs may be available. Accuracy is not guaranteed, and all products may not be available in all borrower's geographical areas and are based on their individual situation. This is not a credit decision or a commitment to lend.
Sales History & Tax Summary for 4310 Commercial Street
Sales History
| Date | Price | Change |
|---|---|---|
| Currently not available. | ||
Tax Summary
| Tax Year | Estimated Market Value | Total Tax |
|---|---|---|
| Currently not available. | ||
Data powered by ATTOM Data Solutions. Copyright© 2025. Information deemed reliable but not guaranteed.
Schools
Schools nearby 4310 Commercial Street
| Schools in attendance boundaries | Grades | Distance | Rating |
|---|---|---|---|
| Loading... | |||
| Schools nearby | Grades | Distance | Rating |
|---|---|---|---|
| Loading... | |||
Data powered by ATTOM Data Solutions. Copyright© 2025. Information deemed reliable but not guaranteed.
The schools shown represent both the assigned schools and schools by distance based on local school and district attendance boundaries. Attendance boundaries change based on various factors and proximity does not guarantee enrollment eligibility. Please consult your real estate agent and/or the school district to confirm the schools this property is zoned to attend. Information is deemed reliable but not guaranteed.
SchoolDigger ® Rating
The SchoolDigger rating system is a 1-5 scale with 5 as the highest rating. SchoolDigger ranks schools based on test scores supplied by each state's Department of Education. They calculate an average standard score by normalizing and averaging each school's test scores across all tests and grades.
Coming soon properties will soon be on the market, but are not yet available for showings.