4334 N Grasstree Drive Beverly Hills, FL 34465
For Sale MLS# OM692864
4 beds 3 baths 2,100 sq ft Single Family
Details for 4334 N Grasstree Drive
MLS# OM692864
Description for 4334 N Grasstree Drive, Beverly Hills, FL, 34465
One or more photo(s) has been virtually staged. HUGE price adjustment on this brand new and move-in ready, this 4-bedroom, 3-bathroom pool home offers 2,100 sq. ft. of modern living on a private 1.12-acre lot in sought-after Pine Ridge Estates. With trees on 2 sides of the backyard, there's plenty of privacy. Backed by a 10-year third-party structural warranty, this home combines quality, comfort, and style. The open-concept layout features granite countertops, white cabinetry, stainless steel appliances, and spacious living and dining areas. The owner’s suite overlooks the screened saltwater pool with a waterfall feature and includes a spa-inspired bath with soaking tub, tiled walk-in shower, dual vanities, dual walk-in closets, and a private water closet. Outdoor features include professional landscaping, full irrigation system, and wooded privacy. Located in a deed-restricted community with equestrian trails, walking paths, and large wooded lots, Pine Ridge offers space, nature, and convenience—just minutes from shopping, dining, golf, and medical care. Schedule your private tour today.
Listing Information
Property Type: Residential, Single Family Residence
Status: Active
Bedrooms: 4
Bathrooms: 3
Lot Size: 1.12 Acres
Square Feet: 2,100 sq ft
Year Built: 2024
Garage: Yes
Stories: 1 Story
Construction: Block,Concrete,Stucco
Construction Display: New Construction
Subdivision: Pine Ridge Unit 03
Foundation: Slab
County: Citrus
Construction Status: New Construction
School Information
Elementary: Central Ridge Elementary School
Middle: Citrus Springs Middle School
High: Lecanto High School
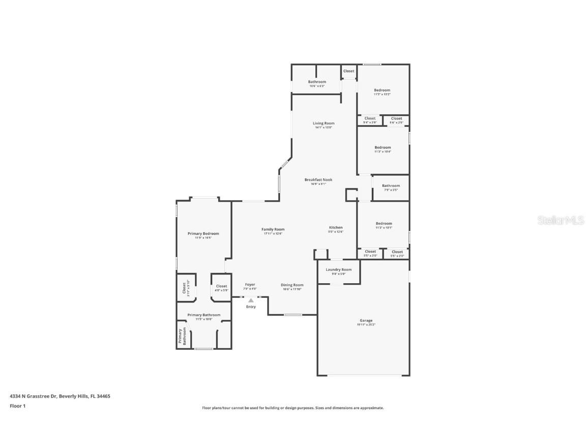
Room Information
Main Floor
Living Room: 21x14
Family Room: 15x18
Kitchen: 15x9
Primary Bedroom: 16x12
Bathrooms
Full Baths: 3
Additonal Room Information
Laundry: Laundry Room, Inside
Interior Features
Appliances: Electric Water Heater, Range, Refrigerator, Dishwasher, Microwave
Flooring: Carpet,Vinyl
Additional Interior Features: Vaulted Ceiling(s), Split Bedrooms, Ceiling Fan(s), High Ceilings, Walk-In Closet(s), Open Floorplan, Solid Surface Counters, Stone Counters, Main Level Primary
Utilities
Water: Public
Sewer: Septic Tank
Other Utilities: Electricity Connected,Water Connected
Cooling: Ceiling Fan(s), Central Air
Heating: Central
Exterior / Lot Features
Attached Garage: Attached Garage
Garage Spaces: 2
Roof: Shingle
Pool: Salt Water, Screen Enclosure, In Ground, Gunite, Pool Alarm
Lot View: Trees/Woods
Lot Dimensions: 195x250
Additional Exterior/Lot Features: Rain Gutters, Sprinkler/Irrigation, French Patio Doors, Lighting, Covered, Porch, Rear Porch, Screened, Flat, Level, Landscaped, Oversized Lot
Community Features
Homeowners Association: Yes
HOA Dues: $95 / Annually
Driving Directions
To reach 4334 N Grasstree Dr, Beverly Hills, FL 34465, from State Road 491 (Lecanto Highway), follow these steps: Turn onto Mustang Blvd: Head west on Mustang Blvd from SR 491. Right onto Mesa Verde Dr: After approximately 1.5 miles, turn right onto Mesa Verde Dr. Continue to N Grasstree Dr: Proceed on Mesa Verde Dr until you reach the intersection with N Grasstree Dr. Arrive at 4334 N Grasstree Dr: The property will be on your left.
Financial Considerations
Terms: Cash,Conventional,FHA,USDA Loan,VA Loan
Tax/Property ID: 18E-17S-32-0030-03320-0070
Tax Amount: 624.27
Tax Year: 2024
A broker reciprocity listing courtesy: LANGAN REALTY CO
Based on information provided by Stellar MLS as distributed by the MLS GRID. Information from the Internet Data Exchange is provided exclusively for consumers’ personal, non-commercial use, and such information may not be used for any purpose other than to identify prospective properties consumers may be interested in purchasing. This data is deemed reliable but is not guaranteed to be accurate by Edina Realty, Inc., or by the MLS. Edina Realty, Inc., is not a multiple listing service (MLS), nor does it offer MLS access.
Copyright 2025 Stellar MLS as distributed by the MLS GRID. All Rights Reserved.
Payment Calculator
Interest rate and annual percentage rate (APR) are based on current market conditions, are for informational purposes only, are subject to change without notice and may be subject to pricing add-ons related to property type, loan amount, loan-to-value, credit score and other variables. Estimated closing costs used in the APR calculation are assumed to be paid by the borrower at closing. If the closing costs are financed, the loan, APR and payment amounts will be higher. If the down payment is less than 20%, mortgage insurance may be required and could increase the monthly payment and APR. Contact us for details. Additional loan programs may be available. Accuracy is not guaranteed, and all products may not be available in all borrower's geographical areas and are based on their individual situation. This is not a credit decision or a commitment to lend.
Sales History & Tax Summary for 4334 N Grasstree Drive
Sales History
| Date | Price | Change |
|---|---|---|
| Currently not available. | ||
Tax Summary
| Tax Year | Estimated Market Value | Total Tax |
|---|---|---|
| Currently not available. | ||
Data powered by ATTOM Data Solutions. Copyright© 2025. Information deemed reliable but not guaranteed.
Schools
Schools nearby 4334 N Grasstree Drive
| Schools in attendance boundaries | Grades | Distance | Rating |
|---|---|---|---|
| Loading... | |||
| Schools nearby | Grades | Distance | Rating |
|---|---|---|---|
| Loading... | |||
Data powered by ATTOM Data Solutions. Copyright© 2025. Information deemed reliable but not guaranteed.
The schools shown represent both the assigned schools and schools by distance based on local school and district attendance boundaries. Attendance boundaries change based on various factors and proximity does not guarantee enrollment eligibility. Please consult your real estate agent and/or the school district to confirm the schools this property is zoned to attend. Information is deemed reliable but not guaranteed.
SchoolDigger ® Rating
The SchoolDigger rating system is a 1-5 scale with 5 as the highest rating. SchoolDigger ranks schools based on test scores supplied by each state's Department of Education. They calculate an average standard score by normalizing and averaging each school's test scores across all tests and grades.
Coming soon properties will soon be on the market, but are not yet available for showings.