4348 Harborpointe Drive Port Richey, FL 34668 - PITHLACHASCOTEE RIVER
For Sale MLS# W7875577
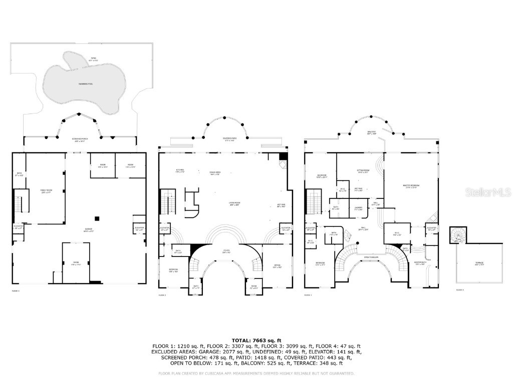
4 beds 6 baths 6,676 sq ft Single Family
Details for 4348 Harborpointe Drive
MLS# W7875577
Description for 4348 Harborpointe Drive, Port Richey, FL, 34668 - PITHLACHASCOTEE RIVER
If Heaven on Earth had an address, this would probably be it. Four bedrooms. Five and a half bathrooms. Two elevators. Six balconies. A rooftop terrace. A six-car garage. A chef’s kitchen. A sunken bar in the living room. Two laundry areas. Storage throughout. And a master suite so expansive, it’s probably larger than most New York City apartments. Set inside Harborpointe—a 24-hour manned, double-gated peninsula community on the Gulf of America—this estate sits where the Cotee River meets the Gulf, offering boat activity by day and a softly lit marina skyline by night. The views are constant. The sunsets? Absolutely unforgettable. Inside, bold elegance meets elevated living. The private speakeasy, with its moody ambiance and signature Gucci wallpaper, is a true hidden gem—ideal for intimate gatherings, cocktail hours, or simply enjoying a space that feels unlike anything else. Two private elevators serve all three floors of the home, while a handcrafted wooden staircase leads to the rooftop terrace, where panoramic views and golden-hour skies become part of your daily rhythm. There are four large bedrooms, each with its own full bath, plus an additional full bathroom and a half bath. Three of the ensuite bathrooms have been tastefully upgraded. But the primary suite stands apart. Outfitted with gorgeous large-format tile flooring, it offers water views so immersive, waking up may feel like you’re aboard a luxury cruise ship. A fireplace enhances the sleeping area, while just beyond—within the suite itself—is a private lounge featuring a wet bar, sink, fridge, and its own waterfront views—a world within a world. Spaces like this exist in only a handful of homes, anywhere. The estate also features six balconies, including two oversized outdoor living spaces—one on the main floor, the other above. The chef’s kitchen combines elegance with functionality, while the sunken bar in the living room adds an effortlessly cool layer to your entertaining experience. Upstairs, a full laundry room offers convenience and space, with a second, thoughtfully designed laundry area on the main level. Outside, the resort-style pool and spa provide a stunning backdrop for both relaxation and entertaining. The rare six-car garage is a true standout—whether for collectors, enthusiasts, or anyone who simply expects more. Additional upgrades include a new Culligan water softener, a recently replaced A/C unit, and an updated tankless gas water heater—one of two in the home—reflecting the care and investment poured into little details. Your deeded boat slip is just steps away. Home received no water or damage during Hurricanes Helene or Milton due to how high this property sits above sea level.
Listing Information
Property Type: Residential, Single Family Residence
Status: Active
Bedrooms: 4
Bathrooms: 6
Lot Size: 0.36 Acres
Square Feet: 6,676 sq ft
Year Built: 2002
Garage: Yes
Stories: 2 Story
Construction: Block,Stucco,Wood Frame
Subdivision: Harborpointe
Foundation: Slab
County: Pasco
Room Information
Main Floor
Bonus Room:
Upper Floor
Primary Bathroom:
Primary Bedroom:
Living Room:
Dining Room:
Kitchen:
Media Room:
Living Room:
Office:
Bedroom 4:
Bedroom 3:
Bedroom 2:
Bathrooms
Full Baths: 5
1/2 Baths: 1
Additonal Room Information
Laundry: Inside, Common Area, Laundry Room
Interior Features
Appliances: Wine Refrigerator, Bar Fridge, Range Hood, Cooktop, Microwave, Range, Refrigerator
Flooring: Ceramic Tile,Tile,Wood
Doors/Windows: Window Treatments
Fireplaces: Gas, Decorative
Additional Interior Features: Wet Bar, Eat-In Kitchen, Split Bedrooms, Window Treatments, Ceiling Fan(s), Elevator, Upper Level Primary, Crown Molding, Wood Cabinets, Solid Surface Counters, Stone Counters, Kitchen/Family Room Combo, Tray Ceiling(s), Built-in Features, Living/Dining Room, Coffered Ceiling(s)
Utilities
Water: Public
Sewer: Public Sewer
Other Utilities: Cable Available,Electricity Available,Electricity Connected,Natural Gas Available,Sewer Available,Sewer Connected,Water Available,Water Connected
Cooling: Ceiling Fan(s), Central Air
Heating: Electric, Central
Exterior / Lot Features
Attached Garage: Attached Garage
Garage Spaces: 6
Roof: Tile
Pool: Gunite, Community, In Ground, Association
Lot View: Lagoon,Marina,Ocean,River,Water
Additional Exterior/Lot Features: Balcony, Balcony
Waterfront Details
Standard Water Body: PITHLACHASCOTEE RIVER
Water Front Features: Ocean Access, River Access, Gulf Access
Community Features
Community Features: Dock, Boat Slip, Pool, River, Tennis Court(s), Waterfront, Boat Facilities, Gated, Park, Fishing, Fitness, Golf Carts OK, Water Access, Community Mailbox
Security Features: Gated Community, Gated with Guard
Association Amenities: Storage, Gated, Spa/Hot Tub, Pickleball, Pool, Cable TV, Basketball Court, Fitness Center, Clubhouse, Tennis Court(s)
Homeowners Association: Yes
HOA Dues: $960 / Quarterly
Driving Directions
US 19 North to West on Bay Blvd to Guard Gate
Financial Considerations
Terms: Cash,Conventional
Tax/Property ID: 30-25-16-0040-00000-0100
Tax Amount: 42294.45
Tax Year: 2024
A broker reciprocity listing courtesy: SNAP REALTY LLC
Based on information provided by Stellar MLS as distributed by the MLS GRID. Information from the Internet Data Exchange is provided exclusively for consumers’ personal, non-commercial use, and such information may not be used for any purpose other than to identify prospective properties consumers may be interested in purchasing. This data is deemed reliable but is not guaranteed to be accurate by Edina Realty, Inc., or by the MLS. Edina Realty, Inc., is not a multiple listing service (MLS), nor does it offer MLS access.
Copyright 2026 Stellar MLS as distributed by the MLS GRID. All Rights Reserved.
Payment Calculator
Interest rate and annual percentage rate (APR) are based on current market conditions, are for informational purposes only, are subject to change without notice and may be subject to pricing add-ons related to property type, loan amount, loan-to-value, credit score and other variables. Estimated closing costs used in the APR calculation are assumed to be paid by the borrower at closing. If the closing costs are financed, the loan, APR and payment amounts will be higher. If the down payment is less than 20%, mortgage insurance may be required and could increase the monthly payment and APR. Contact us for details. Additional loan programs may be available. Accuracy is not guaranteed, and all products may not be available in all borrower's geographical areas and are based on their individual situation. This is not a credit decision or a commitment to lend.
Sales History & Tax Summary for 4348 Harborpointe Drive
Sales History
| Date | Price | |
|---|---|---|
| Currently not available. | ||
Tax Summary
| Tax Year | Estimated Market Value | Total Tax |
|---|---|---|
| Currently not available. | ||
Data powered by ATTOM Data Solutions. Copyright© 2026. Information deemed reliable but not guaranteed.
Schools
Schools nearby 4348 Harborpointe Drive
| Schools in attendance boundaries | Grades | Distance | Rating |
|---|---|---|---|
| Loading... | |||
| Schools nearby | Grades | Distance | Rating |
|---|---|---|---|
| Loading... | |||
Data powered by ATTOM Data Solutions. Copyright© 2026. Information deemed reliable but not guaranteed.
The schools shown represent both the assigned schools and schools by distance based on local school and district attendance boundaries. Attendance boundaries change based on various factors and proximity does not guarantee enrollment eligibility. Please consult your real estate agent and/or the school district to confirm the schools this property is zoned to attend. Information is deemed reliable but not guaranteed.
SchoolDigger ® Rating
The SchoolDigger rating system is a 1-5 scale with 5 as the highest rating. SchoolDigger ranks schools based on test scores supplied by each state's Department of Education. They calculate an average standard score by normalizing and averaging each school's test scores across all tests and grades.
Coming soon properties will soon be on the market, but are not yet available for showings.