$649,000
4350 Chatham Drive #E307 Longboat Key, FL 34228
For Sale MLS# A4659070
2 beds 2 baths 1,072 sq ft Condo
Details for 4350 Chatham Drive #E307
MLS# A4659070
Description for 4350 Chatham Drive #E307, Longboat Key, FL, 34228
Luxury Coastal Living at Longboat Harbour: Experience stunning canal views and modern elegance in this impeccably renovated 3rd-floor condo, ideally situated in the desirable all-age community of Longboat Harbour. Offered turnkey furnished, this beautifully curated residence is ready for your immediate enjoyment, whether you're seeking a winter retreat or full-time coastal living. Step inside to discover a completely reimagined, open-concept layout that blends sleek design with seaside charm. Every detail has been thoughtfully considered—from custom cabinetry and clever storage solutions to high-end fixtures and quartz countertops in both the kitchen and bath. The chef-inspired kitchen is outfitted with premium GE Stainless Steel Café appliances, and the entire space is anchored by ceramic wood-look tile flooring that adds both warmth and durability. Enjoy restful nights in either of the two king-size bedrooms, and indulge in the peace of mind that comes with updated electric and plumbing, PGT impact windows, 2018 AC, new ductwork, and added insulation for optimal comfort and quiet. You'll love entertaining in the great room or relaxing on your private balcony as dolphins, manatees, and coastal birds pass by—every moment feels like a postcard. Resort-Style Amenities Include: 4 heated swimming pools, Tennis & pickleball courts, Fitness center, billiards, and sauna, Clubhouse with kitchen, game and card rooms, Putting green, library, shuffleboard, and kayak storage, 56-slip marina with water and electric (waitlist for slips), Picnic area with gas grill and bike storage. From the serene water views to the exceptional interior design, this condo feels like stepping into a brand-new model home. Welcome to a life of luxury, comfort, and coastal bliss on Longboat Key.
Listing Information
Property Type: Residential, Condominium
Status: Active
Bedrooms: 2
Bathrooms: 2
Square Feet: 1,072 sq ft
Year Built: 1969
Stories: 1 Story
Construction: Block
Construction Display: New Construction
Subdivision: Longboat Harbour
Foundation: Slab
County: Manatee
Construction Status: New Construction
School Information
Elementary: Anna Maria Elementary
Middle: Martha B. King Middle
High: Bayshore High
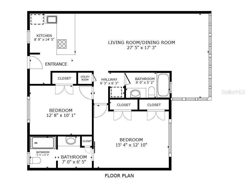
Room Information
Main Floor
Bedroom 2: 9x12
Primary Bedroom: 13x15
Kitchen: 7x8
Living Room: 11x20
Bathrooms
Full Baths: 2
Additonal Room Information
Laundry: Inside, Laundry Closet
Interior Features
Appliances: Built-In Oven, Electric Water Heater, Dryer, Microwave, Refrigerator, Washer, Cooktop, Dishwasher, Disposal
Flooring: Tile
Doors/Windows: Window Treatments
Additional Interior Features: Window Treatments, Ceiling Fan(s), Living/Dining Room, Main Level Primary, Open Floorplan, Stone Counters
Utilities
Water: Public
Sewer: Public Sewer
Other Utilities: Cable Connected,Electricity Connected,High Speed Internet Available,Sewer Connected,Water Connected
Cooling: Ceiling Fan(s), Central Air
Heating: Central, Electric
Exterior / Lot Features
Roof: Built-Up
Pool: Community
Lot View: Water
Additional Exterior/Lot Features: Balcony, Balcony, Buyer Approval Required
Community Features
Community Features: Recreation Area, Water Access, Gated, Fishing, Fitness, Dock, Boat Slip, Pool, Tennis Court(s), Clubhouse, Waterfront, Boat Facilities
Security Features: Gated Community
Association Amenities: Tennis Court(s), Fitness Center, Clubhouse, Elevator(s), Cable TV, Pickleball, Gated
HOA Dues Include: Insurance, Maintenance Grounds, Maintenance Structure, Reserve Fund, Road Maintenance, Pool(s), Common Areas, Cable TV, Water, Trash, Sewer, Recreation Facilities, Taxes
Driving Directions
Traveling north on Gulf of Mexico Drive, Enter Longboat Harbour by making a left and then make an immediate right. E building is 3rd building on the left. Plenty of guest parking across from the building.
Financial Considerations
Terms: Cash,Conventional,FHA,VA Loan
Tax/Property ID: 8008415351
Tax Amount: 6703.47
Tax Year: 2024
A broker reciprocity listing courtesy: WAGNER REALTY
Based on information provided by Stellar MLS as distributed by the MLS GRID. Information from the Internet Data Exchange is provided exclusively for consumers’ personal, non-commercial use, and such information may not be used for any purpose other than to identify prospective properties consumers may be interested in purchasing. This data is deemed reliable but is not guaranteed to be accurate by Edina Realty, Inc., or by the MLS. Edina Realty, Inc., is not a multiple listing service (MLS), nor does it offer MLS access.
Copyright 2025 Stellar MLS as distributed by the MLS GRID. All Rights Reserved.
Payment Calculator
Interest rate and annual percentage rate (APR) are based on current market conditions, are for informational purposes only, are subject to change without notice and may be subject to pricing add-ons related to property type, loan amount, loan-to-value, credit score and other variables. Estimated closing costs used in the APR calculation are assumed to be paid by the borrower at closing. If the closing costs are financed, the loan, APR and payment amounts will be higher. If the down payment is less than 20%, mortgage insurance may be required and could increase the monthly payment and APR. Contact us for details. Additional loan programs may be available. Accuracy is not guaranteed, and all products may not be available in all borrower's geographical areas and are based on their individual situation. This is not a credit decision or a commitment to lend.
Sales History & Tax Summary for 4350 Chatham Drive #E307
Sales History
| Date | Price | Change |
|---|---|---|
| Currently not available. | ||
Tax Summary
| Tax Year | Estimated Market Value | Total Tax |
|---|---|---|
| Currently not available. | ||
Data powered by ATTOM Data Solutions. Copyright© 2025. Information deemed reliable but not guaranteed.
Schools
Schools nearby 4350 Chatham Drive #E307
| Schools in attendance boundaries | Grades | Distance | Rating |
|---|---|---|---|
| Loading... | |||
| Schools nearby | Grades | Distance | Rating |
|---|---|---|---|
| Loading... | |||
Data powered by ATTOM Data Solutions. Copyright© 2025. Information deemed reliable but not guaranteed.
The schools shown represent both the assigned schools and schools by distance based on local school and district attendance boundaries. Attendance boundaries change based on various factors and proximity does not guarantee enrollment eligibility. Please consult your real estate agent and/or the school district to confirm the schools this property is zoned to attend. Information is deemed reliable but not guaranteed.
SchoolDigger ® Rating
The SchoolDigger rating system is a 1-5 scale with 5 as the highest rating. SchoolDigger ranks schools based on test scores supplied by each state's Department of Education. They calculate an average standard score by normalizing and averaging each school's test scores across all tests and grades.
Coming soon properties will soon be on the market, but are not yet available for showings.