$714,990
4374 Rhyme Street Kissimmee, FL 34746
For Sale MLS# O6280643
5 beds 5 baths 2,996 sq ft Single Family
Details for 4374 Rhyme Street
MLS# O6280643
Description for 4374 Rhyme Street, Kissimmee, FL, 34746
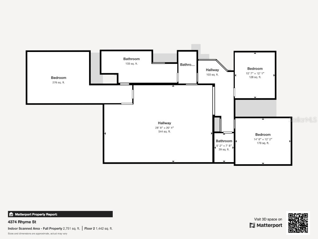
Welcome to 4374 Rhyme Street, a professionally designed 5-bedroom, 5-bathroom retreat in Storey Lake Resort, one of the most sought-after vacation communities in Orlando. Whether you’re looking for the perfect getaway or a rental vacation property, this home offers luxury, comfort, and an unbeatable location. Prime Location – In the Heart of the Magic Just 5 miles from Walt Disney World, this home provides easy access to Universal Studios, SeaWorld, and Orlando’s top attractions. Conveniently located near The Loop, Vineland Premium Outlets, top-rated restaurants, and major highways, everything you need is just a short drive away. Designed for an Unforgettable Stay This home has been professionally decorated with a stylish and inviting interior, creating the perfect vacation atmosphere. Themed bedrooms add a special touch, featuring a Minions-themed room that kids will love and a Mickey Mouse-themed room for a classic Disney experience. Private Pool and Outdoor Space Step outside to your own private pool, ideal for relaxing after a day at the parks. Whether lounging in the sun, enjoying an evening swim, or gathering with family and friends, this outdoor space is designed for both fun and relaxation. Resort-Style Amenities at Storey Lake As part of the Storey Lake Resort community, residents and guests enjoy access to a wide range of resort-style amenities, including: Resort-style pool and lazy river Water slides and splash pad 9-hole mini-golf course Tiki bar with poolside dining Fitness center, volleyball, and basketball courts This home is the perfect combination of location, design, and resort-style living, offering an exceptional experience for both owners and guests. Contact us for more info and dont forget to check out the 3D tour
Listing Information
Property Type: Residential, Single Family Residence
Status: Active
Bedrooms: 5
Bathrooms: 5
Lot Size: 0.11 Acres
Square Feet: 2,996 sq ft
Year Built: 2022
Garage: Yes
Stories: 2 Story
Construction: Block,Concrete,Stucco
Subdivision: Cove At Storey Lake 5
Foundation: Slab
County: Osceola
Room Information
Main Floor
Living Room:
Kitchen:
Family Room: 14x19
Primary Bedroom: 13x14
Bathrooms
Full Baths: 5
Additonal Room Information
Laundry: Laundry Room
Interior Features
Appliances: Microwave, Dishwasher, Disposal, Dryer, Range, Refrigerator, Washer
Flooring: Carpet,Ceramic Tile,Epoxy
Doors/Windows: Window Treatments, ENERGY STAR Qualified Windows, Storm Window(s), Blinds
Additional Interior Features: Loft, Walk-In Closet(s), Window Treatments, High Ceilings, Open Floorplan, Built-in Features
Utilities
Sewer: Public Sewer
Other Utilities: Cable Connected,Electricity Connected,Municipal Utilities,Sewer Connected,Water Connected,Water Not Available
Cooling: Central Air
Heating: Central
Exterior / Lot Features
Attached Garage: Attached Garage
Garage Spaces: 1
Parking Description: driveway
Roof: Shingle
Pool: Screen Enclosure, In Ground, Heated
Additional Exterior/Lot Features: Awning(s), Sprinkler/Irrigation, French Patio Doors, Landscaped
Community Features
Community Features: Gated
Security Features: Security Gate, Gated Community
Homeowners Association: Yes
HOA Dues: $259 / Monthly
Driving Directions
I-4 E via the ramp toward Orlando. Take Exit 68 for FL-535 S toward Kissimmee. Turn right onto FL-535 S (Apopka Vineland Rd). Continue onto Poinciana Blvd. Turn left onto Lizzia Brown Rd. Turn right onto Poetic St, then a quick left onto Rhyme St. Destination (4374 Rhyme St) will be on your left.
Financial Considerations
Terms: Cash,Conventional
Tax/Property ID: 07-25-29-5291-0001-6640
Tax Amount: 8130.5
Tax Year: 2023
A broker reciprocity listing courtesy: METROPOLITAN R.E SOLUTIONS INC
Based on information provided by Stellar MLS as distributed by the MLS GRID. Information from the Internet Data Exchange is provided exclusively for consumers’ personal, non-commercial use, and such information may not be used for any purpose other than to identify prospective properties consumers may be interested in purchasing. This data is deemed reliable but is not guaranteed to be accurate by Edina Realty, Inc., or by the MLS. Edina Realty, Inc., is not a multiple listing service (MLS), nor does it offer MLS access.
Copyright 2025 Stellar MLS as distributed by the MLS GRID. All Rights Reserved.
Payment Calculator
Interest rate and annual percentage rate (APR) are based on current market conditions, are for informational purposes only, are subject to change without notice and may be subject to pricing add-ons related to property type, loan amount, loan-to-value, credit score and other variables. Estimated closing costs used in the APR calculation are assumed to be paid by the borrower at closing. If the closing costs are financed, the loan, APR and payment amounts will be higher. If the down payment is less than 20%, mortgage insurance may be required and could increase the monthly payment and APR. Contact us for details. Additional loan programs may be available. Accuracy is not guaranteed, and all products may not be available in all borrower's geographical areas and are based on their individual situation. This is not a credit decision or a commitment to lend.
Sales History & Tax Summary for 4374 Rhyme Street
Sales History
| Date | Price | Change |
|---|---|---|
| Currently not available. | ||
Tax Summary
| Tax Year | Estimated Market Value | Total Tax |
|---|---|---|
| Currently not available. | ||
Data powered by ATTOM Data Solutions. Copyright© 2025. Information deemed reliable but not guaranteed.
Schools
Schools nearby 4374 Rhyme Street
| Schools in attendance boundaries | Grades | Distance | Rating |
|---|---|---|---|
| Loading... | |||
| Schools nearby | Grades | Distance | Rating |
|---|---|---|---|
| Loading... | |||
Data powered by ATTOM Data Solutions. Copyright© 2025. Information deemed reliable but not guaranteed.
The schools shown represent both the assigned schools and schools by distance based on local school and district attendance boundaries. Attendance boundaries change based on various factors and proximity does not guarantee enrollment eligibility. Please consult your real estate agent and/or the school district to confirm the schools this property is zoned to attend. Information is deemed reliable but not guaranteed.
SchoolDigger ® Rating
The SchoolDigger rating system is a 1-5 scale with 5 as the highest rating. SchoolDigger ranks schools based on test scores supplied by each state's Department of Education. They calculate an average standard score by normalizing and averaging each school's test scores across all tests and grades.
Coming soon properties will soon be on the market, but are not yet available for showings.