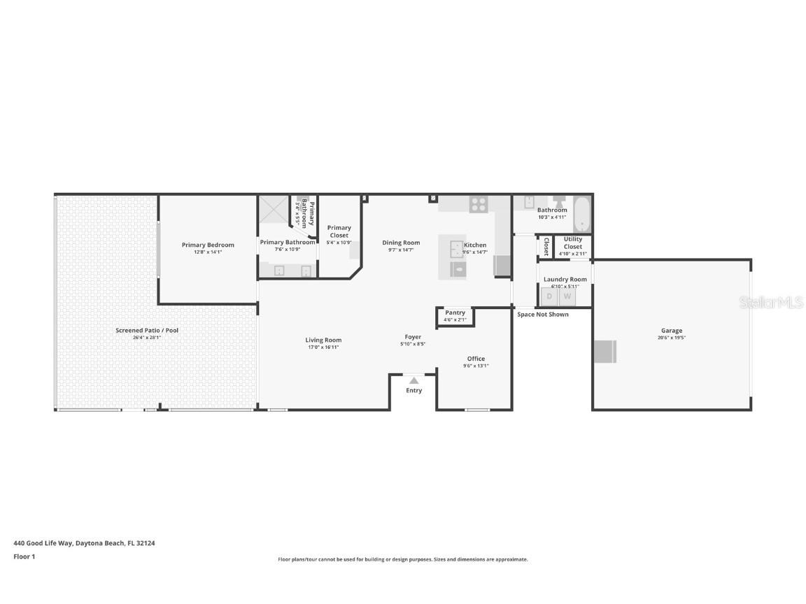
440 Good Life Way Daytona Beach, FL 32124
For Sale MLS# V4944077
2 beds 2 baths 1,563 sq ft Single Family
Details for 440 Good Life Way
MLS# V4944077
Description for 440 Good Life Way, Daytona Beach, FL, 32124
Enjoy the Florida lifestyle in this stunning 2-bedroom, 2-bath Antigua model with a den—featuring sliding glass doors that open all the way to your very own solar heated saltwater pool and peaceful pond views! Whether you're relaxing poolside or entertaining guests, this outdoor space is the ultimate retreat. Step inside to an open floor plan featuring several upgrades, crown molding and vinyl plank flooring throughout, plantation shutters, tankless hot water heater and a modern kitchen complete with 42'' wood cabinets, granite countertops and stainless steel appliances. The flexible den offers the perfect space for a home office, guest room, or reading nook. The primary suite has waterview, custom walk-in closet, and a double sink vanity with ample storage. Garage features durable Shark Coated floor-ideal for storage, hobbies, or a clean, polished look. Fantastic opportunity to join the most desirable 55+ community in the Greater NE Florida area! Enjoy music 7 days a week, private Bar and Chill Restaurant, private beach club with transportation, Mango Theater with unique events every month. State of the art Fins Up Fitness Center, Classroom with Pottery Workshop, Woodworking shop and Pet Spa. Pickleball Courts and Tennis Courts! The HOA fee includes a beautiful ocean front property with free transportation from the Town Center; active theater; bar & restaurant with weekly specials; expansive indoor & outdoor pools with live music; Additional live music in town center 3-4 evenings per week; busy monthly activity schedule; dog park. Don't miss your chance to own in Latitude Margaritaville! All information and measurements are deemed to be accurate but buyer must verify.
Listing Information
Property Type: Residential, Single Family Residence
Status: Active
Bedrooms: 2
Bathrooms: 2
Lot Size: 0.10 Acres
Square Feet: 1,563 sq ft
Year Built: 2021
Garage: Yes
Stories: 1 Story
Construction: Block,Concrete,Stucco
Property Attached: Yes
Subdivision: Latitude/Daytona Beach Ph 4a
Foundation: Slab
County: Volusia
Room Information
Main Floor
Living Room: 17x17
Kitchen: 14x9
Primary Bedroom: 13x14
Bathrooms
Full Baths: 2
Additonal Room Information
Laundry: Washer Hookup, Inside, Electric Dryer Hookup
Interior Features
Appliances: Microwave, Range, Refrigerator, Washer, Dishwasher, Dryer
Flooring: Luxury Vinyl,Tile
Doors/Windows: Window Treatments
Additional Interior Features: Eat-In Kitchen, Split Bedrooms, Walk-In Closet(s), Window Treatments, Built-in Features, High Ceilings, Main Level Primary, Open Floorplan, Wood Cabinets
Utilities
Water: Public
Sewer: Public Sewer
Other Utilities: Cable Connected,Electricity Connected,Sewer Connected,Water Connected
Cooling: Central Air
Heating: Electric, Central
Exterior / Lot Features
Attached Garage: Attached Garage
Garage Spaces: 2
Roof: Shingle
Pool: Community, Salt Water, Screen Enclosure, Solar Heat, Heated
Lot View: Pond,Water
Additional Exterior/Lot Features: Sprinkler/Irrigation, Screened, Covered, Rear Porch
Waterfront Details
Water Front Features: Pond
Community Features
Community Features: Tennis Court(s), Dog Park, Gated, Restaurant, Fitness, Golf Carts OK
Security Features: Gated Community, Gated with Guard, Security Gate
HOA Dues Include: Maintenance Grounds, Pool(s), Maintenance Structure
Homeowners Association: Yes
HOA Dues: $382 / Monthly
Driving Directions
LPGA to Tymber Creek, Right at Guard Gate onto Margaritaville Ave, Left onto Good Life Way, Home on Right
Financial Considerations
Tax/Property ID: 5205-04-00-1510
Tax Amount: 3796.99
Tax Year: 2024
A broker reciprocity listing courtesy: JASON MITCHELL REAL ESTATE FLO
Based on information provided by Stellar MLS as distributed by the MLS GRID. Information from the Internet Data Exchange is provided exclusively for consumers’ personal, non-commercial use, and such information may not be used for any purpose other than to identify prospective properties consumers may be interested in purchasing. This data is deemed reliable but is not guaranteed to be accurate by Edina Realty, Inc., or by the MLS. Edina Realty, Inc., is not a multiple listing service (MLS), nor does it offer MLS access.
Copyright 2026 Stellar MLS as distributed by the MLS GRID. All Rights Reserved.
Payment Calculator
Interest rate and annual percentage rate (APR) are based on current market conditions, are for informational purposes only, are subject to change without notice and may be subject to pricing add-ons related to property type, loan amount, loan-to-value, credit score and other variables. Estimated closing costs used in the APR calculation are assumed to be paid by the borrower at closing. If the closing costs are financed, the loan, APR and payment amounts will be higher. If the down payment is less than 20%, mortgage insurance may be required and could increase the monthly payment and APR. Contact us for details. Additional loan programs may be available. Accuracy is not guaranteed, and all products may not be available in all borrower's geographical areas and are based on their individual situation. This is not a credit decision or a commitment to lend.
Sales History & Tax Summary for 440 Good Life Way
Sales History
| Date | Price | Change |
|---|---|---|
| Currently not available. | ||
Tax Summary
| Tax Year | Estimated Market Value | Total Tax |
|---|---|---|
| Currently not available. | ||
Data powered by ATTOM Data Solutions. Copyright© 2026. Information deemed reliable but not guaranteed.
Schools
Schools nearby 440 Good Life Way
| Schools in attendance boundaries | Grades | Distance | Rating |
|---|---|---|---|
| Loading... | |||
| Schools nearby | Grades | Distance | Rating |
|---|---|---|---|
| Loading... | |||
Data powered by ATTOM Data Solutions. Copyright© 2026. Information deemed reliable but not guaranteed.
The schools shown represent both the assigned schools and schools by distance based on local school and district attendance boundaries. Attendance boundaries change based on various factors and proximity does not guarantee enrollment eligibility. Please consult your real estate agent and/or the school district to confirm the schools this property is zoned to attend. Information is deemed reliable but not guaranteed.
SchoolDigger ® Rating
The SchoolDigger rating system is a 1-5 scale with 5 as the highest rating. SchoolDigger ranks schools based on test scores supplied by each state's Department of Education. They calculate an average standard score by normalizing and averaging each school's test scores across all tests and grades.
Coming soon properties will soon be on the market, but are not yet available for showings.