$1,100,000
4410 Mildred Bass Road Saint Cloud, FL 34772
For Sale MLS# S5139801
6 beds 6 baths 3,569 sq ft Single Family
Details for 4410 Mildred Bass Road
MLS# S5139801
Description for 4410 Mildred Bass Road, Saint Cloud, FL, 34772
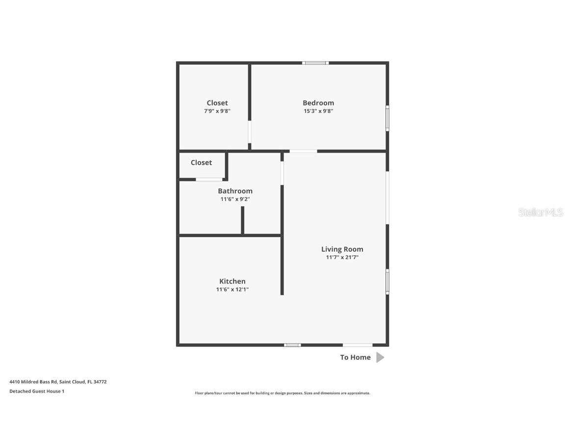
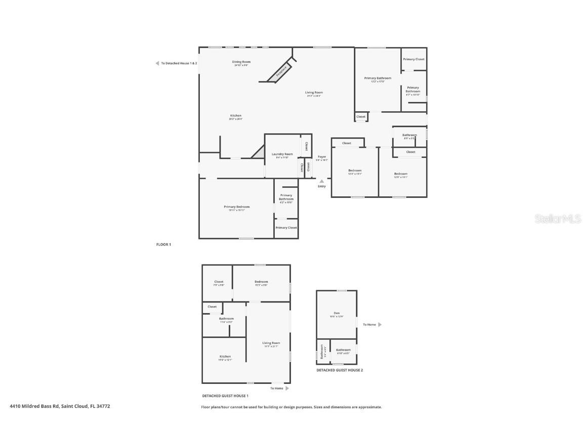
Tucked along a peaceful, shaded forest path and set on 5.46 acres of pristine St. Cloud land, this multi-unit gem offers a rare blend of luxury, function, and versatility that’s perfect for multi-generational living or income potential. The beautifully maintained main home features a desirable split floor plan with two expansive master suites, a spacious family room with a charming brick faux fireplace, granite countertops, 42" cabinetry, and a large formal dining area ideal for entertaining. A newer, high-efficiency HVAC system, fully paid-off solar panels, and a NEW roof which provides peace of mind and energy savings. Step outside to your own backyard oasis, complete with a brand-new ionized PebbleTec pool, twin carports, and a private outdoor living area. Work from home in the detached office suite with a full bathroom, or accommodate guests in the fully equipped in-law unit featuring vaulted ceilings, a luxurious kitchen, open-concept living, and a wraparound patio perfect for enjoying Florida’s breezy afternoons. Massive garages offer space for all your toys, tools, and recreational gear. This one-of-a-kind property offers a lifestyle of comfort, space, and endless possibilities—schedule your private showing today!
Listing Information
Property Type: Residential, Single Family Residence
Status: Active
Bedrooms: 6
Bathrooms: 6
Lot Size: 5.46 Acres
Square Feet: 3,569 sq ft
Year Built: 1989
Garage: Yes
Stories: 1 Story
Construction: Block
Subdivision: S L & I C
Foundation: Slab
County: Osceola
Room Information
Main Floor
Bedroom 4: 13x13
Bedroom 3: 13x12
Primary Bedroom: 17x12
Living Room: 24x22
Dining Room: 10x24
Kitchen: 20x20
Primary Bedroom: 16x20
Bathrooms
Full Baths: 5
1/2 Baths: 1
Additonal Room Information
Laundry: Laundry Room
Interior Features
Appliances: Water Softener, Microwave, Range, Refrigerator
Flooring: Luxury Vinyl
Additional Interior Features: Ceiling Fan(s), Eat-In Kitchen, Walk-In Closet(s), Built-in Features, Open Floorplan, Stone Counters, Wood Cabinets
Utilities
Sewer: Septic Tank
Other Utilities: Cable Available,Electricity Connected,Phone Available,Sewer Connected,Water Connected,Water Not Available
Cooling: Central Air, Ceiling Fan(s)
Heating: Central
Exterior / Lot Features
Garage Spaces: 3
Roof: Shingle
Pool: In Ground
Additional Exterior/Lot Features: Private Entrance, Rain Gutters, Other, Storage
Driving Directions
192 TO VERMONT AVE, SOUTH ON VERMONT TO MILDRED BASS RD, TAKE LEFT ON MILDRED BASS, HOUSE ON RIGHT.
Financial Considerations
Terms: Cash,Conventional,FHA,VA Loan
Tax/Property ID: 12-27-30-4950-0001-0025
Tax Amount: 11462.11
Tax Year: 2024
A broker reciprocity listing courtesy: EXP REALTY LLC
Based on information provided by Stellar MLS as distributed by the MLS GRID. Information from the Internet Data Exchange is provided exclusively for consumers’ personal, non-commercial use, and such information may not be used for any purpose other than to identify prospective properties consumers may be interested in purchasing. This data is deemed reliable but is not guaranteed to be accurate by Edina Realty, Inc., or by the MLS. Edina Realty, Inc., is not a multiple listing service (MLS), nor does it offer MLS access.
Copyright 2025 Stellar MLS as distributed by the MLS GRID. All Rights Reserved.
Payment Calculator
Interest rate and annual percentage rate (APR) are based on current market conditions, are for informational purposes only, are subject to change without notice and may be subject to pricing add-ons related to property type, loan amount, loan-to-value, credit score and other variables. Estimated closing costs used in the APR calculation are assumed to be paid by the borrower at closing. If the closing costs are financed, the loan, APR and payment amounts will be higher. If the down payment is less than 20%, mortgage insurance may be required and could increase the monthly payment and APR. Contact us for details. Additional loan programs may be available. Accuracy is not guaranteed, and all products may not be available in all borrower's geographical areas and are based on their individual situation. This is not a credit decision or a commitment to lend.
Sales History & Tax Summary for 4410 Mildred Bass Road
Sales History
| Date | Price | Change |
|---|---|---|
| Currently not available. | ||
Tax Summary
| Tax Year | Estimated Market Value | Total Tax |
|---|---|---|
| Currently not available. | ||
Data powered by ATTOM Data Solutions. Copyright© 2025. Information deemed reliable but not guaranteed.
Schools
Schools nearby 4410 Mildred Bass Road
| Schools in attendance boundaries | Grades | Distance | Rating |
|---|---|---|---|
| Loading... | |||
| Schools nearby | Grades | Distance | Rating |
|---|---|---|---|
| Loading... | |||
Data powered by ATTOM Data Solutions. Copyright© 2025. Information deemed reliable but not guaranteed.
The schools shown represent both the assigned schools and schools by distance based on local school and district attendance boundaries. Attendance boundaries change based on various factors and proximity does not guarantee enrollment eligibility. Please consult your real estate agent and/or the school district to confirm the schools this property is zoned to attend. Information is deemed reliable but not guaranteed.
SchoolDigger ® Rating
The SchoolDigger rating system is a 1-5 scale with 5 as the highest rating. SchoolDigger ranks schools based on test scores supplied by each state's Department of Education. They calculate an average standard score by normalizing and averaging each school's test scores across all tests and grades.
Coming soon properties will soon be on the market, but are not yet available for showings.