4427 Fairview Avenue Orlando, FL 32804
For Sale MLS# O6331624
3 beds 2 baths 1,260 sq ft Single Family
Details for 4427 Fairview Avenue
MLS# O6331624
Description for 4427 Fairview Avenue, Orlando, FL, 32804
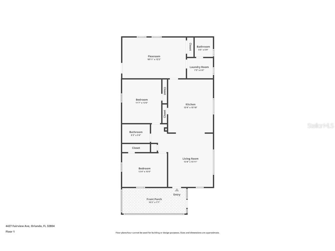
Welcome to 4427 Fairview Ave, a charming block home in the highly desirable 32804 zip code of Orlando! This solid 3-bedroom, 2-bathroom property offers 1,260 sqft of living space on a spacious 10,129 sqft lot which is nearly a 1/4 acre. Built in 1952, this home offers a great structure and even better potential, making it an excellent opportunity for investors, first-time buyers, or anyone looking to customize their perfect space. Inside, you'll find fresh new paint and new flooring, creating a clean, updated feel. The layout offers flexibility and functionality, with room to make it your own. The room at the back of the home can be turned into and In-Law suite with it's separate entrance and full bathroom. The large kitchen has a generous amount of counter top space as well as storage and there is still plenty of space for your table to gather at. A brand new roof was just installed in July 2025, providing peace of mind for years to come. The large backyard offers endless possibilities, whether you want to create an outdoor living space, garden, or expand. A carport provides covered parking to beat the heat or afternoon rain. With a convenient location close to shops, restaurants, services, schools, boat ramps on Lake Fairview and major roadways like I-4, this home combines accessibility with potential. While it may need some cosmetic updates, the solid block construction and recent upgrades make this a fantastic foundation for your next chapter.
Listing Information
Property Type: Residential, Single Family Residence
Status: Active
Bedrooms: 3
Bathrooms: 2
Lot Size: 0.23 Acres
Square Feet: 1,260 sq ft
Year Built: 1952
Stories: 1 Story
Construction: Block
Subdivision: Dowd Park
Foundation: Slab
County: Orange
Room Information
Main Floor
Bedroom 3: 11x12.5
Bedroom 2: 10x13
Primary Bedroom: 12x18.5
Kitchen: 13x16
Living Room: 13x15.5
Bathrooms
Full Baths: 2
Additonal Room Information
Laundry: Inside, Laundry Room
Interior Features
Appliances: Cooktop, Range, Refrigerator
Flooring: Luxury Vinyl,Tile
Additional Interior Features: Other
Utilities
Water: Public
Sewer: Septic Tank
Other Utilities: Electricity Connected,Water Connected
Cooling: Wall/Window Unit(s)
Heating: Window Unit, Wall Furnace
Exterior / Lot Features
Roof: Shingle
Additional Exterior/Lot Features: Other
Driving Directions
From Fairbanks Ave. Turn North onto Fairview Ave. Home is 5th residential lot on the right.
Financial Considerations
Tax/Property ID: 03-22-29-2192-00-111
Tax Amount: 3367.59
Tax Year: 2024
A broker reciprocity listing courtesy: COMPASS FLORIDA, LLC
Based on information provided by Stellar MLS as distributed by the MLS GRID. Information from the Internet Data Exchange is provided exclusively for consumers’ personal, non-commercial use, and such information may not be used for any purpose other than to identify prospective properties consumers may be interested in purchasing. This data is deemed reliable but is not guaranteed to be accurate by Edina Realty, Inc., or by the MLS. Edina Realty, Inc., is not a multiple listing service (MLS), nor does it offer MLS access.
Copyright 2025 Stellar MLS as distributed by the MLS GRID. All Rights Reserved.
Payment Calculator
Interest rate and annual percentage rate (APR) are based on current market conditions, are for informational purposes only, are subject to change without notice and may be subject to pricing add-ons related to property type, loan amount, loan-to-value, credit score and other variables. Estimated closing costs used in the APR calculation are assumed to be paid by the borrower at closing. If the closing costs are financed, the loan, APR and payment amounts will be higher. If the down payment is less than 20%, mortgage insurance may be required and could increase the monthly payment and APR. Contact us for details. Additional loan programs may be available. Accuracy is not guaranteed, and all products may not be available in all borrower's geographical areas and are based on their individual situation. This is not a credit decision or a commitment to lend.
Sales History & Tax Summary for 4427 Fairview Avenue
Sales History
| Date | Price | Change |
|---|---|---|
| Currently not available. | ||
Tax Summary
| Tax Year | Estimated Market Value | Total Tax |
|---|---|---|
| Currently not available. | ||
Data powered by ATTOM Data Solutions. Copyright© 2025. Information deemed reliable but not guaranteed.
Schools
Schools nearby 4427 Fairview Avenue
| Schools in attendance boundaries | Grades | Distance | Rating |
|---|---|---|---|
| Loading... | |||
| Schools nearby | Grades | Distance | Rating |
|---|---|---|---|
| Loading... | |||
Data powered by ATTOM Data Solutions. Copyright© 2025. Information deemed reliable but not guaranteed.
The schools shown represent both the assigned schools and schools by distance based on local school and district attendance boundaries. Attendance boundaries change based on various factors and proximity does not guarantee enrollment eligibility. Please consult your real estate agent and/or the school district to confirm the schools this property is zoned to attend. Information is deemed reliable but not guaranteed.
SchoolDigger ® Rating
The SchoolDigger rating system is a 1-5 scale with 5 as the highest rating. SchoolDigger ranks schools based on test scores supplied by each state's Department of Education. They calculate an average standard score by normalizing and averaging each school's test scores across all tests and grades.
Coming soon properties will soon be on the market, but are not yet available for showings.