$1,100,000
443 Juniper Lane Ormond Beach, FL 32174
For Sale MLS# FC307839
5 beds 6 baths 3,794 sq ft Single Family
Details for 443 Juniper Lane
MLS# FC307839
Description for 443 Juniper Lane, Ormond Beach, FL, 32174
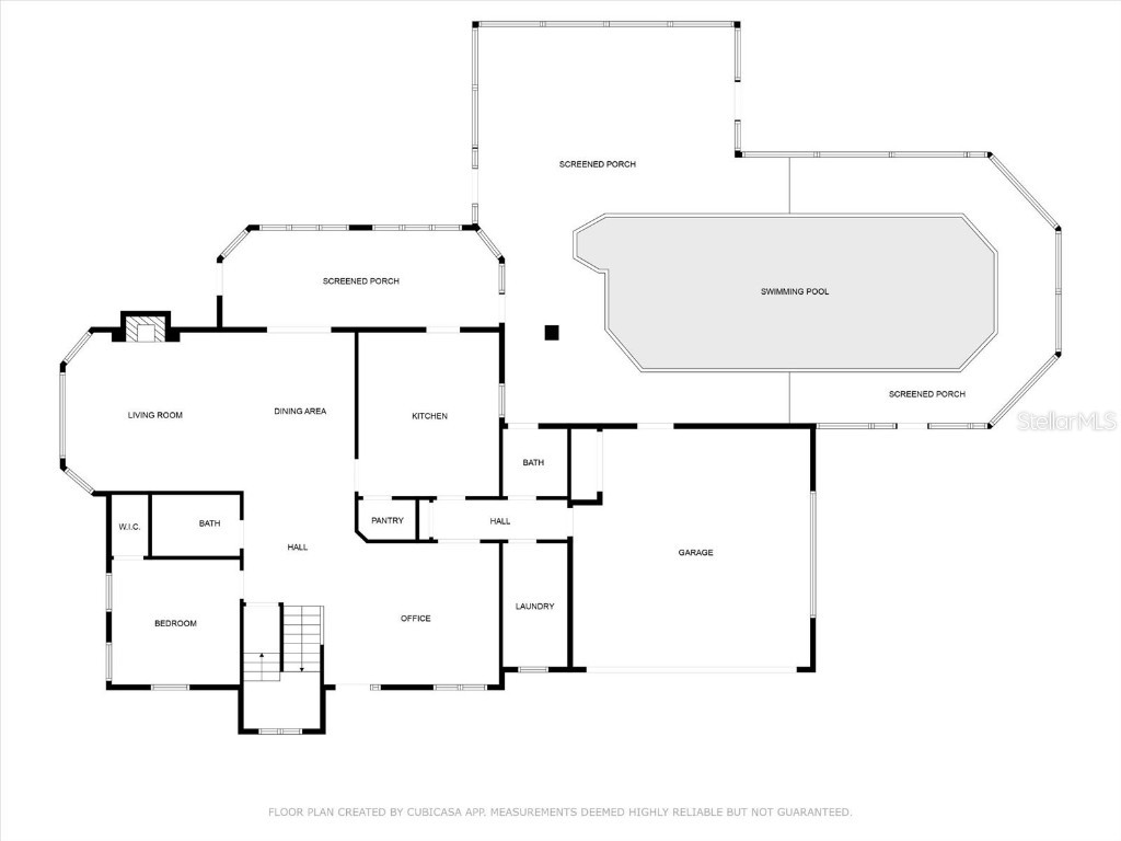
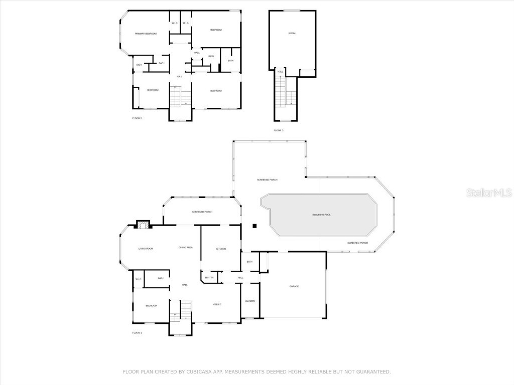
Nestled on just under 6 acres of unspoiled land, this exquisite and private residence offers the perfect blend of elegance and tranquility. As you approach the property, you'll be greeted by a grand gated entrance, with a charming pavered driveway leading you past a serene man-made pond. The 2008 custom-built Spanish-inspired home offers both comfort and style boasting 5 spacious bedrooms, 5.5 baths, and an oversized two-car garage. Inside, the home features a welcoming living room, a dining room, and a cozy den just off the foyer. The bright and airy enclosed Florida room is an ideal spot to unwind in the afternoons. With one bedroom located on the first floor and the remaining four on the second, each with its own private bath, everyone in the family (or your guests) can enjoy their own space and privacy. The third floor offers a versatile bonus room that can be transformed into a home theater, playroom, or private office. The kitchen is a chef's dream, featuring tall maple cabinetry, a center island with a sink, double ovens, and a convenient warming shelf. A spacious walk-in pantry provides ample storage. The kitchen offers easy access to the dining room, hallway, and opens up to the pool area, making it perfect for both cooking and entertaining. Outside, the expansive pool area is fully screened and includes a newly built sitting area, perfect for outdoor gatherings or simply enjoying the beautiful surroundings. The home is also equipped with a Photovoltaic Solar System, significantly lowering your electric bills—so much so that at times FPL may even pay you for the energy it produces. Come see this stunning home for yourself and choose the bedroom that best fits your lifestyle—whether you prefer a sun-drenched retreat or a room with its own private walk-out balcony. This home truly offers something for everyone.
Listing Information
Property Type: Residential, Single Family Residence
Status: Active
Bedrooms: 5
Bathrooms: 6
Lot Size: 5.97 Acres
Square Feet: 3,794 sq ft
Year Built: 2008
Garage: Yes
Construction: Block,Concrete,Stucco
Subdivision: Plantation Pines Map
Foundation: Slab
County: Volusia
Room Information
Main Floor
Dining Room: 11x14
Living Room: 16x14
Primary Bedroom: 12x11
Office: 16x13
Florida Room: 9x26
Kitchen: 13x15
Upper Floor
Bonus Room: 11x22
Bedroom 5: 12x12
Bedroom 4: 16x12
Bedroom 3: 16x12
Bedroom 2: 16x14
Bathrooms
Full Baths: 5
1/2 Baths: 1
Additonal Room Information
Laundry: Washer Hookup, Laundry Room, Electric Dryer Hookup
Interior Features
Appliances: Electric Water Heater, Built-In Oven, Water Softener, Refrigerator, Cooktop, Dishwasher, Disposal
Flooring: Tile,Wood
Fireplaces: Wood Burning
Additional Interior Features: Vaulted Ceiling(s), Ceiling Fan(s), Main Level Primary
Utilities
Water: Well
Sewer: Septic Tank
Other Utilities: Electricity Connected,Sewer Connected,Water Connected
Cooling: Zoned, Ceiling Fan(s), Central Air, Ductless
Heating: Central, Electric, Zoned
Exterior / Lot Features
Attached Garage: Attached Garage
Garage Spaces: 2
Parking Description: Garage Door Opener, Garage
Roof: Tile
Pool: In Ground, Salt Water, Screen Enclosure
Lot View: Pool,Trees/Woods,Water
Fencing: Vinyl
Additional Exterior/Lot Features: Other, Patio, Front Porch, Rear Porch, Screened
Out Buildings: Shed(s)
Community Features
Homeowners Association: Yes
HOA Dues: $200 / Annually
Driving Directions
From I-95 exit 268 go west on State Road 40 (Granada Blvd) 8.2 miles to left on Pine Woods Rd; to right on Long Leaf Dr; to right on Juniper Ln; go to 443 on left.
Financial Considerations
Terms: Cash,Conventional,VA Loan
Tax/Property ID: 4035-01-00-1440
Tax Amount: 384
Tax Year: 2024
A broker reciprocity listing courtesy: SIMPLY REAL ESTATE
Based on information provided by Stellar MLS as distributed by the MLS GRID. Information from the Internet Data Exchange is provided exclusively for consumers’ personal, non-commercial use, and such information may not be used for any purpose other than to identify prospective properties consumers may be interested in purchasing. This data is deemed reliable but is not guaranteed to be accurate by Edina Realty, Inc., or by the MLS. Edina Realty, Inc., is not a multiple listing service (MLS), nor does it offer MLS access.
Copyright 2025 Stellar MLS as distributed by the MLS GRID. All Rights Reserved.
Payment Calculator
Interest rate and annual percentage rate (APR) are based on current market conditions, are for informational purposes only, are subject to change without notice and may be subject to pricing add-ons related to property type, loan amount, loan-to-value, credit score and other variables. Estimated closing costs used in the APR calculation are assumed to be paid by the borrower at closing. If the closing costs are financed, the loan, APR and payment amounts will be higher. If the down payment is less than 20%, mortgage insurance may be required and could increase the monthly payment and APR. Contact us for details. Additional loan programs may be available. Accuracy is not guaranteed, and all products may not be available in all borrower's geographical areas and are based on their individual situation. This is not a credit decision or a commitment to lend.
Sales History & Tax Summary for 443 Juniper Lane
Sales History
| Date | Price | Change |
|---|---|---|
| Currently not available. | ||
Tax Summary
| Tax Year | Estimated Market Value | Total Tax |
|---|---|---|
| Currently not available. | ||
Data powered by ATTOM Data Solutions. Copyright© 2025. Information deemed reliable but not guaranteed.
Schools
Schools nearby 443 Juniper Lane
| Schools in attendance boundaries | Grades | Distance | Rating |
|---|---|---|---|
| Loading... | |||
| Schools nearby | Grades | Distance | Rating |
|---|---|---|---|
| Loading... | |||
Data powered by ATTOM Data Solutions. Copyright© 2025. Information deemed reliable but not guaranteed.
The schools shown represent both the assigned schools and schools by distance based on local school and district attendance boundaries. Attendance boundaries change based on various factors and proximity does not guarantee enrollment eligibility. Please consult your real estate agent and/or the school district to confirm the schools this property is zoned to attend. Information is deemed reliable but not guaranteed.
SchoolDigger ® Rating
The SchoolDigger rating system is a 1-5 scale with 5 as the highest rating. SchoolDigger ranks schools based on test scores supplied by each state's Department of Education. They calculate an average standard score by normalizing and averaging each school's test scores across all tests and grades.
Coming soon properties will soon be on the market, but are not yet available for showings.