446 Alberta Drive Winter Park, FL 32789 - LAKE OSCEOLA
For Sale MLS# O6319233
4 beds 3 baths 3,263 sq ft Single Family
Details for 446 Alberta Drive
MLS# O6319233
Description for 446 Alberta Drive, Winter Park, FL, 32789 - LAKE OSCEOLA
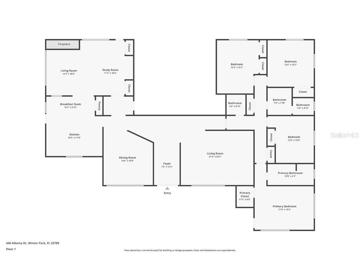
Charming Opportunity in Prime Winter Park – 446 Alberta Drive, Winter Park, FL! First time ever on the market and sits on a double lot that is .35 acres. Only a mile stroll to the famous Park Ave shops, dining and entertaining. Home site over looks Lake Osceola and the multi million dollar homes all around!! A neighborhood lot, a few doors down, allows residents to have walking access to Lake Osceola for paddle boarding, fishing, swimming or just to enjoy the view!! This home has only had one owner and is uniquely positioned not to see a next-door neighbor to your left or right!! Embrace the mid century modern style of this home or it is priced to be a tear down to build your dream home around the other multi million dollar homes. Nestled in the heart of highly sought-after Winter Park, this spacious 4-bedroom, 2.5-bath home offers over 3,260 square feet of living space on an oversized .35 acre lot with gorgeous lake views—ideal for enjoying sunsets from a future second-story balcony or out your current kitchen window!! The 4 bedrooms are very generous in size, have ample natural light and each one has oversized closets. The bathrooms have been updated with style in mind. The luxury vinyl floors were recently installed along with new kitchen appliances. Featuring a distinctive Mansard-style roof, this residence boasts strong architectural character and a versatile layout designed for modern living. Inside, you’ll find new luxury plank flooring, large windows that invite abundant natural light, and generously sized rooms with ample closet and storage space. Home offers a lot of character and charm with the present architectural features of a Chicago brick wall, ceiling accent beams and for the art lover a huge paneled art gallery wall!! The home includes two separate living areas, a formal dining room, an eat-in kitchen, and an office area with abundant storage and desk work space —perfect for work-from-home needs, student study session or family organization. The 2-car garage adds both storage and convenience and has a large utility closet inside the garage to stay organized. While the home is ready for your personal touch, it presents a rare chance to customize and elevate a spacious property in a top-rated school district, just minutes from parks, shopping, dining, and lakefront recreation. Whether you're looking to renovate, invest, expand upward, or build your dream home — the potential here is truly exceptional.
Listing Information
Property Type: Residential, Single Family Residence
Status: Active
Bedrooms: 4
Bathrooms: 3
Lot Size: 0.35 Acres
Square Feet: 3,263 sq ft
Year Built: 1968
Garage: Yes
Stories: 1 Story
Construction: Block
Subdivision: Osceola Summit
Foundation: Slab
County: Orange
School Information
Elementary: Lakemont Elem
Middle: Maitland Middle
High: Winter Park High
Room Information
Main Floor
Bedroom 4: 13x14
Bedroom 3: 13x14
Bedroom 2: 12x16
Primary Bedroom: 17x19
Office: 11x16
Family Room: 15x16
Dining Room: 15x16
Living Room: 20x22
Kitchen: 12x17
Bathrooms
Full Baths: 2
1/2 Baths: 1
Additonal Room Information
Laundry: Inside, Laundry Room
Interior Features
Appliances: Built-In Oven, Range Hood, Cooktop, Dishwasher, Refrigerator
Flooring: Carpet,Luxury Vinyl,Tile
Fireplaces: Family Room
Additional Interior Features: Ceiling Fan(s), Eat-In Kitchen, Living/Dining Room, Walk-In Closet(s), Built-in Features, Separate/Formal Dining Room, Main Level Primary, Crown Molding, Open Floorplan, Separate/Formal Living Room
Utilities
Water: Public
Sewer: Public Sewer
Other Utilities: Cable Available
Cooling: Central Air, Ceiling Fan(s)
Heating: Central
Exterior / Lot Features
Attached Garage: Attached Garage
Garage Spaces: 2
Roof: Membrane
Lot View: Lake,Water
Additional Exterior/Lot Features: Lighting
Waterfront Details
Standard Water Body: LAKE OSCEOLA
Driving Directions
From Aloma turn on Cortland. Driveway will be on your left last home down towards the lake. Home at the tip of where Alberta and Cortland meet.
Financial Considerations
Terms: Cash,Conventional
Tax/Property ID: 05-22-30-6484-02-010
Tax Amount: 6788.96
Tax Year: 2024
A broker reciprocity listing courtesy: CHARLES RUTENBERG REALTY ORLANDO
Based on information provided by Stellar MLS as distributed by the MLS GRID. Information from the Internet Data Exchange is provided exclusively for consumers’ personal, non-commercial use, and such information may not be used for any purpose other than to identify prospective properties consumers may be interested in purchasing. This data is deemed reliable but is not guaranteed to be accurate by Edina Realty, Inc., or by the MLS. Edina Realty, Inc., is not a multiple listing service (MLS), nor does it offer MLS access.
Copyright 2025 Stellar MLS as distributed by the MLS GRID. All Rights Reserved.
Payment Calculator
Interest rate and annual percentage rate (APR) are based on current market conditions, are for informational purposes only, are subject to change without notice and may be subject to pricing add-ons related to property type, loan amount, loan-to-value, credit score and other variables. Estimated closing costs used in the APR calculation are assumed to be paid by the borrower at closing. If the closing costs are financed, the loan, APR and payment amounts will be higher. If the down payment is less than 20%, mortgage insurance may be required and could increase the monthly payment and APR. Contact us for details. Additional loan programs may be available. Accuracy is not guaranteed, and all products may not be available in all borrower's geographical areas and are based on their individual situation. This is not a credit decision or a commitment to lend.
Sales History & Tax Summary for 446 Alberta Drive
Sales History
| Date | Price | Change |
|---|---|---|
| Currently not available. | ||
Tax Summary
| Tax Year | Estimated Market Value | Total Tax |
|---|---|---|
| Currently not available. | ||
Data powered by ATTOM Data Solutions. Copyright© 2025. Information deemed reliable but not guaranteed.
Schools
Schools nearby 446 Alberta Drive
| Schools in attendance boundaries | Grades | Distance | Rating |
|---|---|---|---|
| Loading... | |||
| Schools nearby | Grades | Distance | Rating |
|---|---|---|---|
| Loading... | |||
Data powered by ATTOM Data Solutions. Copyright© 2025. Information deemed reliable but not guaranteed.
The schools shown represent both the assigned schools and schools by distance based on local school and district attendance boundaries. Attendance boundaries change based on various factors and proximity does not guarantee enrollment eligibility. Please consult your real estate agent and/or the school district to confirm the schools this property is zoned to attend. Information is deemed reliable but not guaranteed.
SchoolDigger ® Rating
The SchoolDigger rating system is a 1-5 scale with 5 as the highest rating. SchoolDigger ranks schools based on test scores supplied by each state's Department of Education. They calculate an average standard score by normalizing and averaging each school's test scores across all tests and grades.
Coming soon properties will soon be on the market, but are not yet available for showings.