$349,900
4462 Bulrush Boulevard Shakopee, MN 55379
For Sale MLS# 7039153
4 beds 4 baths 2,382 sq ft Townhouse/Twinhome
Details for 4462 Bulrush Boulevard
MLS# 7039153
Description for 4462 Bulrush Boulevard, Shakopee, MN, 55379
This spacious, end-unit townhome is flooded with light from three walls of windows. One entire side of this home faces the Dean Lakes preserve with views of trees and wildlife. The balcony looks out across the neighborhood with a great view to watch for your company's arrival. Step out your front door and take the sidewalk right down to the play area and pools, continuing on you'll also access the association's maintained trails around Dean Lake! You'll love having quick access to 169, tons of great, local restaurants and nightlife, all the major retail shopping options, and don't forget about Shakopee's amazing bike trail system! With tons of indoor space and tons of fun at your doorstep, you're going to love calling this property home!
Listing Information
Property Type: Residential, Side by Side
Status: Active
Bedrooms: 4
Bathrooms: 4
Lot Size: 0.05 Acres
Square Feet: 2,382 sq ft
Year Built: 2009
Foundation: 960 sq ft
Garage: Yes
Stories: Split Entry (Bi-Level)
Property Attached: Yes
Subdivision: Dean Lakes 1st Add
County: Scott
Days On Market: 16
Construction Status: Previously Owned
School Information
District: 720 - Shakopee
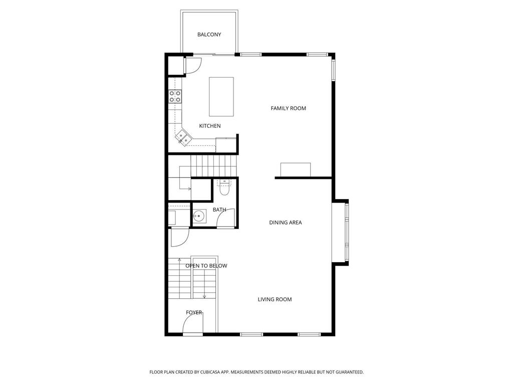
Room Information
Main Floor
Bathroom:
Dining Room: 11x11
Family Room: 14x17
Kitchen: 12x13
Living Room: 16x11
Upper Floor
Bathroom:
Bathroom:
Bedroom 1: 23x11
Bedroom 2: 12x12
Bedroom 3: 11x13
Lower Floor
Bathroom:
Bedroom 4: 12x16
Laundry:
Bathrooms
Full Baths: 2
3/4 Baths: 1
1/2 Baths: 1
Additonal Room Information
Dining: Eat In Kitchen,Informal Dining Room,Living/Dining Room
Laundry: In Unit, Washer Hookup, Laundry Closet, Electric Dryer Hookup, Lower Level
Bath Description: 3/4 Basement,Full Primary,Main Floor 1/2 Bath,Private Primary,Upper Level Full Bath
Interior Features
Square Footage above: 1,947 sq ft
Square Footage below: 435 sq ft
Appliances: Water Osmosis System, Stainless Steel Appliances, Gas Water Heater, Dishwasher, Disposal, Dryer, Microwave, Furnace Humidifier, Range, Refrigerator, Water Softener - Owned, Washer
Basement: Poured Concrete, Walkout, Finished (Livable), Egress Windows, Full
Additional Interior Features: Ceiling Fan(s), Natural Woodwork, Kitchen Window, Paneled Doors, Tile Floors, Kitchen Center Island, Cable, Washer/Dryer Hookup, Walk-In Closet, Vaulted Ceiling(s), 3 BR on One Level
Utilities
Water: City Water/Connected
Sewer: City Sewer/Connected
Cooling: Central
Heating: Forced Air, Natural Gas
Exterior / Lot Features
Attached Garage: Attached Garage
Garage Spaces: 2
Open Parking: 2
Parking Description: Guest Parking, Attached Garage, Electric, Driveway - Asphalt, Insulated Garage, Garage Door Opener, Tuckunder Garage, Storage, Paved Lot, Parking Lot, Garage Sq Ft - 460.0
Exterior: Brick Veneer, Vinyl
Roof: Age 8 Years or Less, Pitched, Architectural Shingle
Pool: Shared, Outdoor, Heated, Below Ground
Lot Dimensions: 0x0x0x0
Zoning: Residential-Single Family
Additional Exterior/Lot Features: Balcony, End Unit,Multi-Level, Corner Lot, In-Ground Sprinkler, Tree Coverage - Heavy, Zero Lot Line, Underground Utilities, Property Adjoins Public Land, Public Transit (w/in 6 blks), Road Frontage - Street Lights, Storm Sewer, Sidewalks, Private, Paved Streets, No Outlet/Dead End, Curbs
Community Features
Association Amenities: In-Ground Sprinkler System, Trails
HOA Dues Include: Snow Removal, Recreation Facility, Professional Mgmt, Sanitation, Shared Amenities, Outside Maintenance, Parking Space, Hazard Insurance, Other, Lawn Care, Building Exterior
Pets Allowed: Yes
Homeowners Association: Yes
Association Name: RowCal
HOA Dues: $394 / Monthly
Driving Directions
From 169 exit onto Mystic Lake Drive south, turn left onto Dean Lakes Blvd, turn right onto Dean Lakes Trail, turn left onto Coneflower Lane, turn right onto Bulrush Blvd. Home is at the end of the road; park in guest parking on your right just outside home.
Financial Considerations
Covenants/Deed Restrictions: Architecture Committee, Mandatory Owners Assoc, Pets - Number Limit, Pets - Weight/Height Limit, Rental Restrictions May Apply, Pets - Dogs Allowed, Pets - Cats Allowed
Tax/Property ID: 273710350
Tax Amount: 3934
Tax Year: 2026
HomeStead Description: Homesteaded
A broker reciprocity listing courtesy: Lakes Area Realty
The data relating to real estate for sale on this web site comes in part from the Broker Reciprocity℠ Program of the Regional Multiple Listing Service of Minnesota, Inc. Real estate listings held by brokerage firms other than Edina Realty, Inc. are marked with the Broker Reciprocity℠ logo or the Broker Reciprocity℠ thumbnail and detailed information about them includes the name of the listing brokers. Edina Realty, Inc. is not a Multiple Listing Service (MLS), nor does it offer MLS access. This website is a service of Edina Realty, Inc., a broker Participant of the Regional Multiple Listing Service of Minnesota, Inc. IDX information is provided exclusively for consumers personal, non-commercial use and may not be used for any purpose other than to identify prospective properties consumers may be interested in purchasing. Open House information is subject to change without notice. Information deemed reliable but not guaranteed.
Copyright 2026 Regional Multiple Listing Service of Minnesota, Inc. All Rights Reserved.
Payment Calculator
Interest rate and annual percentage rate (APR) are based on current market conditions, are for informational purposes only, are subject to change without notice and may be subject to pricing add-ons related to property type, loan amount, loan-to-value, credit score and other variables. Estimated closing costs used in the APR calculation are assumed to be paid by the borrower at closing. If the closing costs are financed, the loan, APR and payment amounts will be higher. If the down payment is less than 20%, mortgage insurance may be required and could increase the monthly payment and APR. Contact us for details. Additional loan programs may be available. Accuracy is not guaranteed, and all products may not be available in all borrower's geographical areas and are based on their individual situation. This is not a credit decision or a commitment to lend.
Sales History & Tax Summary for 4462 Bulrush Boulevard
Sales History
| Date | Price | |
|---|---|---|
| Currently not available. | ||
Tax Summary
| Tax Year | Estimated Market Value | Total Tax |
|---|---|---|
| Currently not available. | ||
Data powered by ATTOM Data Solutions. Copyright© 2026. Information deemed reliable but not guaranteed.
Schools
Schools nearby 4462 Bulrush Boulevard
| Schools in attendance boundaries | Grades | Distance | Rating |
|---|---|---|---|
| Loading... | |||
| Schools nearby | Grades | Distance | Rating |
|---|---|---|---|
| Loading... | |||
Data powered by ATTOM Data Solutions. Copyright© 2026. Information deemed reliable but not guaranteed.
The schools shown represent both the assigned schools and schools by distance based on local school and district attendance boundaries. Attendance boundaries change based on various factors and proximity does not guarantee enrollment eligibility. Please consult your real estate agent and/or the school district to confirm the schools this property is zoned to attend. Information is deemed reliable but not guaranteed.
SchoolDigger ® Rating
The SchoolDigger rating system is a 1-5 scale with 5 as the highest rating. SchoolDigger ranks schools based on test scores supplied by each state's Department of Education. They calculate an average standard score by normalizing and averaging each school's test scores across all tests and grades.
Coming soon properties will soon be on the market, but are not yet available for showings.