448 Sorrento Road Kissimmee, FL 34759
For Sale MLS# TB8395602
3 beds 2 baths 2,141 sq ft Single Family
Details for 448 Sorrento Road
MLS# TB8395602
Description for 448 Sorrento Road, Kissimmee, FL, 34759
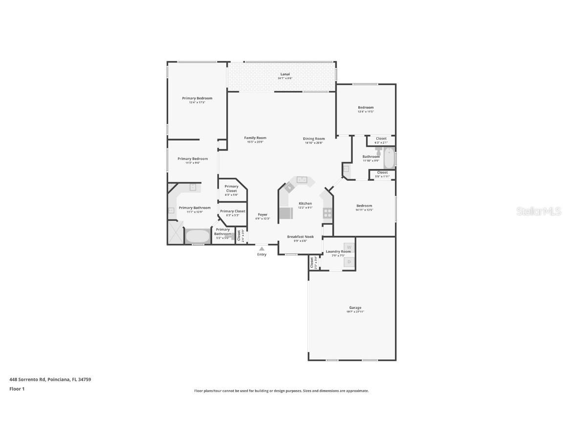
Live your best life in this bright and spacious beauty inside one of Central Florida’s most desirable 55+ gated communities! This well-maintained home is full of natural light, charm, and comfort—offering the perfect blend of indoor luxury and outdoor relaxation. Step inside to a wide-open layout where the living and dining rooms flow together effortlessly, making everyday living and entertaining a breeze. The cheerful kitchen features a cozy breakfast nook, pantry, and plenty of counter space to whip up your favorite meals. But the real wow factor is the oversized primary suite—your personal retreat! With sliding glass doors that open to the screened lanai, a bonus area perfect for an office or craft space, TWO walk-in closets, and a spacious private bath with dual sinks, a garden tub, and a separate shower, you’ll feel like every day is a staycation. On the other side of the home, two generously sized bedrooms are connected by a convenient Jack and Jill bathroom—ideal for guests or grandkids. Out front, the pavered driveway is lined with swaying palm trees and leads to a large 2-car garage. Out back, the screened lanai is your go-to spot for soaking up the Florida sunshine or sipping your morning coffee in peace. The HOA has you covered with cable TV, community pool access, security, grounds and pest maintenance, trash, sewer, and even a private road—giving you less to worry about and more time to enjoy life. All of this located in a beautifully landscaped golf course community with world-class amenities and just minutes from shopping, dining, and medical centers. Whether you're relaxing at home or connecting with neighbors, this home is your perfect launchpad for 55+ Florida living. Sunshine, style, and simplicity—this one checks all the boxes!
Listing Information
Property Type: Residential, Single Family Residence
Status: Active
Bedrooms: 3
Bathrooms: 2
Lot Size: 0.19 Acres
Square Feet: 2,141 sq ft
Year Built: 2006
Garage: Yes
Stories: 1 Story
Construction: Block,Stucco
Subdivision: Solivita Ph 06b
Foundation: Slab
County: Polk
School Information
Elementary: Palmetto Elementary
Middle: Lake Marion Creek Middle
High: Haines City Senior High
Room Information
Main Floor
Bedroom 3: 11x13
Bedroom 2: 13x14
Office: 9x11
Primary Bedroom: 17x13
Dinette: 6x9
Kitchen: 9x12
Dining Room: 20x14
Living Room: 20x15
Bathrooms
Full Baths: 2
Additonal Room Information
Laundry: Inside, Laundry Room
Interior Features
Appliances: Dishwasher, Microwave, Range, Refrigerator
Flooring: Carpet,Ceramic Tile,Laminate
Additional Interior Features: Ceiling Fan(s), Eat-In Kitchen, Split Bedrooms, Walk-In Closet(s), Living/Dining Room, Main Level Primary, Open Floorplan
Utilities
Water: Public
Sewer: Public Sewer
Other Utilities: Electricity Available,Municipal Utilities
Cooling: Central Air, Ceiling Fan(s)
Heating: Central
Exterior / Lot Features
Attached Garage: Attached Garage
Garage Spaces: 2
Roof: Shingle
Pool: Community
Additional Exterior/Lot Features: Enclosed, Rear Porch, Landscaped, Buyer Approval Required
Community Features
Community Features: Golf Carts OK, Park, Gated, Pool, Tennis Court(s), Golf
Security Features: Gated Community, Gated with Guard
HOA Dues Include: Reserve Fund, Trash, Security, Sewer, Cable TV, Recreation Facilities, Pool(s), Maintenance Grounds
Homeowners Association: Yes
HOA Dues: $276 / Monthly
Driving Directions
Head southwest on US-192/US-441 (Orange Blossom Trail) toward Cypress Parkway. Turn right onto Cypress Parkway. Turn left onto Marigold Avenue — this brings you into the Solivita/Bella Vianna gated community. Pass through the community’s guard gate. Continue straight onto Genoa Drive. Turn right onto Sorrento Road. Locate 448 Sorrento Rd on the right-hand side.
Financial Considerations
Terms: Cash,Conventional,FHA,VA Loan
Tax/Property ID: 28-27-13-933514-000960
Tax Amount: 3773.33
Tax Year: 2024
A broker reciprocity listing courtesy: KELLER WILLIAMS SUBURBAN TAMPA
Based on information provided by Stellar MLS as distributed by the MLS GRID. Information from the Internet Data Exchange is provided exclusively for consumers’ personal, non-commercial use, and such information may not be used for any purpose other than to identify prospective properties consumers may be interested in purchasing. This data is deemed reliable but is not guaranteed to be accurate by Edina Realty, Inc., or by the MLS. Edina Realty, Inc., is not a multiple listing service (MLS), nor does it offer MLS access.
Copyright 2026 Stellar MLS as distributed by the MLS GRID. All Rights Reserved.
Payment Calculator
Interest rate and annual percentage rate (APR) are based on current market conditions, are for informational purposes only, are subject to change without notice and may be subject to pricing add-ons related to property type, loan amount, loan-to-value, credit score and other variables. Estimated closing costs used in the APR calculation are assumed to be paid by the borrower at closing. If the closing costs are financed, the loan, APR and payment amounts will be higher. If the down payment is less than 20%, mortgage insurance may be required and could increase the monthly payment and APR. Contact us for details. Additional loan programs may be available. Accuracy is not guaranteed, and all products may not be available in all borrower's geographical areas and are based on their individual situation. This is not a credit decision or a commitment to lend.
Sales History & Tax Summary for 448 Sorrento Road
Sales History
| Date | Price | |
|---|---|---|
| Currently not available. | ||
Tax Summary
| Tax Year | Estimated Market Value | Total Tax |
|---|---|---|
| Currently not available. | ||
Data powered by ATTOM Data Solutions. Copyright© 2026. Information deemed reliable but not guaranteed.
Schools
Schools nearby 448 Sorrento Road
| Schools in attendance boundaries | Grades | Distance | Rating |
|---|---|---|---|
| Loading... | |||
| Schools nearby | Grades | Distance | Rating |
|---|---|---|---|
| Loading... | |||
Data powered by ATTOM Data Solutions. Copyright© 2026. Information deemed reliable but not guaranteed.
The schools shown represent both the assigned schools and schools by distance based on local school and district attendance boundaries. Attendance boundaries change based on various factors and proximity does not guarantee enrollment eligibility. Please consult your real estate agent and/or the school district to confirm the schools this property is zoned to attend. Information is deemed reliable but not guaranteed.
SchoolDigger ® Rating
The SchoolDigger rating system is a 1-5 scale with 5 as the highest rating. SchoolDigger ranks schools based on test scores supplied by each state's Department of Education. They calculate an average standard score by normalizing and averaging each school's test scores across all tests and grades.
Coming soon properties will soon be on the market, but are not yet available for showings.