45 New Water Oak Drive Palm Coast, FL 32137
For Sale MLS# FC313954
4 beds 3 baths 2,629 sq ft Single Family
Details for 45 New Water Oak Drive
MLS# FC313954
Description for 45 New Water Oak Drive, Palm Coast, FL, 32137
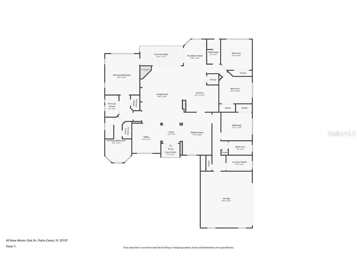
Spectacular Lakefront 4 Bedroom, 3 Bath Mediterranean-Inspired Home on One of the Largest, Most Private Lots in the Gated Community of Toscana. Experience elegance and tranquility in this stunning Portofino executive model — a ranch-style residence designed for comfort, style, and functionality. From the moment you arrive, the tile roof, paver driveway, and walkway set a tone of timeless sophistication. The home is surrounded by lush, manicured landscaping and fronts a beautiful nature preserve, ensuring privacy and scenic views from every angle. The tranquil lake behind the home enhances the sense of retreat, and there’s ample space to add a future pool if desired. Inside, dramatic volume ceilings, a wall of windows that fill the living areas with natural light, and rich walnut hardwood floors create a warm and inviting atmosphere. The kitchen features 42-inch soft-close cabinetry, granite countertops, a center island, and a brand-new glass-door refrigerator. Elegant contemporary lighting fixtures, custom beveled glass shelving, and plantation shutters complete the refined look. The master suite offers direct access to the lake, complemented by a custom ceiling fan and elegant finishes. The luxurious en-suite bath includes a soaking tub, walk-in shower, dual vanities, and large his-and-hers walk-in closets. A thoughtfully designed fourth bedroom and third bathroom are located separately from the main living areas — ideal as an in-law suite or private quarters for guests or older parents. The outdoor space features a large covered porch and expansive private grounds, offering endless possibilities for a pool, garden, or personalized outdoor retreat. Built with concrete block construction and energy-efficient standards, this home ensures both durability and comfort. Residents enjoy miles of scenic walking and biking trails, outdoor sports facilities, and the convenience of being just 10 minutes from the beach and minutes from shopping, dining, and I-95. Discover the perfect blend of refined design, privacy, and natural beauty in this exceptional Palm Coast residence — a home that truly stands out in one of the area’s most sought-after communities.
Listing Information
Property Type: Residential, Single Family Residence
Status: Active
Bedrooms: 4
Bathrooms: 3
Lot Size: 0.34 Acres
Square Feet: 2,629 sq ft
Year Built: 2015
Garage: Yes
Stories: 1 Story
Construction: Block,Stucco
Subdivision: Hidden Lakes Ph Ii
Builder: ABD
Foundation: Slab
County: Flagler
Room Information
Main Floor
Bathroom 4: 11x12.1
Bedroom 3: 12.4x12.11
Bedroom 2: 12x12.2
Living Room: 16.6x22.5
Primary Bedroom:
Kitchen:
Bathrooms
Full Baths: 3
Additonal Room Information
Laundry: Inside, Washer Hookup, Laundry Room, Electric Dryer Hookup
Interior Features
Appliances: Washer, Electric Water Heater, Range, Refrigerator, Microwave, Dishwasher, Disposal, Dryer
Flooring: Ceramic Tile,Wood
Doors/Windows: Window Treatments, ENERGY STAR Qualified Windows, Shutters, Blinds, Double Pane Windows
Additional Interior Features: Split Bedrooms, Walk-In Closet(s), Built-in Features, Window Treatments, Ceiling Fan(s), Separate/Formal Dining Room, Separate/Formal Living Room, Solid Surface Counters, Wood Cabinets, High Ceilings, Main Level Primary, Crown Molding
Utilities
Water: Public
Sewer: Public Sewer
Other Utilities: Cable Connected,Electricity Connected,Fiber Optic Available,High Speed Internet Available,Phone Available,Sewer Connected,Underground Utilities,Water Connected
Cooling: Ceiling Fan(s), Central Air, Attic Fan
Heating: Heat Pump, Electric, Central
Exterior / Lot Features
Attached Garage: Attached Garage
Garage Spaces: 2
Parking Description: Garage, Garage Door Opener, Oversized, Garage Faces Side
Roof: Tile
Lot View: Lake,Water
Additional Exterior/Lot Features: Sprinkler/Irrigation, Lighting, Covered, Patio, Porch, Rear Porch
Waterfront Details
Water Front Features: Lake Front
Community Features
Community Features: Sidewalks, Street Lights, Gated
Security Features: Smoke Detector(s), Gated Community
HOA Dues Include: Maintenance Grounds, Security
Homeowners Association: Yes
HOA Dues: $345 / Quarterly
Driving Directions
Palm Coast Pkwy, turn left onto Old kings Rd, turn left into Toscana, turn right onto New Water Oak Dr
Financial Considerations
Terms: Cash,Conventional,FHA
Tax/Property ID: 33-11-31-3061-00050-0220
Tax Amount: 5814
Tax Year: 2024
A broker reciprocity listing courtesy: VIRTUAL HOMES REALTY
Based on information provided by Stellar MLS as distributed by the MLS GRID. Information from the Internet Data Exchange is provided exclusively for consumers’ personal, non-commercial use, and such information may not be used for any purpose other than to identify prospective properties consumers may be interested in purchasing. This data is deemed reliable but is not guaranteed to be accurate by Edina Realty, Inc., or by the MLS. Edina Realty, Inc., is not a multiple listing service (MLS), nor does it offer MLS access.
Copyright 2025 Stellar MLS as distributed by the MLS GRID. All Rights Reserved.
Payment Calculator
Interest rate and annual percentage rate (APR) are based on current market conditions, are for informational purposes only, are subject to change without notice and may be subject to pricing add-ons related to property type, loan amount, loan-to-value, credit score and other variables. Estimated closing costs used in the APR calculation are assumed to be paid by the borrower at closing. If the closing costs are financed, the loan, APR and payment amounts will be higher. If the down payment is less than 20%, mortgage insurance may be required and could increase the monthly payment and APR. Contact us for details. Additional loan programs may be available. Accuracy is not guaranteed, and all products may not be available in all borrower's geographical areas and are based on their individual situation. This is not a credit decision or a commitment to lend.
Sales History & Tax Summary for 45 New Water Oak Drive
Sales History
| Date | Price | Change |
|---|---|---|
| Currently not available. | ||
Tax Summary
| Tax Year | Estimated Market Value | Total Tax |
|---|---|---|
| Currently not available. | ||
Data powered by ATTOM Data Solutions. Copyright© 2025. Information deemed reliable but not guaranteed.
Schools
Schools nearby 45 New Water Oak Drive
| Schools in attendance boundaries | Grades | Distance | Rating |
|---|---|---|---|
| Loading... | |||
| Schools nearby | Grades | Distance | Rating |
|---|---|---|---|
| Loading... | |||
Data powered by ATTOM Data Solutions. Copyright© 2025. Information deemed reliable but not guaranteed.
The schools shown represent both the assigned schools and schools by distance based on local school and district attendance boundaries. Attendance boundaries change based on various factors and proximity does not guarantee enrollment eligibility. Please consult your real estate agent and/or the school district to confirm the schools this property is zoned to attend. Information is deemed reliable but not guaranteed.
SchoolDigger ® Rating
The SchoolDigger rating system is a 1-5 scale with 5 as the highest rating. SchoolDigger ranks schools based on test scores supplied by each state's Department of Education. They calculate an average standard score by normalizing and averaging each school's test scores across all tests and grades.
Coming soon properties will soon be on the market, but are not yet available for showings.