4505 S Atlantic Avenue #305 Ponce Inlet, FL 32127
For Sale MLS# O6343242
2 beds 2 baths 1,200 sq ft Condo
Details for 4505 S Atlantic Avenue #305
MLS# O6343242
Description for 4505 S Atlantic Avenue #305, Ponce Inlet, FL, 32127
Wake up to the sights and sounds of the Atlantic Ocean in this beautifully updated 2 bed, 2 bath oceanfront condo in sought-after Ponce Inlet. With 1,200 sq ft of fully upgraded coastal charm, enjoy features like the bright and open kitchen that stuns with quartz countertops, all new appliances, built-in fridge and wine cooler, tile backsplash and shiplap at the island. Both bathrooms boast custom tile work, glass shower enclosures and modern vanities. Step out onto the private balcony and enjoy sunrises over the ocean in the mornings as well as sunsets over the river in the evenings. Unwind in the heated beachfront pool or head down to enjoy the fabulous beach front! Back inside you'll notice more upgrades such as brand new LVP Flooring throughout, custom electric blinds, crown molding, baseboards, electric hurricane shutters, furred ceilings with recessed lighting so you don't see any unsightly wires or chase coverings and a tankless hot water heater that saves you space and won't leak. Other amenities include covered parking, a large community room with kitchen, and newly surfaced tennis/pickleball courts. Discover a true Florida beach town with a rich history and loads of nature parks, water activities and waterfront restaurants to relax and unwind. You also get peace of mind because all engineering requirements have been met in this turnkey, low-maintenance, beach-ready Condo!
Listing Information
Property Type: Residential, Condominium
Status: Active
Bedrooms: 2
Bathrooms: 2
Lot Size: 2.92 Acres
Square Feet: 1,200 sq ft
Year Built: 1972
Garage: Yes
Stories: 1 Story
Construction: Block,Concrete
Subdivision: East Wind South & North
Foundation: Block,Concrete Perimeter
County: Volusia
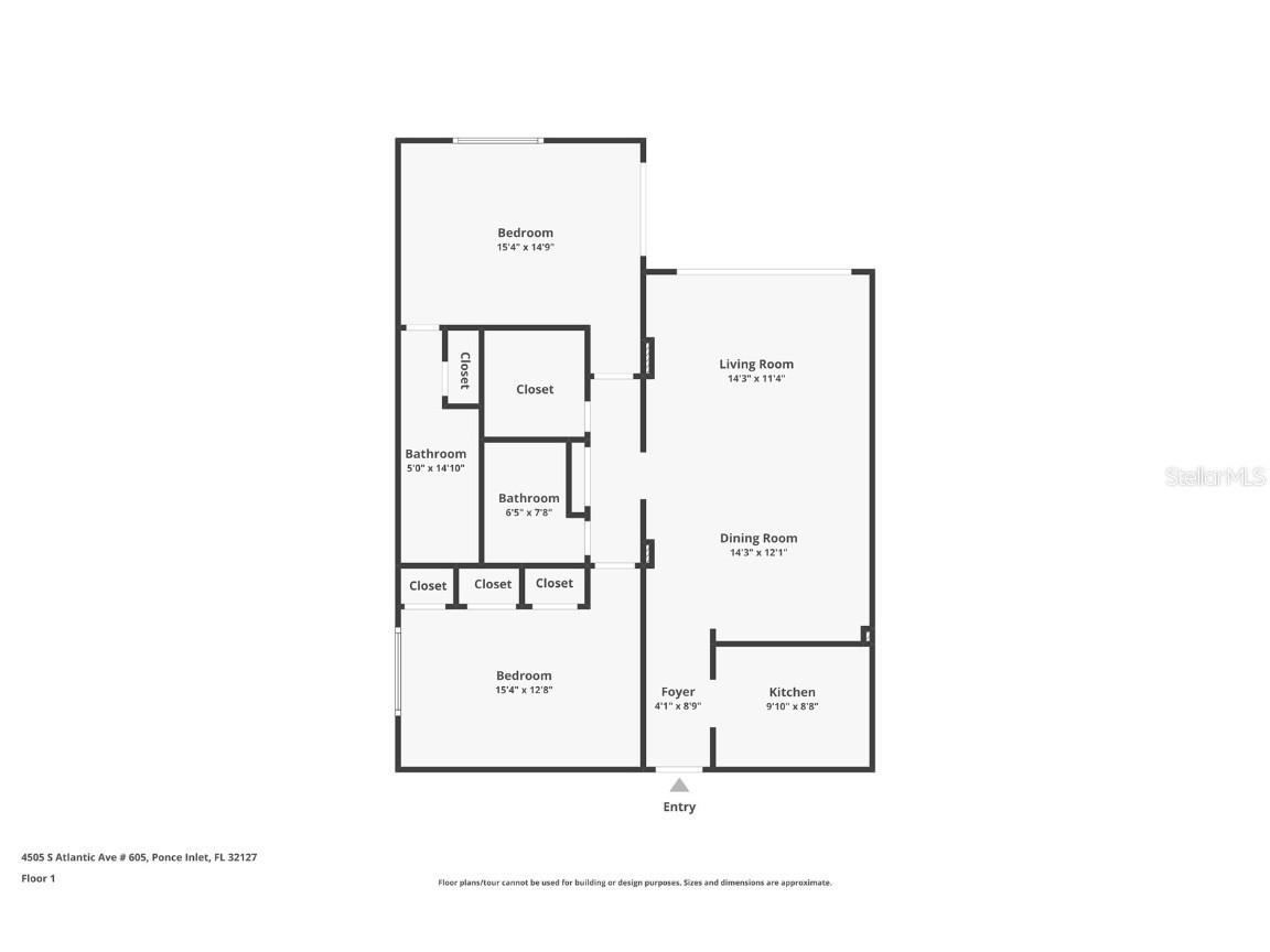
Room Information
Main Floor
Porch: 7.5x13.5
Bedroom 2: 11x15
Primary Bedroom: 13x15
Dining Room: 8.5x14
Kitchen: 9.5x9.5
Living Room: 14x14
Bathrooms
Full Baths: 2
Additonal Room Information
Laundry: Inside, Laundry Closet
Interior Features
Appliances: Built-In Oven, Washer, Dishwasher, Dryer, Microwave, Refrigerator
Flooring: Luxury Vinyl,Tile
Doors/Windows: Window Treatments
Additional Interior Features: Ceiling Fan(s), Built-in Features, Living/Dining Room, Main Level Primary, Crown Molding, Window Treatments, Solid Surface Counters, Stone Counters, Open Floorplan, Wood Cabinets
Utilities
Water: Public
Sewer: Public Sewer
Other Utilities: Electricity Connected,Sewer Connected,Water Connected
Cooling: Central Air, Ceiling Fan(s)
Heating: Central
Exterior / Lot Features
Attached Garage: Attached Garage
Garage Spaces: 1
Roof: Membrane
Pool: Community
Lot View: Beach,Intercoastal,Ocean,Water
Additional Exterior/Lot Features: Storm/Security Shutters, Awning(s), Lighting, Balcony, Tennis Court(s), Balcony
Waterfront Details
Water Front Features: Gulf Access, Ocean Access
Community Features
Community Features: Sidewalks, Pool, Tennis Court(s), Clubhouse
HOA Dues Include: Water, Trash, Recreation Facilities, Maintenance Grounds, Pest Control, Sewer, Association Management, Maintenance Structure, Pool(s)
Homeowners Association: Yes
HOA Dues: $1,060 / Monthly
Driving Directions
From Dunlawton Ave. turn south on S. Atlantic Ave. Drive approximately 3 miles and East Wind condo is on the left.
Financial Considerations
Tax/Property ID: 6313-06-01-3050
Tax Amount: 5846.08
Tax Year: 2024
A broker reciprocity listing courtesy: COMPASS FLORIDA LLC
Based on information provided by Stellar MLS as distributed by the MLS GRID. Information from the Internet Data Exchange is provided exclusively for consumers’ personal, non-commercial use, and such information may not be used for any purpose other than to identify prospective properties consumers may be interested in purchasing. This data is deemed reliable but is not guaranteed to be accurate by Edina Realty, Inc., or by the MLS. Edina Realty, Inc., is not a multiple listing service (MLS), nor does it offer MLS access.
Copyright 2026 Stellar MLS as distributed by the MLS GRID. All Rights Reserved.
Payment Calculator
Interest rate and annual percentage rate (APR) are based on current market conditions, are for informational purposes only, are subject to change without notice and may be subject to pricing add-ons related to property type, loan amount, loan-to-value, credit score and other variables. Estimated closing costs used in the APR calculation are assumed to be paid by the borrower at closing. If the closing costs are financed, the loan, APR and payment amounts will be higher. If the down payment is less than 20%, mortgage insurance may be required and could increase the monthly payment and APR. Contact us for details. Additional loan programs may be available. Accuracy is not guaranteed, and all products may not be available in all borrower's geographical areas and are based on their individual situation. This is not a credit decision or a commitment to lend.
Sales History & Tax Summary for 4505 S Atlantic Avenue #305
Sales History
| Date | Price | |
|---|---|---|
| Currently not available. | ||
Tax Summary
| Tax Year | Estimated Market Value | Total Tax |
|---|---|---|
| Currently not available. | ||
Data powered by ATTOM Data Solutions. Copyright© 2026. Information deemed reliable but not guaranteed.
Schools
Schools nearby 4505 S Atlantic Avenue #305
| Schools in attendance boundaries | Grades | Distance | Rating |
|---|---|---|---|
| Loading... | |||
| Schools nearby | Grades | Distance | Rating |
|---|---|---|---|
| Loading... | |||
Data powered by ATTOM Data Solutions. Copyright© 2026. Information deemed reliable but not guaranteed.
The schools shown represent both the assigned schools and schools by distance based on local school and district attendance boundaries. Attendance boundaries change based on various factors and proximity does not guarantee enrollment eligibility. Please consult your real estate agent and/or the school district to confirm the schools this property is zoned to attend. Information is deemed reliable but not guaranteed.
SchoolDigger ® Rating
The SchoolDigger rating system is a 1-5 scale with 5 as the highest rating. SchoolDigger ranks schools based on test scores supplied by each state's Department of Education. They calculate an average standard score by normalizing and averaging each school's test scores across all tests and grades.
Coming soon properties will soon be on the market, but are not yet available for showings.