4505 S Atlantic Avenue #605 Port Orange, FL 32127
For Sale MLS# FC311041
2 beds 2 baths 1,200 sq ft Condo
Details for 4505 S Atlantic Avenue #605
MLS# FC311041
Description for 4505 S Atlantic Avenue #605, Port Orange, FL, 32127
Move-In Ready Ponce Inlet Condo ** – Heated Pool, Tennis, Private Beach Access Fully furnished, fully updated, and just minutes from the Ponce Inlet Lighthouse & local favorites. Don’t miss this slice of paradise! #CoastalVibes #MoveInReady #VacationHomeOne of the BEST in Ponce Inlet! Coastal Luxury & Unmatched Views Wake up to stunning sunrises over the Atlantic and wind down with gorgeous sunsets over the Intracoastal Waterway—all from your beautifully renovated Ponce Inlet condo, located on a pristine No-Drive Beach! This fully updated unit is truly move-in ready and packed with upgrades: * Brand new tile flooring throughout *Fresh interior paint and elegant crown molding * New fans, blinds, and lighting fixtures * In-unit washer and dryer for added convenience The kitchen is a chef's dream with: > All new stainless steel appliances > New cabinetry with custom turtle pulls > Gleaming granite countertops Both bathrooms have been fully renovated with: + New tile, cabinetry, granite counters + Stylish new fixtures, toilets, and tiled showers Enjoy turn-key condo living—everything stays! Includes all furnishings, 3 TVs, stylish new furniture, fully stocked kitchen, beach chairs & toys, umbrellas... even the .... .... iron and ironing board! * Comes with an owners underground parking space This well-maintained building offers: - Heated beachfront pool - Tennis & Pickleball courts - Private beach access, new staircase & seawall - Security cameras, gated entry, repaved parking, and a spacious community room - Pet-friendly and a 30-day rental minimum Perfectly located, a short walk to Racing's North Turn (a local favorite beachfront restaurant), minutes from the Ponce Inlet Lighthouse, parks, dog beach, fishing charters, and the Marine Science Center. Don't miss this rare opportunity to own a slice of Florida paradise!
Listing Information
Property Type: Residential, Condominium
Status: Active
Bedrooms: 2
Bathrooms: 2
Lot Size: 2.92 Acres
Square Feet: 1,200 sq ft
Year Built: 1972
Garage: Yes
Stories: 7
Construction: Concrete
Subdivision: East Wind Condo South
Foundation: Concrete Perimeter
County: Volusia
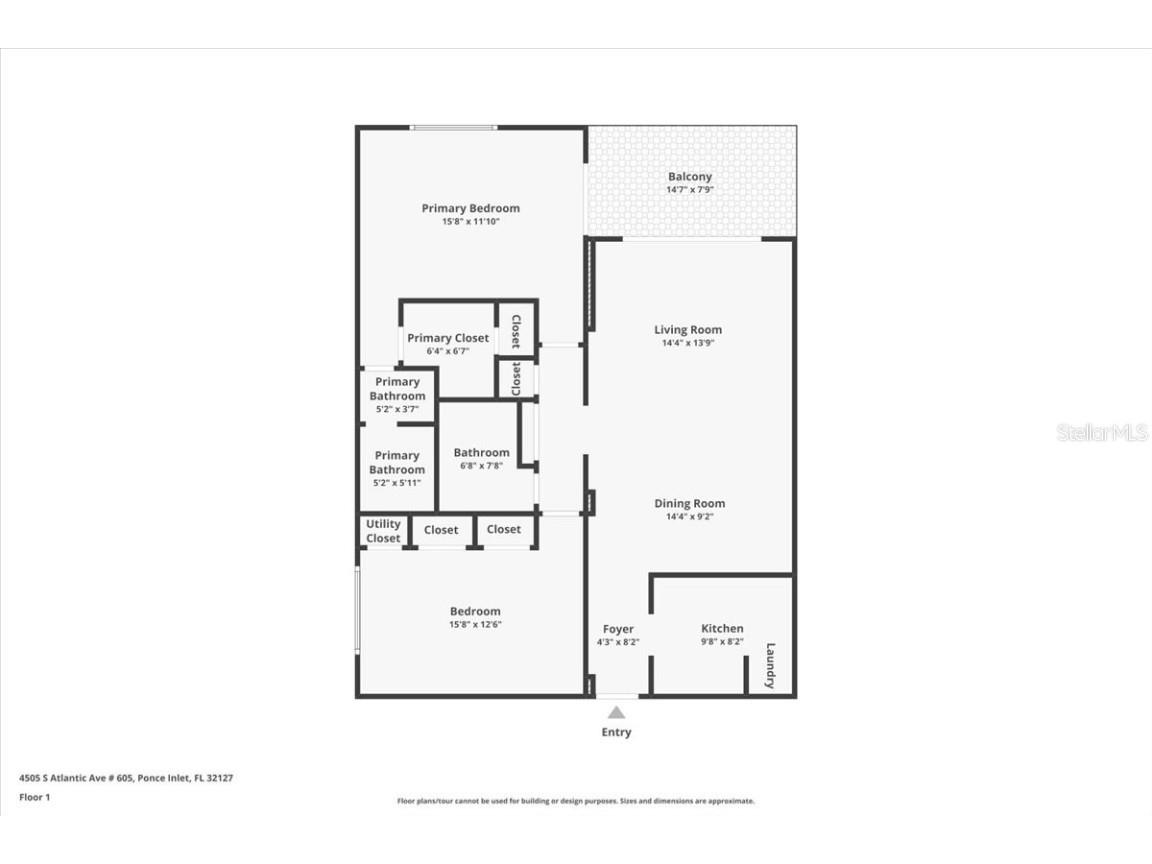
Room Information
Main Floor
Kitchen: 9x10
Great Room: 12x26
Bedroom 2: 9x14
Primary Bedroom: 11x14
Bathrooms
Full Baths: 2
Additonal Room Information
Laundry: Inside
Interior Features
Appliances: Electric Water Heater, Washer, Microwave, Range, Refrigerator, Dishwasher, Disposal, Dryer
Flooring: Tile
Doors/Windows: Window Treatments
Additional Interior Features: Ceiling Fan(s), Split Bedrooms, Walk-In Closet(s), Window Treatments, Stone Counters, Living/Dining Room
Utilities
Water: Public
Sewer: Public Sewer
Other Utilities: Cable Connected,Municipal Utilities
Cooling: Central Air, Ceiling Fan(s)
Heating: Central
Exterior / Lot Features
Attached Garage: Attached Garage
Garage Spaces: 1
Roof: Other, Membrane
Pool: Community, In Ground
Lot View: Beach,Intercoastal,Water
Additional Exterior/Lot Features: Balcony, Balcony
Waterfront Details
Water Front Features: Beach Access
Community Features
Community Features: Sidewalks, Pool, Clubhouse, Gated, Community Mailbox
Security Features: Gated Community
HOA Dues Include: Association Management, Taxes, Recreation Facilities, Security, Sewer, Internet, Water, Trash, Insurance, Reserve Fund, Common Areas, Maintenance Structure, Maintenance Grounds, Pest Control, Pool(s)
Driving Directions
Go East from I-95 on Dunlawton exit to A1A , turn R (south) to 4505 A Atlantic
Financial Considerations
Tax/Property ID: 6313-06-01-6050
Tax Amount: 6075.66
Tax Year: 2024
A broker reciprocity listing courtesy: RE/MAX SIGNATURE
Based on information provided by Stellar MLS as distributed by the MLS GRID. Information from the Internet Data Exchange is provided exclusively for consumers’ personal, non-commercial use, and such information may not be used for any purpose other than to identify prospective properties consumers may be interested in purchasing. This data is deemed reliable but is not guaranteed to be accurate by Edina Realty, Inc., or by the MLS. Edina Realty, Inc., is not a multiple listing service (MLS), nor does it offer MLS access.
Copyright 2026 Stellar MLS as distributed by the MLS GRID. All Rights Reserved.
Payment Calculator
Interest rate and annual percentage rate (APR) are based on current market conditions, are for informational purposes only, are subject to change without notice and may be subject to pricing add-ons related to property type, loan amount, loan-to-value, credit score and other variables. Estimated closing costs used in the APR calculation are assumed to be paid by the borrower at closing. If the closing costs are financed, the loan, APR and payment amounts will be higher. If the down payment is less than 20%, mortgage insurance may be required and could increase the monthly payment and APR. Contact us for details. Additional loan programs may be available. Accuracy is not guaranteed, and all products may not be available in all borrower's geographical areas and are based on their individual situation. This is not a credit decision or a commitment to lend.
Sales History & Tax Summary for 4505 S Atlantic Avenue #605
Sales History
| Date | Price | |
|---|---|---|
| Currently not available. | ||
Tax Summary
| Tax Year | Estimated Market Value | Total Tax |
|---|---|---|
| Currently not available. | ||
Data powered by ATTOM Data Solutions. Copyright© 2026. Information deemed reliable but not guaranteed.
Schools
Schools nearby 4505 S Atlantic Avenue #605
| Schools in attendance boundaries | Grades | Distance | Rating |
|---|---|---|---|
| Loading... | |||
| Schools nearby | Grades | Distance | Rating |
|---|---|---|---|
| Loading... | |||
Data powered by ATTOM Data Solutions. Copyright© 2026. Information deemed reliable but not guaranteed.
The schools shown represent both the assigned schools and schools by distance based on local school and district attendance boundaries. Attendance boundaries change based on various factors and proximity does not guarantee enrollment eligibility. Please consult your real estate agent and/or the school district to confirm the schools this property is zoned to attend. Information is deemed reliable but not guaranteed.
SchoolDigger ® Rating
The SchoolDigger rating system is a 1-5 scale with 5 as the highest rating. SchoolDigger ranks schools based on test scores supplied by each state's Department of Education. They calculate an average standard score by normalizing and averaging each school's test scores across all tests and grades.
Coming soon properties will soon be on the market, but are not yet available for showings.