$750,000
4508 Bahama Drive Hernando Beach, FL 34607 - GULF
For Sale MLS# W7880779
3 beds 3 baths 2,610 sq ft Single Family
Details for 4508 Bahama Drive
MLS# W7880779
Description for 4508 Bahama Drive, Hernando Beach, FL, 34607 - GULF
CHANGE YOUR LIFESTYLE AT THE SEAHORSE HOUSE A Waterfront Gem in Quaint Hernando Beach! Welcome to The Seahorse House, where coastal charm meets modern comfort! This Beautiful Waterfront Home is perfectly situated on a corner lot offering quick, direct access to the Open Gulf — no fixed bridges, no long canal rides, just instant adventure! The iconic Seahorse mailbox sets the tone for the coastal lifestyle you've been dreaming of. Step inside the elegant foyer and you'll immediately appreciate the open floor plan, designed to maximize natural light and those incredible water views. The living room, dining room, and family/game room flow seamlessly, offering plenty of space for entertaining or relaxing after a day on the water. The Chef's Kitchen is a Showstopper — featuring a Commercial-Grade Gas Stove, Gorgeous Marble Counters, a large Island/Breakfast Bar, and ample storage including two built-in pantries with pull-out drawers and an additional closet pantry. The dining room overlooks the waterfront, creating the perfect setting for Dinners or Weekend Brunches. Upstairs, step out to the Upper Porch, an entertainer's dream with a Summer Kitchen and Granite Bar, Perfect for Grilling and Gathering while taking in the Breezes off the water. Right next to it, the Upper Deck offers a Relaxing Retreat for Morning Coffee, Colorful Sunrises, or even Rocket Launches lighting up the Coastal Sky. The home offers 3 spacious bedrooms, 2.5 bathrooms, a 2-car garage, plus versatile spaces including a family/game room and a dedicated exercise room. Boaters will love the Boat-Flex floating dock with swim ladder, ideal for launching your next Gulf adventure or taking a quick dip. Major upgrades include a 2024 HVAC, 2021 metal roof, and a 2017 seawall for peace of mind and value. 3M Film on the Windows, New Front Doors. Love extra space? The lot next door is also for sale for 250,000 — the perfect opportunity to expand your coastal footprint or keep for privacy. Hernando Beach offers everything you love about Florida's Nature Coast — marinas, waterfront restaurants, gift shops, and a laid-back boating community. Plus, you're just minutes from the famous Weeki Wachee River, where manatees and kayakers share the sparkling waters. The Seahorse House isn't just a home — it's a lifestyle. Come experience coastal living at its finest!
Listing Information
Property Type: Residential, Single Family Residence
Status: Active
Bedrooms: 3
Bathrooms: 3
Lot Size: 0.17 Acres
Square Feet: 2,610 sq ft
Year Built: 2003
Garage: Yes
Stories: 2 Story
Construction: Stucco,Vinyl Siding,Wood Frame
Subdivision: Gulf Coast Ret
Foundation: Pillar/Post/Pier,Slab
County: Hernando
School Information
Elementary: Westside Elementary-Hn
Middle: Fox Chapel Middle School
High: Weeki Wachee High School
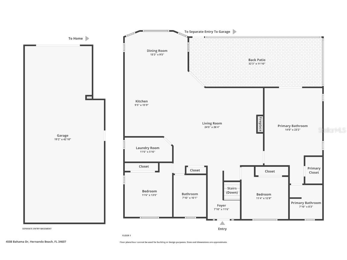
Room Information
Upper Floor
Bedroom 3: 11x12
Bedroom 2: 10x11
Primary Bedroom: 16x14
Dining Room: 15.5x10
Kitchen: 17x15
Living Room: 25x16
Bathrooms
Full Baths: 2
1/2 Baths: 1
Additonal Room Information
Laundry: Laundry Room
Interior Features
Appliances: Dishwasher, Dryer, Microwave, Range, Refrigerator, Washer, Gas Water Heater
Flooring: Tile,Vinyl
Additional Interior Features: Walk-In Closet(s), Ceiling Fan(s), Open Floorplan, Stone Counters
Utilities
Water: Public
Sewer: Public Sewer
Other Utilities: Cable Available,High Speed Internet Available
Cooling: Ceiling Fan(s), Central Air
Heating: Central, Electric
Exterior / Lot Features
Attached Garage: Attached Garage
Garage Spaces: 2
Roof: Metal
Lot View: Canal,Water
Additional Exterior/Lot Features: Balcony, Balcony, Corner Lot
Waterfront Details
Standard Water Body: GULF
Water Front Features: Gulf Access, Canal Access
Driving Directions
Shoal Line Blvd to Calienta to Flamingo to Bahama - Located on the Corner of Flamingo and Bahama
Financial Considerations
Terms: Cash,Conventional,FHA,VA Loan
Tax/Property ID: R12-223-16-2010-0440-0220
Tax Amount: 3975
Tax Year: 2024
A broker reciprocity listing courtesy: RE/MAX ALLIANCE GROUP
Based on information provided by Stellar MLS as distributed by the MLS GRID. Information from the Internet Data Exchange is provided exclusively for consumers’ personal, non-commercial use, and such information may not be used for any purpose other than to identify prospective properties consumers may be interested in purchasing. This data is deemed reliable but is not guaranteed to be accurate by Edina Realty, Inc., or by the MLS. Edina Realty, Inc., is not a multiple listing service (MLS), nor does it offer MLS access.
Copyright 2025 Stellar MLS as distributed by the MLS GRID. All Rights Reserved.
Payment Calculator
Interest rate and annual percentage rate (APR) are based on current market conditions, are for informational purposes only, are subject to change without notice and may be subject to pricing add-ons related to property type, loan amount, loan-to-value, credit score and other variables. Estimated closing costs used in the APR calculation are assumed to be paid by the borrower at closing. If the closing costs are financed, the loan, APR and payment amounts will be higher. If the down payment is less than 20%, mortgage insurance may be required and could increase the monthly payment and APR. Contact us for details. Additional loan programs may be available. Accuracy is not guaranteed, and all products may not be available in all borrower's geographical areas and are based on their individual situation. This is not a credit decision or a commitment to lend.
Sales History & Tax Summary for 4508 Bahama Drive
Sales History
| Date | Price | Change |
|---|---|---|
| Currently not available. | ||
Tax Summary
| Tax Year | Estimated Market Value | Total Tax |
|---|---|---|
| Currently not available. | ||
Data powered by ATTOM Data Solutions. Copyright© 2025. Information deemed reliable but not guaranteed.
Schools
Schools nearby 4508 Bahama Drive
| Schools in attendance boundaries | Grades | Distance | Rating |
|---|---|---|---|
| Loading... | |||
| Schools nearby | Grades | Distance | Rating |
|---|---|---|---|
| Loading... | |||
Data powered by ATTOM Data Solutions. Copyright© 2025. Information deemed reliable but not guaranteed.
The schools shown represent both the assigned schools and schools by distance based on local school and district attendance boundaries. Attendance boundaries change based on various factors and proximity does not guarantee enrollment eligibility. Please consult your real estate agent and/or the school district to confirm the schools this property is zoned to attend. Information is deemed reliable but not guaranteed.
SchoolDigger ® Rating
The SchoolDigger rating system is a 1-5 scale with 5 as the highest rating. SchoolDigger ranks schools based on test scores supplied by each state's Department of Education. They calculate an average standard score by normalizing and averaging each school's test scores across all tests and grades.
Coming soon properties will soon be on the market, but are not yet available for showings.