4515 106th Street W Bradenton, FL 34210
For Sale MLS# A4670900
3 beds 2 baths 1,344 sq ft Single Family
Details for 4515 106th Street W
MLS# A4670900
Description for 4515 106th Street W, Bradenton, FL, 34210
PRICE IMPROVEMENT on this spacious and updated three bedroom two bath home. This is a boaters paradise with views of Sarasota Bay and deeded water access. The home sits a mere 2.2 miles by car to Anna Maria Island's beaches and less than a mile to the quaint fishing village of Cortez. This property sits on a large lot with plenty of room for a boat with trailer. The neighborhood has no age restrictions, and is HOA free. New floors, cabinets, quartz counter tops and appliances. All rooms are furnished except for the third bedroom, which could be a flex space. This is a rare opportunity to own the perfect Florida vacation home or investment property.
Listing Information
Property Type: Residential, Mobile Home
Status: Active
Bedrooms: 3
Bathrooms: 2
Lot Size: 0.22 Acres
Square Feet: 1,344 sq ft
Year Built: 1970
Stories: 1 Story
Construction: Vinyl Siding
Subdivision: Battersby
Foundation: Crawlspace,Pillar/Post/Pier
County: Manatee
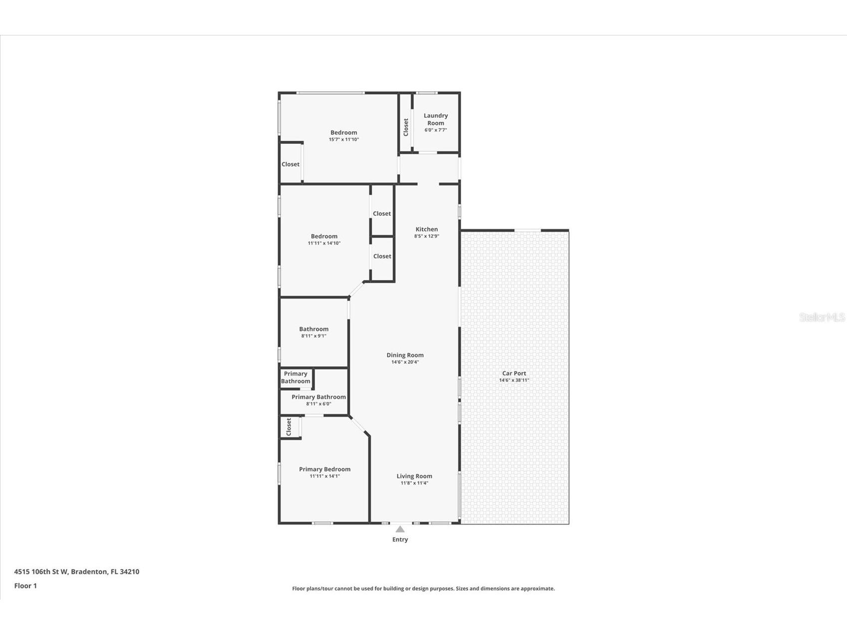
Room Information
Main Floor
Laundry: 7x8
Kitchen: 12x8.5
Living Room: 11.5x11.5
Dining Room: 20x14
Bathroom 2: 8.5x9
Bathroom 1: 8.5x6
Bedroom 2: 15x11.5
Primary Bedroom: 14.5x14
Bedroom 1: 11.5x11.5
Bathrooms
Full Baths: 2
Additonal Room Information
Laundry: Laundry Room, Electric Dryer Hookup, Inside, Washer Hookup
Interior Features
Appliances: Range, Refrigerator, Washer, Ice Maker, Tankless Water Heater, Electric Water Heater, Dishwasher, Disposal, Dryer, Freezer, Microwave
Flooring: Luxury Vinyl
Basement: Crawl Space
Doors/Windows: Window Treatments
Additional Interior Features: Window Treatments, Ceiling Fan(s), Main Level Primary, Living/Dining Room, Open Floorplan, Solid Surface Counters
Utilities
Sewer: Public Sewer
Other Utilities: Cable Available,Sewer Connected,Water Connected,Water Not Available
Cooling: Ceiling Fan(s), Central Air, Zoned
Heating: Electric
Exterior / Lot Features
Roof: Membrane
Lot View: Bay,Water
Additional Exterior/Lot Features: Sprinkler/Irrigation, Lighting, Front Porch, Patio, Landscaped, Flood Zone
Waterfront Details
Water Front Features: Bay Access
Community Features
Community Features: Street Lights
Driving Directions
From Cortez Rd, turn South on 106th St W. House is on the left-hand side, about 3/4 of the way to the end of the street.
Financial Considerations
Terms: Cash,Conventional
Tax/Property ID: 7589300008
Tax Amount: 1580
Tax Year: 2024
A broker reciprocity listing courtesy: SHIRLEY INTERNATIONAL REALTY
Based on information provided by Stellar MLS as distributed by the MLS GRID. Information from the Internet Data Exchange is provided exclusively for consumers’ personal, non-commercial use, and such information may not be used for any purpose other than to identify prospective properties consumers may be interested in purchasing. This data is deemed reliable but is not guaranteed to be accurate by Edina Realty, Inc., or by the MLS. Edina Realty, Inc., is not a multiple listing service (MLS), nor does it offer MLS access.
Copyright 2026 Stellar MLS as distributed by the MLS GRID. All Rights Reserved.
Payment Calculator
Interest rate and annual percentage rate (APR) are based on current market conditions, are for informational purposes only, are subject to change without notice and may be subject to pricing add-ons related to property type, loan amount, loan-to-value, credit score and other variables. Estimated closing costs used in the APR calculation are assumed to be paid by the borrower at closing. If the closing costs are financed, the loan, APR and payment amounts will be higher. If the down payment is less than 20%, mortgage insurance may be required and could increase the monthly payment and APR. Contact us for details. Additional loan programs may be available. Accuracy is not guaranteed, and all products may not be available in all borrower's geographical areas and are based on their individual situation. This is not a credit decision or a commitment to lend.
Sales History & Tax Summary for 4515 106th Street W
Sales History
| Date | Price | |
|---|---|---|
| Currently not available. | ||
Tax Summary
| Tax Year | Estimated Market Value | Total Tax |
|---|---|---|
| Currently not available. | ||
Data powered by ATTOM Data Solutions. Copyright© 2026. Information deemed reliable but not guaranteed.
Schools
Schools nearby 4515 106th Street W
| Schools in attendance boundaries | Grades | Distance | Rating |
|---|---|---|---|
| Loading... | |||
| Schools nearby | Grades | Distance | Rating |
|---|---|---|---|
| Loading... | |||
Data powered by ATTOM Data Solutions. Copyright© 2026. Information deemed reliable but not guaranteed.
The schools shown represent both the assigned schools and schools by distance based on local school and district attendance boundaries. Attendance boundaries change based on various factors and proximity does not guarantee enrollment eligibility. Please consult your real estate agent and/or the school district to confirm the schools this property is zoned to attend. Information is deemed reliable but not guaranteed.
SchoolDigger ® Rating
The SchoolDigger rating system is a 1-5 scale with 5 as the highest rating. SchoolDigger ranks schools based on test scores supplied by each state's Department of Education. They calculate an average standard score by normalizing and averaging each school's test scores across all tests and grades.
Coming soon properties will soon be on the market, but are not yet available for showings.