$850,000
4545 Target Boulevard Kissimmee, FL 34746
For Sale MLS# O6334352
9 beds 5 baths 4,289 sq ft Single Family
Details for 4545 Target Boulevard
MLS# O6334352
Description for 4545 Target Boulevard, Kissimmee, FL, 34746
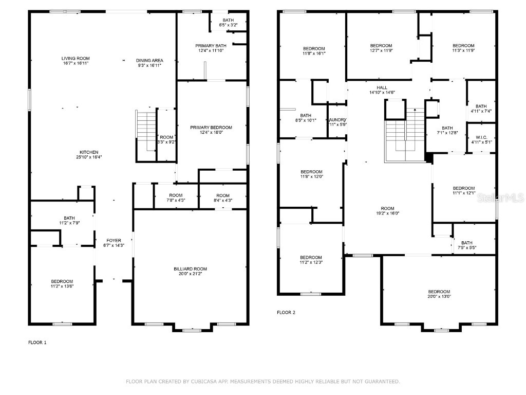
Best investment value in the community! Introducing a fully furnished and equipped short-term rental home in the coveted resort community, The Cove at Storey Lake - One of the highest performing vacation communities in the Orlando area - that is suitable for every vacationer's needs! Located just 10 minutes to Walt Disney World and 15 minutes to Universal Studios, this property presents itself as an excellent opportunity for those looking to capitalize on the growing demand for vacation rentals in the Orlando area. This spacious single-family home - the Santiago model by Lennar Homes - boasts 9 bedrooms and 5 bathrooms, includes an oversized game room and a second-story loft, and offers the perfect arrangement for large groups and families, sleeping up to 25 guests at once! The property's generous living space ensures ultimate comfort and flexibility for groups of any size, with the private pool and oversized lanai offering a complete indoor-outdoor living experience - every vacationer's dream! The home includes access to Storey Lake's world-class amenities, including a resort style pool, lazy river, water slides, a splash pad, and a full-service tiki bar, serving food and drinks. Additionally, you'll have access to the indoor fitness center, mini-golf courses, and a children’s playground. A free golf-cart shuttle service will help your guests commute between their vacation rental and the included amenities. The Storey Lake community's reputation for quality living and proximity to popular attractions make it an attractive choice for both investors and vacationers looking for the best experience in the area. Don't miss out on the chance to own a lucrative turn-key investment property in one of Orlando's premier communities. Schedule a private viewing today!
Listing Information
Property Type: Residential, Single Family Residence
Status: Active
Bedrooms: 9
Bathrooms: 5
Lot Size: 0.13 Acres
Square Feet: 4,289 sq ft
Year Built: 2020
Stories: 2 Story
Construction: Block,Stucco
Subdivision: Cove/Storey Lake Ii
Foundation: Slab
County: Osceola
School Information
Elementary: Floral Ridge Elementary
Middle: Kissimmee Middle
High: Celebration High
Room Information
Main Floor
Primary Bedroom: 40x12
Living Room: 20x20
Kitchen: 20x12
Bathrooms
Full Baths: 5
Additonal Room Information
Laundry: Inside
Interior Features
Appliances: Washer, Dishwasher, Dryer, Microwave, Range, Refrigerator
Flooring: Carpet,Ceramic Tile
Doors/Windows: Window Treatments
Additional Interior Features: Walk-In Closet(s), Kitchen/Family Room Combo, Open Floorplan, Living/Dining Room, Window Treatments
Utilities
Water: Public
Sewer: Public Sewer
Other Utilities: Cable Available,Electricity Available,Phone Available
Cooling: Central Air
Heating: Central
Exterior / Lot Features
Parking Description: on street
Roof: Shingle
Pool: Screen Enclosure, In Ground, Association
Additional Exterior/Lot Features: Screened, Covered
Community Features
Community Features: Sidewalks, Street Lights, Gated
Security Features: Gated Community
Association Amenities: Pool, Tennis Court(s), Playground, Clubhouse, Fitness Center
Homeowners Association: Yes
HOA Dues: $541 / Monthly
Driving Directions
From the Florida 429 Toll S Ramp to Tampa, merge onto FL-429 S. Keep left at the fork to stay on FL-429 S and take Exit 8 toward Disney World. Keep left, follow signed for Disney World. Turn right onto W Buena Vista Dr. Turn right onto the ramp to Disney's Hollywood Studios/ESPN Wide World of Sports/I-4/US-192/Florida's Turnpike. Merge onto Osceola Pkwy and keep left on Osceola Pkwy. Turn right onto Storey Lake Blvd. At the traffic circle, take the 3rd exit onto Natures Ridge Dr. Exit the traffic circle onto Natures Ridge Dr. Turn right onto Storey Cove Ave and then turn left onto Target Blvd.
Financial Considerations
Terms: Cash,Conventional,FHA,VA Loan
Tax/Property ID: 12-25-28-5113-0001-1670
Tax Amount: 10732.91
Tax Year: 2023
A broker reciprocity listing courtesy: REAL BROKER, LLC
Based on information provided by Stellar MLS as distributed by the MLS GRID. Information from the Internet Data Exchange is provided exclusively for consumers’ personal, non-commercial use, and such information may not be used for any purpose other than to identify prospective properties consumers may be interested in purchasing. This data is deemed reliable but is not guaranteed to be accurate by Edina Realty, Inc., or by the MLS. Edina Realty, Inc., is not a multiple listing service (MLS), nor does it offer MLS access.
Copyright 2025 Stellar MLS as distributed by the MLS GRID. All Rights Reserved.
Payment Calculator
Interest rate and annual percentage rate (APR) are based on current market conditions, are for informational purposes only, are subject to change without notice and may be subject to pricing add-ons related to property type, loan amount, loan-to-value, credit score and other variables. Estimated closing costs used in the APR calculation are assumed to be paid by the borrower at closing. If the closing costs are financed, the loan, APR and payment amounts will be higher. If the down payment is less than 20%, mortgage insurance may be required and could increase the monthly payment and APR. Contact us for details. Additional loan programs may be available. Accuracy is not guaranteed, and all products may not be available in all borrower's geographical areas and are based on their individual situation. This is not a credit decision or a commitment to lend.
Sales History & Tax Summary for 4545 Target Boulevard
Sales History
| Date | Price | Change |
|---|---|---|
| Currently not available. | ||
Tax Summary
| Tax Year | Estimated Market Value | Total Tax |
|---|---|---|
| Currently not available. | ||
Data powered by ATTOM Data Solutions. Copyright© 2025. Information deemed reliable but not guaranteed.
Schools
Schools nearby 4545 Target Boulevard
| Schools in attendance boundaries | Grades | Distance | Rating |
|---|---|---|---|
| Loading... | |||
| Schools nearby | Grades | Distance | Rating |
|---|---|---|---|
| Loading... | |||
Data powered by ATTOM Data Solutions. Copyright© 2025. Information deemed reliable but not guaranteed.
The schools shown represent both the assigned schools and schools by distance based on local school and district attendance boundaries. Attendance boundaries change based on various factors and proximity does not guarantee enrollment eligibility. Please consult your real estate agent and/or the school district to confirm the schools this property is zoned to attend. Information is deemed reliable but not guaranteed.
SchoolDigger ® Rating
The SchoolDigger rating system is a 1-5 scale with 5 as the highest rating. SchoolDigger ranks schools based on test scores supplied by each state's Department of Education. They calculate an average standard score by normalizing and averaging each school's test scores across all tests and grades.
Coming soon properties will soon be on the market, but are not yet available for showings.