$339,000
4555 Forest Wood Trail #23 Sarasota, FL 34241
For Sale MLS# A4672017
3 beds 3 baths 2,124 sq ft Townhouse/Twinhome
Details for 4555 Forest Wood Trail #23
MLS# A4672017
Description for 4555 Forest Wood Trail #23, Sarasota, FL, 34241
This is the one * WELCOME TO THIS LOVINGLY RENOVATED & THOUGHTFULLY REIMAGINED HOME IN THE GATED COMMUNITY OF HAMMOCKS II OF BENT TREE * NEW ROOF IS 2 YEARS OLD * NEW A/C IS 5 YEARS OLD * THIS COMPLETELY REMODELED HOME SHOULD BE AT THE TOP OF YOUR LIST * MUST SEE PANORAMIC LAKE VIEWS OF BOTH THE LAKE & GOLF COURSE * Open the front door to VOLUME CEILINGS SHOWCASING AN ABUNDANCE OF NATURAL LIGHT * 3 Bedrooms & 2.5 Baths * Live downstairs and save the upstairs for guests & grand kids * UPSTAIRS you'll find 2 Bedrooms & 1 Full Bath * Open floorplan * The FIRST FLOOR PRIMARY SUITE features a NEW SPA-STYLE BATH & spacious walk-in closet * ZONED A/C - one for downstairs & one for up * Inside Washer & Dryer (NOT in the garage) * Living Room with Two Story vaulted ceilings * Formal Dining Room * The NEW Chef's Kitchen is a must see with Solid Wood Cabinets with Soft Close Drawers, QUARTZ Countertops, Center Island with Seating and Upgraded Stainless Steel Appliances * The current homeowner has painstakingly overseen every step of the renovations from the kitchen to the bathrooms to NEW Flooring, NEW Paint, NEW Lighting & Fixtures - the list goes on & on * No headaches for you, the renovation is done! * Relax on your PRIVATE FRONT PATIO OR EVEN THE BACKYARD PATIO * Enjoy a short walk to the COMMUNITY HEATED POOL * NO CDD FEES * Close to hospitals, shopping, dining, multiple golf courses, and 20 minutes to either Siesta Key Beach and UTC Mall * Enjoy your Sarasota lifestyle * THIS UPDATED HOME IS A RARE FIND * One look & you'll fall in love *
Listing Information
Property Type: Residential, Townhouse
Status: Active
Bedrooms: 3
Bathrooms: 3
Lot Size: 0.05 Acres
Square Feet: 2,124 sq ft
Year Built: 1981
Garage: Yes
Stories: 2 Story
Construction: Wood Siding,Wood Frame
Subdivision: Hammocks Ii, Bent Tree
Foundation: Slab
County: Sarasota
Room Information
Main Floor
Kitchen: 12x24
Dining Room: 11x13
Living Room: 14x24
Primary Bedroom: 15x17
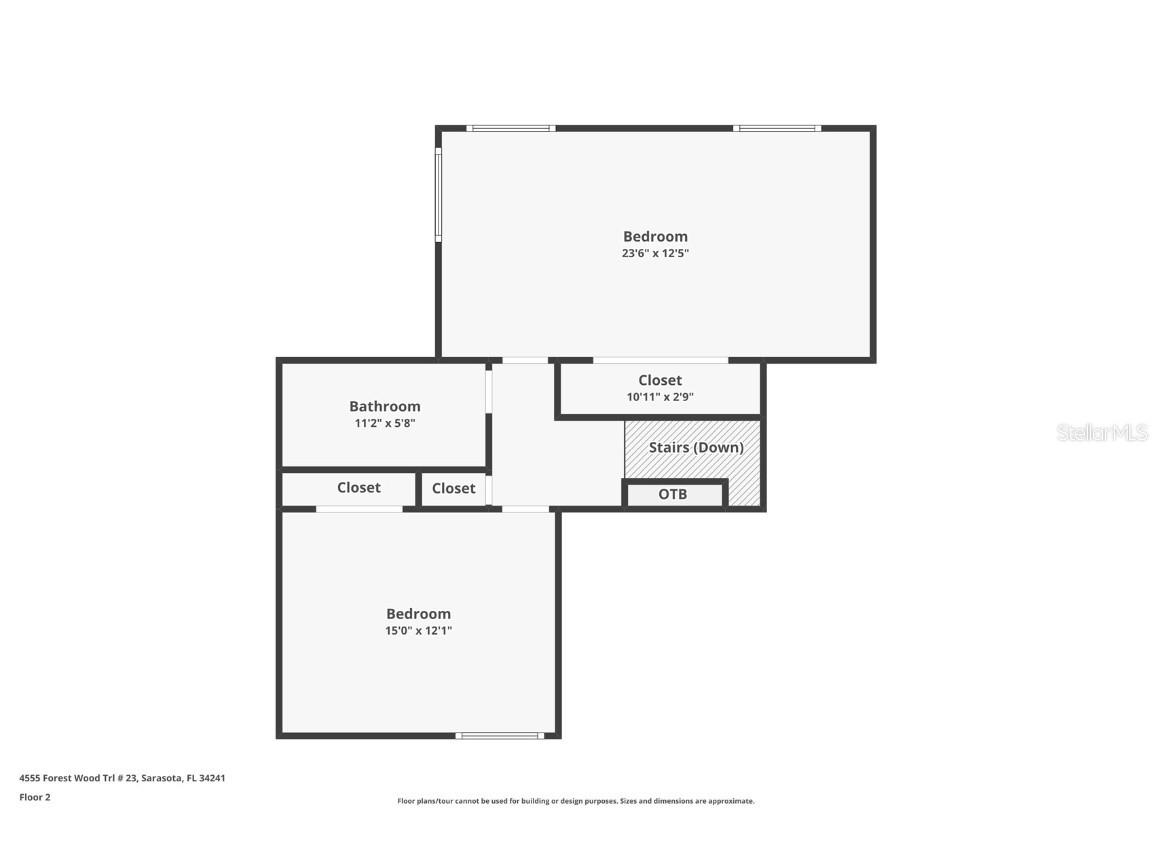
Upper Floor
Bedroom 3: 12x15
Bedroom 2: 15x22
Bathrooms
Full Baths: 2
1/2 Baths: 1
Additonal Room Information
Laundry: Inside, Laundry Room
Interior Features
Appliances: Microwave, Range, Refrigerator, Dishwasher, Disposal
Flooring: Carpet,Laminate,Tile
Doors/Windows: Window Treatments
Additional Interior Features: Ceiling Fan(s), Eat-In Kitchen, Vaulted Ceiling(s), Walk-In Closet(s), Built-in Features, Cathedral Ceiling(s), Window Treatments, High Ceilings, Separate/Formal Dining Room, Split Bedrooms, Main Level Primary, Open Floorplan, Separate/Formal Living Room, Solid Surface Counters, Stone Counters, Wood Cabinets
Utilities
Water: Public
Sewer: Public Sewer
Other Utilities: Cable Connected,Electricity Connected,Sewer Connected,Underground Utilities,Water Connected
Cooling: Zoned, Central Air, Ceiling Fan(s)
Heating: Central, Zoned
Exterior / Lot Features
Attached Garage: Attached Garage
Garage Spaces: 2
Parking Description: driveway, Garage, Garage Door Opener
Roof: Shingle
Pool: Association, Community
Lot View: Golf Course,Lake,Water
Additional Exterior/Lot Features: Rain Gutters, Sprinkler/Irrigation, Courtyard, Rear Porch, Front Porch, Patio, Landscaped, Private Road, Buyer Approval Required
Waterfront Details
Water Front Features: Lake Front
Community Features
Community Features: Golf Carts OK, Gated, Golf, Street Lights, Pool
Security Features: Gated Community, Security Gate, Smoke Detector(s)
Association Amenities: Cable TV, Pool, Golf Course, Maintenance Grounds, Gated
HOA Dues Include: Reserve Fund, Road Maintenance, Maintenance Structure, Pool(s), Cable TV
Driving Directions
MUST USE PROCTOR RD GATE ENTRANCE (NOT BEE RIDGE). PROCTOR RD E OF I-75 TO BENT TREE GATE. PULL UP & IT WILL AUTO-OPEN. GO STRIGHT & TURN R ONTO SILVERFERN, THEN L ONTO FOREST WOOD TRL
Financial Considerations
Terms: Cash,Conventional
Tax/Property ID: 0260072023
Tax Amount: 3067.88
Tax Year: 2024
A broker reciprocity listing courtesy: RE/MAX ALLIANCE GROUP
Based on information provided by Stellar MLS as distributed by the MLS GRID. Information from the Internet Data Exchange is provided exclusively for consumers’ personal, non-commercial use, and such information may not be used for any purpose other than to identify prospective properties consumers may be interested in purchasing. This data is deemed reliable but is not guaranteed to be accurate by Edina Realty, Inc., or by the MLS. Edina Realty, Inc., is not a multiple listing service (MLS), nor does it offer MLS access.
Copyright 2025 Stellar MLS as distributed by the MLS GRID. All Rights Reserved.
Payment Calculator
Interest rate and annual percentage rate (APR) are based on current market conditions, are for informational purposes only, are subject to change without notice and may be subject to pricing add-ons related to property type, loan amount, loan-to-value, credit score and other variables. Estimated closing costs used in the APR calculation are assumed to be paid by the borrower at closing. If the closing costs are financed, the loan, APR and payment amounts will be higher. If the down payment is less than 20%, mortgage insurance may be required and could increase the monthly payment and APR. Contact us for details. Additional loan programs may be available. Accuracy is not guaranteed, and all products may not be available in all borrower's geographical areas and are based on their individual situation. This is not a credit decision or a commitment to lend.
Sales History & Tax Summary for 4555 Forest Wood Trail #23
Sales History
| Date | Price | Change |
|---|---|---|
| Currently not available. | ||
Tax Summary
| Tax Year | Estimated Market Value | Total Tax |
|---|---|---|
| Currently not available. | ||
Data powered by ATTOM Data Solutions. Copyright© 2025. Information deemed reliable but not guaranteed.
Schools
Schools nearby 4555 Forest Wood Trail #23
| Schools in attendance boundaries | Grades | Distance | Rating |
|---|---|---|---|
| Loading... | |||
| Schools nearby | Grades | Distance | Rating |
|---|---|---|---|
| Loading... | |||
Data powered by ATTOM Data Solutions. Copyright© 2025. Information deemed reliable but not guaranteed.
The schools shown represent both the assigned schools and schools by distance based on local school and district attendance boundaries. Attendance boundaries change based on various factors and proximity does not guarantee enrollment eligibility. Please consult your real estate agent and/or the school district to confirm the schools this property is zoned to attend. Information is deemed reliable but not guaranteed.
SchoolDigger ® Rating
The SchoolDigger rating system is a 1-5 scale with 5 as the highest rating. SchoolDigger ranks schools based on test scores supplied by each state's Department of Education. They calculate an average standard score by normalizing and averaging each school's test scores across all tests and grades.
Coming soon properties will soon be on the market, but are not yet available for showings.