$299,900
4569 Corsa Lane Kissimmee, FL 34746
For Sale MLS# O6390044
3 beds 3 baths 1,295 sq ft Townhouse/Twinhome
Details for 4569 Corsa Lane
MLS# O6390044
Description for 4569 Corsa Lane, Kissimmee, FL, 34746
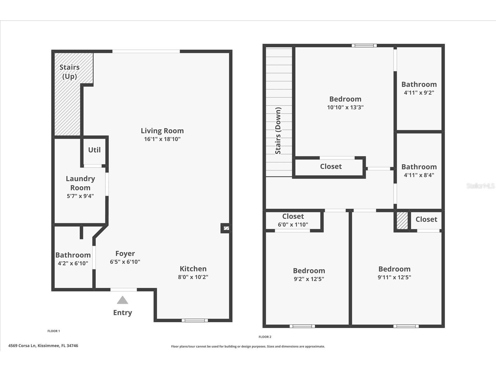
Resort-style living meets everyday comfort in this beautifully designed townhome in Bellavida, a gated, amenity-rich community just minutes from Central Florida’s top attractions. The open-concept layout on the main floor flows seamlessly from the kitchen to the living and dining areas, with sliding glass doors opening to a screened-in patio perfect for relaxing or entertaining. A convenient in-unit laundry room and half bath complete the downstairs living space. Upstairs, retreat to the private primary suite with its own in-suite bath, while two additional bedrooms provide flexibility for guests, family, or a home office. Enjoy access to a clubhouse, fitness center, pool, playground, and 24-hour guarded security—making this an ideal choice for a vacation home, rental investment, or your own peaceful escape.
Listing Information
Property Type: Residential, Townhouse
Status: Active
Bedrooms: 3
Bathrooms: 3
Lot Size: 0.03 Acres
Square Feet: 1,295 sq ft
Year Built: 2011
Stories: 2 Story
Construction: Block,Concrete,Stucco
Subdivision: Bellavida Ph 1
Foundation: Slab
County: Osceola
School Information
Elementary: Central Avenue Elem
Middle: Kissimmee Middle
High: Poinciana High School
Room Information
Main Floor
Laundry:
Living Room:
Kitchen:
Foyer:
Upper Floor
Bathroom 2:
Bedroom 3:
Bedroom 2:
Primary Bathroom:
Primary Bedroom:
Bathrooms
Full Baths: 2
1/2 Baths: 1
Additonal Room Information
Laundry: Laundry Room, Inside
Interior Features
Appliances: Washer, Range, Refrigerator, Disposal, Dryer, Microwave
Flooring: Carpet,Tile
Additional Interior Features: Living/Dining Room, Open Floorplan, Upper Level Primary
Utilities
Water: Public
Sewer: Public Sewer
Other Utilities: Cable Available
Cooling: Central Air
Heating: Central, Electric
Exterior / Lot Features
Roof: Tile
Pool: Community
Additional Exterior/Lot Features: Lighting
Community Features
Community Features: Sidewalks, Pool, Playground, Gated, Fitness, Recreation Area, Clubhouse
Security Features: Gated Community, Gated with Guard
HOA Dues Include: Pool(s), Maintenance Grounds, Reserve Fund, Common Areas, Other, Taxes, Recreation Facilities, Security
Homeowners Association: Yes
HOA Dues: $1,366 / Quarterly
Driving Directions
Going south on 192 make a right on Oren Brown Rd, Make a left on Marcello Blvd, then a right on Corsa Ln, property will be on your right.
Financial Considerations
Terms: Cash,Conventional,FHA,VA Loan
Tax/Property ID: 24-25-28-1018-0001-1420
Tax Amount: 4332.31
Tax Year: 2024
A broker reciprocity listing courtesy: TBRO REALTY LLC
Based on information provided by Stellar MLS as distributed by the MLS GRID. Information from the Internet Data Exchange is provided exclusively for consumers’ personal, non-commercial use, and such information may not be used for any purpose other than to identify prospective properties consumers may be interested in purchasing. This data is deemed reliable but is not guaranteed to be accurate by Edina Realty, Inc., or by the MLS. Edina Realty, Inc., is not a multiple listing service (MLS), nor does it offer MLS access.
Copyright 2026 Stellar MLS as distributed by the MLS GRID. All Rights Reserved.
Payment Calculator
Interest rate and annual percentage rate (APR) are based on current market conditions, are for informational purposes only, are subject to change without notice and may be subject to pricing add-ons related to property type, loan amount, loan-to-value, credit score and other variables. Estimated closing costs used in the APR calculation are assumed to be paid by the borrower at closing. If the closing costs are financed, the loan, APR and payment amounts will be higher. If the down payment is less than 20%, mortgage insurance may be required and could increase the monthly payment and APR. Contact us for details. Additional loan programs may be available. Accuracy is not guaranteed, and all products may not be available in all borrower's geographical areas and are based on their individual situation. This is not a credit decision or a commitment to lend.
Sales History & Tax Summary for 4569 Corsa Lane
Sales History
| Date | Price | |
|---|---|---|
| Currently not available. | ||
Tax Summary
| Tax Year | Estimated Market Value | Total Tax |
|---|---|---|
| Currently not available. | ||
Data powered by ATTOM Data Solutions. Copyright© 2026. Information deemed reliable but not guaranteed.
Schools
Schools nearby 4569 Corsa Lane
| Schools in attendance boundaries | Grades | Distance | Rating |
|---|---|---|---|
| Loading... | |||
| Schools nearby | Grades | Distance | Rating |
|---|---|---|---|
| Loading... | |||
Data powered by ATTOM Data Solutions. Copyright© 2026. Information deemed reliable but not guaranteed.
The schools shown represent both the assigned schools and schools by distance based on local school and district attendance boundaries. Attendance boundaries change based on various factors and proximity does not guarantee enrollment eligibility. Please consult your real estate agent and/or the school district to confirm the schools this property is zoned to attend. Information is deemed reliable but not guaranteed.
SchoolDigger ® Rating
The SchoolDigger rating system is a 1-5 scale with 5 as the highest rating. SchoolDigger ranks schools based on test scores supplied by each state's Department of Education. They calculate an average standard score by normalizing and averaging each school's test scores across all tests and grades.
Coming soon properties will soon be on the market, but are not yet available for showings.