457 E Highland Street Altamonte Springs, FL 32701
For Sale MLS# O6352995
3 beds 2 baths 2,508 sq ft Single Family
Details for 457 E Highland Street
MLS# O6352995
Description for 457 E Highland Street, Altamonte Springs, FL, 32701
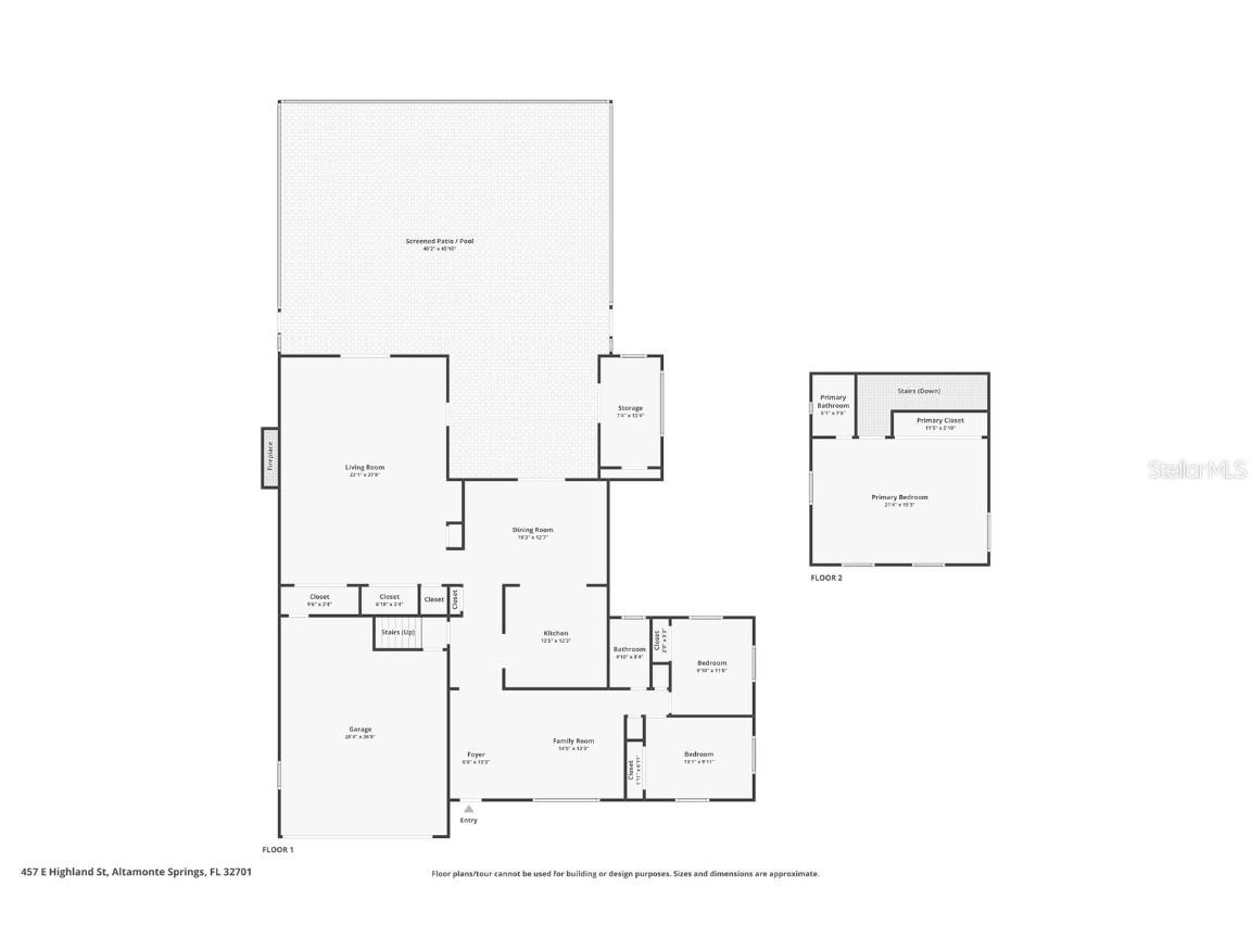
Location, Location, Location!! Welcome to 457 E Highland St in the heart of Altamonte Springs! Tucked perfectly between the family-friendly Sanlando Springs neighborhood and all the dining, shopping, and entertainment of Uptown Altamonte, this home delivers the best of both worlds - a quiet residential feel with every convenience just minutes away. This spacious block-constructed, move-in-ready pool home shows true pride of ownership and offers incredible flexibility for home buyers who need room to spread out. Step inside and you’ll immediately notice the fresh, open feel - luxury vinyl plank flooring (2022) flows throughout, and every surface shines with thoughtful updates. The kitchen steals the show, featuring stunning real solid-wood epoxy-finished butcher-block countertops, stainless-steel appliances, a farmhouse sink, and updated lighting and fixtures. It’s a kitchen designed for everyday function and weekend entertaining. The home’s massive family room is a rare find - a true gathering space centered around a huge wood-burning fireplace and accented by modern recessed lighting and bright, open sightlines. The primary suite is equally impressive in size, offering abundant closet space and a private ensuite bath, giving you a relaxing retreat at the end of the day. Out back, the Florida lifestyle comes alive. Step through updated sliding doors to your screen-enclosed pool and oversized patio area, perfect for entertaining, grilling, and relaxing. The bonus room/workshop/man cave off the pool deck offers incredible versatility — ideal for hobbies, a home gym, or even game-day headquarters. The fenced-in ¼-acre lot provides plenty of room for kids and pets to play, or for you to relax; all surrounded by mature trees and privacy landscaping. Additional updates include a new roof (2019), updated electrical panel, modern windows and sliding doors, and fully refreshed bathrooms (2022) - all adding to your peace of mind. And for savvy buyers, there’s even more value: the property includes an assumable FHA mortgage at just 2.625% interest. With an estimated loan balance of $320,000, buyers bringing approximately $180,000 down can take advantage of this incredible rate — an opportunity you rarely see in today’s market. No HOA, unbeatable location, and endless space for family living and entertaining, this is a home that checks every box. Come experience 457 E Highland St for yourself, where lifestyle, location, and livability come together in one perfect package.
Listing Information
Property Type: Residential, Single Family Residence
Status: Active
Bedrooms: 3
Bathrooms: 2
Lot Size: 0.24 Acres
Square Feet: 2,508 sq ft
Year Built: 1963
Garage: Yes
Stories: 2 Story
Construction: Block
Subdivision: Sanlando
Foundation: Slab
County: Seminole
School Information
Elementary: Altamonte Elementary
Middle: Milwee Middle
High: Lyman High
Room Information
Main Floor
Porch: 41x46
Game Room: 8x13
Bedroom 3: 10x12
Bedroom 2: 10x13
Dining Room: 13x20
Kitchen: 13x13
Family Room: 14x15
Living Room: 22x28
Upper Floor
Primary Bedroom: 16x22
Bathrooms
Full Baths: 2
Additonal Room Information
Laundry: In Garage
Interior Features
Appliances: Electric Water Heater, Microwave, Range, Refrigerator, Dishwasher
Flooring: Luxury Vinyl,Tile
Doors/Windows: Blinds, Window Treatments
Fireplaces: Wood Burning
Additional Interior Features: Eat-In Kitchen, Ceiling Fan(s), Window Treatments, Built-in Features, High Ceilings, Upper Level Primary, Solid Surface Counters
Utilities
Water: Public
Sewer: Public Sewer
Other Utilities: Cable Available,Electricity Connected,High Speed Internet Available,Municipal Utilities,Phone Available,Sewer Connected,Water Connected
Cooling: Ceiling Fan(s), Central Air
Heating: Central
Exterior / Lot Features
Attached Garage: Attached Garage
Garage Spaces: 2
Parking Description: Garage Door Opener, Garage, Common, driveway, Oversized
Roof: Shingle
Pool: Screen Enclosure, In Ground, Gunite
Lot Dimensions: 75x141
Fencing: Wood
Additional Exterior/Lot Features: Rain Gutters, French Patio Doors, Screened, Rear Porch, Level, Flat, Landscaped, City Lot, Oversized Lot
Community Features
Community Features: Sidewalks
Driving Directions
From E Altamonte Dr (436), turn north on Palm Springs Dr and then make a left on E Highland. The house is then on the right.
Financial Considerations
Terms: Assumable,Cash,Conventional,FHA
Tax/Property ID: 12-21-29-5BD-6400-0370
Tax Amount: 5305.65
Tax Year: 2024
A broker reciprocity listing courtesy: CREEGAN GROUP
Based on information provided by Stellar MLS as distributed by the MLS GRID. Information from the Internet Data Exchange is provided exclusively for consumers’ personal, non-commercial use, and such information may not be used for any purpose other than to identify prospective properties consumers may be interested in purchasing. This data is deemed reliable but is not guaranteed to be accurate by Edina Realty, Inc., or by the MLS. Edina Realty, Inc., is not a multiple listing service (MLS), nor does it offer MLS access.
Copyright 2025 Stellar MLS as distributed by the MLS GRID. All Rights Reserved.
Payment Calculator
Interest rate and annual percentage rate (APR) are based on current market conditions, are for informational purposes only, are subject to change without notice and may be subject to pricing add-ons related to property type, loan amount, loan-to-value, credit score and other variables. Estimated closing costs used in the APR calculation are assumed to be paid by the borrower at closing. If the closing costs are financed, the loan, APR and payment amounts will be higher. If the down payment is less than 20%, mortgage insurance may be required and could increase the monthly payment and APR. Contact us for details. Additional loan programs may be available. Accuracy is not guaranteed, and all products may not be available in all borrower's geographical areas and are based on their individual situation. This is not a credit decision or a commitment to lend.
Sales History & Tax Summary for 457 E Highland Street
Sales History
| Date | Price | Change |
|---|---|---|
| Currently not available. | ||
Tax Summary
| Tax Year | Estimated Market Value | Total Tax |
|---|---|---|
| Currently not available. | ||
Data powered by ATTOM Data Solutions. Copyright© 2025. Information deemed reliable but not guaranteed.
Schools
Schools nearby 457 E Highland Street
| Schools in attendance boundaries | Grades | Distance | Rating |
|---|---|---|---|
| Loading... | |||
| Schools nearby | Grades | Distance | Rating |
|---|---|---|---|
| Loading... | |||
Data powered by ATTOM Data Solutions. Copyright© 2025. Information deemed reliable but not guaranteed.
The schools shown represent both the assigned schools and schools by distance based on local school and district attendance boundaries. Attendance boundaries change based on various factors and proximity does not guarantee enrollment eligibility. Please consult your real estate agent and/or the school district to confirm the schools this property is zoned to attend. Information is deemed reliable but not guaranteed.
SchoolDigger ® Rating
The SchoolDigger rating system is a 1-5 scale with 5 as the highest rating. SchoolDigger ranks schools based on test scores supplied by each state's Department of Education. They calculate an average standard score by normalizing and averaging each school's test scores across all tests and grades.
Coming soon properties will soon be on the market, but are not yet available for showings.