4594 Tribute Trail Kissimmee, FL 34746
For Sale MLS# O6359992
4 beds 3 baths 2,655 sq ft Single Family
Details for 4594 Tribute Trail
MLS# O6359992
Description for 4594 Tribute Trail, Kissimmee, FL, 34746
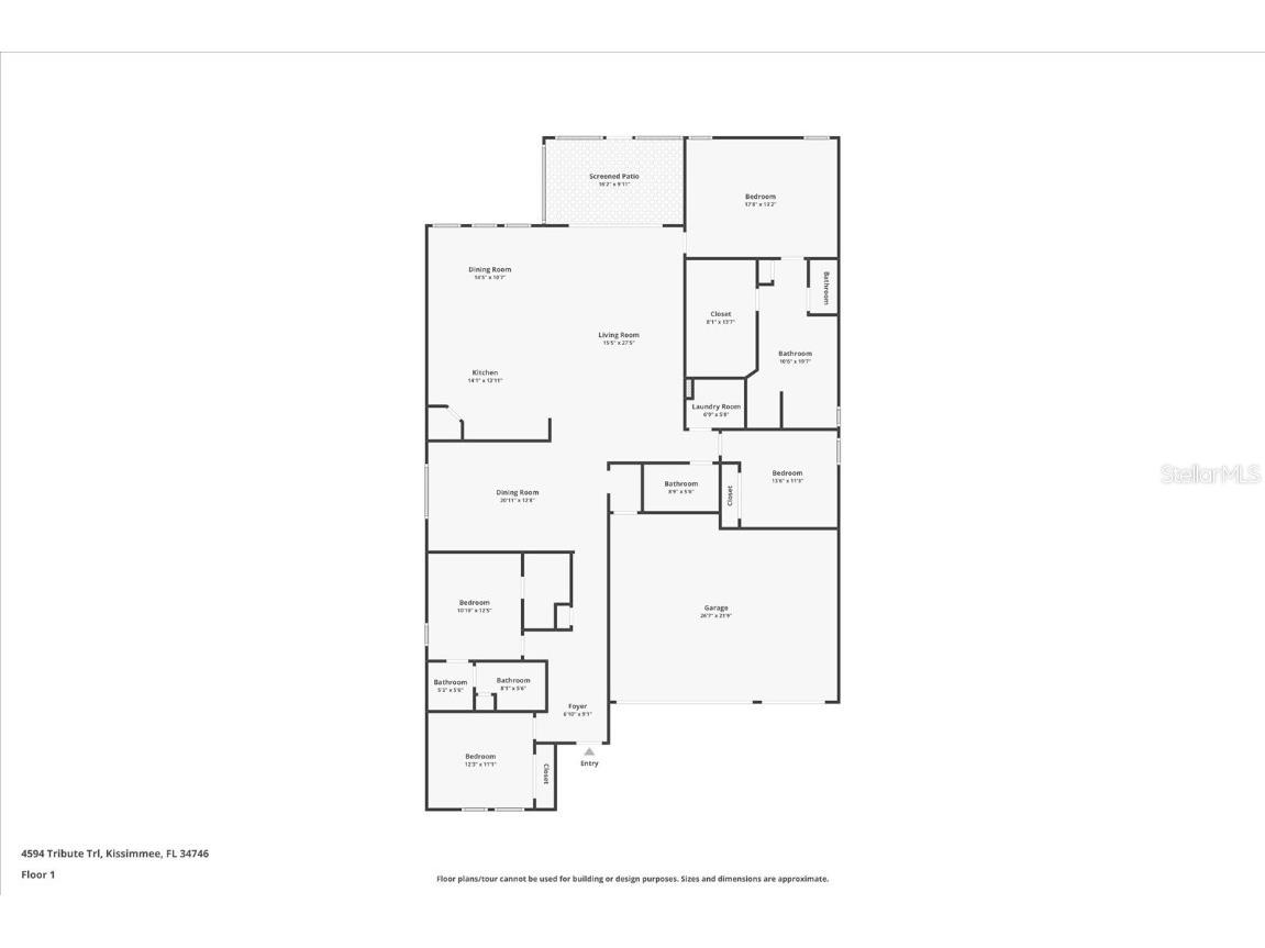
Welcome to this *PROFESSIONALLY DESIGNED* single-story home, the beautiful MARINA floor plan by Lennar Homes, consisting of *4 BEDROOMS / 3 FULL BATHROOMS and 3 CAR GARAGE* nestled in a premium lot, with no neighbors in the back, located in the sought after GATED RESIDENTIAL COMMUNITY *REFLECTIONS at Storey Lake*. Upon entering this filled with natural light home, you are greeted by a spacious foyer that seamlessly flows into the home's main living areas, with 6" x 24" DARK GREY wood like CERAMIC TILE FLOORING. The 2nd and 3rd bedrooms are located on the left side of the foyer, and 3rd bedroom has been converted a suite with a full bathroom, featuring QUARTZ double vanity, and a private area for the toilet and shower. Moving into the main living areas, the formal dinning room will be on your left, tastefully designed, making it ideal for private dining experiences. The spacious open KITCHEN and FAMILY ROOM offer a modern, yet cozy ambiance with many upgraded features such as built-in cabinets, TV shelving and lighting. At the heart of the home, the kitchen boasts high-quality stainless steel appliances—including a microwave, range, side-by-side refrigerator, and dishwasher. The kitchen's GREY QUARTZ countertops and 42-inch built-in upper cabinetry reflect a perfect balance of style and functionality. The large Master Bedroom is located at the right end of the family room and offers two windows to the backyard. The Master Bathroom, designed with an eye for sophistication and practicality is equipped with quartz double vanity, bathtub and separate shower with glass enclosure. The oversized walk-in closet is equipped with high quality built-in California shelving. The 4th Bedroom, with luxury vinyl flooring is located at the right side of the living room and has the 3rd Bathroom right outside. The extra large 3 CAR GARAGE has a utility sink added. The community Clubhouse offers a beautiful pool, fully equipped gym, conference room and play area. This home is impeccably well maintained and ready to move-in. Off of Osceola Parkway, this property offers a strategic location near Disney parks, Publix, Walmart, Target and a wide selection of grocery stores, shopping, and restaurants.
Listing Information
Property Type: Residential, Single Family Residence
Status: Active
Bedrooms: 4
Bathrooms: 3
Lot Size: 0.17 Acres
Square Feet: 2,655 sq ft
Year Built: 2018
Garage: Yes
Stories: 1 Story
Construction: Block
Construction Display: New Construction
Subdivision: Storey Lake Tr K
Builder: LENNAR
Foundation: Slab
County: Osceola
Construction Status: New Construction
School Information
Elementary: Floral Ridge Elementary
Middle: Kissimmee Middle
High: Celebration High
Room Information
Main Floor
Kitchen:
Primary Bedroom:
Living Room:
Bathrooms
Full Baths: 3
Additonal Room Information
Laundry: Inside
Interior Features
Appliances: Washer, Dryer, Microwave, Range, Refrigerator, Dishwasher, Disposal
Flooring: Ceramic Tile,Luxury Vinyl
Additional Interior Features: Eat-In Kitchen, High Ceilings, Walk-In Closet(s), Main Level Primary, Kitchen/Family Room Combo, Open Floorplan
Utilities
Water: Public
Sewer: Public Sewer
Other Utilities: Cable Available,High Speed Internet Available,Municipal Utilities,Sewer Available,Underground Utilities,Water Available
Cooling: Central Air
Heating: Central
Exterior / Lot Features
Attached Garage: Attached Garage
Garage Spaces: 3
Roof: Shingle
Pool: Community, Association
Community Features
Community Features: Dock, Sidewalks, Pool, Playground, Clubhouse, Gated, Fishing, Fitness, Water Access
Security Features: Gated Community
Association Amenities: Pool, Playground, Clubhouse, Fitness Center, Gated
HOA Dues Include: Maintenance Grounds, Pest Control, Security, Recreation Facilities, Cable TV, Internet, Pool(s)
Homeowners Association: Yes
HOA Dues: $285 / Monthly
Driving Directions
N John Young Pkwy - Left on W Osceola Pkwy - Left on Storey Lake Blvd - Left on Verse Rd - Left on Tribute (PROPERTY IS ON YOUR RIGHT)
Financial Considerations
Terms: Cash,Conventional,FHA,VA Loan
Tax/Property ID: 01-25-28-5106-0001-1130
Tax Amount: 9159.53
Tax Year: 2024
A broker reciprocity listing courtesy: KELLER WILLIAMS LEGACY REALTY
Based on information provided by Stellar MLS as distributed by the MLS GRID. Information from the Internet Data Exchange is provided exclusively for consumers’ personal, non-commercial use, and such information may not be used for any purpose other than to identify prospective properties consumers may be interested in purchasing. This data is deemed reliable but is not guaranteed to be accurate by Edina Realty, Inc., or by the MLS. Edina Realty, Inc., is not a multiple listing service (MLS), nor does it offer MLS access.
Copyright 2026 Stellar MLS as distributed by the MLS GRID. All Rights Reserved.
Payment Calculator
Interest rate and annual percentage rate (APR) are based on current market conditions, are for informational purposes only, are subject to change without notice and may be subject to pricing add-ons related to property type, loan amount, loan-to-value, credit score and other variables. Estimated closing costs used in the APR calculation are assumed to be paid by the borrower at closing. If the closing costs are financed, the loan, APR and payment amounts will be higher. If the down payment is less than 20%, mortgage insurance may be required and could increase the monthly payment and APR. Contact us for details. Additional loan programs may be available. Accuracy is not guaranteed, and all products may not be available in all borrower's geographical areas and are based on their individual situation. This is not a credit decision or a commitment to lend.
Sales History & Tax Summary for 4594 Tribute Trail
Sales History
| Date | Price | |
|---|---|---|
| Currently not available. | ||
Tax Summary
| Tax Year | Estimated Market Value | Total Tax |
|---|---|---|
| Currently not available. | ||
Data powered by ATTOM Data Solutions. Copyright© 2026. Information deemed reliable but not guaranteed.
Schools
Schools nearby 4594 Tribute Trail
| Schools in attendance boundaries | Grades | Distance | Rating |
|---|---|---|---|
| Loading... | |||
| Schools nearby | Grades | Distance | Rating |
|---|---|---|---|
| Loading... | |||
Data powered by ATTOM Data Solutions. Copyright© 2026. Information deemed reliable but not guaranteed.
The schools shown represent both the assigned schools and schools by distance based on local school and district attendance boundaries. Attendance boundaries change based on various factors and proximity does not guarantee enrollment eligibility. Please consult your real estate agent and/or the school district to confirm the schools this property is zoned to attend. Information is deemed reliable but not guaranteed.
SchoolDigger ® Rating
The SchoolDigger rating system is a 1-5 scale with 5 as the highest rating. SchoolDigger ranks schools based on test scores supplied by each state's Department of Education. They calculate an average standard score by normalizing and averaging each school's test scores across all tests and grades.
Coming soon properties will soon be on the market, but are not yet available for showings.