4655 Payne Street North Port, FL 34287
For Sale MLS# N6139983
3 beds 2 baths 1,882 sq ft Single Family
Details for 4655 Payne Street
MLS# N6139983
Description for 4655 Payne Street, North Port, FL, 34287
INCOME-PRODUCING AIRBNB TURN-KEY POOL HOME PRIME NORTH PORT LOCATION!NOT FLOOD ZONE! PUBLIC WATER AND PUBLIC SEWER! FULLY FURNISHED! MOTIVATED SELLER! Welcome to 4655 Payne Street—an exceptional opportunity to own a fully furnished, income-generating home in the heart of North Port! Whether you're looking for a lucrative Airbnb investment or your forever Florida retreat, this stunning 3-bedroom, 2-bathroom pool home offers the best of both worlds. Step inside and be greeted by a light-filled, open-concept layout with vaulted, beamed ceilings and a neutral color palette that invites you to personalize. The spacious family room flows seamlessly into the updated kitchen, which features modern appliances, a breakfast nook, and a convenient pass-through window to the lanai—perfect for entertaining and indoor/outdoor living. The primary suite is a true sanctuary, offering direct access to the lanai and tranquil views of the heated saltwater pool and lush backyard. Enjoy a spa-like experience in the ensuite bath, complete with dual sinks, a separate tub, and a skylight. Two additional bedrooms provide ample space for guests or family, each with generous closet space and ground-floor accessibility. Step outside to your private backyard oasis—fully fenced with tropical landscaping, a caged lanai, and a screened front porch ideal for relaxing or hosting. Additional perks include a storage shed, extended driveway, and a two-car garage with room for flexible use. Highlights include: Zoned NO HOA & NO flood zone Successful Airbnb rental history Hurricane impact windows (living room) + full shutters Smart hot water system & interior laundry Roller shades on lanai Vaulted ceilings & skylights Fully fenced yard with shed Furnished—turn-key ready! Nestled on a quiet street, this home is minutes from shopping, dining, parks, and top-rated schools. With quick access to I-75 and US-41, enjoy an easy drive to world-class beaches, spring training venues, and community favorites like “Movies on the Green” and “Food Truck Nights.” At 1,882 sq ft, this beautifully maintained home offers flexibility, comfort, and exceptional value. Don’t miss out—schedule your private tour today and start your next chapter at 4655 Payne Street!
Listing Information
Property Type: Residential, Single Family Residence
Status: Active
Bedrooms: 3
Bathrooms: 2
Lot Size: 0.23 Acres
Square Feet: 1,882 sq ft
Year Built: 1992
Garage: Yes
Stories: 1 Story
Construction: Block,Stucco
Subdivision: Port Charlotte Sub 35
Foundation: Slab
County: Sarasota
School Information
Elementary: Cranberry Elementary
Middle: Heron Creek Middle
High: North Port High
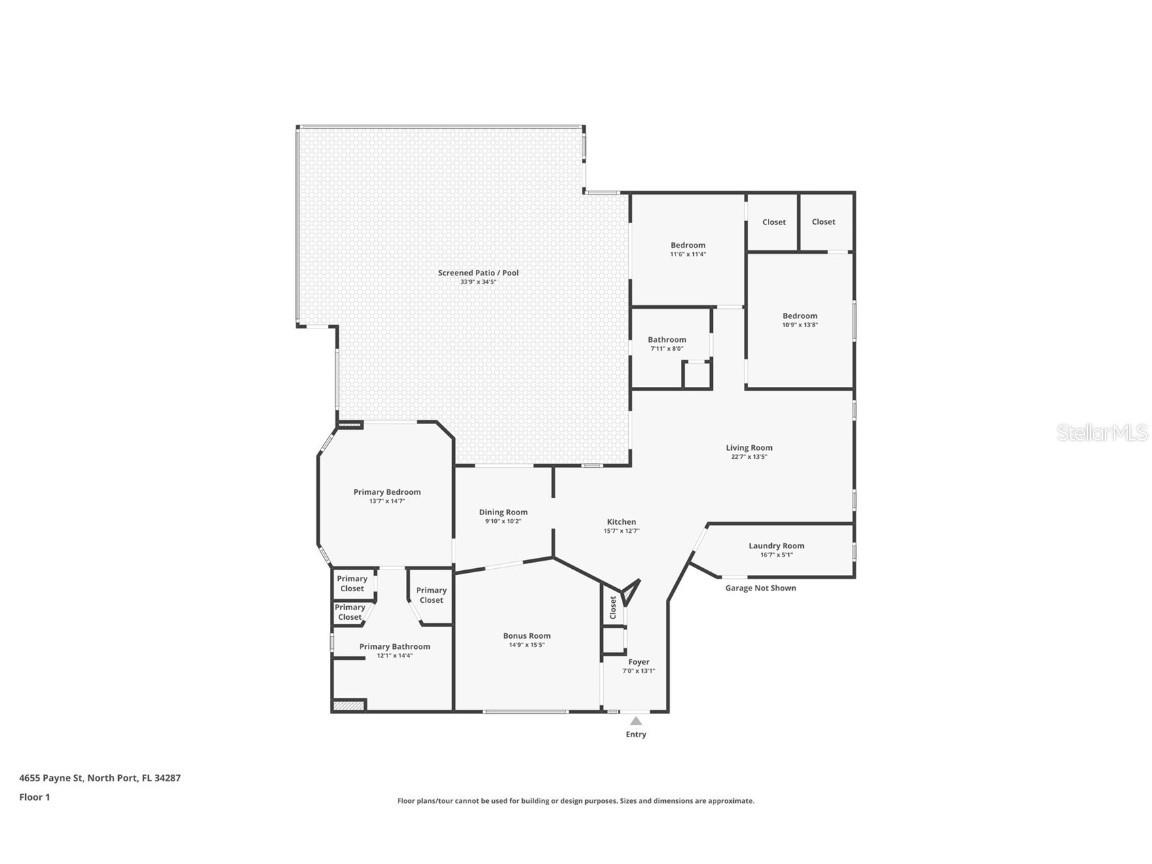
Room Information
Main Floor
Porch: 34.5x33.9
Bedroom 2: 11.4x11.6
Primary Bathroom: 12.1x14.4
Primary Bedroom: 12.1x14.7
Foyer: 7x13.1
Laundry: 5.1x16.7
Living Room: 13.5x22.7
Dining Room: 9.1x10.2
Kitchen: 12.7x15.7
Bonus Room: 14.9x15.5
Bedroom 3: 10.9x13.8
Bathroom 2: 8x7.11
Bathrooms
Full Baths: 2
Additonal Room Information
Laundry: Laundry Room, Inside
Interior Features
Appliances: Exhaust Fan, Microwave, Range, Refrigerator, Dishwasher, Disposal, Dryer, Washer, Water Softener
Flooring: Ceramic Tile,Laminate
Doors/Windows: Window Treatments, Skylight(s)
Additional Interior Features: Ceiling Fan(s), Vaulted Ceiling(s), Eat-In Kitchen, Split Bedrooms, Walk-In Closet(s), Kitchen/Family Room Combo, Coffered Ceiling(s), Main Level Primary, Skylights
Utilities
Water: Public
Sewer: Public Sewer
Other Utilities: Cable Available,Electricity Connected,Phone Available,Sewer Connected,Water Connected
Cooling: Central Air, Ceiling Fan(s)
Heating: Central
Exterior / Lot Features
Attached Garage: Attached Garage
Garage Spaces: 2
Roof: Shingle
Pool: Salt Water, Screen Enclosure, In Ground, Gunite, Heated
Additional Exterior/Lot Features: Rain Gutters, Storm/Security Shutters, Storage, Front Porch, Enclosed
Community Features
Community Features: Street Lights
Driving Directions
From Sumter Blvd., go south, then right on Payne to house on right.
Financial Considerations
Terms: Cash,Conventional,FHA,VA Loan
Tax/Property ID: 0992127002
Tax Amount: 5277
Tax Year: 2024
A broker reciprocity listing courtesy: RE/MAX PALM REALTY OF VENICE
Based on information provided by Stellar MLS as distributed by the MLS GRID. Information from the Internet Data Exchange is provided exclusively for consumers’ personal, non-commercial use, and such information may not be used for any purpose other than to identify prospective properties consumers may be interested in purchasing. This data is deemed reliable but is not guaranteed to be accurate by Edina Realty, Inc., or by the MLS. Edina Realty, Inc., is not a multiple listing service (MLS), nor does it offer MLS access.
Copyright 2025 Stellar MLS as distributed by the MLS GRID. All Rights Reserved.
Payment Calculator
Interest rate and annual percentage rate (APR) are based on current market conditions, are for informational purposes only, are subject to change without notice and may be subject to pricing add-ons related to property type, loan amount, loan-to-value, credit score and other variables. Estimated closing costs used in the APR calculation are assumed to be paid by the borrower at closing. If the closing costs are financed, the loan, APR and payment amounts will be higher. If the down payment is less than 20%, mortgage insurance may be required and could increase the monthly payment and APR. Contact us for details. Additional loan programs may be available. Accuracy is not guaranteed, and all products may not be available in all borrower's geographical areas and are based on their individual situation. This is not a credit decision or a commitment to lend.
Sales History & Tax Summary for 4655 Payne Street
Sales History
| Date | Price | Change |
|---|---|---|
| Currently not available. | ||
Tax Summary
| Tax Year | Estimated Market Value | Total Tax |
|---|---|---|
| Currently not available. | ||
Data powered by ATTOM Data Solutions. Copyright© 2025. Information deemed reliable but not guaranteed.
Schools
Schools nearby 4655 Payne Street
| Schools in attendance boundaries | Grades | Distance | Rating |
|---|---|---|---|
| Loading... | |||
| Schools nearby | Grades | Distance | Rating |
|---|---|---|---|
| Loading... | |||
Data powered by ATTOM Data Solutions. Copyright© 2025. Information deemed reliable but not guaranteed.
The schools shown represent both the assigned schools and schools by distance based on local school and district attendance boundaries. Attendance boundaries change based on various factors and proximity does not guarantee enrollment eligibility. Please consult your real estate agent and/or the school district to confirm the schools this property is zoned to attend. Information is deemed reliable but not guaranteed.
SchoolDigger ® Rating
The SchoolDigger rating system is a 1-5 scale with 5 as the highest rating. SchoolDigger ranks schools based on test scores supplied by each state's Department of Education. They calculate an average standard score by normalizing and averaging each school's test scores across all tests and grades.
Coming soon properties will soon be on the market, but are not yet available for showings.