4683 SW 136th Street Ocala, FL 34473
Pending MLS# O6245016
4 beds 3 baths 1,865 sq ft Single Family
Details for 4683 SW 136th Street
MLS# O6245016
Description for 4683 SW 136th Street, Ocala, FL, 34473
Under contract-accepting backup offers. One or more photo(s) has been virtually staged. Welcome to your modern oasis! This new construction home boasts a sleek and stylish exterior that instantly catches the eye. As you step inside, you'll be greeted by an open floor plan that seamlessly blends functionality with contemporary design. The heart of this home is its spacious living area, ideal for entertaining guests or simply relaxing with family. Natural light floods the space, highlighting the modern finishes and creating an inviting atmosphere. With four bedrooms, there's plenty of room for the whole family to spread out and unwind. Each bedroom offers a tranquil retreat, complete with plush carpeting and ample closet space. The three baths are thoughtfully designed with modern fixtures and luxurious touches, providing a spa-like experience right at home. Whether you're getting ready for the day or unwinding after a long day's work, these baths offer the ideal place to relax and rejuvenate. Don't miss your chance to make this stunning new construction home yours. Call today.
Listing Information
Property Type: Residential, Single Family Residence
Status: Pending
Bedrooms: 4
Bathrooms: 3
Lot Size: 0.23 Acres
Square Feet: 1,865 sq ft
Year Built: 2024
Garage: Yes
Stories: 1 Story
Construction: Stucco
Construction Display: New Construction
Subdivision: Marion Oaks Un One
Builder: Martins Development
Foundation: Slab
County: Marion
Construction Status: New Construction
School Information
Elementary: Sunrise Elementary School-M
Middle: Horizon Academy/Mar Oaks
High: West Port High School
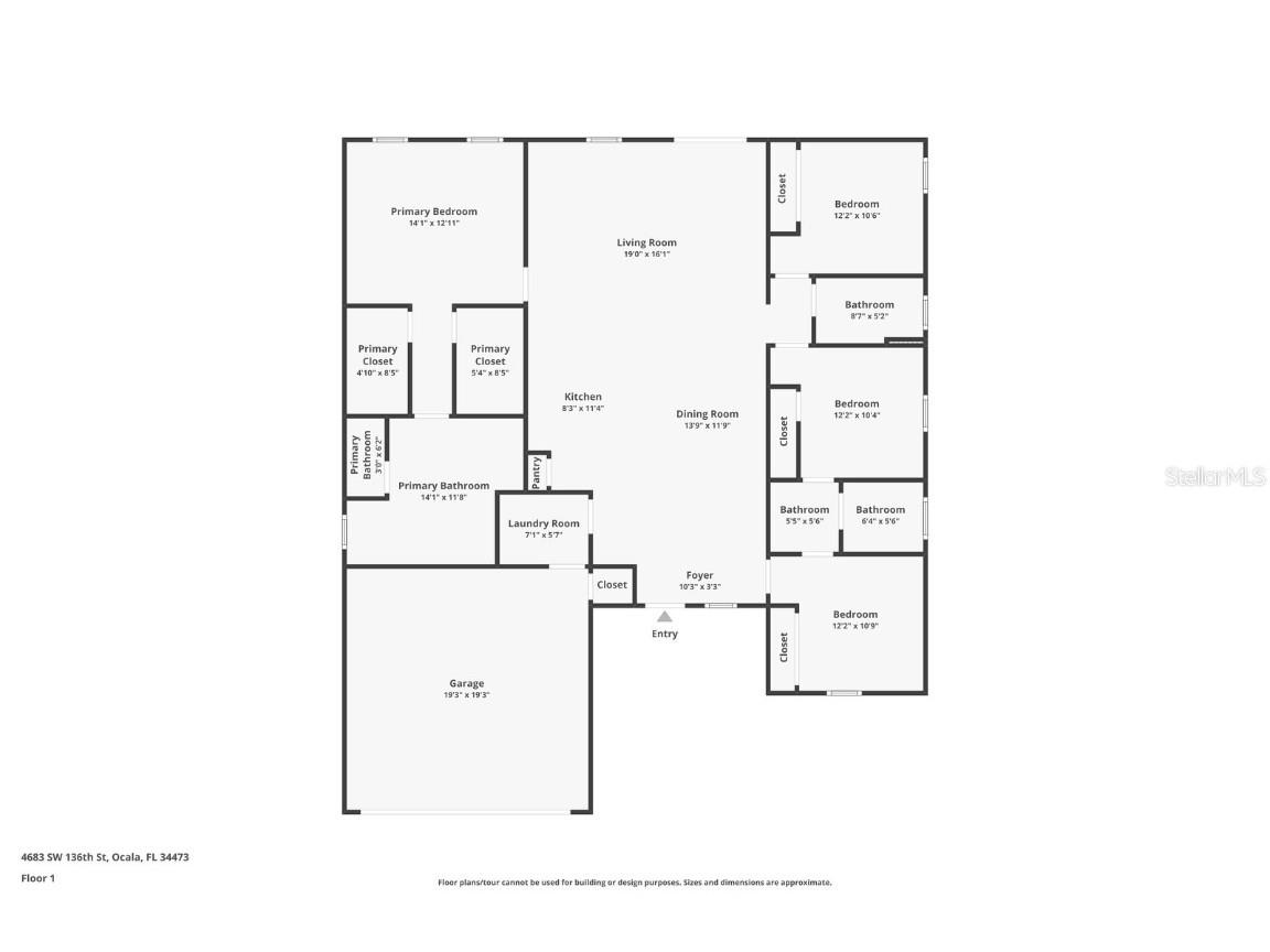
Room Information
Main Floor
Bathroom 2:
Living Room:
Bathroom 1:
Bedroom 4:
Bathroom 3:
Bedroom 2:
Primary Bathroom:
Primary Bedroom:
Dining Room:
Kitchen:
Bathrooms
Full Baths: 3
Additonal Room Information
Laundry: Laundry Room
Interior Features
Appliances: Dishwasher, Microwave, Range, Refrigerator
Flooring: Luxury Vinyl,Tile
Additional Interior Features: Walk-In Closet(s), Built-in Features, High Ceilings, Living/Dining Room, Open Floorplan, Wood Cabinets, Kitchen/Family Room Combo
Utilities
Water: Public
Sewer: Septic Tank
Other Utilities: Cable Available,Electricity Available,Municipal Utilities
Cooling: Central Air
Heating: Central
Exterior / Lot Features
Attached Garage: Attached Garage
Garage Spaces: 2
Parking Description: driveway
Roof: Shingle
Driving Directions
Please use GPS.
Financial Considerations
Tax/Property ID: 8001-0173-12
Tax Amount: 463
Tax Year: 2023
A broker reciprocity listing courtesy: PREMIER SOTHEBYS INT'L REALTY
Based on information provided by Stellar MLS as distributed by the MLS GRID. Information from the Internet Data Exchange is provided exclusively for consumers’ personal, non-commercial use, and such information may not be used for any purpose other than to identify prospective properties consumers may be interested in purchasing. This data is deemed reliable but is not guaranteed to be accurate by Edina Realty, Inc., or by the MLS. Edina Realty, Inc., is not a multiple listing service (MLS), nor does it offer MLS access.
Copyright 2025 Stellar MLS as distributed by the MLS GRID. All Rights Reserved.
Sales History & Tax Summary for 4683 SW 136th Street
Sales History
| Date | Price | Change |
|---|---|---|
| Currently not available. | ||
Tax Summary
| Tax Year | Estimated Market Value | Total Tax |
|---|---|---|
| Currently not available. | ||
Data powered by ATTOM Data Solutions. Copyright© 2025. Information deemed reliable but not guaranteed.
Schools
Schools nearby 4683 SW 136th Street
| Schools in attendance boundaries | Grades | Distance | Rating |
|---|---|---|---|
| Loading... | |||
| Schools nearby | Grades | Distance | Rating |
|---|---|---|---|
| Loading... | |||
Data powered by ATTOM Data Solutions. Copyright© 2025. Information deemed reliable but not guaranteed.
The schools shown represent both the assigned schools and schools by distance based on local school and district attendance boundaries. Attendance boundaries change based on various factors and proximity does not guarantee enrollment eligibility. Please consult your real estate agent and/or the school district to confirm the schools this property is zoned to attend. Information is deemed reliable but not guaranteed.
SchoolDigger ® Rating
The SchoolDigger rating system is a 1-5 scale with 5 as the highest rating. SchoolDigger ranks schools based on test scores supplied by each state's Department of Education. They calculate an average standard score by normalizing and averaging each school's test scores across all tests and grades.
Coming soon properties will soon be on the market, but are not yet available for showings.