4686 Hiles Place The Villages, FL 32163
For Sale MLS# G5100570
3 beds 2 baths 1,633 sq ft Single Family
Details for 4686 Hiles Place
MLS# G5100570
Description for 4686 Hiles Place, The Villages, FL, 32163
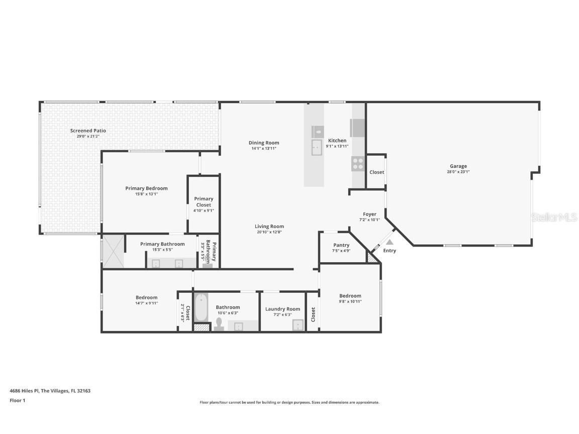
3 Bedroom Courtyard Villa with Preserve Views in Chitty Chatty Move-in ready Arlington Courtyard Villa offering 3 bedrooms, 2 baths, and 1,633 sq ft, ideally located in the Village of Chitty Chatty and backing to a peaceful, protected preserve. This home welcomes you with low-maintenance tropical landscaping and a charming front porch. Inside, enjoy an open, airy layout with porcelain plank tile throughout and abundant natural light. The kitchen features quartz countertops, under-cabinet adjustable lighting, a modern honeycomb backsplash, pendant lighting, and a custom walk-in pantry—perfect for everyday living and entertaining. The primary suite offers tranquil preserve views, a custom walk-in closet, and a spa-style en suite with dual sinks and a Roman shower. Two additional guest bedrooms include custom closets and flexible space for guests, hobbies, or a home office. Step outside to the expanded wrap-around lanai with ceiling fans, recessed lighting, and serene views—ideal for morning coffee or evening relaxation. The fully fenced yard is perfect for pets and offers room for a pool. An extended garage provides extra space for storage, oversized vehicles, or golf cart parking. Conveniently located near Rohan Recreation Center, Lake Deaton Plaza, Belle Glade Country Club, Sawgrass Grove, Brownwood, and the upcoming Eastport Town Square. Private, stylish, and low-maintenance—this is Florida living at its best. Schedule your showing today.
Listing Information
Property Type: Residential, Villa
Status: Active
Bedrooms: 3
Bathrooms: 2
Lot Size: 0.15 Acres
Square Feet: 1,633 sq ft
Year Built: 2021
Garage: Yes
Stories: 1 Story
Construction: Block,Stucco
Subdivision: The Villages
Foundation: Slab
County: Sumter
Room Information
Main Floor
Foyer: 10x7
Bedroom 3: 11x10
Bedroom 2: 10x15
Primary Bathroom: 6x15
Primary Bedroom: 13x16
Kitchen: 14x9
Dining Room: 14x14
Living Room: 13x21
Bathrooms
Full Baths: 2
Additonal Room Information
Laundry: Inside, Laundry Room
Interior Features
Appliances: Microwave, Dishwasher, Range, Refrigerator
Flooring: Porcelain Tile
Doors/Windows: Low-Emissivity Windows, Display Window(s)
Additional Interior Features: High Ceilings, Split Bedrooms, Ceiling Fan(s), Eat-In Kitchen, Built-in Features, Open Floorplan
Utilities
Water: Public
Sewer: Public Sewer
Other Utilities: Cable Available,Electricity Connected,High Speed Internet Available,Sewer Connected,Water Connected
Cooling: Ceiling Fan(s), Central Air
Heating: Central
Exterior / Lot Features
Attached Garage: Attached Garage
Garage Spaces: 2
Parking Description: driveway, Garage Door Opener, Garage
Roof: Shingle
Pool: Community
Lot View: Trees/Woods
Fencing: Vinyl, Other, fenced
Additional Exterior/Lot Features: Rain Gutters, Sprinkler/Irrigation, Lighting, Garden, Screened, Covered, Front Porch, Rear Porch, Wrap Around, Private, Landscaped, Cul-de-Sac, Conservation Area, Near Golf Course
Community Features
Community Features: Golf Carts OK, Fitness, Community Mailbox, Golf, Dog Park, Gated, Pool, Tennis Court(s)
Security Features: Gated Community
HOA Dues Include: Security, Taxes, Recreation Facilities, Pool(s), Maintenance Grounds, Common Areas
Driving Directions
Heading South on Morse Blvd from 466A, cross over SR-44, Make a Left into The Village of Chitty Chatty. Continue straight on Chitty Chatty Run, Make a Right onto Wilder Path, Make a Right onto Lazdowski Way, Make a Left on Jay St, Make a Left on Hiles Pl. 4686 Hiles Place will be on your Right hand side.
Financial Considerations
Terms: Cash,Conventional,FHA,VA Loan
Tax/Property ID: G23D067
Tax Amount: 8115.92
Tax Year: 2024
A broker reciprocity listing courtesy: COLDWELL BANKER VANGUARD LIFESTYLE REALTY
Based on information provided by Stellar MLS as distributed by the MLS GRID. Information from the Internet Data Exchange is provided exclusively for consumers’ personal, non-commercial use, and such information may not be used for any purpose other than to identify prospective properties consumers may be interested in purchasing. This data is deemed reliable but is not guaranteed to be accurate by Edina Realty, Inc., or by the MLS. Edina Realty, Inc., is not a multiple listing service (MLS), nor does it offer MLS access.
Copyright 2025 Stellar MLS as distributed by the MLS GRID. All Rights Reserved.
Payment Calculator
Interest rate and annual percentage rate (APR) are based on current market conditions, are for informational purposes only, are subject to change without notice and may be subject to pricing add-ons related to property type, loan amount, loan-to-value, credit score and other variables. Estimated closing costs used in the APR calculation are assumed to be paid by the borrower at closing. If the closing costs are financed, the loan, APR and payment amounts will be higher. If the down payment is less than 20%, mortgage insurance may be required and could increase the monthly payment and APR. Contact us for details. Additional loan programs may be available. Accuracy is not guaranteed, and all products may not be available in all borrower's geographical areas and are based on their individual situation. This is not a credit decision or a commitment to lend.
Sales History & Tax Summary for 4686 Hiles Place
Sales History
| Date | Price | Change |
|---|---|---|
| Currently not available. | ||
Tax Summary
| Tax Year | Estimated Market Value | Total Tax |
|---|---|---|
| Currently not available. | ||
Data powered by ATTOM Data Solutions. Copyright© 2025. Information deemed reliable but not guaranteed.
Schools
Schools nearby 4686 Hiles Place
| Schools in attendance boundaries | Grades | Distance | Rating |
|---|---|---|---|
| Loading... | |||
| Schools nearby | Grades | Distance | Rating |
|---|---|---|---|
| Loading... | |||
Data powered by ATTOM Data Solutions. Copyright© 2025. Information deemed reliable but not guaranteed.
The schools shown represent both the assigned schools and schools by distance based on local school and district attendance boundaries. Attendance boundaries change based on various factors and proximity does not guarantee enrollment eligibility. Please consult your real estate agent and/or the school district to confirm the schools this property is zoned to attend. Information is deemed reliable but not guaranteed.
SchoolDigger ® Rating
The SchoolDigger rating system is a 1-5 scale with 5 as the highest rating. SchoolDigger ranks schools based on test scores supplied by each state's Department of Education. They calculate an average standard score by normalizing and averaging each school's test scores across all tests and grades.
Coming soon properties will soon be on the market, but are not yet available for showings.