470 Liu Lane Deland, FL 32724
For Sale MLS# V4945967
3 beds 2 baths 1,617 sq ft Single Family
Details for 470 Liu Lane
MLS# V4945967
Description for 470 Liu Lane, Deland, FL, 32724
Welcome to 470 Liu Lane — where comfort, efficiency, and community come together in flawless harmony. This beautifully maintained 2022-built home sits in the coveted, resort-style community of Victoria Oaks and delivers exactly what today’s buyers crave: modern design, smart layout, and low-maintenance living with a twist of everyday luxury. Step inside and you’re greeted by a warm, intuitive floor plan. Two bright secondary bedrooms rest at the front of the home, thoughtfully separated by a full bathroom—ideal for guests, a home office, or a growing household. Continue down the hall and you’ll find the perfectly placed laundry room tucked to the right, just where it should be. The heart of the home opens into a wide, seamless open-concept living space where the kitchen, dining room, and family room blend together effortlessly. It’s an entertainer’s dream and a daily-life delight—airy, social, and full of natural light. The spacious primary suite sits quietly at the back of the home, offering a peaceful retreat with double sinks, a walk-in shower, and a generous walk-in closet. Step outside to your covered lanai and enjoy a large backyard built for barbecues, quiet mornings, or letting the pups run wild. There’s room here—to breathe, to grow, to gather. Living in Victoria Oaks means living the good life. Resort-style pools, tennis courts, a fitness center, playgrounds, parks, sidewalks, and leafy streets that invite evening strolls—it’s all right at your fingertips. And just minutes away lies Historic Downtown DeLand, with its boutiques, cafés, restaurants, galleries, live music, the iconic Athens Theatre, scenic parks, Stetson University, and the St. Johns River for endless outdoor adventures. And here’s where this opportunity becomes exceptional: with a full-price offer, the seller will pay off the solar panel system in full at closing. That means the new owner receives the benefit of dramatically reduced electric bills. Modern efficiency. Immediate savings. Long-term financial advantage. This is the lifestyle you deserve, wrapped beautifully in a home that feels as good as it looks. Welcome home.
Listing Information
Property Type: Residential, Single Family Residence
Status: Active
Bedrooms: 3
Bathrooms: 2
Lot Size: 0.11 Acres
Square Feet: 1,617 sq ft
Year Built: 2022
Garage: Yes
Stories: 1 Story
Construction: Block
Subdivision: Victoria Oaks Ph B
Foundation: Slab
County: Volusia
School Information
Elementary: Freedom Elem
Middle: Deland Middle
High: Deland High
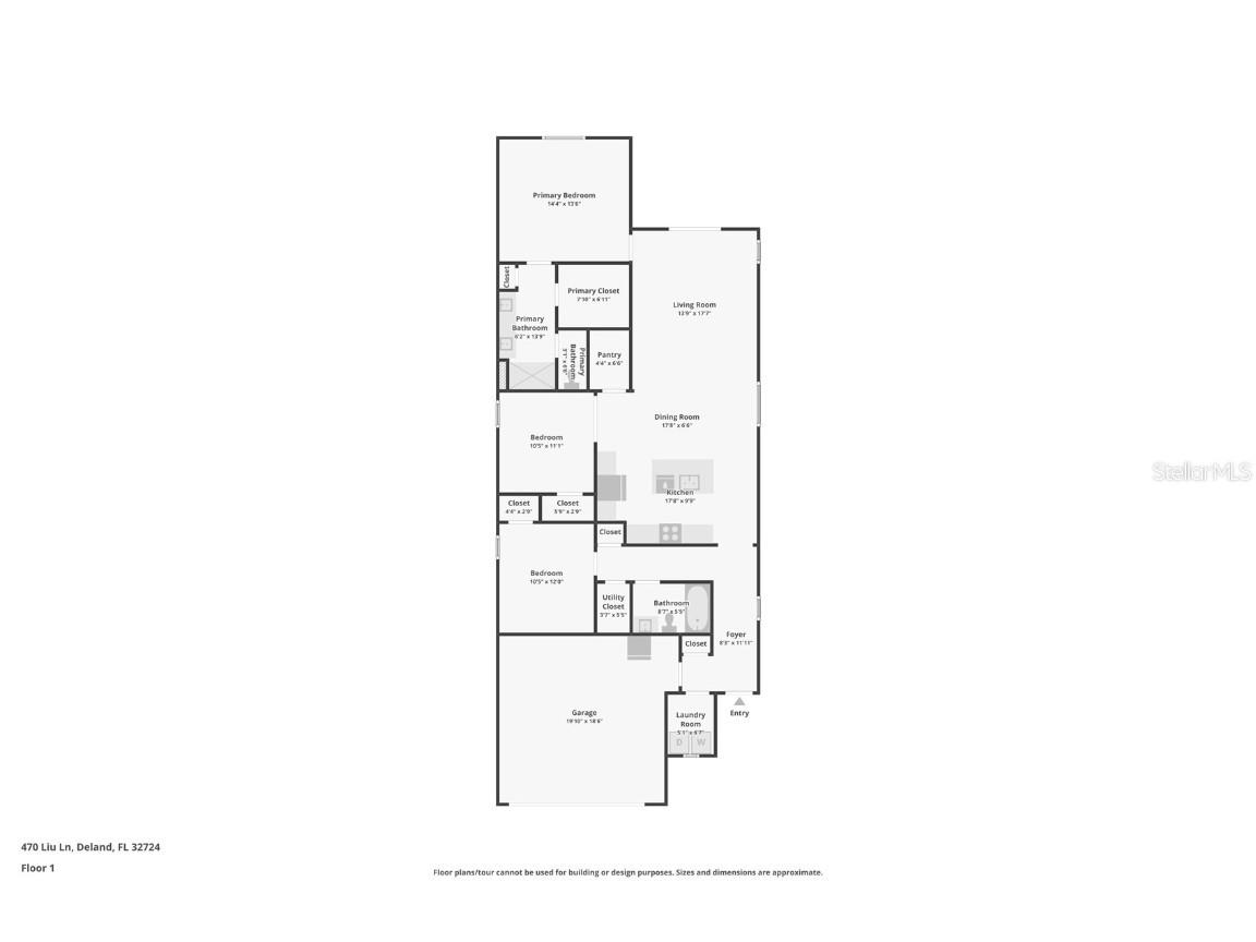
Room Information
Main Floor
Dining Room: 6.6x17.8
Bedroom 3: 11.1x10.5
Bedroom 2: 10.5x12
Living Room: 13.9x17.2
Kitchen: 9.9x17.8
Primary Bedroom: 14.4x13.6
Bathrooms
Full Baths: 2
Additonal Room Information
Laundry: Inside, Laundry Room
Interior Features
Appliances: Electric Water Heater, Refrigerator, Microwave, Cooktop, Dishwasher, Disposal
Flooring: Carpet,Tile
Doors/Windows: Window Treatments, Blinds
Additional Interior Features: Split Bedrooms, Eat-In Kitchen, Ceiling Fan(s), Walk-In Closet(s), Attic, Window Treatments, Living/Dining Room, High Ceilings, Open Floorplan, Kitchen/Family Room Combo, Solid Surface Counters, Stone Counters
Utilities
Water: Public
Sewer: Public Sewer
Other Utilities: Cable Available,Electricity Available,High Speed Internet Available,Municipal Utilities,Phone Available,Sewer Available,Water Available
Cooling: Ceiling Fan(s), Central Air
Heating: Central, Solar, Electric
Exterior / Lot Features
Attached Garage: Attached Garage
Garage Spaces: 2
Parking Description: driveway, Covered, Garage Door Opener, Garage
Roof: Shingle
Pool: Association, Community
Fencing: fenced
Additional Exterior/Lot Features: Lighting, Covered, Patio, Front Porch, Rear Porch, Flat, Level, Landscaped, City Lot, Outside City Limits
Community Features
Community Features: Community Mailbox, Fitness, Dog Park, Park, Pool, Playground, Clubhouse, Sidewalks
Security Features: Security Lights, Smoke Detector(s)
Association Amenities: Recreation Facilities, Playground, Pool, Fitness Center, Cable TV, Park
HOA Dues Include: Pool(s), Reserve Fund, Cable TV, Internet, Recreation Facilities
Homeowners Association: Yes
HOA Dues: $272 / Monthly
Driving Directions
take Exit 118 for FL-15/US-17 toward DeLand. At the end of the ramp, turn onto FL-15/US-17 North (toward DeLand). Continue approximately 4 miles into the city. Turn right onto West Euclid Avenue (FL-44 Business). After about 1 mile, turn left onto South Amelia Avenue. In 0.3 miles, turn right onto Anne Street. The home will be on your left.
Financial Considerations
Terms: Cash,Conventional,FHA,VA Loan
Tax/Property ID: 7027-06-00-3510
Tax Amount: 4745.02
Tax Year: 2025
A broker reciprocity listing courtesy: VOS REAL ESTATE LLC
Based on information provided by Stellar MLS as distributed by the MLS GRID. Information from the Internet Data Exchange is provided exclusively for consumers’ personal, non-commercial use, and such information may not be used for any purpose other than to identify prospective properties consumers may be interested in purchasing. This data is deemed reliable but is not guaranteed to be accurate by Edina Realty, Inc., or by the MLS. Edina Realty, Inc., is not a multiple listing service (MLS), nor does it offer MLS access.
Copyright 2026 Stellar MLS as distributed by the MLS GRID. All Rights Reserved.
Payment Calculator
Interest rate and annual percentage rate (APR) are based on current market conditions, are for informational purposes only, are subject to change without notice and may be subject to pricing add-ons related to property type, loan amount, loan-to-value, credit score and other variables. Estimated closing costs used in the APR calculation are assumed to be paid by the borrower at closing. If the closing costs are financed, the loan, APR and payment amounts will be higher. If the down payment is less than 20%, mortgage insurance may be required and could increase the monthly payment and APR. Contact us for details. Additional loan programs may be available. Accuracy is not guaranteed, and all products may not be available in all borrower's geographical areas and are based on their individual situation. This is not a credit decision or a commitment to lend.
Sales History & Tax Summary for 470 Liu Lane
Sales History
| Date | Price | |
|---|---|---|
| Currently not available. | ||
Tax Summary
| Tax Year | Estimated Market Value | Total Tax |
|---|---|---|
| Currently not available. | ||
Data powered by ATTOM Data Solutions. Copyright© 2026. Information deemed reliable but not guaranteed.
Schools
Schools nearby 470 Liu Lane
| Schools in attendance boundaries | Grades | Distance | Rating |
|---|---|---|---|
| Loading... | |||
| Schools nearby | Grades | Distance | Rating |
|---|---|---|---|
| Loading... | |||
Data powered by ATTOM Data Solutions. Copyright© 2026. Information deemed reliable but not guaranteed.
The schools shown represent both the assigned schools and schools by distance based on local school and district attendance boundaries. Attendance boundaries change based on various factors and proximity does not guarantee enrollment eligibility. Please consult your real estate agent and/or the school district to confirm the schools this property is zoned to attend. Information is deemed reliable but not guaranteed.
SchoolDigger ® Rating
The SchoolDigger rating system is a 1-5 scale with 5 as the highest rating. SchoolDigger ranks schools based on test scores supplied by each state's Department of Education. They calculate an average standard score by normalizing and averaging each school's test scores across all tests and grades.
Coming soon properties will soon be on the market, but are not yet available for showings.