4708 W Coachman Avenue Tampa, FL 33611
For Sale MLS# TB8413243
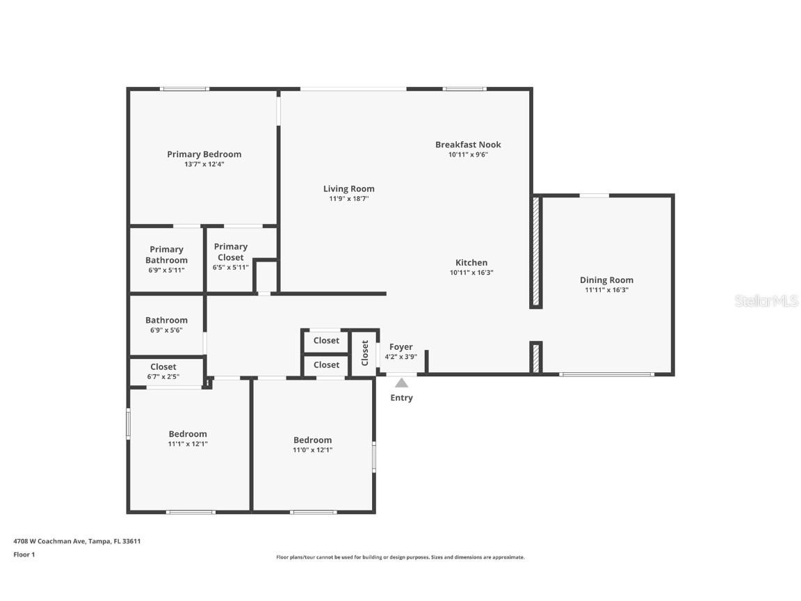
3 beds 2 baths 1,640 sq ft Single Family
Details for 4708 W Coachman Avenue
MLS# TB8413243
Description for 4708 W Coachman Avenue, Tampa, FL, 33611
Discover the perfect blend of mid-century charm and modern luxury, nestled in Tampa’s desirable 33611 neighborhood. Updated inside, this home features sleek luxury vinyl plank flooring throughout, raised-panel kitchen cabinets topped with gleaming granite counters, and stainless steel appliances. The bright, open living and dining areas are bathed in natural light through classic picture-frame windows and large glass sliding doors that seamlessly connect to an expansive, fenced backyard complete with a generous deck and mature shade trees. Spa-inspired bathrooms have been fully remodeled with premium fixtures and contemporary finishes, and all three spacious bedrooms, including the primary suite, offer comfort and style. For your peace of mind, the seller has already completed every inspection, roof, 4-point, and more. All reports are available for review. With central HVAC, a flexible floorplan offering room for expansion, and a turnkey presentation just minutes from downtown Tampa, Seminole Heights dining, and South Tampa’s shops and parks, this Coachman Avenue gem is ready for you to move right in and live beautifully. Schedule your private tour today!
Listing Information
Property Type: Residential, Single Family Residence
Status: Active
Bedrooms: 3
Bathrooms: 2
Lot Size: 0.19 Acres
Square Feet: 1,640 sq ft
Year Built: 1959
Stories: 1 Story
Construction: Block,Concrete
Subdivision: Guernsey Estates Add
Foundation: Slab
County: Hillsborough
Room Information
Main Floor
Primary Bedroom:
Living Room:
Kitchen:
Bathrooms
Full Baths: 2
Additonal Room Information
Laundry: Inside, Laundry Room
Interior Features
Appliances: Microwave, Dishwasher, Range, Refrigerator
Flooring: Luxury Vinyl
Additional Interior Features: Ceiling Fan(s)
Utilities
Water: Public
Sewer: Public Sewer
Other Utilities: Other
Cooling: Ceiling Fan(s), Central Air
Heating: Central, Electric
Exterior / Lot Features
Parking Description: driveway
Roof: Shingle
Lot Dimensions: 67x123
Additional Exterior/Lot Features: Other
Driving Directions
From Westshore Blvd go east on Coachman, home on south side.
Financial Considerations
Terms: Cash,Conventional
Tax/Property ID: A-05-30-18-3XD-000005-00007.0
Tax Amount: 5528.83
Tax Year: 2024
A broker reciprocity listing courtesy: EXP REALTY LLC
Based on information provided by Stellar MLS as distributed by the MLS GRID. Information from the Internet Data Exchange is provided exclusively for consumers’ personal, non-commercial use, and such information may not be used for any purpose other than to identify prospective properties consumers may be interested in purchasing. This data is deemed reliable but is not guaranteed to be accurate by Edina Realty, Inc., or by the MLS. Edina Realty, Inc., is not a multiple listing service (MLS), nor does it offer MLS access.
Copyright 2025 Stellar MLS as distributed by the MLS GRID. All Rights Reserved.
Payment Calculator
Interest rate and annual percentage rate (APR) are based on current market conditions, are for informational purposes only, are subject to change without notice and may be subject to pricing add-ons related to property type, loan amount, loan-to-value, credit score and other variables. Estimated closing costs used in the APR calculation are assumed to be paid by the borrower at closing. If the closing costs are financed, the loan, APR and payment amounts will be higher. If the down payment is less than 20%, mortgage insurance may be required and could increase the monthly payment and APR. Contact us for details. Additional loan programs may be available. Accuracy is not guaranteed, and all products may not be available in all borrower's geographical areas and are based on their individual situation. This is not a credit decision or a commitment to lend.
Sales History & Tax Summary for 4708 W Coachman Avenue
Sales History
| Date | Price | Change |
|---|---|---|
| Currently not available. | ||
Tax Summary
| Tax Year | Estimated Market Value | Total Tax |
|---|---|---|
| Currently not available. | ||
Data powered by ATTOM Data Solutions. Copyright© 2025. Information deemed reliable but not guaranteed.
Schools
Schools nearby 4708 W Coachman Avenue
| Schools in attendance boundaries | Grades | Distance | Rating |
|---|---|---|---|
| Loading... | |||
| Schools nearby | Grades | Distance | Rating |
|---|---|---|---|
| Loading... | |||
Data powered by ATTOM Data Solutions. Copyright© 2025. Information deemed reliable but not guaranteed.
The schools shown represent both the assigned schools and schools by distance based on local school and district attendance boundaries. Attendance boundaries change based on various factors and proximity does not guarantee enrollment eligibility. Please consult your real estate agent and/or the school district to confirm the schools this property is zoned to attend. Information is deemed reliable but not guaranteed.
SchoolDigger ® Rating
The SchoolDigger rating system is a 1-5 scale with 5 as the highest rating. SchoolDigger ranks schools based on test scores supplied by each state's Department of Education. They calculate an average standard score by normalizing and averaging each school's test scores across all tests and grades.
Coming soon properties will soon be on the market, but are not yet available for showings.