$359,900
4739 Willow Bend Avenue Parrish, FL 34219
For Sale MLS# A4664730
2 beds 2 baths 1,439 sq ft Single Family
Details for 4739 Willow Bend Avenue
MLS# A4664730
Description for 4739 Willow Bend Avenue, Parrish, FL, 34219
One or more photo(s) has been virtually staged. This extraordinary villa is a masterpiece, adorned with over $58,000 in luxurious builder upgrades, transforming every corner into a sanctuary of elegance. Step onto the exquisite wood grain tile flooring that flows through the main living areas, leading to an extended kitchen island topped with opulent custom quartz. The kitchen gleams with a stunning tile backsplash, state-of-the-art stainless steel appliances, and premium upgraded cabinets, all illuminated by sophisticated under-cabinet lighting. Look up to admire the tray ceiling, and step outside to the expansive lanai, where a gas stub awaits your outdoor grilling ambitions. The villa’s splendor continues with recessed lighting, pristine quartz counters in both bathrooms, and intricate mosaic tiles in the master shower, among other indulgent details. Canoe Creek is your private paradise, offering a peaceful escape from the urban rush while keeping you conveniently close to a plethora of amenities. Nestled near the charming areas of Lakewood Ranch and Ellenton, this exclusive community boasts a lagoon-style pool and spa, a grand clubhouse, a modern fitness room, Pickleball courts, a community kitchen, and a delightful dog park. Embrace nature at the enchanting Historic Rye Preserve and Lake Manatee, or immerse yourself in the cultural treasures at the Florida Railroad Museum just minutes away.
Listing Information
Property Type: Residential, Villa
Status: Active
Bedrooms: 2
Bathrooms: 2
Lot Size: 0.12 Acres
Square Feet: 1,439 sq ft
Year Built: 2023
Garage: Yes
Stories: 1 Story
Construction: Block,Concrete,Stucco
Subdivision: Canoe Creek Ph Ii Subph Iia & Iib
Builder: Neal
Foundation: Slab
County: Manatee
School Information
Elementary: Annie Lucy Williams Elementary
Middle: Buffalo Creek Middle
High: Parrish Community High
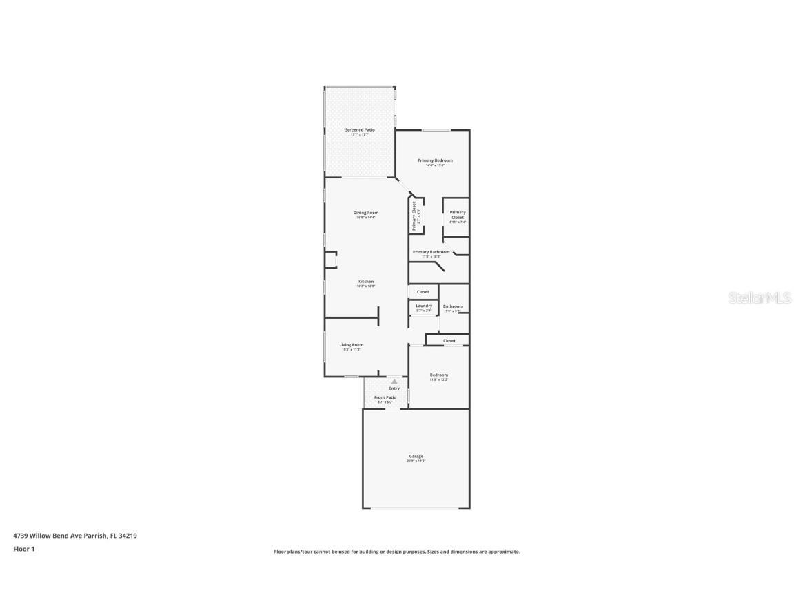
Room Information
Main Floor
Bedroom 2: 12x12
Great Room: 17x14
Kitchen: 16x13
Primary Bedroom: 14x13
Bathrooms
Full Baths: 2
Additonal Room Information
Laundry: Laundry Closet
Interior Features
Appliances: Gas Water Heater, Washer, Dishwasher, Disposal, Dryer, Microwave, Range, Refrigerator
Flooring: Carpet,Ceramic Tile
Doors/Windows: Window Treatments
Additional Interior Features: Ceiling Fan(s), Eat-In Kitchen, Tray Ceiling(s), Window Treatments, Split Bedrooms, Walk-In Closet(s), Main Level Primary, Kitchen/Family Room Combo, Open Floorplan, Stone Counters
Utilities
Water: Public
Sewer: Public Sewer
Other Utilities: Cable Connected,Electricity Connected,Natural Gas Connected,Municipal Utilities,Sewer Connected,Underground Utilities,Water Connected
Cooling: Central Air, Ceiling Fan(s)
Heating: Central
Exterior / Lot Features
Attached Garage: Attached Garage
Garage Spaces: 2
Roof: Shingle
Pool: Community
Additional Exterior/Lot Features: Storm/Security Shutters, Lighting, Sprinkler/Irrigation
Community Features
Community Features: Sidewalks, Pool, Playground, Clubhouse, Street Lights, Dog Park, Gated, Fitness, Recreation Area, Community Mailbox
Security Features: Gated Community
HOA Dues Include: Insurance, Maintenance Grounds, Pest Control, Association Management, Taxes, Recreation Facilities, Common Areas, Pool(s)
Homeowners Association: Yes
HOA Dues: $817 / Quarterly
Driving Directions
From I-75, take Exit 220 (SR 64 E) towards Wachula. After 2 miles, turn left onto Upper Manatee River Rd, then continue straight onto Fort Hamer Rd. Turn right onto Golf Course Rd, follow for 1.7 miles, then turn left onto Skipping Stone Loop and go through the gate. The road becomes Willow Bend Ave, and your destination will be on the left.
Financial Considerations
Terms: Cash,Conventional,FHA,USDA Loan,VA Loan
Tax/Property ID: 497318459
Tax Amount: 4713.84
Tax Year: 2024
A broker reciprocity listing courtesy: SIMPLIHOM
Based on information provided by Stellar MLS as distributed by the MLS GRID. Information from the Internet Data Exchange is provided exclusively for consumers’ personal, non-commercial use, and such information may not be used for any purpose other than to identify prospective properties consumers may be interested in purchasing. This data is deemed reliable but is not guaranteed to be accurate by Edina Realty, Inc., or by the MLS. Edina Realty, Inc., is not a multiple listing service (MLS), nor does it offer MLS access.
Copyright 2025 Stellar MLS as distributed by the MLS GRID. All Rights Reserved.
Payment Calculator
Interest rate and annual percentage rate (APR) are based on current market conditions, are for informational purposes only, are subject to change without notice and may be subject to pricing add-ons related to property type, loan amount, loan-to-value, credit score and other variables. Estimated closing costs used in the APR calculation are assumed to be paid by the borrower at closing. If the closing costs are financed, the loan, APR and payment amounts will be higher. If the down payment is less than 20%, mortgage insurance may be required and could increase the monthly payment and APR. Contact us for details. Additional loan programs may be available. Accuracy is not guaranteed, and all products may not be available in all borrower's geographical areas and are based on their individual situation. This is not a credit decision or a commitment to lend.
Sales History & Tax Summary for 4739 Willow Bend Avenue
Sales History
| Date | Price | Change |
|---|---|---|
| Currently not available. | ||
Tax Summary
| Tax Year | Estimated Market Value | Total Tax |
|---|---|---|
| Currently not available. | ||
Data powered by ATTOM Data Solutions. Copyright© 2025. Information deemed reliable but not guaranteed.
Schools
Schools nearby 4739 Willow Bend Avenue
| Schools in attendance boundaries | Grades | Distance | Rating |
|---|---|---|---|
| Loading... | |||
| Schools nearby | Grades | Distance | Rating |
|---|---|---|---|
| Loading... | |||
Data powered by ATTOM Data Solutions. Copyright© 2025. Information deemed reliable but not guaranteed.
The schools shown represent both the assigned schools and schools by distance based on local school and district attendance boundaries. Attendance boundaries change based on various factors and proximity does not guarantee enrollment eligibility. Please consult your real estate agent and/or the school district to confirm the schools this property is zoned to attend. Information is deemed reliable but not guaranteed.
SchoolDigger ® Rating
The SchoolDigger rating system is a 1-5 scale with 5 as the highest rating. SchoolDigger ranks schools based on test scores supplied by each state's Department of Education. They calculate an average standard score by normalizing and averaging each school's test scores across all tests and grades.
Coming soon properties will soon be on the market, but are not yet available for showings.