474 Foxhill Drive Debary, FL 32713
For Sale MLS# O6351108
3 beds 2 baths 1,763 sq ft Single Family
Details for 474 Foxhill Drive
MLS# O6351108
Description for 474 Foxhill Drive, Debary, FL, 32713
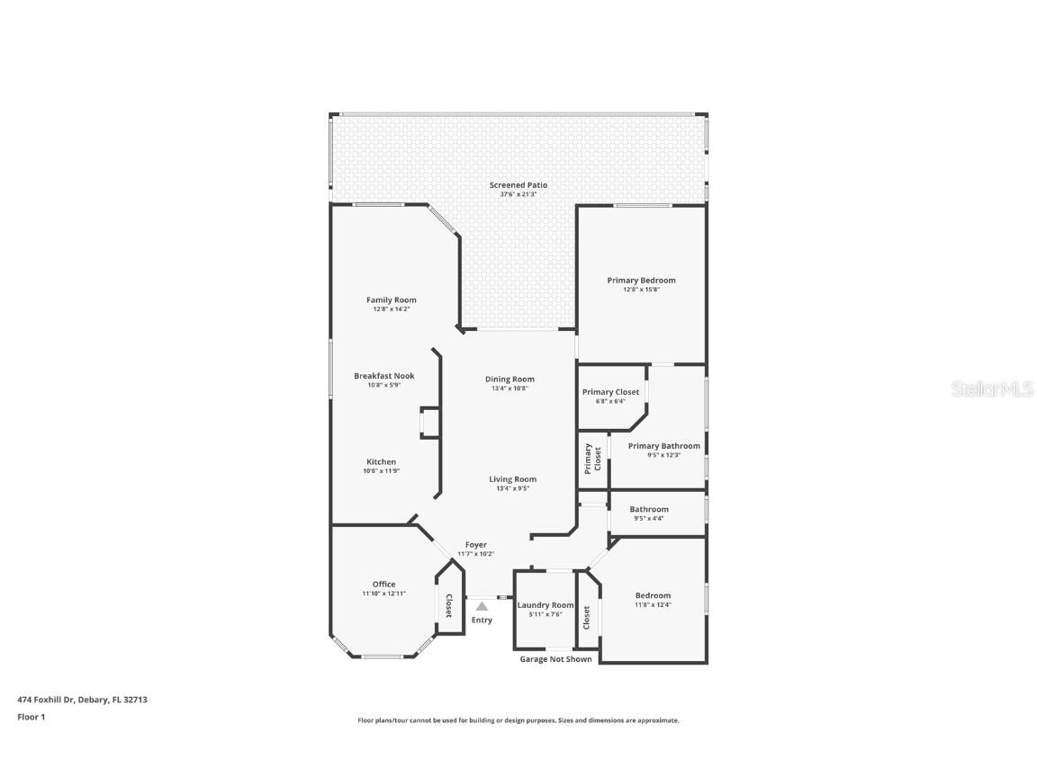
Nestled in Fairway Hills, a gated community within DeBary Golf & Country Club, this inviting 3-bedroom, 2-bath residence at 474 Foxhill Drive offers the perfect combination of quality, comfort, and convenience. With only three owners since it was built, this home has been thoughtfully maintained and features solid block construction and a 50-year tile roof for lasting peace of mind. Recent upgrades add even more value — including a new A/C system (2023), brand-new washer and dryer, and a new stove and cooktop. Inside, the open, split-bedroom floor plan provides a great sense of space and privacy, while the kitchen comes fully equipped and ready for everyday use. Outdoor living shines here with a covered lanai leading to a 40-foot screened patio, recently enhanced with brick pavers and a new privacy screen. Beyond the patio, a large, private backyard offers room to garden, play, or entertain — your own peaceful retreat beneath the Florida sunshine. Residents of Fairway Hills enjoy professional lawn service included with the HOA and access to an exclusive private tennis court. Memberships at the DeBary Golf & Country Club are available, offering golf, tennis, fitness, swimming, and dining just a short golf cart ride away. Experience the best of DeBary living — quiet, tree-lined streets, friendly neighbors, and quick access to I-4, Orlando, Sanford, Daytona Beach, and the St. Johns River. This home is a wonderful opportunity to enjoy the relaxed and refined Central Florida lifestyle. Information deemed reliable but not guaranteed; buyers are encouraged to verify all information independently.
Listing Information
Property Type: Residential, Single Family Residence
Status: Active
Bedrooms: 3
Bathrooms: 2
Lot Size: 0.19 Acres
Square Feet: 1,763 sq ft
Year Built: 1999
Garage: Yes
Stories: 1 Story
Construction: Block,Stucco
Subdivision: Debary Plantation Unit 07c
Foundation: Slab
County: Volusia
School Information
Elementary: Debary Elem
Middle: River Springs Middle School
High: University High School-Vol
Room Information
Main Floor
Bedroom 2: 11x12
Living Room: 11x14
Bathroom 3: 11x12
Porch: 11x14
Primary Bedroom: 13x16
Primary Bathroom: 13x16
Dinette: 8x11
Kitchen: 11x12
Family Room: 13x13
Dining Room: 11x14
Bathrooms
Full Baths: 2
Additonal Room Information
Laundry: Inside
Interior Features
Appliances: Microwave, Dishwasher, Disposal, Range, Refrigerator, Electric Water Heater
Flooring: Carpet,Ceramic Tile,Laminate
Additional Interior Features: Vaulted Ceiling(s), Eat-In Kitchen, Tray Ceiling(s), Cathedral Ceiling(s), Walk-In Closet(s), Split Bedrooms, Ceiling Fan(s), High Ceilings, Living/Dining Room, Kitchen/Family Room Combo, Open Floorplan, Solid Surface Counters, Separate/Formal Dining Room
Utilities
Water: Public
Sewer: Public Sewer
Other Utilities: Electricity Connected,High Speed Internet Available,Municipal Utilities,Underground Utilities,Water Connected
Cooling: Ceiling Fan(s), Central Air
Heating: Heat Pump, Electric, Central
Exterior / Lot Features
Attached Garage: Attached Garage
Garage Spaces: 2
Parking Description: Garage Door Opener, Garage
Roof: Tile
Additional Exterior/Lot Features: Sprinkler/Irrigation, Tennis Court(s), Patio, Porch, Deck, Screened, Flat, Level, Landscaped, Near Public Transit, Private Road, City Lot, Buyer Approval Required
Out Buildings: Tennis Court(s)
Community Features
Community Features: Community Mailbox, Gated, Park, Golf Carts OK, Golf, Playground, Tennis Court(s)
Security Features: Gated Community, Smoke Detector(s), Fire Hydrant(s)
Association Amenities: Maintenance Grounds, Gated, Playground, Tennis Court(s)
HOA Dues Include: Maintenance Grounds
Homeowners Association: Yes
HOA Dues: $460 / Quarterly
Driving Directions
I-4 to Exit 104 to merge onto US-17 N/US-92 E Continue on US-17 N/US-92 E. Pass by Dollar General (on the right in 4 mi). Turn left onto Debary Plantation Blvd to Foxhill Dr in DeBary.
Financial Considerations
Terms: Cash,Conventional,FHA,VA Loan
Tax/Property ID: 21-18-30-04-00-0160
Tax Amount: 2901.91
Tax Year: 2024
A broker reciprocity listing courtesy: QUANTUM REAL ESTATE GROUP
Based on information provided by Stellar MLS as distributed by the MLS GRID. Information from the Internet Data Exchange is provided exclusively for consumers’ personal, non-commercial use, and such information may not be used for any purpose other than to identify prospective properties consumers may be interested in purchasing. This data is deemed reliable but is not guaranteed to be accurate by Edina Realty, Inc., or by the MLS. Edina Realty, Inc., is not a multiple listing service (MLS), nor does it offer MLS access.
Copyright 2025 Stellar MLS as distributed by the MLS GRID. All Rights Reserved.
Payment Calculator
Interest rate and annual percentage rate (APR) are based on current market conditions, are for informational purposes only, are subject to change without notice and may be subject to pricing add-ons related to property type, loan amount, loan-to-value, credit score and other variables. Estimated closing costs used in the APR calculation are assumed to be paid by the borrower at closing. If the closing costs are financed, the loan, APR and payment amounts will be higher. If the down payment is less than 20%, mortgage insurance may be required and could increase the monthly payment and APR. Contact us for details. Additional loan programs may be available. Accuracy is not guaranteed, and all products may not be available in all borrower's geographical areas and are based on their individual situation. This is not a credit decision or a commitment to lend.
Sales History & Tax Summary for 474 Foxhill Drive
Sales History
| Date | Price | Change |
|---|---|---|
| Currently not available. | ||
Tax Summary
| Tax Year | Estimated Market Value | Total Tax |
|---|---|---|
| Currently not available. | ||
Data powered by ATTOM Data Solutions. Copyright© 2025. Information deemed reliable but not guaranteed.
Schools
Schools nearby 474 Foxhill Drive
| Schools in attendance boundaries | Grades | Distance | Rating |
|---|---|---|---|
| Loading... | |||
| Schools nearby | Grades | Distance | Rating |
|---|---|---|---|
| Loading... | |||
Data powered by ATTOM Data Solutions. Copyright© 2025. Information deemed reliable but not guaranteed.
The schools shown represent both the assigned schools and schools by distance based on local school and district attendance boundaries. Attendance boundaries change based on various factors and proximity does not guarantee enrollment eligibility. Please consult your real estate agent and/or the school district to confirm the schools this property is zoned to attend. Information is deemed reliable but not guaranteed.
SchoolDigger ® Rating
The SchoolDigger rating system is a 1-5 scale with 5 as the highest rating. SchoolDigger ranks schools based on test scores supplied by each state's Department of Education. They calculate an average standard score by normalizing and averaging each school's test scores across all tests and grades.
Coming soon properties will soon be on the market, but are not yet available for showings.