$510,000
474 Lomond Drive Port Charlotte, FL 33953 - BAYSHORE WATERWAY
For Sale MLS# C7519589
3 beds 2 baths 1,955 sq ft Single Family
Details for 474 Lomond Drive
MLS# C7519589
Description for 474 Lomond Drive, Port Charlotte, FL, 33953 - BAYSHORE WATERWAY
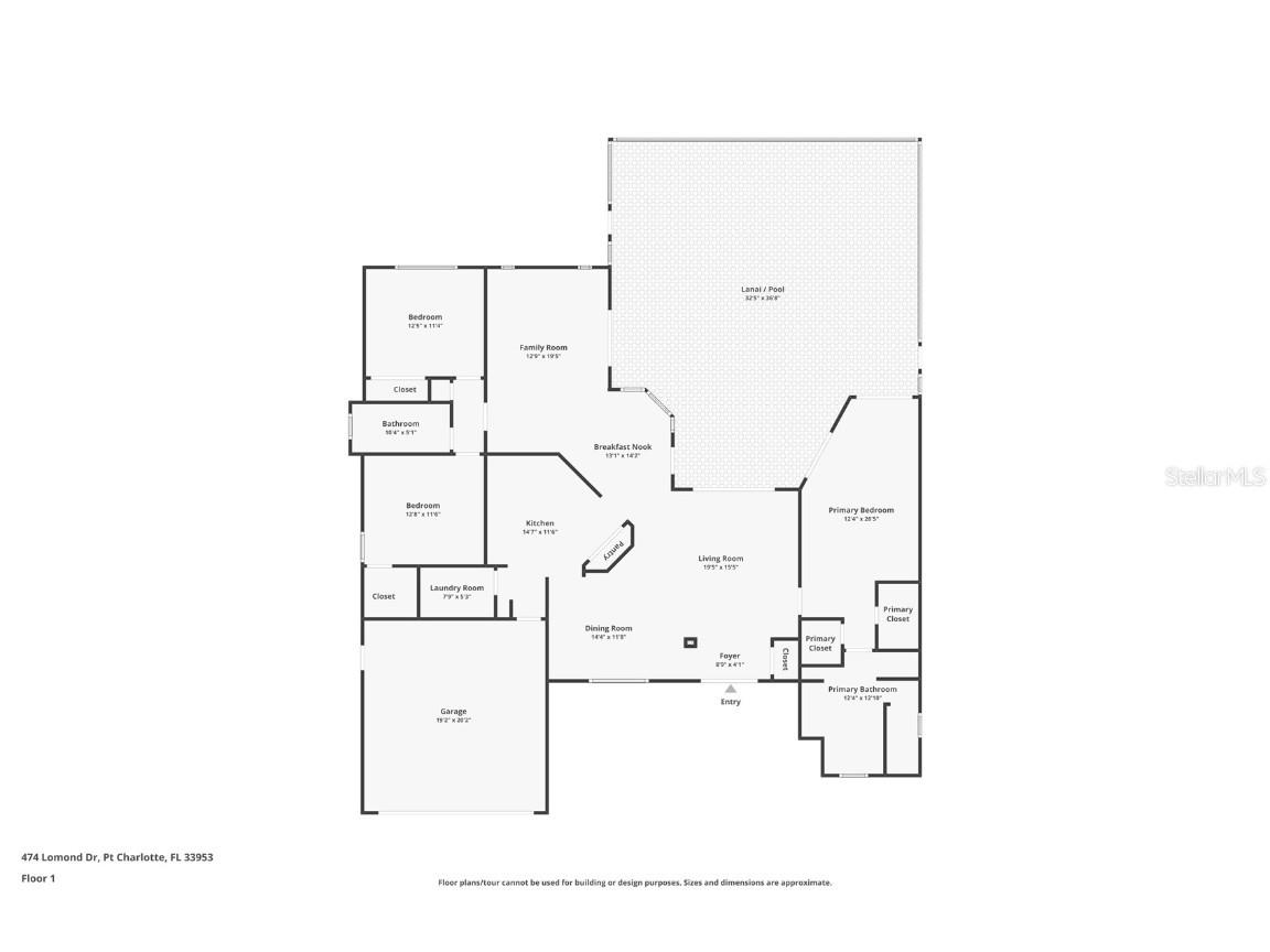
Welcome to 474 Lomond Drive, a beautifully maintained 3-bedroom, 2-bathroom waterfront pool home with a 2-car garage, perfectly situated on the Bayshore Waterway in Port Charlotte. Designed for both comfort and functionality, this home offers a great flow, ample living space, and the true Florida boating lifestyle with a private dock and peaceful water views. Inside, you’ll immediately appreciate the open, well-connected layout that allows natural light to fill the home and keeps the water views in sight. The living and dining areas flow seamlessly into the updated kitchen, making the space ideal for everyday living as well as entertaining. The kitchen offers modern finishes, generous cabinetry, and plenty of room to gather. The split-bedroom floor plan provides privacy and comfort, with spacious bedrooms and large closets throughout. The primary suite offers a relaxing retreat with ample storage and an updated en-suite bath, while the additional bedrooms are well-sized for family, guests, or a home office. Step outside to enjoy the best of Florida living. The screened pool area overlooks the waterway, creating a serene setting for relaxing or hosting guests. From your backyard, take advantage of your private dock and enjoy easy boating, fishing, and access to open water. The water view adds a beautiful backdrop to both indoor and outdoor living spaces. Recent upgrades include a new roof, new A/C, and clear storm shutters, offering peace of mind and added value. Located in a desirable Port Charlotte neighborhood, this home is ideal as a full-time residence, seasonal getaway, or investment opportunity. Waterfront views, boating access, and a thoughtfully designed layout come together in this exceptional home.
Listing Information
Property Type: Residential, Single Family Residence
Status: Active
Bedrooms: 3
Bathrooms: 2
Lot Size: 0.23 Acres
Square Feet: 1,955 sq ft
Year Built: 2002
Garage: Yes
Stories: 1 Story
Construction: Block,Stucco
Construction Display: New Construction
Subdivision: Port Charlotte Sec 032
Foundation: Slab
County: Charlotte
Construction Status: New Construction
School Information
Elementary: Liberty Elementary
Middle: Murdock Middle
High: Port Charlotte High
Room Information
Main Floor
Bedroom 2: 11.5x12.75
Living Room: 15.5x19.5
Dining Room: 11.75x14.25
Foyer: 4x8.75
Bathroom 1: 5x10.25
Bedroom 1: 11.25x12.5
Laundry: 5.25x7.75
Primary Bathroom: 12.75x12.25
Primary Bedroom: 26.5x12.25
Porch: 36.75x32.5
Family Room: 19.5x12.75
Kitchen: 11.5x14.5
Bathrooms
Full Baths: 2
Additonal Room Information
Laundry: Laundry Room, Inside
Interior Features
Appliances: Microwave, Range, Refrigerator, Dishwasher, Dryer, Freezer, Washer
Flooring: Carpet,Ceramic Tile
Doors/Windows: Window Treatments
Additional Interior Features: Eat-In Kitchen, Vaulted Ceiling(s), Built-in Features, Cathedral Ceiling(s), High Ceilings, Walk-In Closet(s), Split Bedrooms, Window Treatments, Wood Cabinets, Living/Dining Room, Solid Surface Counters, Stone Counters, Coffered Ceiling(s), Crown Molding, Open Floorplan
Utilities
Water: Public
Sewer: Septic Tank
Other Utilities: Electricity Connected,High Speed Internet Available,Municipal Utilities,Sewer Connected,Water Connected
Cooling: Central Air
Heating: Electric, Central
Exterior / Lot Features
Attached Garage: Attached Garage
Garage Spaces: 2
Parking Description: driveway, Garage, Garage Door Opener
Roof: Shingle
Pool: In Ground, Gunite, Screen Enclosure, Heated
Lot View: Canal,Pool,Water
Lot Dimensions: 80x125x80x125
Fencing: fenced
Additional Exterior/Lot Features: Rain Gutters, French Patio Doors, Storm/Security Shutters, Lighting, Storage, Covered, Enclosed, Screened, Landscaped, Oversized Lot, Outside City Limits
Out Buildings: Shed(s)
Waterfront Details
Standard Water Body: BAYSHORE WATERWAY
Water Front Features: Canal Access, Gulf Access
Community Features
Security Features: Security System Owned, Smoke Detector(s)
Driving Directions
From US-41 (Tamiami Trail) in Port Charlotte, turn onto Veterans Boulevard and head east. Continue on Veterans Boulevard for several miles, then turn left onto Atwater Street. Follow Atwater Street north and turn right onto Cornelius Boulevard. Continue on Cornelius Boulevard, then turn left onto Lomond Drive. Follow Lomond Drive until you reach 474 Lomond Dr, which will be on your right.
Financial Considerations
Terms: Cash,Conventional,FHA,VA Loan
Tax/Property ID: 402103333006
Tax Amount: 7594
Tax Year: 2024
A broker reciprocity listing courtesy: GRANT TEAM REAL ESTATE, LLC
Based on information provided by Stellar MLS as distributed by the MLS GRID. Information from the Internet Data Exchange is provided exclusively for consumers’ personal, non-commercial use, and such information may not be used for any purpose other than to identify prospective properties consumers may be interested in purchasing. This data is deemed reliable but is not guaranteed to be accurate by Edina Realty, Inc., or by the MLS. Edina Realty, Inc., is not a multiple listing service (MLS), nor does it offer MLS access.
Copyright 2026 Stellar MLS as distributed by the MLS GRID. All Rights Reserved.
Payment Calculator
Interest rate and annual percentage rate (APR) are based on current market conditions, are for informational purposes only, are subject to change without notice and may be subject to pricing add-ons related to property type, loan amount, loan-to-value, credit score and other variables. Estimated closing costs used in the APR calculation are assumed to be paid by the borrower at closing. If the closing costs are financed, the loan, APR and payment amounts will be higher. If the down payment is less than 20%, mortgage insurance may be required and could increase the monthly payment and APR. Contact us for details. Additional loan programs may be available. Accuracy is not guaranteed, and all products may not be available in all borrower's geographical areas and are based on their individual situation. This is not a credit decision or a commitment to lend.
Sales History & Tax Summary for 474 Lomond Drive
Sales History
| Date | Price | Change |
|---|---|---|
| Currently not available. | ||
Tax Summary
| Tax Year | Estimated Market Value | Total Tax |
|---|---|---|
| Currently not available. | ||
Data powered by ATTOM Data Solutions. Copyright© 2026. Information deemed reliable but not guaranteed.
Schools
Schools nearby 474 Lomond Drive
| Schools in attendance boundaries | Grades | Distance | Rating |
|---|---|---|---|
| Loading... | |||
| Schools nearby | Grades | Distance | Rating |
|---|---|---|---|
| Loading... | |||
Data powered by ATTOM Data Solutions. Copyright© 2026. Information deemed reliable but not guaranteed.
The schools shown represent both the assigned schools and schools by distance based on local school and district attendance boundaries. Attendance boundaries change based on various factors and proximity does not guarantee enrollment eligibility. Please consult your real estate agent and/or the school district to confirm the schools this property is zoned to attend. Information is deemed reliable but not guaranteed.
SchoolDigger ® Rating
The SchoolDigger rating system is a 1-5 scale with 5 as the highest rating. SchoolDigger ranks schools based on test scores supplied by each state's Department of Education. They calculate an average standard score by normalizing and averaging each school's test scores across all tests and grades.
Coming soon properties will soon be on the market, but are not yet available for showings.