475 Crystal Beach Crystal Beach, FL 34681
For Sale MLS# TB8384338
4 beds 2 baths 2,022 sq ft Single Family
Details for 475 Crystal Beach
MLS# TB8384338
Description for 475 Crystal Beach, Crystal Beach, FL, 34681
Discover a rare opportunity to own a 2022-built custom home in the coveted coastal enclave of Crystal Beach — where timeless Florida charm meets modern luxury. Set on a beautifully manicured lot with no HOA and no flood insurance required, this 4-bedroom, 2-bath residence offers over 2,200 square feet of thoughtfully designed living space, just blocks from the Gulf of Mexico, the Pinellas Trail, and Crystal Beach Pier. Step inside and experience soaring vaulted and tray ceilings, custom ceramic tile flooring, and a bright, open layout that seamlessly connects living, dining, and entertaining spaces. The chef’s kitchen is the centerpiece of the home, shaker style soft close cabinets, featuring an oversized island, solid quartz surface countertops, stone ledge backsplash, premium stainless steel appliances, a custom walk-in pantry, and designer finishes — built for everyday living and effortless hosting. The primary suite is a tranquil retreat with tray ceiling, large walk-in closet and a spa-inspired en-suite bathroom complete with dual vanities and sleek, modern finishes. Three additional bedrooms lend flexibility for family, guests, or a home office — each with generous space, ceiling fans, and stylish details. Throughout the home, you’ll find hurricane shutters, designer window treatments, and carefully curated touches that elevate both form and function. This home also features a dedicated laundry room, an electric vehicle-ready garage, an energy-efficient tankless water heater, and a reclaimed water irrigation system. Outside, the fully fenced backyard is a private oasis ready for a custom pool or garden, complete with a vinyl privacy fence, irrigation system, and rain gutters already in place. Located on a quiet street with unbeatable walkability and zoned for top-rated Palm Harbor University High School,And Ozona Elementary this residence is minutes from the waterfront, Dunedin, Tarpon Springs, and some of Florida’s most iconic beaches. Whether you’re looking for a primary residence, vacation escape, or investment in one of Tampa Bay’s most desirable coastal communities — this is modern coastal living at its finest.
Listing Information
Property Type: Residential, Single Family Residence
Status: Active
Bedrooms: 4
Bathrooms: 2
Lot Size: 0.14 Acres
Square Feet: 2,022 sq ft
Year Built: 2022
Garage: Yes
Stories: 1 Story
Construction: Block,Stucco
Property Attached: Yes
Construction Display: New Construction
Subdivision: Crystal Beach Rev
Foundation: Slab
County: Pinellas
Construction Status: New Construction
School Information
Elementary: Ozona Elementary-Pn
Middle: Palm Harbor Middle-Pn
High: Palm Harbor Univ High-Pn
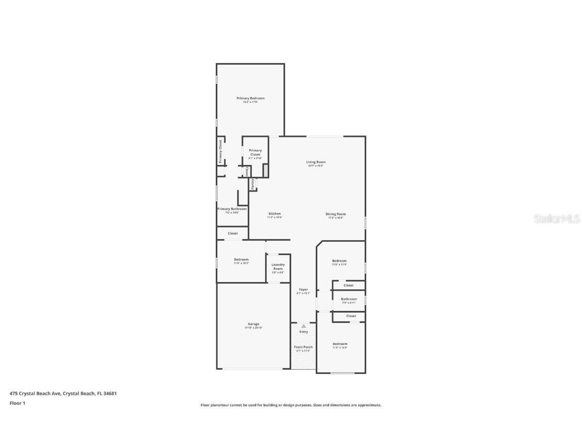
Room Information
Main Floor
Porch: 6x11
Bedroom 4: 10x12
Laundry: 6x7
Foyer: 6x15
Living Room: 15x24
Dining Room: 10x17
Kitchen: 11x15
Primary Bedroom: 16x18
Bedroom 2: 12x15
Bedroom 3: 12x12
Bathrooms
Full Baths: 2
Additonal Room Information
Laundry: Inside, Electric Dryer Hookup, Laundry Room
Interior Features
Appliances: Tankless Water Heater, Range Hood, Washer, Microwave, Range, Refrigerator, Dishwasher, Disposal, Dryer
Flooring: Ceramic Tile
Doors/Windows: Window Treatments, Shutters
Additional Interior Features: Window Treatments, Walk-In Closet(s), Tray Ceiling(s), Built-in Features, Ceiling Fan(s), Vaulted Ceiling(s), High Ceilings, Living/Dining Room, Coffered Ceiling(s), Main Level Primary, Open Floorplan, Kitchen/Family Room Combo, Wood Cabinets, Solid Surface Counters
Utilities
Water: Public
Sewer: Public Sewer
Other Utilities: Cable Available,Electricity Connected,Municipal Utilities,Sewer Connected,Water Available
Cooling: Ceiling Fan(s), Central Air
Heating: Central, Electric
Exterior / Lot Features
Garage Spaces: 2
Parking Description: Parking Pad, Golf Cart Garage, Garage Door Opener, driveway, Garage
Roof: Shingle
Fencing: Vinyl, fenced
Additional Exterior/Lot Features: Storm/Security Shutters, Sprinkler/Irrigation, Rain Gutters, Rear Porch, Patio, Flat, Level, Landscaped, Near Public Transit, Near Golf Course, Outside City Limits
Community Features
Community Features: Golf Carts OK, Park, Sidewalks
Security Features: Fire Hydrant(s)
Driving Directions
US 19 N to Nebraska-Left onto Nebraska to Alt 19-Right onto Alt 19 to Crystal Beach Ave-Left onto Crystal Beach Ave to address of 475-Home is on left
Financial Considerations
Terms: Cash,Conventional,VA Loan
Tax/Property ID: 35-27-15-19872-003-0020
Tax Amount: 10344
Tax Year: 2024
A broker reciprocity listing courtesy: EXP REALTY LLC
Based on information provided by Stellar MLS as distributed by the MLS GRID. Information from the Internet Data Exchange is provided exclusively for consumers’ personal, non-commercial use, and such information may not be used for any purpose other than to identify prospective properties consumers may be interested in purchasing. This data is deemed reliable but is not guaranteed to be accurate by Edina Realty, Inc., or by the MLS. Edina Realty, Inc., is not a multiple listing service (MLS), nor does it offer MLS access.
Copyright 2025 Stellar MLS as distributed by the MLS GRID. All Rights Reserved.
Payment Calculator
Interest rate and annual percentage rate (APR) are based on current market conditions, are for informational purposes only, are subject to change without notice and may be subject to pricing add-ons related to property type, loan amount, loan-to-value, credit score and other variables. Estimated closing costs used in the APR calculation are assumed to be paid by the borrower at closing. If the closing costs are financed, the loan, APR and payment amounts will be higher. If the down payment is less than 20%, mortgage insurance may be required and could increase the monthly payment and APR. Contact us for details. Additional loan programs may be available. Accuracy is not guaranteed, and all products may not be available in all borrower's geographical areas and are based on their individual situation. This is not a credit decision or a commitment to lend.
Sales History & Tax Summary for 475 Crystal Beach
Sales History
| Date | Price | Change |
|---|---|---|
| Currently not available. | ||
Tax Summary
| Tax Year | Estimated Market Value | Total Tax |
|---|---|---|
| Currently not available. | ||
Data powered by ATTOM Data Solutions. Copyright© 2025. Information deemed reliable but not guaranteed.
Schools
Schools nearby 475 Crystal Beach
| Schools in attendance boundaries | Grades | Distance | Rating |
|---|---|---|---|
| Loading... | |||
| Schools nearby | Grades | Distance | Rating |
|---|---|---|---|
| Loading... | |||
Data powered by ATTOM Data Solutions. Copyright© 2025. Information deemed reliable but not guaranteed.
The schools shown represent both the assigned schools and schools by distance based on local school and district attendance boundaries. Attendance boundaries change based on various factors and proximity does not guarantee enrollment eligibility. Please consult your real estate agent and/or the school district to confirm the schools this property is zoned to attend. Information is deemed reliable but not guaranteed.
SchoolDigger ® Rating
The SchoolDigger rating system is a 1-5 scale with 5 as the highest rating. SchoolDigger ranks schools based on test scores supplied by each state's Department of Education. They calculate an average standard score by normalizing and averaging each school's test scores across all tests and grades.
Coming soon properties will soon be on the market, but are not yet available for showings.