478 S Horseshoe Road Saint Augustine, FL 32084
For Sale MLS# FC313105
3 beds 3 baths 1,792 sq ft Single Family
Details for 478 S Horseshoe Road
MLS# FC313105
Description for 478 S Horseshoe Road, Saint Augustine, FL, 32084
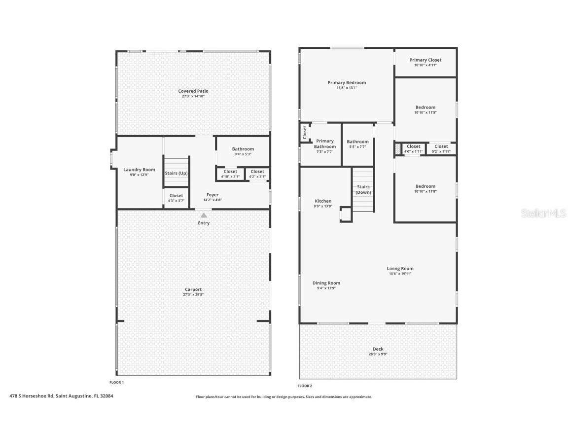
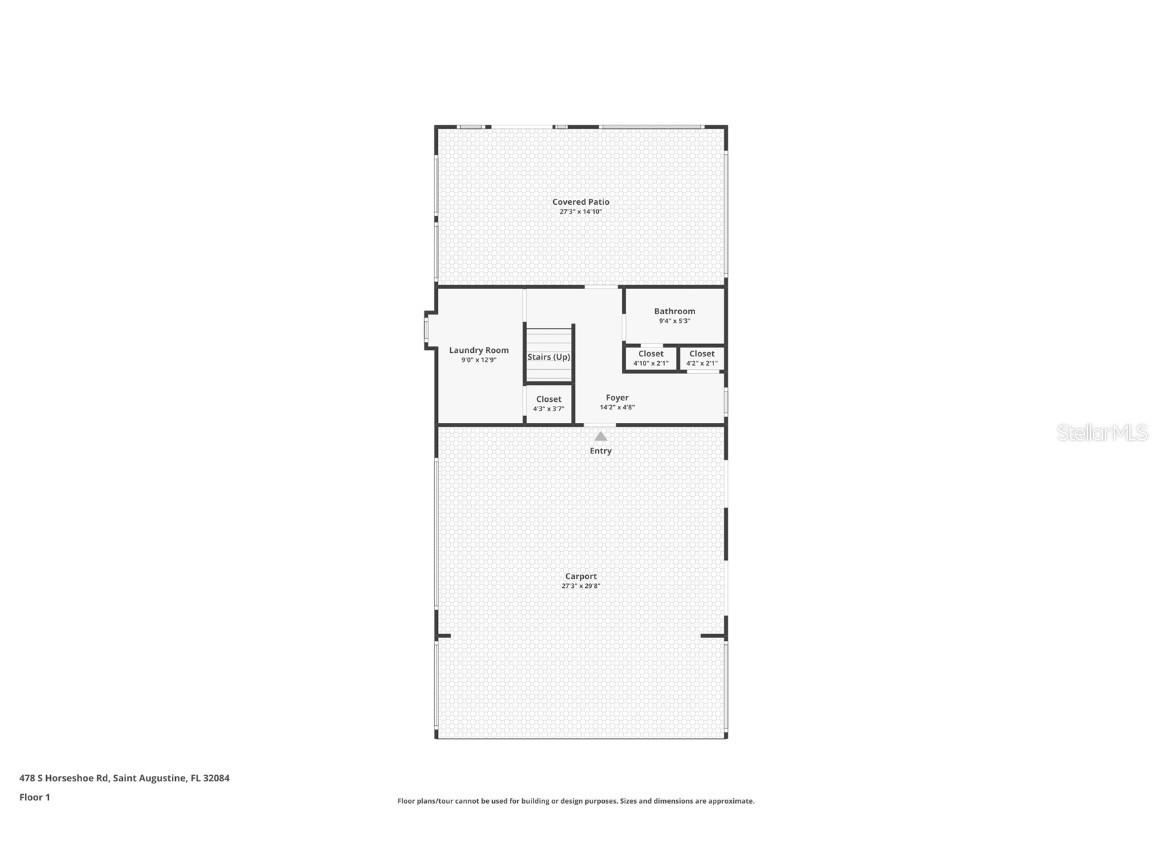
**DOUBLE LOT**NEW METAL ROOF**Welcome home to this coastal-feel property in Saint Augustine. This home boasts 3 beds/3 baths with the main living areas nestled upstairs. Downstairs, there is space for a MUDROOM, perfect for kicking off sandy shoes. The large SCREENED IN LANAI is perfect for sunny, Florida days and peaceful nights. Upstairs, the LARGE LIVING AREA is ideal for entertaining friends and family. The windows let in TONS OF NATURAL LIGHT, creating a welcoming space. Off of the living room, step out onto the LARGE COVERED DECK, with views of the marsh ahead. The HUGE MASTER SUITE features a WALK IN CLOSET and large windows. The entire property is gated, so you can feel a sense of safety. This home is located near the intercoastal waterway and state road 16, offering a variety of restaurants as well as Publix and Wawa. Don't miss out on this opportunity!
Listing Information
Property Type: Residential, Single Family Residence
Status: Active
Bedrooms: 3
Bathrooms: 3
Lot Size: 0.38 Acres
Square Feet: 1,792 sq ft
Year Built: 2002
Stories: 1 Story
Construction: Concrete,Stucco
Subdivision: Sabte Grant
Foundation: Pillar/Post/Pier
County: St Johns
School Information
Middle: Sebastian Middle School
High: St. Augustine High School
Room Information
Upper Floor
Living Room:
Kitchen:
Primary Bathroom:
Primary Bedroom:
Bathrooms
Full Baths: 3
Additonal Room Information
Laundry: Washer Hookup, Laundry Closet, Electric Dryer Hookup
Interior Features
Appliances: Electric Water Heater, Dishwasher, Disposal, Dryer, Range, Refrigerator, Washer
Flooring: Carpet,Laminate,Tile
Additional Interior Features: Open Floorplan, Ceiling Fan(s), Eat-In Kitchen, Vaulted Ceiling(s)
Utilities
Water: Well
Sewer: Septic Tank
Other Utilities: Cable Available,Sewer Available,Water Available
Cooling: Ceiling Fan(s), Central Air
Heating: Central, Electric, Heat Pump
Exterior / Lot Features
Parking Description: driveway
Roof: Metal
Additional Exterior/Lot Features: Other, Patio, Covered, Deck, Screened, Corner Lot, Cleared, Oversized Lot
Community Features
Security Features: Security System Owned
Driving Directions
US1 to SR 16 west. Turn right onto Lewis Speedway then right on Horseshoe Road. Home is on the left at the curve.
Financial Considerations
Terms: Cash,Conventional,FHA,VA Loan
Tax/Property ID: 082880-0520
Tax Amount: 4339
Tax Year: 2024
A broker reciprocity listing courtesy: CHAD AND SANDY REAL ESTATE GRP
Based on information provided by Stellar MLS as distributed by the MLS GRID. Information from the Internet Data Exchange is provided exclusively for consumers’ personal, non-commercial use, and such information may not be used for any purpose other than to identify prospective properties consumers may be interested in purchasing. This data is deemed reliable but is not guaranteed to be accurate by Edina Realty, Inc., or by the MLS. Edina Realty, Inc., is not a multiple listing service (MLS), nor does it offer MLS access.
Copyright 2026 Stellar MLS as distributed by the MLS GRID. All Rights Reserved.
Payment Calculator
Interest rate and annual percentage rate (APR) are based on current market conditions, are for informational purposes only, are subject to change without notice and may be subject to pricing add-ons related to property type, loan amount, loan-to-value, credit score and other variables. Estimated closing costs used in the APR calculation are assumed to be paid by the borrower at closing. If the closing costs are financed, the loan, APR and payment amounts will be higher. If the down payment is less than 20%, mortgage insurance may be required and could increase the monthly payment and APR. Contact us for details. Additional loan programs may be available. Accuracy is not guaranteed, and all products may not be available in all borrower's geographical areas and are based on their individual situation. This is not a credit decision or a commitment to lend.
Sales History & Tax Summary for 478 S Horseshoe Road
Sales History
| Date | Price | |
|---|---|---|
| Currently not available. | ||
Tax Summary
| Tax Year | Estimated Market Value | Total Tax |
|---|---|---|
| Currently not available. | ||
Data powered by ATTOM Data Solutions. Copyright© 2026. Information deemed reliable but not guaranteed.
Schools
Schools nearby 478 S Horseshoe Road
| Schools in attendance boundaries | Grades | Distance | Rating |
|---|---|---|---|
| Loading... | |||
| Schools nearby | Grades | Distance | Rating |
|---|---|---|---|
| Loading... | |||
Data powered by ATTOM Data Solutions. Copyright© 2026. Information deemed reliable but not guaranteed.
The schools shown represent both the assigned schools and schools by distance based on local school and district attendance boundaries. Attendance boundaries change based on various factors and proximity does not guarantee enrollment eligibility. Please consult your real estate agent and/or the school district to confirm the schools this property is zoned to attend. Information is deemed reliable but not guaranteed.
SchoolDigger ® Rating
The SchoolDigger rating system is a 1-5 scale with 5 as the highest rating. SchoolDigger ranks schools based on test scores supplied by each state's Department of Education. They calculate an average standard score by normalizing and averaging each school's test scores across all tests and grades.
Coming soon properties will soon be on the market, but are not yet available for showings.