479 South Creek Drive Osprey, FL 34229 - SOUTH CREEK/INTRACOASTAL
For Sale MLS# N6141722
5 beds 6 baths 4,261 sq ft Single Family
Details for 479 South Creek Drive
MLS# N6141722
Description for 479 South Creek Drive, Osprey, FL, 34229 - SOUTH CREEK/INTRACOASTAL
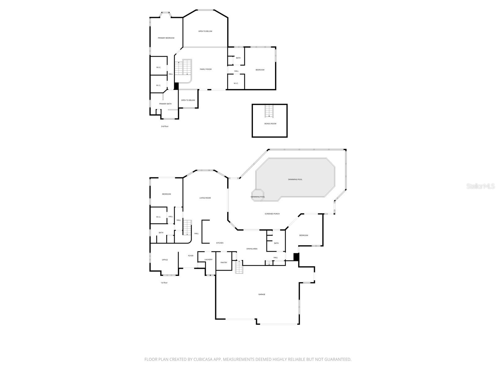
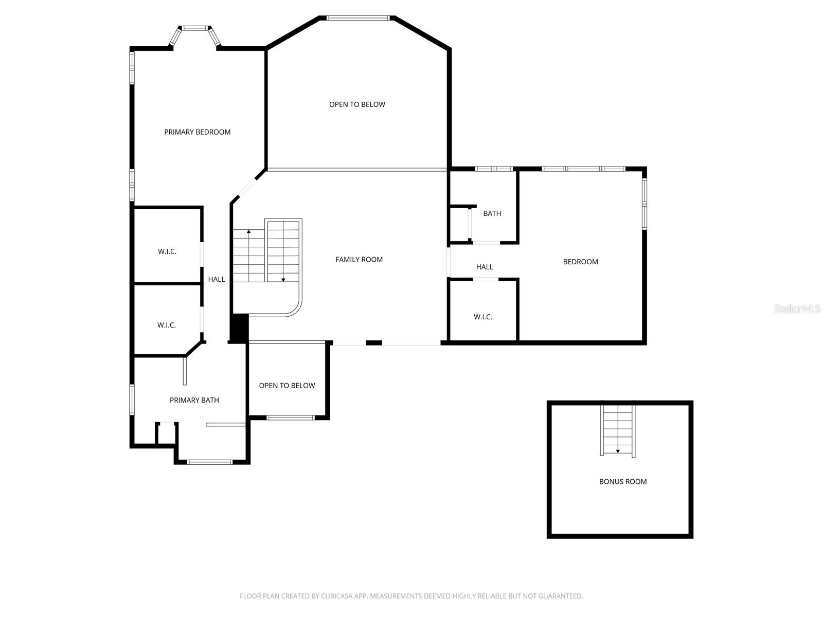
Positioned on South Creek just off the Intracoastal Waterway with beautiful views and over 130 FEET of WATERFRONT, this 5-bedroom, 5.5-bath coastal estate offers over 4,261 square feet of refined waterfront living anchored by a truly spectacular backyard oasis. The heated saltwater PebbleTec pool, featuring an impressive 10-FOOT DEPTH, is paired with a separate spa and framed by elegant travertine pavers, with a covered dining area providing a perfect setting for shaded entertaining. An expansive waterfront deck extends beyond the screened lanai for lounging and alfresco dinners overlooking the water. Steps lead to a private dock with a 10,000-pound boat lift and a DEDICATED KAYAK LAUNCH, creating seamless access to the Intracoastal lifestyle. Inside, five generously sized bedrooms each feature ensuite baths and large walk-in closets, with two bedrooms conveniently located on the first floor along with a dedicated office, den, or bonus room. The renovated kitchen is designed for both beauty and function with a Thermador cooktop, Jenn- Airconvection and built-in ovens, a large island, and a passthrough window for effortless outdoor entertaining. The dining area overlooks the pool and includes hurricane-impact sliding doors, a coffee or dry bar with mini-fridge, and additional custom cabinetry for storage. The living room is highlighted by soaring ceilings, transom windows, additional hurricane impact sliding glass doors, and charming shiplap ceiling details, creating a light-filled coastal ambiance. Upstairs, three additional bedrooms and a loft gathering area overlook the living space below, with the true primary suite on the second level along with two waterfront-view bedrooms, all featuring ensuite baths and generous closets, plus a second-floor laundry hookup for added convenience. A spacious three-car garage and elegant U-shaped driveway complete the home. This home has been replumbed and features new lift motors (2025). Located within a gated community offering a basketball court, day dock, playground, and low HOA fees, this property is just 5 miles to Nokomis Beach on Casey Key, 15 miles to downtown Sarasota, 6 miles to the Island of Venice, and 6 miles to Sarasota Memorial Hospital, with Oscar Scherer State Park right nearby for nature lovers and outdoor enthusiasts.
Listing Information
Property Type: Residential, Single Family Residence
Status: Active
Bedrooms: 5
Bathrooms: 6
Lot Size: 0.31 Acres
Square Feet: 4,261 sq ft
Year Built: 1995
Garage: Yes
Stories: 2 Story
Construction: Concrete,Stucco
Subdivision: South Creek
Foundation: Stem Wall
County: Sarasota
School Information
Elementary: Laurel Nokomis Elementary
Middle: Laurel Nokomis Middle
High: Venice Senior High
Room Information
Main Floor
Living Room: 17.5x20
Bedroom 3: 14.2x13
Bedroom 2: 14.7x15.7
Dining Room: 12.7x13
Kitchen: 16x15.9
Office: 13.7x12
Upper Floor
Bedroom 5: 12.5x16.8
Bedroom 4: 16.6x12.7
Primary Bedroom: 14.7x17.9
Loft: 35x22.7
Bathrooms
Full Baths: 5
1/2 Baths: 1
Additonal Room Information
Laundry: Other, Laundry Room, Inside
Interior Features
Appliances: Built-In Oven, Bar Fridge, Convection Oven, Microwave, Cooktop, Dishwasher, Disposal, Dryer, Refrigerator, Electric Water Heater
Flooring: Carpet,Ceramic Tile
Doors/Windows: Window Treatments, Shutters
Additional Interior Features: Split Bedrooms, Loft, Walk-In Closet(s), Window Treatments, Ceiling Fan(s), Central Vacuum, High Ceilings, Cathedral Ceiling(s), Built-in Features, Crown Molding, Dry Bar, Separate/Formal Dining Room, Wood Cabinets, Stone Counters
Utilities
Water: Public
Sewer: Public Sewer
Other Utilities: Cable Connected,Electricity Connected,Municipal Utilities,Sewer Connected,Water Connected
Cooling: Ceiling Fan(s), Central Air
Heating: Electric, Central
Exterior / Lot Features
Attached Garage: Attached Garage
Garage Spaces: 3
Parking Description: driveway, Garage, Garage Door Opener, Other
Roof: Shingle
Pool: In Ground, Gunite, Salt Water, Heated
Lot View: Canal,Intercoastal,Water
Additional Exterior/Lot Features: Storm/Security Shutters, Rain Gutters, Sprinkler/Irrigation, Outdoor Shower, Other, Lighting, Screened, Other, Deck, Rear Porch, Landscaped, Outside City Limits
Waterfront Details
Standard Water Body: SOUTH CREEK/INTRACOASTAL
Water Front Features: Canal Access
Community Features
Community Features: Gated
Security Features: Smoke Detector(s), Gated Community
Association Amenities: Other, Basketball Court, Gated, Park
HOA Dues Include: Reserve Fund, Road Maintenance, Association Management, Common Areas, Taxes, Recreation Facilities, Other
Homeowners Association: Yes
HOA Dues: $450 / Quarterly
Driving Directions
Take 41 North. Turn left on North Lane. North Lane turns into South Creek Drive. Turn left onto South Creek Drive. Home is on your left.
Financial Considerations
Terms: Cash,Conventional
Tax/Property ID: 0158100003
Tax Amount: 11095
Tax Year: 2024
A broker reciprocity listing courtesy: KELLER WILLIAMS ISLAND LIFE REAL ESTATE
Based on information provided by Stellar MLS as distributed by the MLS GRID. Information from the Internet Data Exchange is provided exclusively for consumers’ personal, non-commercial use, and such information may not be used for any purpose other than to identify prospective properties consumers may be interested in purchasing. This data is deemed reliable but is not guaranteed to be accurate by Edina Realty, Inc., or by the MLS. Edina Realty, Inc., is not a multiple listing service (MLS), nor does it offer MLS access.
Copyright 2026 Stellar MLS as distributed by the MLS GRID. All Rights Reserved.
Payment Calculator
Interest rate and annual percentage rate (APR) are based on current market conditions, are for informational purposes only, are subject to change without notice and may be subject to pricing add-ons related to property type, loan amount, loan-to-value, credit score and other variables. Estimated closing costs used in the APR calculation are assumed to be paid by the borrower at closing. If the closing costs are financed, the loan, APR and payment amounts will be higher. If the down payment is less than 20%, mortgage insurance may be required and could increase the monthly payment and APR. Contact us for details. Additional loan programs may be available. Accuracy is not guaranteed, and all products may not be available in all borrower's geographical areas and are based on their individual situation. This is not a credit decision or a commitment to lend.
Sales History & Tax Summary for 479 South Creek Drive
Sales History
| Date | Price | Change |
|---|---|---|
| Currently not available. | ||
Tax Summary
| Tax Year | Estimated Market Value | Total Tax |
|---|---|---|
| Currently not available. | ||
Data powered by ATTOM Data Solutions. Copyright© 2026. Information deemed reliable but not guaranteed.
Schools
Schools nearby 479 South Creek Drive
| Schools in attendance boundaries | Grades | Distance | Rating |
|---|---|---|---|
| Loading... | |||
| Schools nearby | Grades | Distance | Rating |
|---|---|---|---|
| Loading... | |||
Data powered by ATTOM Data Solutions. Copyright© 2026. Information deemed reliable but not guaranteed.
The schools shown represent both the assigned schools and schools by distance based on local school and district attendance boundaries. Attendance boundaries change based on various factors and proximity does not guarantee enrollment eligibility. Please consult your real estate agent and/or the school district to confirm the schools this property is zoned to attend. Information is deemed reliable but not guaranteed.
SchoolDigger ® Rating
The SchoolDigger rating system is a 1-5 scale with 5 as the highest rating. SchoolDigger ranks schools based on test scores supplied by each state's Department of Education. They calculate an average standard score by normalizing and averaging each school's test scores across all tests and grades.
Coming soon properties will soon be on the market, but are not yet available for showings.