$1,390,000
48 Audubon Lane Flagler Beach, FL 32136
For Sale MLS# FC309067
7 beds 5 baths 6,258 sq ft Single Family
Details for 48 Audubon Lane
MLS# FC309067
Description for 48 Audubon Lane, Flagler Beach, FL, 32136
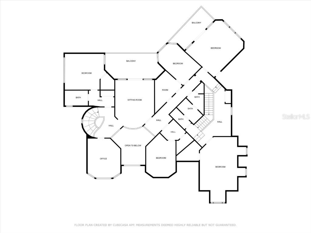
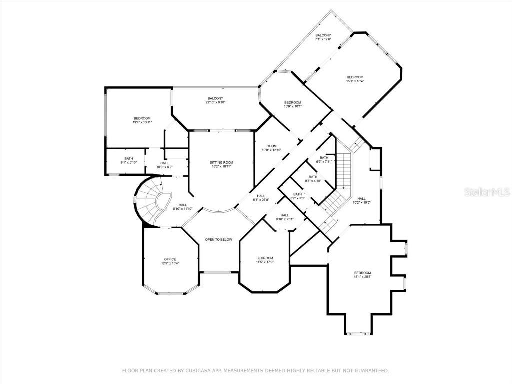
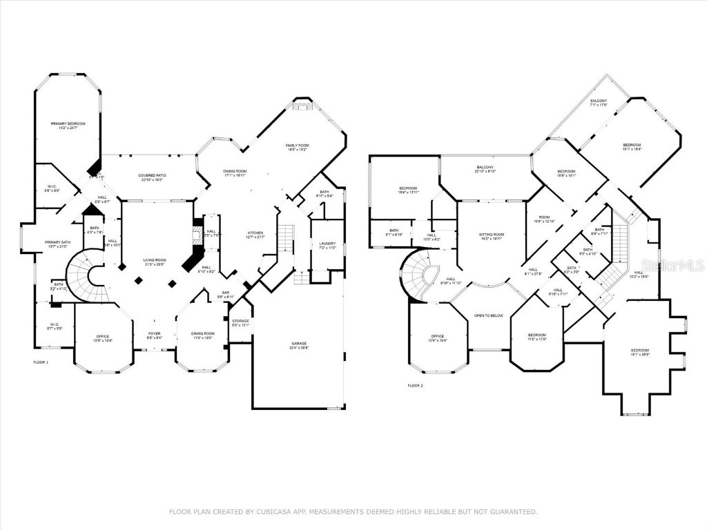
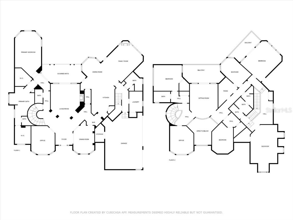
Tucked away in the prestigious Sugar Mill Plantation, this extraordinary 7 Bedroom, 4 1/2 Bath French-inspired estate is a timeless masterpiece that blends privacy, elegance, and enduring value. Encompassing over 6,000 square feet of meticulously crafted living space and graciously positioned along more than 200 acres of protected state preserve, this custom-built home offers an unmatched living experience. From the moment you arrive, the home's architectural grandeur and attention to detail captivate. Inside, exquisite craftsmanship is showcased through crown molding, stately columns, custom baseboards, and artisanal touches throughout. Two elegant gas fireplaces create cozy focal points, while 10-foot ceilings and 8-foot doors on the main level enhance the sense of space and refinement. The great room features one of the two gas fireplaces for those chilling evenings and also is equipped with surround sound. The chef’s kitchen is a dream, featuring a double oven, convection microwave, large walk-in pantry, center island with prep sink, butler’s pantry with additional sink, and a built-in wine cooler—perfect for entertaining. A beautiful formal dining room with a bay window sets the stage for memorable gatherings. Retreat to the luxurious downstairs master suite, complete with a tranquil view of the state park through a large bay window. The spa-like master bath includes a walk-in shower, Jacuzzi tub, dual sinks, marble countertops, vanity area, and two spacious walk-in closets. Ascend the elegant circular staircase to find additional bedrooms, each thoughtfully designed—including two located within the home’s signature towers, boasting expansive bay windows. A large open loft with balcony, bonus/game room with surround sound add to the home's versatility. Practical features such as two A/C units, two water heaters, an intercom system, built-in, walk-in closets in every bedroom, various closets throughout the home for additional storage, a laundry chute for added convenience, and a safe room–designed laundry area ensure both comfort and peace of mind. Every corner reveals thoughtful design, from the intricate ledges and nooks to the seamless flow between living areas. This one-of-a-kind estate must be seen to be truly appreciated—a rare offering that combines timeless style, exceptional privacy, and enduring quality in one of the area’s most sought-after neighborhoods.
Listing Information
Property Type: Residential, Single Family Residence
Status: Active
Bedrooms: 7
Bathrooms: 5
Lot Size: 0.55 Acres
Square Feet: 6,258 sq ft
Year Built: 2002
Garage: Yes
Stories: 2 Story
Construction: Block,Concrete,Stucco
Subdivision: Sugar Mill Plantation
Foundation: Slab
County: Flagler
Room Information
Main Floor
Primary Bedroom:
Dining Room:
Kitchen:
Great Room:
Bathrooms
Full Baths: 4
1/2 Baths: 1
Additonal Room Information
Laundry: Inside
Interior Features
Appliances: Range Hood, Convection Oven, Wine Refrigerator, Cooktop, Microwave, Refrigerator, Dishwasher, Disposal
Flooring: Carpet,Engineered Hardwood,Tile
Fireplaces: Family Room, Gas, Living Room
Additional Interior Features: Ceiling Fan(s), Chair Rail, Main Level Primary, Stone Counters, Crown Molding, Kitchen/Family Room Combo, Loft, Walk-In Closet(s), Tray Ceiling(s), Built-in Features, High Ceilings, Living/Dining Room, Split Bedrooms
Utilities
Water: Public
Sewer: Septic Tank
Other Utilities: Cable Available,Electricity Connected,Natural Gas Connected,Underground Utilities,Water Connected
Cooling: Central Air, Ceiling Fan(s)
Heating: Central
Exterior / Lot Features
Attached Garage: Attached Garage
Garage Spaces: 3
Roof: Shingle
Lot View: Park/Greenbelt
Additional Exterior/Lot Features: Sprinkler/Irrigation, French Patio Doors, Balcony, Balcony, Covered, Rear Porch
Community Features
Community Features: Sidewalks
Homeowners Association: Yes
HOA Dues: $350 / Semi-Annually
Driving Directions
From SR-100 & Old Kings Rd., head south on Old Kings Rd. Turn left into Sugar Mill Plantation / John Bulow Circle, then turn left on Audubon. Home is on the left.
Financial Considerations
Terms: Cash,Conventional,FHA,VA Loan
Tax/Property ID: 37-12-31-5627-00000-0630
Tax Amount: 11495.69
Tax Year: 2024
A broker reciprocity listing courtesy: TRADEMARK REALTY GROUP LLC
Based on information provided by Stellar MLS as distributed by the MLS GRID. Information from the Internet Data Exchange is provided exclusively for consumers’ personal, non-commercial use, and such information may not be used for any purpose other than to identify prospective properties consumers may be interested in purchasing. This data is deemed reliable but is not guaranteed to be accurate by Edina Realty, Inc., or by the MLS. Edina Realty, Inc., is not a multiple listing service (MLS), nor does it offer MLS access.
Copyright 2025 Stellar MLS as distributed by the MLS GRID. All Rights Reserved.
Payment Calculator
Interest rate and annual percentage rate (APR) are based on current market conditions, are for informational purposes only, are subject to change without notice and may be subject to pricing add-ons related to property type, loan amount, loan-to-value, credit score and other variables. Estimated closing costs used in the APR calculation are assumed to be paid by the borrower at closing. If the closing costs are financed, the loan, APR and payment amounts will be higher. If the down payment is less than 20%, mortgage insurance may be required and could increase the monthly payment and APR. Contact us for details. Additional loan programs may be available. Accuracy is not guaranteed, and all products may not be available in all borrower's geographical areas and are based on their individual situation. This is not a credit decision or a commitment to lend.
Sales History & Tax Summary for 48 Audubon Lane
Sales History
| Date | Price | Change |
|---|---|---|
| Currently not available. | ||
Tax Summary
| Tax Year | Estimated Market Value | Total Tax |
|---|---|---|
| Currently not available. | ||
Data powered by ATTOM Data Solutions. Copyright© 2025. Information deemed reliable but not guaranteed.
Schools
Schools nearby 48 Audubon Lane
| Schools in attendance boundaries | Grades | Distance | Rating |
|---|---|---|---|
| Loading... | |||
| Schools nearby | Grades | Distance | Rating |
|---|---|---|---|
| Loading... | |||
Data powered by ATTOM Data Solutions. Copyright© 2025. Information deemed reliable but not guaranteed.
The schools shown represent both the assigned schools and schools by distance based on local school and district attendance boundaries. Attendance boundaries change based on various factors and proximity does not guarantee enrollment eligibility. Please consult your real estate agent and/or the school district to confirm the schools this property is zoned to attend. Information is deemed reliable but not guaranteed.
SchoolDigger ® Rating
The SchoolDigger rating system is a 1-5 scale with 5 as the highest rating. SchoolDigger ranks schools based on test scores supplied by each state's Department of Education. They calculate an average standard score by normalizing and averaging each school's test scores across all tests and grades.
Coming soon properties will soon be on the market, but are not yet available for showings.