48 Hibiscus Drive Punta Gorda, FL 33950 - BLUE FISH LAGOON
For Sale MLS# C7509123
3 beds 2 baths 1,387 sq ft Single Family
Details for 48 Hibiscus Drive
MLS# C7509123
Description for 48 Hibiscus Drive, Punta Gorda, FL, 33950 - BLUE FISH LAGOON
Location and style! One of a kind, Palm Springs breeze block mid-century modern design located just a few lots from open water. Spacious kitchen with brand new retro appliances. One of a kind hanging gel fireplace. Fresh paint and new fixtures inside and out. Mature landscaping, a private mini-beach, dock with power and water, HEATED Pool, 80 feet of City Maintained Seawall, tile ROOF 2023, A/C 2016, Accordion Hurricane Shutters, circular drive, partially furnished - the list goes on….. Opportunity knocks for a SAILBOAT Water, QUICK HARBOR ACCESS home. Punta Gorda is home to many festivals, a vibrant downtown area, world-class dining, entertainment & the Pickle Plex. Approximately 30 minutes away from several Gulf beaches and easy access to I-75, route 41. Make your exclusive showing today as this home is sure to please! Virtual tour attached.
Listing Information
Property Type: Residential, Single Family Residence
Status: Active
Bedrooms: 3
Bathrooms: 2
Lot Size: 0.22 Acres
Square Feet: 1,387 sq ft
Year Built: 1970
Garage: Yes
Stories: 1 Story
Construction: Stucco
Subdivision: Punta Gorda Isles Sec 03
Foundation: Block
County: Charlotte
School Information
Elementary: East Elementary
Middle: Punta Gorda Middle
High: Charlotte High
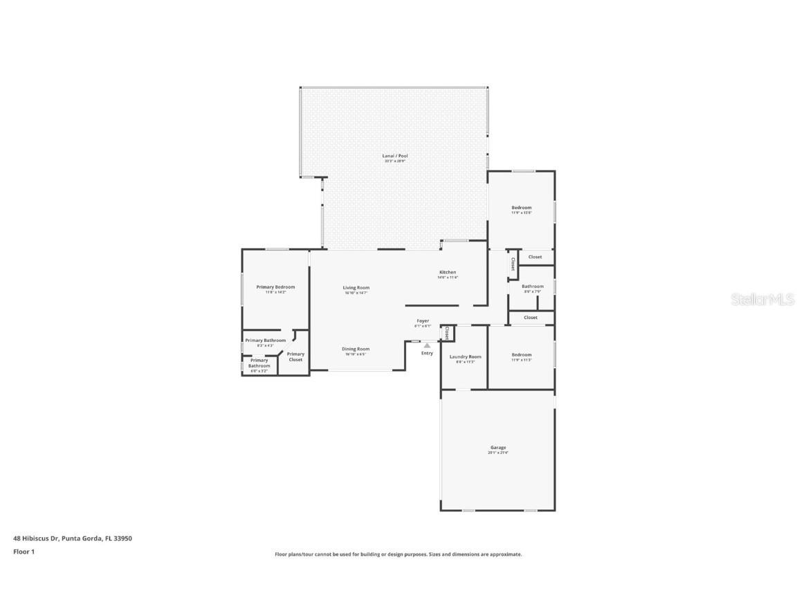
Room Information
Main Floor
Porch: 30x29
Bedroom 3: 11x11
Bedroom 2: 13x11
Primary Bedroom: 14x12
Living Room: 16x21
Kitchen: 11x16
Bathrooms
Full Baths: 2
Additonal Room Information
Laundry: Inside, Laundry Room
Interior Features
Appliances: Electric Water Heater, Range, Refrigerator, Range Hood, Dishwasher, Disposal
Flooring: Luxury Vinyl,Tile
Doors/Windows: Shutters
Fireplaces: Living Room, Free Standing
Additional Interior Features: Ceiling Fan(s), Open Floorplan, Solid Surface Counters, Main Level Primary
Utilities
Water: Public
Sewer: Public Sewer
Other Utilities: Electricity Connected,Municipal Utilities,Sewer Connected,Water Connected
Cooling: Ceiling Fan(s), Central Air
Heating: Electric, Central
Exterior / Lot Features
Attached Garage: Attached Garage
Garage Spaces: 2
Parking Description: Circular Driveway, Garage Faces Side
Roof: Tile
Pool: Fiberglass, In Ground, Heated
Lot View: Canal,Pool,Water
Lot Dimensions: 80x120
Additional Exterior/Lot Features: Sprinkler/Irrigation, Storm/Security Shutters, Deck, Enclosed, Screened, Landscaped, Flood Zone
Waterfront Details
Standard Water Body: BLUE FISH LAGOON
Water Front Features: Canal Access
Driving Directions
West Marion Ave, Right on Hibiscus, home is towards the end on the righthand side.
Financial Considerations
Terms: Cash,Conventional,FHA,VA Loan
Tax/Property ID: 412211156013
Tax Amount: 6416
Tax Year: 2024
A broker reciprocity listing courtesy: POOLE REALTY GROUP, LLC
Based on information provided by Stellar MLS as distributed by the MLS GRID. Information from the Internet Data Exchange is provided exclusively for consumers’ personal, non-commercial use, and such information may not be used for any purpose other than to identify prospective properties consumers may be interested in purchasing. This data is deemed reliable but is not guaranteed to be accurate by Edina Realty, Inc., or by the MLS. Edina Realty, Inc., is not a multiple listing service (MLS), nor does it offer MLS access.
Copyright 2025 Stellar MLS as distributed by the MLS GRID. All Rights Reserved.
Payment Calculator
Interest rate and annual percentage rate (APR) are based on current market conditions, are for informational purposes only, are subject to change without notice and may be subject to pricing add-ons related to property type, loan amount, loan-to-value, credit score and other variables. Estimated closing costs used in the APR calculation are assumed to be paid by the borrower at closing. If the closing costs are financed, the loan, APR and payment amounts will be higher. If the down payment is less than 20%, mortgage insurance may be required and could increase the monthly payment and APR. Contact us for details. Additional loan programs may be available. Accuracy is not guaranteed, and all products may not be available in all borrower's geographical areas and are based on their individual situation. This is not a credit decision or a commitment to lend.
Sales History & Tax Summary for 48 Hibiscus Drive
Sales History
| Date | Price | Change |
|---|---|---|
| Currently not available. | ||
Tax Summary
| Tax Year | Estimated Market Value | Total Tax |
|---|---|---|
| Currently not available. | ||
Data powered by ATTOM Data Solutions. Copyright© 2025. Information deemed reliable but not guaranteed.
Schools
Schools nearby 48 Hibiscus Drive
| Schools in attendance boundaries | Grades | Distance | Rating |
|---|---|---|---|
| Loading... | |||
| Schools nearby | Grades | Distance | Rating |
|---|---|---|---|
| Loading... | |||
Data powered by ATTOM Data Solutions. Copyright© 2025. Information deemed reliable but not guaranteed.
The schools shown represent both the assigned schools and schools by distance based on local school and district attendance boundaries. Attendance boundaries change based on various factors and proximity does not guarantee enrollment eligibility. Please consult your real estate agent and/or the school district to confirm the schools this property is zoned to attend. Information is deemed reliable but not guaranteed.
SchoolDigger ® Rating
The SchoolDigger rating system is a 1-5 scale with 5 as the highest rating. SchoolDigger ranks schools based on test scores supplied by each state's Department of Education. They calculate an average standard score by normalizing and averaging each school's test scores across all tests and grades.
Coming soon properties will soon be on the market, but are not yet available for showings.