4803 Park Acres Drive Bradenton, FL 34207
For Sale MLS# A4628508
2 beds 2 baths 1,044 sq ft Single Family
Details for 4803 Park Acres Drive
MLS# A4628508
Description for 4803 Park Acres Drive, Bradenton, FL, 34207
Experience the Florida lifestyle in this affordable maintenance free home, perfect for either snowbird or year-round living! This charming 2/2 villa is sturdy concrete block construction with attached carport, exterior storage and additional parking in driveway. New luxury vinyl plank along with tile flooring throughout for easy maintenance as well as an updated guest bath. Ideal floor plan with living/dining room combination and split plan for privacy. The spacious master bedroom has en suite bath with step in shower and a walk-in closet. The glass enclosed Florida room offers an additional sunny flex space with an exterior door and laundry closet with full size washer and dryer. Brand new roof/gutters and AC 2019. This vibrant 55+ pet friendly community has a heated community pool for year-round enjoyment, clubhouse and shuffleboard just steps away from your door. Fees include exterior maintenance, cable and internet, recreation facilities, trash/recycle and manager. Great central location in West Bradenton convenient to shopping, restaurants, hospitals, public transportation, downtown Bradenton/Riverwalk and SRQ Airport. Don't miss this opportunity!
Listing Information
Property Type: Residential, Villa
Status: Active
Bedrooms: 2
Bathrooms: 2
Square Feet: 1,044 sq ft
Year Built: 1972
Stories: 1 Story
Construction: Block
Subdivision: Park Acres Estates Sec I
Foundation: Slab
County: Manatee
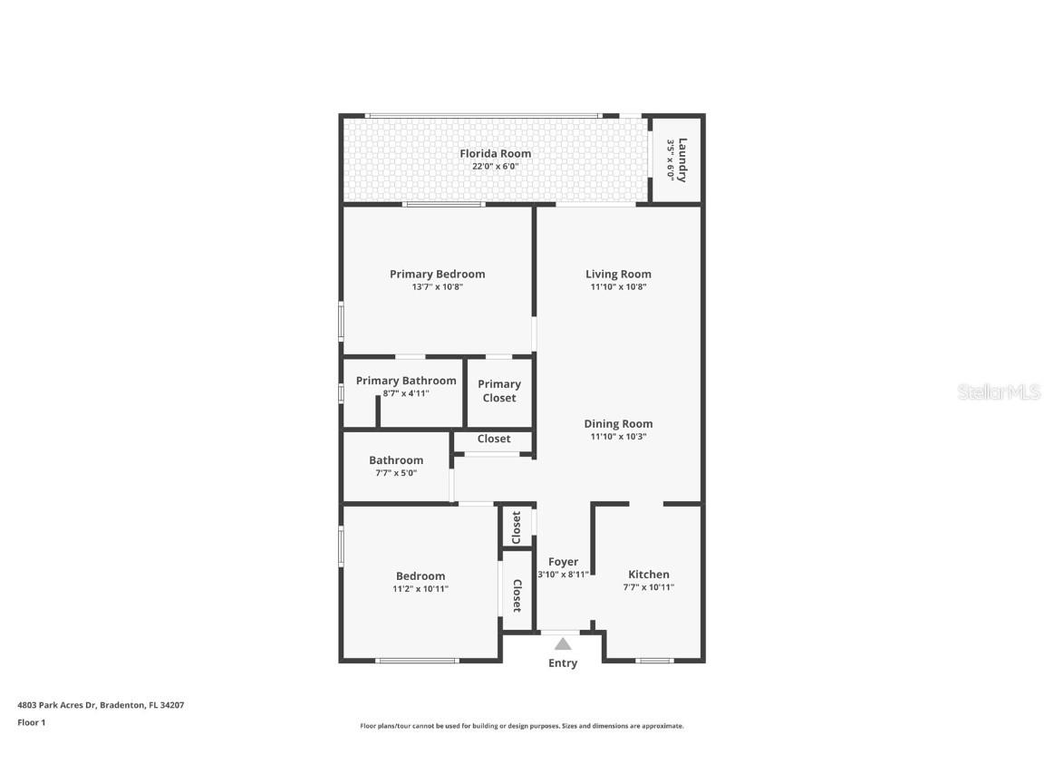
Room Information
Main Floor
Porch: 21x6
Foyer: 10x4
Bedroom 2: 11x11
Primary Bathroom: 8x5
Primary Bedroom: 11x14
Kitchen: 11x8
Great Room: 21x12
Bathrooms
Full Baths: 2
Additonal Room Information
Laundry: Inside, Laundry Closet
Interior Features
Appliances: Electric Water Heater, Microwave, Range, Refrigerator, Washer, Dishwasher, Disposal, Dryer
Flooring: Ceramic Tile,Laminate
Doors/Windows: Blinds
Additional Interior Features: Built-in Features, Living/Dining Room, Ceiling Fan(s), Split Bedrooms
Utilities
Water: Public
Sewer: Public Sewer
Other Utilities: Cable Connected,High Speed Internet Available,Municipal Utilities
Cooling: Ceiling Fan(s), Central Air
Heating: Central, Electric
Exterior / Lot Features
Parking Description: Covered, driveway
Roof: Shingle, Membrane
Pool: Community
Additional Exterior/Lot Features: Storage, Enclosed, Rear Porch, Flood Zone, Outside City Limits
Community Features
Community Features: Pool, Clubhouse
Security Features: Smoke Detector(s)
Association Amenities: Clubhouse, Shuffleboard Court, Recreation Facilities
HOA Dues Include: Pool(s), Maintenance Structure, Cable TV, Recreation Facilities, Association Management, Maintenance Grounds, Reserve Fund, Internet
Driving Directions
From US 41/Tamiami Trail/14th St W just south of Cortez Rd turn east on Orlando Ave, turn south on Park Acres Dr, unit is on the left across from clubhouse
Financial Considerations
Terms: Cash,Conventional,Owner May Carry
Tax/Property ID: 5344110407
Tax Amount: 2467
Tax Year: 2024
A broker reciprocity listing courtesy: MICHAEL SAUNDERS & COMPANY
Based on information provided by Stellar MLS as distributed by the MLS GRID. Information from the Internet Data Exchange is provided exclusively for consumers’ personal, non-commercial use, and such information may not be used for any purpose other than to identify prospective properties consumers may be interested in purchasing. This data is deemed reliable but is not guaranteed to be accurate by Edina Realty, Inc., or by the MLS. Edina Realty, Inc., is not a multiple listing service (MLS), nor does it offer MLS access.
Copyright 2026 Stellar MLS as distributed by the MLS GRID. All Rights Reserved.
Payment Calculator
Interest rate and annual percentage rate (APR) are based on current market conditions, are for informational purposes only, are subject to change without notice and may be subject to pricing add-ons related to property type, loan amount, loan-to-value, credit score and other variables. Estimated closing costs used in the APR calculation are assumed to be paid by the borrower at closing. If the closing costs are financed, the loan, APR and payment amounts will be higher. If the down payment is less than 20%, mortgage insurance may be required and could increase the monthly payment and APR. Contact us for details. Additional loan programs may be available. Accuracy is not guaranteed, and all products may not be available in all borrower's geographical areas and are based on their individual situation. This is not a credit decision or a commitment to lend.
Sales History & Tax Summary for 4803 Park Acres Drive
Sales History
| Date | Price | |
|---|---|---|
| Currently not available. | ||
Tax Summary
| Tax Year | Estimated Market Value | Total Tax |
|---|---|---|
| Currently not available. | ||
Data powered by ATTOM Data Solutions. Copyright© 2026. Information deemed reliable but not guaranteed.
Schools
Schools nearby 4803 Park Acres Drive
| Schools in attendance boundaries | Grades | Distance | Rating |
|---|---|---|---|
| Loading... | |||
| Schools nearby | Grades | Distance | Rating |
|---|---|---|---|
| Loading... | |||
Data powered by ATTOM Data Solutions. Copyright© 2026. Information deemed reliable but not guaranteed.
The schools shown represent both the assigned schools and schools by distance based on local school and district attendance boundaries. Attendance boundaries change based on various factors and proximity does not guarantee enrollment eligibility. Please consult your real estate agent and/or the school district to confirm the schools this property is zoned to attend. Information is deemed reliable but not guaranteed.
SchoolDigger ® Rating
The SchoolDigger rating system is a 1-5 scale with 5 as the highest rating. SchoolDigger ranks schools based on test scores supplied by each state's Department of Education. They calculate an average standard score by normalizing and averaging each school's test scores across all tests and grades.
Coming soon properties will soon be on the market, but are not yet available for showings.