$399,900
4823 Kathy Jo Terrace Orlando, FL 32808
For Sale MLS# O6372845
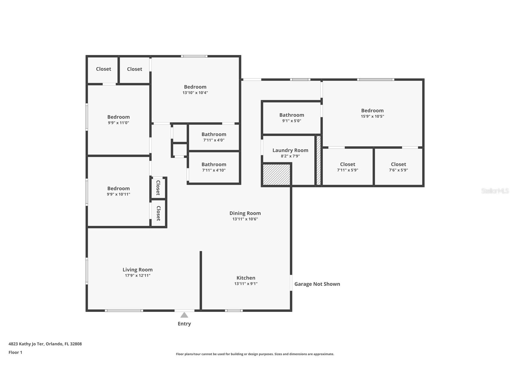
4 beds 3 baths 1,845 sq ft Single Family
Details for 4823 Kathy Jo Terrace
MLS# O6372845
Description for 4823 Kathy Jo Terrace, Orlando, FL, 32808
Beautifully reimagined and fully remodeled residence at 4823 Kathy Jo Ter, Orlando, FL 32808, offering refined living with modern design and exceptional craftsmanship. This home has been thoughtfully renovated from the ground up, including the enclosure of the rear porch, creating a spacious and functional 4-bedroom, 3-bath layout with an interior laundry room. Every major system has been upgraded for long-term peace of mind, including new underground sewer lines, plumbing, electrical, HVAC system with new ductwork, roof, windows, and doors—all work fully permitted. Elegant wood-look porcelain tile flows seamlessly throughout the home, enhancing both durability and style. The kitchen is designed to impress, featuring gray soft-close shaker cabinetry with modern hardware, clean lines, and ample storage—perfect for both everyday living and entertaining. All bathrooms have been completely redesigned with contemporary finishes, featuring two sleek stand-up showers and one bathroom with a soaking bathtub, offering both spa-like comfort and family-friendly functionality. The newly created primary suite serves as a private retreat, complete with a generous ensuite bath and dual walk-in closets. A full two-car garage adds convenience and functionality. Ideally located near major roadways, shopping, schools, and downtown Orlando, this home delivers a rare blend of luxury, comfort, and thoughtful upgrades. A truly turn-key property where no detail has been overlooked.
Listing Information
Property Type: Residential, Single Family Residence
Status: Active
Bedrooms: 4
Bathrooms: 3
Lot Size: 0.20 Acres
Square Feet: 1,845 sq ft
Year Built: 1965
Garage: Yes
Stories: 1 Story
Construction: Block,Concrete
Subdivision: Sylvan Hylands First Add
Foundation: Slab
County: Orange
Room Information
Main Floor
Bathroom 4:
Primary Bedroom: 12x11
Living Room: 13x18
Kitchen: 9x14
Family Room: 12x16
Bedroom 3: 10x11
Bedroom 2: 10x11
Bathrooms
Full Baths: 3
Additonal Room Information
Laundry: Inside
Interior Features
Appliances: Disposal, Microwave, Range, Refrigerator
Flooring: Porcelain Tile
Additional Interior Features: Ceiling Fan(s), Walk-In Closet(s), Living/Dining Room, Kitchen/Family Room Combo, Open Floorplan
Utilities
Sewer: Public Sewer
Other Utilities: Cable Available,Water Not Available
Cooling: Central Air, Ceiling Fan(s)
Heating: Central, Window Unit, Wall Furnace
Exterior / Lot Features
Attached Garage: Attached Garage
Garage Spaces: 2
Roof: Shingle
Additional Exterior/Lot Features: Other
Driving Directions
FL-408 West (East-West Expressway) toward Downtown Orlando. Take Exit 6 for Pine Hills Road, then turn right onto Pine Hills Rd. Turn left onto Silver Star Rd, then right onto Kathy Jo Terrace. The property, 4823 Kathy Jo Terrace, will be on your left.
Financial Considerations
Terms: Cash,Conventional,FHA,VA Loan
Tax/Property ID: 18-22-29-8511-11-040
Tax Amount: 3430
Tax Year: 2025
A broker reciprocity listing courtesy: EXP REALTY LLC
Based on information provided by Stellar MLS as distributed by the MLS GRID. Information from the Internet Data Exchange is provided exclusively for consumers’ personal, non-commercial use, and such information may not be used for any purpose other than to identify prospective properties consumers may be interested in purchasing. This data is deemed reliable but is not guaranteed to be accurate by Edina Realty, Inc., or by the MLS. Edina Realty, Inc., is not a multiple listing service (MLS), nor does it offer MLS access.
Copyright 2026 Stellar MLS as distributed by the MLS GRID. All Rights Reserved.
Payment Calculator
Interest rate and annual percentage rate (APR) are based on current market conditions, are for informational purposes only, are subject to change without notice and may be subject to pricing add-ons related to property type, loan amount, loan-to-value, credit score and other variables. Estimated closing costs used in the APR calculation are assumed to be paid by the borrower at closing. If the closing costs are financed, the loan, APR and payment amounts will be higher. If the down payment is less than 20%, mortgage insurance may be required and could increase the monthly payment and APR. Contact us for details. Additional loan programs may be available. Accuracy is not guaranteed, and all products may not be available in all borrower's geographical areas and are based on their individual situation. This is not a credit decision or a commitment to lend.
Sales History & Tax Summary for 4823 Kathy Jo Terrace
Sales History
| Date | Price | |
|---|---|---|
| Currently not available. | ||
Tax Summary
| Tax Year | Estimated Market Value | Total Tax |
|---|---|---|
| Currently not available. | ||
Data powered by ATTOM Data Solutions. Copyright© 2026. Information deemed reliable but not guaranteed.
Schools
Schools nearby 4823 Kathy Jo Terrace
| Schools in attendance boundaries | Grades | Distance | Rating |
|---|---|---|---|
| Loading... | |||
| Schools nearby | Grades | Distance | Rating |
|---|---|---|---|
| Loading... | |||
Data powered by ATTOM Data Solutions. Copyright© 2026. Information deemed reliable but not guaranteed.
The schools shown represent both the assigned schools and schools by distance based on local school and district attendance boundaries. Attendance boundaries change based on various factors and proximity does not guarantee enrollment eligibility. Please consult your real estate agent and/or the school district to confirm the schools this property is zoned to attend. Information is deemed reliable but not guaranteed.
SchoolDigger ® Rating
The SchoolDigger rating system is a 1-5 scale with 5 as the highest rating. SchoolDigger ranks schools based on test scores supplied by each state's Department of Education. They calculate an average standard score by normalizing and averaging each school's test scores across all tests and grades.
Coming soon properties will soon be on the market, but are not yet available for showings.