4835 Drake Street Maple Plain, MN 55359
For Sale MLS# 6773579
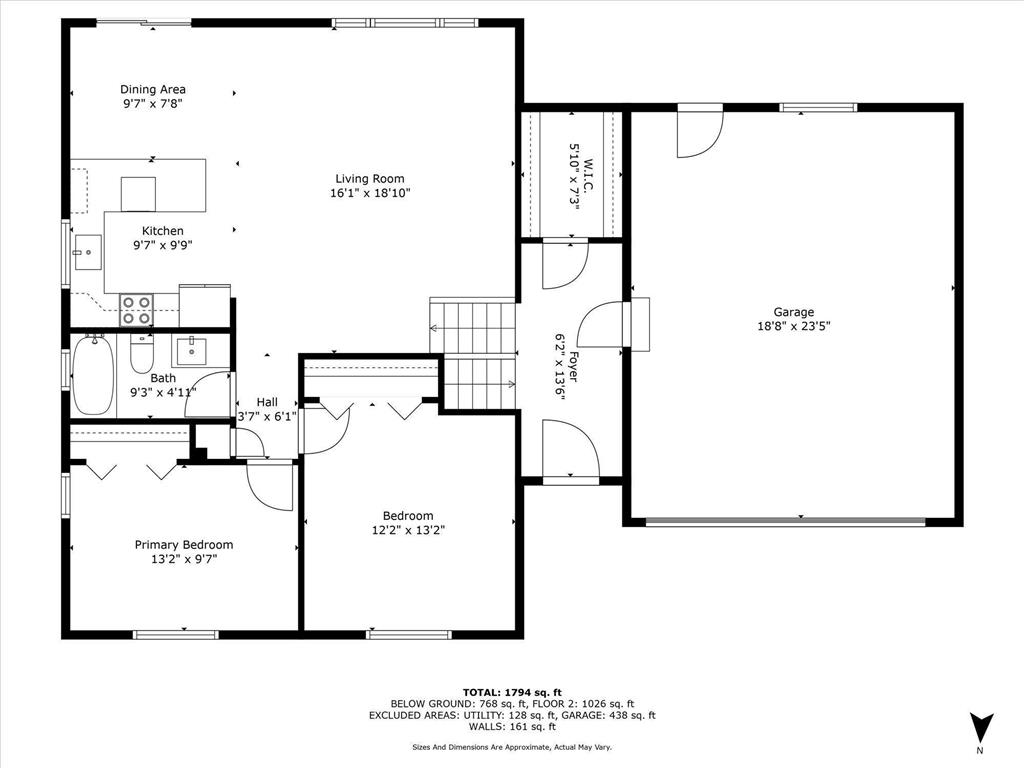
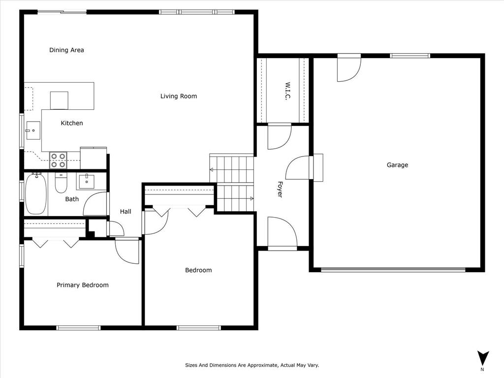
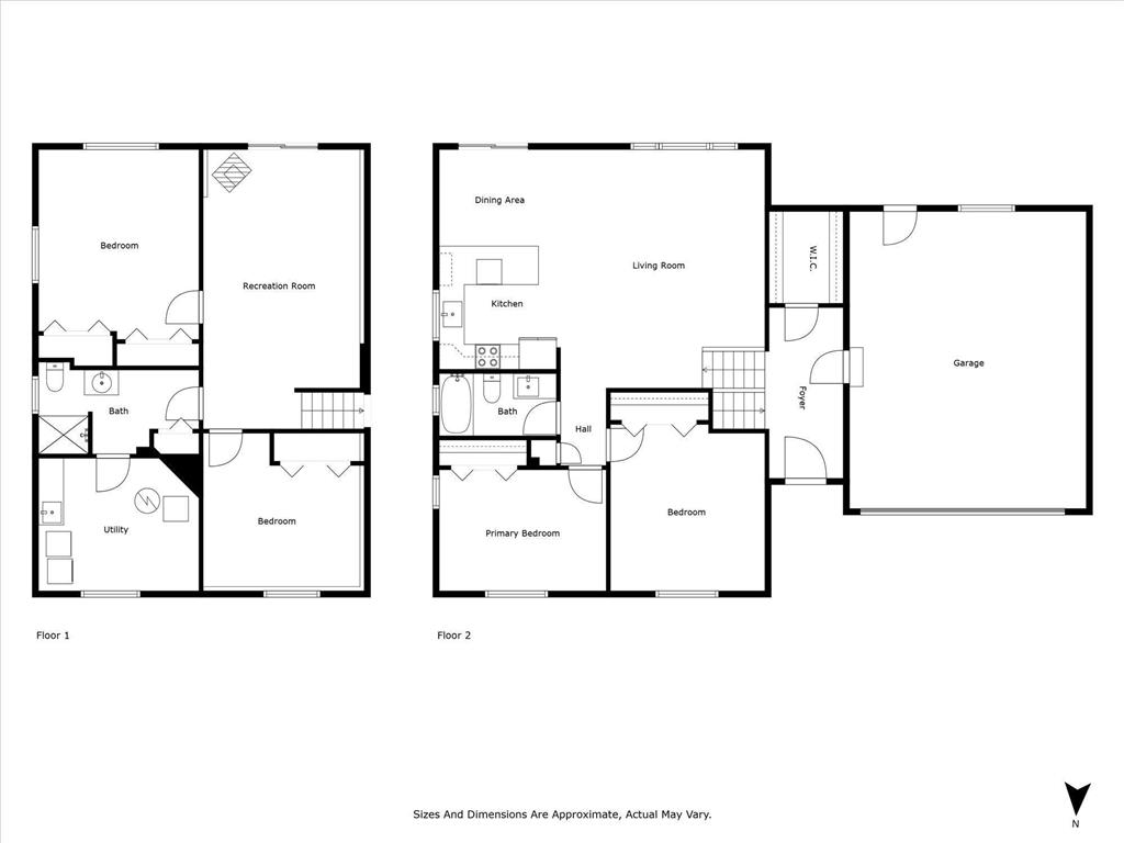
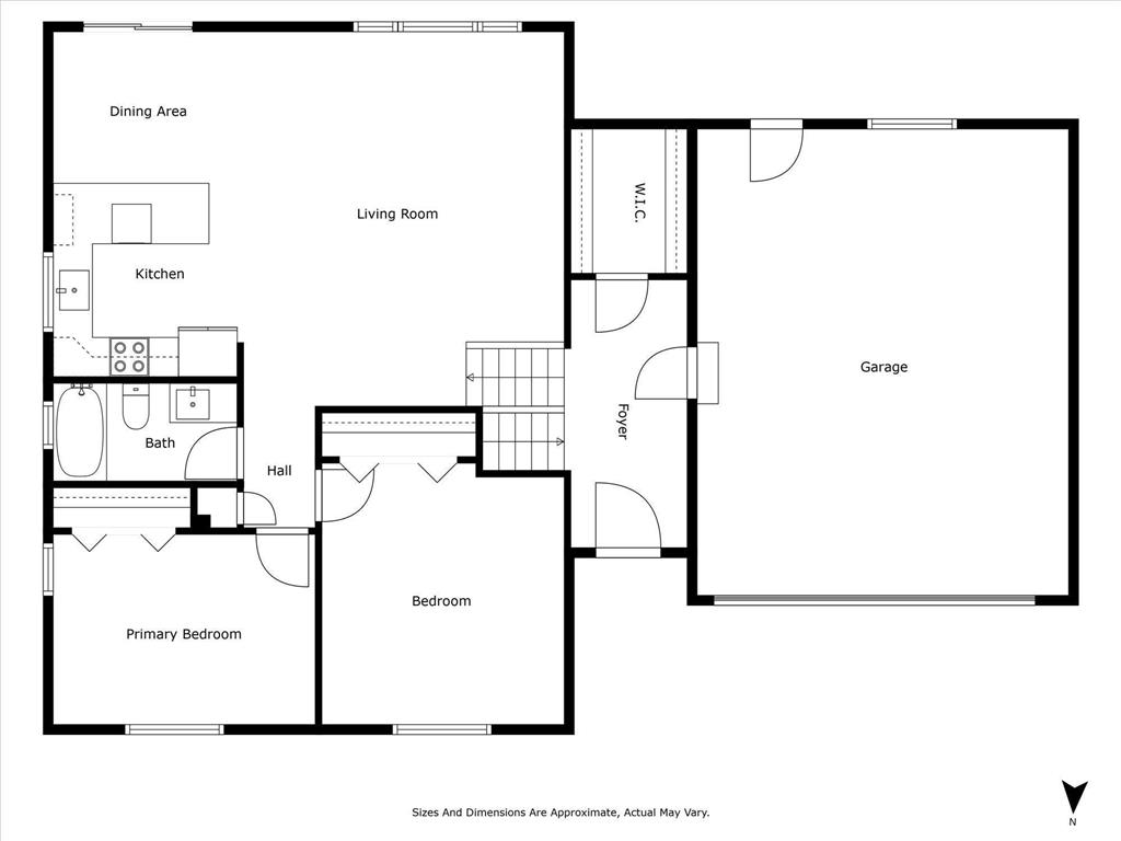
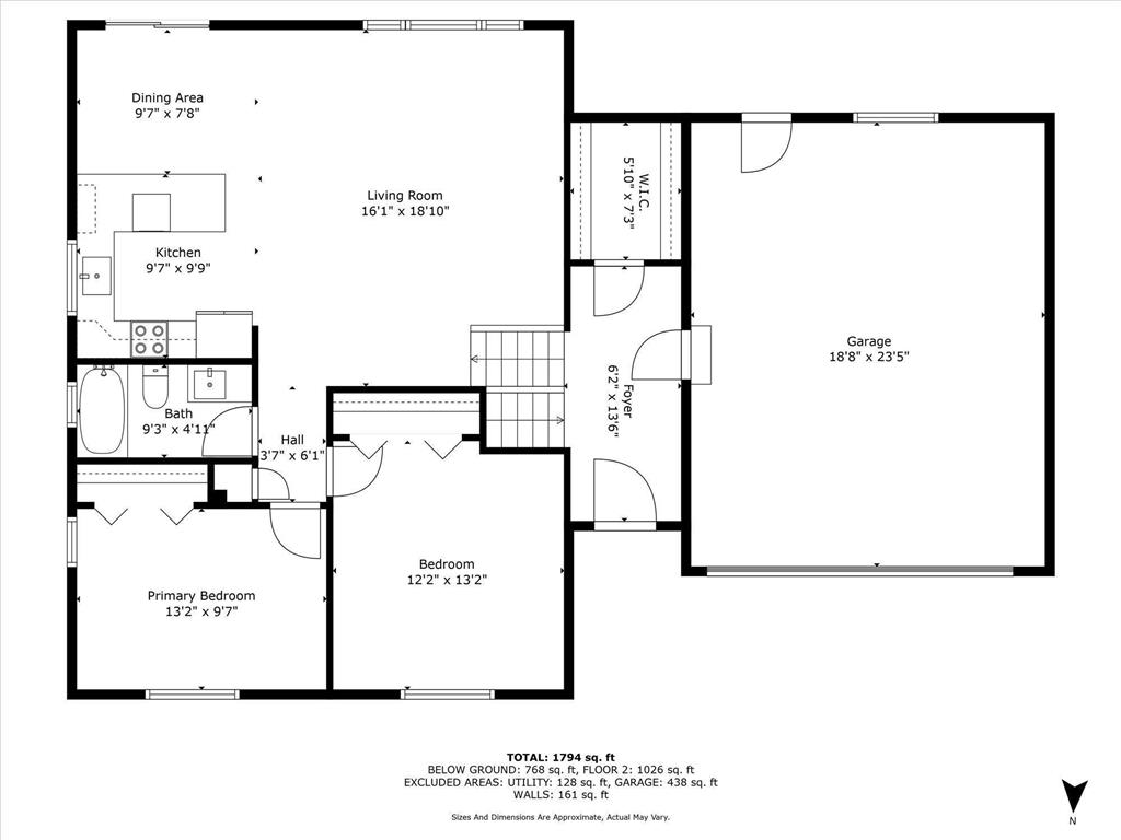
4 beds 2 baths 1,922 sq ft Single Family
Details for 4835 Drake Street
MLS# 6773579
Description for 4835 Drake Street, Maple Plain, MN, 55359
Step into this beautifully updated 4-bedroom, 2-bath home located in the highly sought-after Orono School District. Every detail has been thoughtfully modernized—featuring all new stainless steel appliances, updated kitchens and baths, and fresh finishes throughout. Major mechanicals have been upgraded, giving you peace of mind for years to come. The functional layout offers spacious living areas filled with natural light, a stylish and open kitchen, and comfortable bedrooms with generous closet space. Enjoy the perfect blend of modern updates and move-in ready convenience in an exceptional location close to parks, trails and lake Independence.
Listing Information
Property Type: Residential, Single Family
Status: Active
Bedrooms: 4
Bathrooms: 2
Lot Size: 0.29 Acres
Square Feet: 1,922 sq ft
Year Built: 1970
Foundation: 1,026 sq ft
Garage: Yes
Stories: 1.5 Stories
Subdivision: Gladview Gardens 1st Add
County: Hennepin
Days On Market: 138
Construction Status: Previously Owned
School Information
District: 278 - Orono
Room Information
Bathrooms
Full Baths: 2
Interior Features
Square Footage above: 1,026 sq ft
Square Footage below: 896 sq ft
Basement: Walkout
Fireplaces: 1
Utilities
Water: City Water/Connected
Sewer: City Sewer/Connected
Cooling: Central
Heating: Forced Air, Natural Gas
Exterior / Lot Features
Attached Garage: Attached Garage
Garage Spaces: 2
Parking Description: Attached Garage, Garage Sq Ft - 438.0
Exterior: Stucco
Lot Dimensions: .29
Zoning: Residential-Single Family
Driving Directions
Take highway 12 to Howard and go north. Take a right on Drake St. House will be on your right.
Financial Considerations
Tax/Property ID: 2411824440053
Tax Amount: 4105
Tax Year: 2025
HomeStead Description: Non-Homesteaded
A broker reciprocity listing courtesy: Lifecycle Real Estate Services
The data relating to real estate for sale on this web site comes in part from the Broker Reciprocityâ„ Program of the Regional Multiple Listing Service of Minnesota, Inc. Real estate listings held by brokerage firms other than Edina Realty, Inc. are marked with the Broker Reciprocityâ„ logo or the Broker Reciprocityâ„ thumbnail and detailed information about them includes the name of the listing brokers. Edina Realty, Inc. is not a Multiple Listing Service (MLS), nor does it offer MLS access. This website is a service of Edina Realty, Inc., a broker Participant of the Regional Multiple Listing Service of Minnesota, Inc. IDX information is provided exclusively for consumers personal, non-commercial use and may not be used for any purpose other than to identify prospective properties consumers may be interested in purchasing. Open House information is subject to change without notice. Information deemed reliable but not guaranteed.
Copyright 2025 Regional Multiple Listing Service of Minnesota, Inc. All Rights Reserved.
Payment Calculator
Interest rate and annual percentage rate (APR) are based on current market conditions, are for informational purposes only, are subject to change without notice and may be subject to pricing add-ons related to property type, loan amount, loan-to-value, credit score and other variables. Estimated closing costs used in the APR calculation are assumed to be paid by the borrower at closing. If the closing costs are financed, the loan, APR and payment amounts will be higher. If the down payment is less than 20%, mortgage insurance may be required and could increase the monthly payment and APR. Contact us for details. Additional loan programs may be available. Accuracy is not guaranteed, and all products may not be available in all borrower's geographical areas and are based on their individual situation. This is not a credit decision or a commitment to lend.
Sales History & Tax Summary for 4835 Drake Street
Sales History
| Date | Price | Change |
|---|---|---|
| Currently not available. | ||
Tax Summary
| Tax Year | Estimated Market Value | Total Tax |
|---|---|---|
| Currently not available. | ||
Data powered by ATTOM Data Solutions. Copyright© 2025. Information deemed reliable but not guaranteed.
Schools
Schools nearby 4835 Drake Street
| Schools in attendance boundaries | Grades | Distance | Rating |
|---|---|---|---|
| Loading... | |||
| Schools nearby | Grades | Distance | Rating |
|---|---|---|---|
| Loading... | |||
Data powered by ATTOM Data Solutions. Copyright© 2025. Information deemed reliable but not guaranteed.
The schools shown represent both the assigned schools and schools by distance based on local school and district attendance boundaries. Attendance boundaries change based on various factors and proximity does not guarantee enrollment eligibility. Please consult your real estate agent and/or the school district to confirm the schools this property is zoned to attend. Information is deemed reliable but not guaranteed.
SchoolDigger ® Rating
The SchoolDigger rating system is a 1-5 scale with 5 as the highest rating. SchoolDigger ranks schools based on test scores supplied by each state's Department of Education. They calculate an average standard score by normalizing and averaging each school's test scores across all tests and grades.
Coming soon properties will soon be on the market, but are not yet available for showings.