4837 Walden Circle #11 Orlando, FL 32811
For Sale MLS# O6342418
2 beds 3 baths 1,228 sq ft Townhouse/Twinhome
Details for 4837 Walden Circle #11
MLS# O6342418
Description for 4837 Walden Circle #11, Orlando, FL, 32811
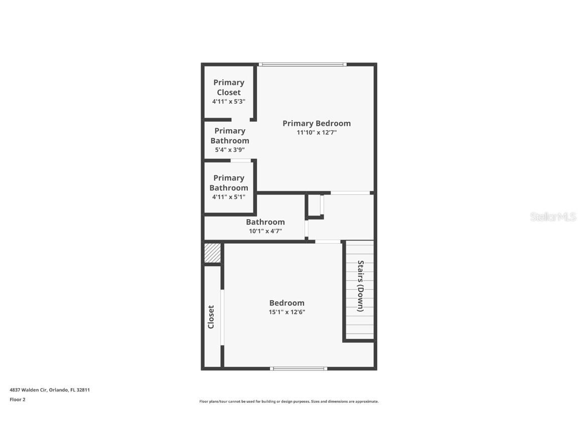
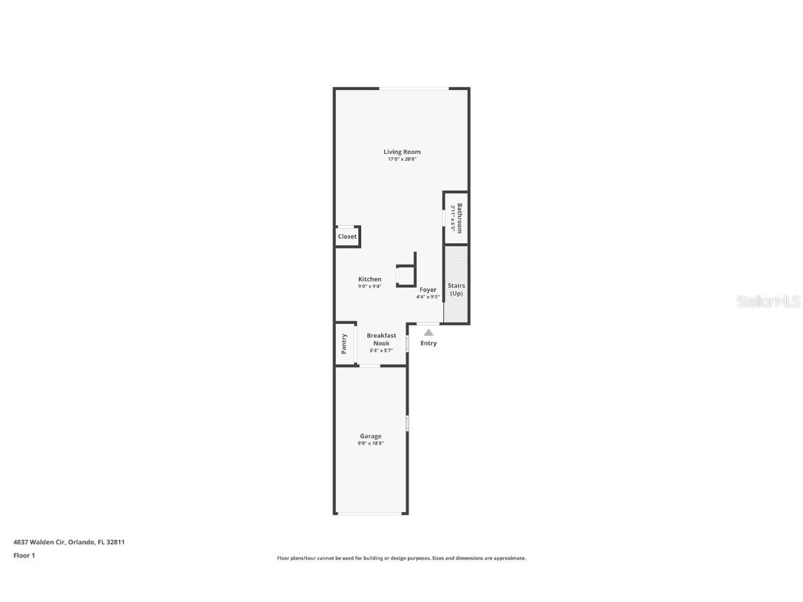
Welcome home to this charming 2-bedroom, 2.5-bathroom townhome nestled in Cypress Creek Golf Townhome community.As you step inside, you’re greeted by an open floor plan that seamlessly connects the living area and kitchen—perfect for both relaxing evenings and entertaining. The kitchen is thoughtfully designed with stainless steel appliances, a pantry, and a cozy eat-in nook that provides convenient access to the attached one-car garage. The spacious living room features sliding glass doors that open to a private patio, while a convenient half-bath completes the first floor.Upstairs, you’ll find two inviting bedrooms, each offering comfort and privacy. The primary suite boasts a walk-in closet and a well-appointed bathroom with a separate vanity area, private water closet, and a stand-alone shower. The second bedroom includes a built-in closet and enjoys easy access to the guest bathroom, also featuring a stand-alone shower.Cypress Creek residents can take advantage of the community pool and a prime location—just minutes from The Mall at Millenia, world-famous theme parks, Downtown Orlando, Orlando International Airport, and major highways.This delightful townhome combines comfort, convenience, and community living all in one
Listing Information
Property Type: Residential, Townhouse
Status: Active
Bedrooms: 2
Bathrooms: 3
Lot Size: 0.15 Acres
Square Feet: 1,228 sq ft
Year Built: 1987
Garage: Yes
Stories: 2 Story
Construction: Block,Concrete,Stucco
Subdivision: Cypress Creek Golf Twnhms
Foundation: Other
County: Orange
Room Information
Main Floor
Living Room: 20x17
Kitchen: 9x9
Upper Floor
Bedroom 2: 12x15
Primary Bedroom: 12x11
Bathrooms
Full Baths: 2
1/2 Baths: 1
Additonal Room Information
Laundry: Other
Interior Features
Appliances: Range, Refrigerator, Dishwasher, Microwave
Flooring: Laminate
Additional Interior Features: Walk-In Closet(s), Eat-In Kitchen, Ceiling Fan(s), Upper Level Primary, Open Floorplan
Utilities
Water: Public
Sewer: Public Sewer
Other Utilities: Municipal Utilities
Cooling: Ceiling Fan(s), Central Air
Heating: Electric
Exterior / Lot Features
Attached Garage: Attached Garage
Garage Spaces: 1
Roof: Tile
Pool: Community
Additional Exterior/Lot Features: Patio
Community Features
Community Features: Sidewalks, Pool
HOA Dues Include: Maintenance Structure, Pool(s)
Homeowners Association: Yes
HOA Dues: $450 / Monthly
Driving Directions
I-4 E, Take exit 78 toward Conroy Rd, Turn left onto Conroy Rd, Turn left onto Vineland Rd, Turn right onto Walden Cir, Turn left to stay on Walden Cir, Turn right. Destination will be on the left.
Financial Considerations
Terms: Cash,Conventional,FHA,VA Loan
Tax/Property ID: 17-23-29-1891-02-110
Tax Amount: 3904.12
Tax Year: 2024
A broker reciprocity listing courtesy: EXP REALTY LLC
Based on information provided by Stellar MLS as distributed by the MLS GRID. Information from the Internet Data Exchange is provided exclusively for consumers’ personal, non-commercial use, and such information may not be used for any purpose other than to identify prospective properties consumers may be interested in purchasing. This data is deemed reliable but is not guaranteed to be accurate by Edina Realty, Inc., or by the MLS. Edina Realty, Inc., is not a multiple listing service (MLS), nor does it offer MLS access.
Copyright 2025 Stellar MLS as distributed by the MLS GRID. All Rights Reserved.
Payment Calculator
Interest rate and annual percentage rate (APR) are based on current market conditions, are for informational purposes only, are subject to change without notice and may be subject to pricing add-ons related to property type, loan amount, loan-to-value, credit score and other variables. Estimated closing costs used in the APR calculation are assumed to be paid by the borrower at closing. If the closing costs are financed, the loan, APR and payment amounts will be higher. If the down payment is less than 20%, mortgage insurance may be required and could increase the monthly payment and APR. Contact us for details. Additional loan programs may be available. Accuracy is not guaranteed, and all products may not be available in all borrower's geographical areas and are based on their individual situation. This is not a credit decision or a commitment to lend.
Sales History & Tax Summary for 4837 Walden Circle #11
Sales History
| Date | Price | Change |
|---|---|---|
| Currently not available. | ||
Tax Summary
| Tax Year | Estimated Market Value | Total Tax |
|---|---|---|
| Currently not available. | ||
Data powered by ATTOM Data Solutions. Copyright© 2025. Information deemed reliable but not guaranteed.
Schools
Schools nearby 4837 Walden Circle #11
| Schools in attendance boundaries | Grades | Distance | Rating |
|---|---|---|---|
| Loading... | |||
| Schools nearby | Grades | Distance | Rating |
|---|---|---|---|
| Loading... | |||
Data powered by ATTOM Data Solutions. Copyright© 2025. Information deemed reliable but not guaranteed.
The schools shown represent both the assigned schools and schools by distance based on local school and district attendance boundaries. Attendance boundaries change based on various factors and proximity does not guarantee enrollment eligibility. Please consult your real estate agent and/or the school district to confirm the schools this property is zoned to attend. Information is deemed reliable but not guaranteed.
SchoolDigger ® Rating
The SchoolDigger rating system is a 1-5 scale with 5 as the highest rating. SchoolDigger ranks schools based on test scores supplied by each state's Department of Education. They calculate an average standard score by normalizing and averaging each school's test scores across all tests and grades.
Coming soon properties will soon be on the market, but are not yet available for showings.