$398,000
Off-Market Date: 03/01/2026484 Lincoln Avenue Brooksville, FL 34604
Pending MLS# TB8409542
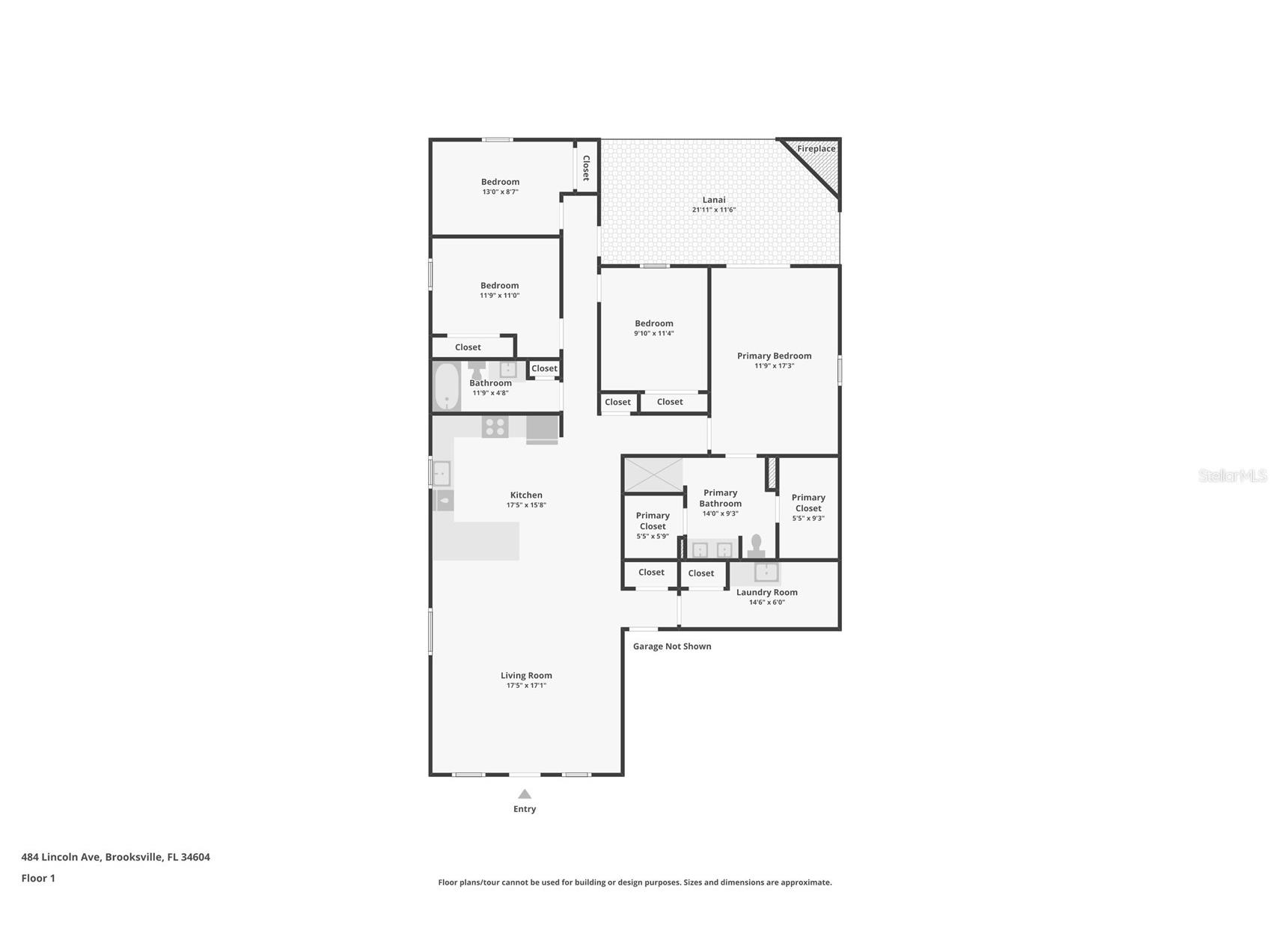
4 beds 2 baths 1,859 sq ft Single Family
Details for 484 Lincoln Avenue
MLS# TB8409542
Description for 484 Lincoln Avenue, Brooksville, FL, 34604
Under contract-accepting backup offers. Stunning New Construction JUST COMPLETED!! Days on market reflect when construction started. Welcome to The Serenity- designed with sustainability and survivability in mind! The Serenity is a craftsman style bungalow with a modern shotgun floorplan. Features that define the home are the Metal roof, which provides a long service life and with safety in mind, a secure safe room! 1,859 heated sqft of living space featuring 4-bedrooms and 2-bathrooms, along with a convenient 2-car garage that provides easy parking and additional storage. As you step inside, you’ll be captivated by the grandeur of high vaulted ceilings that create an inviting and open atmosphere. The stylish kitchen is equipped with elegant gray toned cabinets, with soft close drawers, a stainless-steel appliance package, gas range and quartz countertops, making it perfect for entertaining and family gatherings. Adding to the appeal of this home are the EPOXY floors, which provide a modern aesthetic, along with the elegant 8” baseboards that enhance the sophistication of main living area, and 6" in every bedroom. The expansive covered lanai and DECK with grill station and gas hookup invite you to embrace outdoor living, complete with a cozy wood burning fireplace that sets the stage for relaxing evenings under the stars. Energy efficiency is prioritized with vinyl insulated low-E windows, a gas tankless water heater, and gas range hookups, ensuring comfort and savings throughout the year. Sustainability features include limiting disturbance to the natural environment by not removing trees unless absolutely necessary. The driveway was swerved to save a 150-year-old oak tree! The Landscaping includes grass from seed opposed to sod which would most likely be non-invasive grass and requires high maintenance. There are no ornamentals- instead, encourage planting useful vegetation such as herbs, berry bushes and fruits that can be harvested by the new homeowner. If you’re seeking a multigenerational living arrangement or need a separate home for a family member, you’re in luck! The home next door, crafted by the same reputable builder, will soon be under construction. This offers a fantastic opportunity to create a close-knit community for your family while each household enjoys its own private space!! Located in a prime area with NO HOA and NO flood zone, you’ll enjoy access to a vibrant neighborhood community center and playground just at the end of the street. Experience the local charm of Masaryktown Winery, which offers live music and entertainment, and indulge in family-friendly fun at Harvest moon Farms. With easy access to the Suncoast Parkway, commuting to Tampa is a breeze, and Tampa International Airport (TPA) is less than a 45-minute drive away. Plus, you’re just minutes from shopping at Publix, Target, and Starbucks. Don’t miss this exceptional opportunity to make this BRAND-NEW home your own!
Listing Information
Property Type: Residential, Single Family Residence
Status: Pending
Bedrooms: 4
Bathrooms: 2
Lot Size: 0.19 Acres
Square Feet: 1,859 sq ft
Year Built: 2025
Garage: Yes
Stories: 1 Story
Construction: Stone,Stucco
Construction Display: New Construction
Subdivision: Masaryktown
Builder: Southern Charm Building and Construction, Inc
Foundation: Slab
County: Hernando
Construction Status: New Construction
Room Information
Main Floor
Kitchen: 8x12
Bedroom 4: 9x12
Bedroom 3: 9x12
Bedroom 2: 11x10
Living Room: 14x17
Dining Room: 8x12
Primary Bedroom: 17x12
Bathrooms
Full Baths: 2
Additonal Room Information
Laundry: Inside, Laundry Room
Interior Features
Appliances: Tankless Water Heater, Dishwasher, Microwave, Range, Refrigerator, Water Softener
Flooring: Epoxy,Tile
Doors/Windows: Low-Emissivity Windows
Fireplaces: Outside, Wood Burning
Additional Interior Features: Vaulted Ceiling(s), Ceiling Fan(s), Attic, Built-in Features, Living/Dining Room, Open Floorplan, Walk-In Closet(s), Stone Counters, Wood Cabinets
Utilities
Water: Well
Sewer: Septic Tank
Other Utilities: Cable Available,Electricity Available
Cooling: Ceiling Fan(s), Central Air
Heating: Gas, Central
Exterior / Lot Features
Attached Garage: Attached Garage
Garage Spaces: 2
Roof: Metal
Lot Dimensions: 60X140
Additional Exterior/Lot Features: French Patio Doors, Other, Lighting, Patio, Covered, Deck, Rear Porch
Driving Directions
Head east on County Line Rd, Left on Kostka Dr, Follow to Stur St, left on Lincoln Ave, home will be on your right.
Financial Considerations
Terms: Cash,Conventional,FHA,USDA Loan,VA Loan
Tax/Property ID: R36-223-18-2690-0440-0150
Tax Amount: 161.47
Tax Year: 2024
A broker reciprocity listing courtesy: JT REALTY & ASSOCIATES
Based on information provided by Stellar MLS as distributed by the MLS GRID. Information from the Internet Data Exchange is provided exclusively for consumers’ personal, non-commercial use, and such information may not be used for any purpose other than to identify prospective properties consumers may be interested in purchasing. This data is deemed reliable but is not guaranteed to be accurate by Edina Realty, Inc., or by the MLS. Edina Realty, Inc., is not a multiple listing service (MLS), nor does it offer MLS access.
Copyright 2026 Stellar MLS as distributed by the MLS GRID. All Rights Reserved.
Sales History & Tax Summary for 484 Lincoln Avenue
Sales History
| Date | Price | |
|---|---|---|
| Currently not available. | ||
Tax Summary
| Tax Year | Estimated Market Value | Total Tax |
|---|---|---|
| Currently not available. | ||
Data powered by ATTOM Data Solutions. Copyright© 2026. Information deemed reliable but not guaranteed.
Schools
Schools nearby 484 Lincoln Avenue
| Schools in attendance boundaries | Grades | Distance | Rating |
|---|---|---|---|
| Loading... | |||
| Schools nearby | Grades | Distance | Rating |
|---|---|---|---|
| Loading... | |||
Data powered by ATTOM Data Solutions. Copyright© 2026. Information deemed reliable but not guaranteed.
The schools shown represent both the assigned schools and schools by distance based on local school and district attendance boundaries. Attendance boundaries change based on various factors and proximity does not guarantee enrollment eligibility. Please consult your real estate agent and/or the school district to confirm the schools this property is zoned to attend. Information is deemed reliable but not guaranteed.
SchoolDigger ® Rating
The SchoolDigger rating system is a 1-5 scale with 5 as the highest rating. SchoolDigger ranks schools based on test scores supplied by each state's Department of Education. They calculate an average standard score by normalizing and averaging each school's test scores across all tests and grades.
Coming soon properties will soon be on the market, but are not yet available for showings.