48400 Old Grade Road Cable, WI 54821 - Atkins Lake
Active Contingent MLS# 1594224
3 beds 2 baths 1,456 sq ft Single Family
Details for 48400 Old Grade Road
MLS# 1594224
Description for 48400 Old Grade Road, Cable, WI, 54821 - Atkins Lake
On the scenic shores of Lake Atkins with an impressive 620 feet of frontage, this nearly 1,500 sqft home located east of Cable, WI offers unmatched space, privacy and access to nature. The property spans 8 acres and directly borders thousands of acres of National Forest, providing endless opportunities for fishing, boating, hiking, hunting and year-round adventure. Located right on an ATV/UTV and snowmobile trail. Inside, the open floor plan features 3 bedrooms and 2 baths, offering comfort and functionality for everyday living. A scenic porch provides the perfect spot to enjoy panoramic lake views, while the park-like setting blends lawn, towering pines and natural shoreline. Two detached garages, 24x24 (2-car) and 28x40 (2-car), offer abundant space for vehicles, boats, ATVs, or workshop needs. Whether you're seeking a peaceful getaway or a basecamp for Northwoods recreation, this property delivers the rare combo of extensive lake frontage, generous acreage and direct national forest access. Motivated Seller!
Listing Information
Property Type: Residential, Single Family Residence
Status: Active Under Contract
Bedrooms: 3
Bathrooms: 2
Lot Size: 8 Acres
Square Feet: 1,456 sq ft
Year Built: 1996
Garage: Yes
Stories: 1 Story
Foundation: Poured,Slab
County: Bayfield
Days On Market: 208
School Information
District: Drummond Area
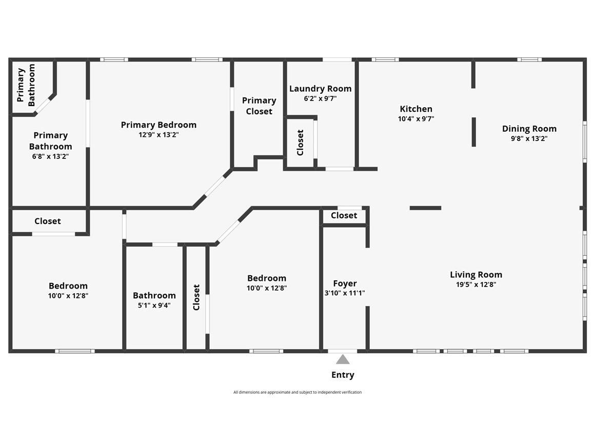
Room Information
Main Floor
Bedroom: 13x9.5
Laundry: 6x10
Bedroom: 10x13
Dining Room: 9.5x14
Bedroom: 13x13
Kitchen: 10x9
Living Room: 19x13
Bathroom: 10x5
Bathroom: 13x7
Bathrooms
Full Baths: 2
Interior Features
Square Footage above: 1,456 sq ft
Appliances: Dishwasher, Dryer, Range, Refrigerator, Oven, Range Hood, Electric Water Heater
Basement: Crawl Space
Doors/Windows: Window Coverings
Additional Interior Features: Ceiling Fan(s)
Utilities
Water: Well, Drilled Well
Sewer: Septic Tank
Cooling: Central Air
Heating: Forced Air
Exterior / Lot Features
Garage Spaces: 4
Parking Description: driveway, Detached, Gravel, Garage
Lot View: Lake
Lot Dimensions: 0 x 0 x
Zoning: Residential,Shoreline
Additional Exterior/Lot Features: Dock, Covered, Deck
Waterfront Details
Boat Facilities: Boat Facilities
Standard Water Body: Atkins Lake
Water Front Features: Lake
Driving Directions
From Cable: East on County Hwy M (12mi) to a left on Namekagon Sunset (mi) to a left on Old Grade Rd (mi) to property on right.
Financial Considerations
Covenants/Deed Restrictions: Sellers Personal
Tax/Property ID: 16375
Tax Amount: 2279.29
Tax Year: 2024
A broker reciprocity listing courtesy: Woodland Developments & Realty
The data relating to real estate for sale on this web site comes in part from the Broker Reciprocity℠ Program of the Northwestern Wisconsin MLS. Real estate listings held by brokerage firms other than Edina Realty, Inc. are marked with the Broker Reciprocity℠ logo or the Broker Reciprocity℠ thumbnail and detailed information about them includes the name of the listing brokers. Edina Realty, Inc. is not a Multiple Listing Service (MLS), nor does it offer MLS access. This website is a service of Edina Realty, Inc., a broker Participant of the Northwestern Wisconsin MLS. IDX information is provided exclusively for consumers personal, non-commercial use and may not be used for any purpose other than to identify prospective properties consumers may be interested in purchasing. Open House information is subject to change without notice. Information deemed reliable but not guaranteed.
Copyright 2026 Northwestern Wisconsin MLS. All Rights Reserved.
Payment Calculator
Interest rate and annual percentage rate (APR) are based on current market conditions, are for informational purposes only, are subject to change without notice and may be subject to pricing add-ons related to property type, loan amount, loan-to-value, credit score and other variables. Estimated closing costs used in the APR calculation are assumed to be paid by the borrower at closing. If the closing costs are financed, the loan, APR and payment amounts will be higher. If the down payment is less than 20%, mortgage insurance may be required and could increase the monthly payment and APR. Contact us for details. Additional loan programs may be available. Accuracy is not guaranteed, and all products may not be available in all borrower's geographical areas and are based on their individual situation. This is not a credit decision or a commitment to lend.
Sales History & Tax Summary for 48400 Old Grade Road
Sales History
| Date | Price | |
|---|---|---|
| Currently not available. | ||
Tax Summary
| Tax Year | Estimated Market Value | Total Tax |
|---|---|---|
| Currently not available. | ||
Data powered by ATTOM Data Solutions. Copyright© 2026. Information deemed reliable but not guaranteed.
Schools
Schools nearby 48400 Old Grade Road
| Schools in attendance boundaries | Grades | Distance | Rating |
|---|---|---|---|
| Loading... | |||
| Schools nearby | Grades | Distance | Rating |
|---|---|---|---|
| Loading... | |||
Data powered by ATTOM Data Solutions. Copyright© 2026. Information deemed reliable but not guaranteed.
The schools shown represent both the assigned schools and schools by distance based on local school and district attendance boundaries. Attendance boundaries change based on various factors and proximity does not guarantee enrollment eligibility. Please consult your real estate agent and/or the school district to confirm the schools this property is zoned to attend. Information is deemed reliable but not guaranteed.
SchoolDigger ® Rating
The SchoolDigger rating system is a 1-5 scale with 5 as the highest rating. SchoolDigger ranks schools based on test scores supplied by each state's Department of Education. They calculate an average standard score by normalizing and averaging each school's test scores across all tests and grades.
Coming soon properties will soon be on the market, but are not yet available for showings.