4846 Mac Donald Street Lake Wales, FL 33859
For Sale MLS# K4903009
3 beds 2 baths 1,480 sq ft Single Family
Details for 4846 Mac Donald Street
MLS# K4903009
Description for 4846 Mac Donald Street, Lake Wales, FL, 33859
NO MONEY DOWN USDA LOAN ELIGIBLE! SELLER OFFERING A BRAND NEW ROOF AT LIST PRICE! Welcome to this charming 3/2 concrete block home with NO HOA! This is a spacious single-family concrete block home, offering 1,480 sq. ft. of comfort, convenience, and charm. Built in 2004, the home has a thoughtful layout that blends functionality with style. You'll love the combination of tile flooring in the main living and dining areas, wood laminate in two of the bedrooms, and carpet in the owner's suite. The kitchen comes fully equipped with a refrigerator, stove, microwave, and dishwasher — plus a washer and dryer are included, making this home truly move-in ready. The home is also partially furnished with beds and a dining room table for your convenience. The HVAC is only five years old, and still has 5 yrs. left on the 10 yr. transferable warranty. Enjoy Florida living with both a front and back screened porch — perfect for morning coffee or evening relaxation, bug-free. The fenced back yard offers privacy, play space, and room to garden or entertain. There’s even a shed for extra storage and a garage for secure parking. No HOA means no extra fees or restrictions — a rare find. This home is conveniently located near shopping, dining, and everything Lake Wales has to experience. It's ideal for families, first-time buyers, or snowbirds looking for their own slice of sunshine. Don't miss out on this gem! Schedule your private showing today and make this home yours before it's gone.
Listing Information
Property Type: Residential, Single Family Residence
Status: Active
Bedrooms: 3
Bathrooms: 2
Lot Size: 0.25 Acres
Square Feet: 1,480 sq ft
Year Built: 2004
Garage: Yes
Stories: 1 Story
Construction: Block
Subdivision: Crooked Lake Park Tr 05
Foundation: Slab
County: Polk
School Information
Elementary: Spook Hill Elem
Middle: Mclaughlin Middle
High: Lake Wales Senior High
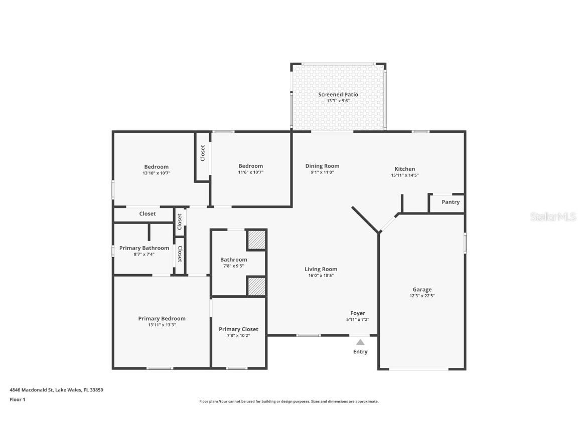
Room Information
Main Floor
Dining Room: 8x8
Living Room: 8x12
Kitchen:
Bathroom 2:
Primary Bathroom:
Bedroom 3: 11x11
Bedroom 2: 12x11
Primary Bedroom: 14x13
Bathrooms
Full Baths: 2
Additonal Room Information
Laundry: Laundry Closet
Interior Features
Appliances: Dishwasher, Dryer, Microwave, Range, Refrigerator, Washer
Flooring: Ceramic Tile,Laminate
Additional Interior Features: Ceiling Fan(s)
Utilities
Water: Public
Sewer: Public Sewer
Other Utilities: Municipal Utilities
Cooling: Ceiling Fan(s), Central Air
Heating: Central
Exterior / Lot Features
Attached Garage: Attached Garage
Garage Spaces: 1
Roof: Shingle
Lot Dimensions: 90x120
Additional Exterior/Lot Features: Rain Gutters, Rear Porch, Screened, Front Porch
Driving Directions
Take highway 27South towards Lake Wales. Turn Left at 1 Street North. You will pass 4 streets until you get to Mac Donald Street. Turn right on Mac Donald Street. The house is located on the right. A sign is in the yard.
Financial Considerations
Terms: Cash,Conventional,FHA,USDA Loan,VA Loan
Tax/Property ID: 27-30-35-928400-010190
Tax Amount: 1921.35
Tax Year: 2024
A broker reciprocity listing courtesy: BENDER REALTY, LLC
Based on information provided by Stellar MLS as distributed by the MLS GRID. Information from the Internet Data Exchange is provided exclusively for consumers’ personal, non-commercial use, and such information may not be used for any purpose other than to identify prospective properties consumers may be interested in purchasing. This data is deemed reliable but is not guaranteed to be accurate by Edina Realty, Inc., or by the MLS. Edina Realty, Inc., is not a multiple listing service (MLS), nor does it offer MLS access.
Copyright 2026 Stellar MLS as distributed by the MLS GRID. All Rights Reserved.
Payment Calculator
Interest rate and annual percentage rate (APR) are based on current market conditions, are for informational purposes only, are subject to change without notice and may be subject to pricing add-ons related to property type, loan amount, loan-to-value, credit score and other variables. Estimated closing costs used in the APR calculation are assumed to be paid by the borrower at closing. If the closing costs are financed, the loan, APR and payment amounts will be higher. If the down payment is less than 20%, mortgage insurance may be required and could increase the monthly payment and APR. Contact us for details. Additional loan programs may be available. Accuracy is not guaranteed, and all products may not be available in all borrower's geographical areas and are based on their individual situation. This is not a credit decision or a commitment to lend.
Sales History & Tax Summary for 4846 Mac Donald Street
Sales History
| Date | Price | |
|---|---|---|
| Currently not available. | ||
Tax Summary
| Tax Year | Estimated Market Value | Total Tax |
|---|---|---|
| Currently not available. | ||
Data powered by ATTOM Data Solutions. Copyright© 2026. Information deemed reliable but not guaranteed.
Schools
Schools nearby 4846 Mac Donald Street
| Schools in attendance boundaries | Grades | Distance | Rating |
|---|---|---|---|
| Loading... | |||
| Schools nearby | Grades | Distance | Rating |
|---|---|---|---|
| Loading... | |||
Data powered by ATTOM Data Solutions. Copyright© 2026. Information deemed reliable but not guaranteed.
The schools shown represent both the assigned schools and schools by distance based on local school and district attendance boundaries. Attendance boundaries change based on various factors and proximity does not guarantee enrollment eligibility. Please consult your real estate agent and/or the school district to confirm the schools this property is zoned to attend. Information is deemed reliable but not guaranteed.
SchoolDigger ® Rating
The SchoolDigger rating system is a 1-5 scale with 5 as the highest rating. SchoolDigger ranks schools based on test scores supplied by each state's Department of Education. They calculate an average standard score by normalizing and averaging each school's test scores across all tests and grades.
Coming soon properties will soon be on the market, but are not yet available for showings.