$1,575,000
485 11th Avenue N Saint Petersburg, FL 33701
For Sale MLS# TB8496850
4 beds 4 baths 2,789 sq ft Single Family
Details for 485 11th Avenue N
MLS# TB8496850
Description for 485 11th Avenue N, Saint Petersburg, FL, 33701
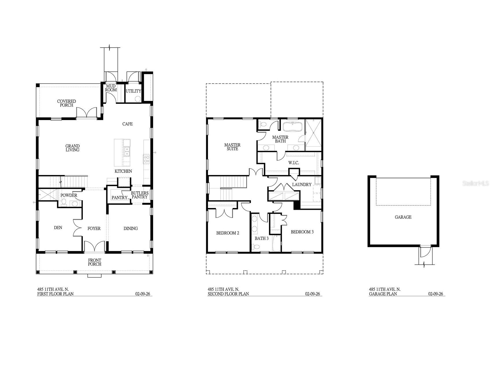
Under Construction. Luxury new construction by Mobley Homes Custom LLC, one of Tampa Bay’s premier builders, located near Crescent Lake and Historic Old Northeast with NO flood insurance required. Built with hurricane-rated half concrete block construction on the first floor, this home offers durability, energy efficiency, and long-term value.This 4-bedroom, 3.5-bath home features an open-concept layout with high ceilings, Level 4 smooth drywall, and abundant natural light. The gourmet kitchen includes designer cabinetry, premium countertops, a large island, and high-end stainless steel appliances. The primary suite offers a spa-like bath with 12x24 Asian Statuary Marble from TileBar. Situated on a quiet residential street just minutes from Crescent Lake Park, Downtown St. Petersburg, and Central Avenue dining, shopping, and entertainment. Easy access to I-275, St. Pete Beach, and Tampa International Airport. The backyard includes alley access, a 2-car garage, and room for a pool or outdoor living space. Mobley Homes Custom LLC builds and owns all of their homes—no third-party investors—ensuring a smooth process and direct builder support after closing.Photos are of a similar home with the same floor plan. Finishes and features may vary.
Listing Information
Property Type: Residential, Single Family Residence
Status: Active
Bedrooms: 4
Bathrooms: 4
Lot Size: 0.15 Acres
Square Feet: 2,789 sq ft
Year Built: 2026
Garage: Yes
Stories: 2 Story
Construction: Block,HardiPlank Type,Stucco,Wood Frame
Construction Display: New Construction
Subdivision: Harvey's Sub Lot 11
Builder: Mobley Homes Custom LLC
Foundation: Block,Concrete Perimeter,Stem Wall
County: Pinellas
Construction Status: Under Construction
Room Information
Main Floor
Dining Room: 12x13
Living Room: 17x20
Kitchen: 13x16
Upper Floor
Bedroom 3: 11x12
Bedroom 2: 11x12
Primary Bathroom: 10x13
Primary Bedroom: 15x16
Bathrooms
Full Baths: 3
1/2 Baths: 1
Additonal Room Information
Laundry: Laundry Room
Interior Features
Appliances: Refrigerator, Ice Maker, Tankless Water Heater, Gas Water Heater, Cooktop, Dishwasher, Dryer, Freezer, Microwave
Flooring: Carpet,Engineered Hardwood
Additional Interior Features: High Ceilings, Ceiling Fan(s), Kitchen/Family Room Combo
Utilities
Sewer: Public Sewer
Other Utilities: Cable Connected,Electricity Connected,Sewer Connected,Water Connected,Water Not Available
Cooling: Ceiling Fan(s), Central Air
Heating: Central, Heat Pump
Exterior / Lot Features
Garage Spaces: 2
Parking Description: Off Street, Alley Access
Roof: Shingle
Lot Dimensions: 50x128
Additional Exterior/Lot Features: Rear Porch, Porch
Community Features
Community Features: Sidewalks
Driving Directions
From I-275, take Exit 23B for 5th Ave N and head east. Turn left on 9th St N, then right on 11th Ave N. Continue east—485 11th Ave N will be on your left in the Historic Uptown area, just minutes from Crescent Lake and Downtown St. Petersburg.
Financial Considerations
Terms: Cash,Conventional,FHA,VA Loan
Tax/Property ID: 18-31-17-37548-000-0110
Tax Amount: 8651.92
Tax Year: 2025
A broker reciprocity listing courtesy: COMPASS FLORIDA LLC
Based on information provided by Stellar MLS as distributed by the MLS GRID. Information from the Internet Data Exchange is provided exclusively for consumers’ personal, non-commercial use, and such information may not be used for any purpose other than to identify prospective properties consumers may be interested in purchasing. This data is deemed reliable but is not guaranteed to be accurate by Edina Realty, Inc., or by the MLS. Edina Realty, Inc., is not a multiple listing service (MLS), nor does it offer MLS access.
Copyright 2026 Stellar MLS as distributed by the MLS GRID. All Rights Reserved.
Payment Calculator
Interest rate and annual percentage rate (APR) are based on current market conditions, are for informational purposes only, are subject to change without notice and may be subject to pricing add-ons related to property type, loan amount, loan-to-value, credit score and other variables. Estimated closing costs used in the APR calculation are assumed to be paid by the borrower at closing. If the closing costs are financed, the loan, APR and payment amounts will be higher. If the down payment is less than 20%, mortgage insurance may be required and could increase the monthly payment and APR. Contact us for details. Additional loan programs may be available. Accuracy is not guaranteed, and all products may not be available in all borrower's geographical areas and are based on their individual situation. This is not a credit decision or a commitment to lend.
Sales History & Tax Summary for 485 11th Avenue N
Sales History
| Date | Price | |
|---|---|---|
| Currently not available. | ||
Tax Summary
| Tax Year | Estimated Market Value | Total Tax |
|---|---|---|
| Currently not available. | ||
Data powered by ATTOM Data Solutions. Copyright© 2026. Information deemed reliable but not guaranteed.
Schools
Schools nearby 485 11th Avenue N
| Schools in attendance boundaries | Grades | Distance | Rating |
|---|---|---|---|
| Loading... | |||
| Schools nearby | Grades | Distance | Rating |
|---|---|---|---|
| Loading... | |||
Data powered by ATTOM Data Solutions. Copyright© 2026. Information deemed reliable but not guaranteed.
The schools shown represent both the assigned schools and schools by distance based on local school and district attendance boundaries. Attendance boundaries change based on various factors and proximity does not guarantee enrollment eligibility. Please consult your real estate agent and/or the school district to confirm the schools this property is zoned to attend. Information is deemed reliable but not guaranteed.
SchoolDigger ® Rating
The SchoolDigger rating system is a 1-5 scale with 5 as the highest rating. SchoolDigger ranks schools based on test scores supplied by each state's Department of Education. They calculate an average standard score by normalizing and averaging each school's test scores across all tests and grades.
Coming soon properties will soon be on the market, but are not yet available for showings.