$489,000
488 Fieldstone Lane Spring Hill, FL 34606 - Balsam Lake
For Sale MLS# TB8451608
3 beds 2 baths 1,805 sq ft Single Family
Details for 488 Fieldstone Lane
MLS# TB8451608
Description for 488 Fieldstone Lane, Spring Hill, FL, 34606 - Balsam Lake
Tucked along the peaceful shores of Balsam Lake, this fully renovated residence offers breathtaking water views from nearly every room, creating a serene backdrop to your daily life. As you step inside, the porcelain tile floors create a striking visual impact, flowing effortlessly throughout the main living areas of the home and offering a refined backdrop that showcases the home's impeccable craftsmanship. The gourmet kitchen is a chef’s delight, showcasing brand-new granite countertops, rich wood cabinetry with soft-close features, and energy-efficient stainless-steel appliances—all illuminated by updated energy-saving LED lighting throughout the home. Every space radiates sophistication, including the spacious inside laundry room with a standalone utility sink. The oversized primary suite features plush carpeting and a generous walk-in closet, while both the primary and guest bathrooms boast luxurious granite countertops and custom-designed showers that elevate your everyday routine. This home is as practical as it is beautiful. The roof was replaced in 2018, the A/C system installed in 2015, and a deep water well is available for irrigation—keeping your lawn lush while saving on utilities. The exterior has been equally upgraded with a new vinyl privacy fence, gutters, motion-detecting security lights, a newer garage door opener, epoxy-coated garage floors, and enhanced attic insulation for year-round energy efficiency. And then… there’s the lifestyle. Imagine waking up with a cup of coffee as the sunrise dances across the lake. Spend quiet afternoons watching wildlife pass by or unwind in your sparkling saltwater pool, complete with a new pool cage, Pentair equipment, a powerful 140K BTU heat pump, therapy jets, and mesmerizing LED color-changing lighting—perfect for magical evening swims under the stars. 488 Fieldstone Lane isn’t just a home; it’s a sanctuary where modern comfort meets lakeside serenity.
Listing Information
Property Type: Residential, Single Family Residence
Status: Active
Bedrooms: 3
Bathrooms: 2
Lot Size: 0.34 Acres
Square Feet: 1,805 sq ft
Year Built: 1983
Garage: Yes
Stories: 1 Story
Construction: Stucco
Subdivision: Spring Hill
Builder: Alexander
Foundation: Slab
County: Hernando
Room Information
Main Floor
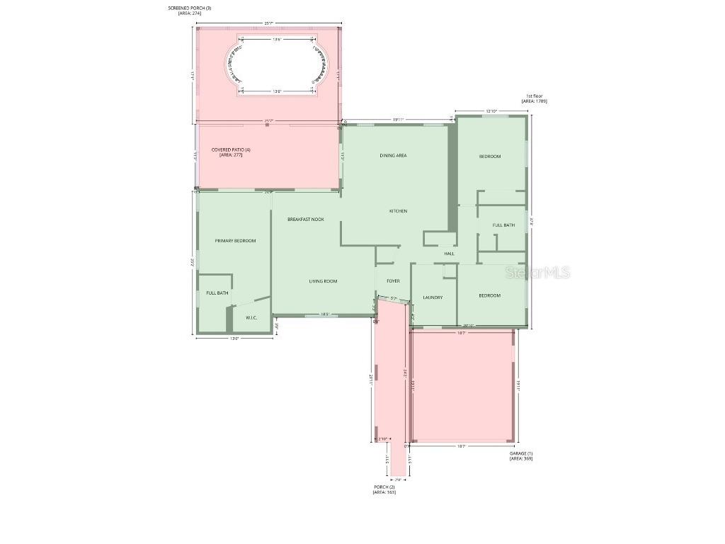
Living Room: 11.1x18.6
Dining Room:
Family Room: 9.3x19.11
Kitchen: 11.5x12.7
Bedroom 3: 10.11x11.5
Bedroom 2: 11.8x14.5
Primary Bedroom: 11.6x19.9
Bathrooms
Full Baths: 2
Additonal Room Information
Laundry: Inside, Laundry Room
Interior Features
Appliances: Convection Oven, Ice Maker, Range, Refrigerator, Microwave, Dishwasher, Disposal
Flooring: Carpet,Porcelain Tile
Additional Interior Features: Split Bedrooms, Walk-In Closet(s), Ceiling Fan(s), Attic, Built-in Features, High Ceilings, Open Floorplan, Stone Counters, Wood Cabinets, Kitchen/Family Room Combo
Utilities
Water: Public
Sewer: Septic Tank
Other Utilities: Cable Available
Cooling: Ceiling Fan(s), Central Air
Heating: Central
Exterior / Lot Features
Attached Garage: Attached Garage
Garage Spaces: 2
Parking Description: Garage Door Opener, Garage
Roof: Shingle
Pool: Gunite, Pool Sweep, Salt Water, Screen Enclosure, In Ground, Other
Lot View: Lake,Water
Lot Dimensions: 100x150
Additional Exterior/Lot Features: Sprinkler/Irrigation, Covered, Screened, Flat, Level, Oversized Lot, Outside City Limits
Waterfront Details
Standard Water Body: Balsam Lake
Water Front Features: Lake Front, Lake Privileges
Driving Directions
Heading N on US-19, turn righto onto County Line Rd. Take a left onto Cobblestone Drive, right onto Pinehurst Drive, right onto Holiday Dr and continue on around the bend making a right onto Fieldstone Ln. The house will be on your right.
Financial Considerations
Terms: Cash,Conventional,FHA,VA Loan
Tax/Property ID: R32-323-17-5040-0199-0060
Tax Amount: 4306.22
Tax Year: 2023
A broker reciprocity listing courtesy: CHARLES RUTENBERG REALTY INC
Based on information provided by Stellar MLS as distributed by the MLS GRID. Information from the Internet Data Exchange is provided exclusively for consumers’ personal, non-commercial use, and such information may not be used for any purpose other than to identify prospective properties consumers may be interested in purchasing. This data is deemed reliable but is not guaranteed to be accurate by Edina Realty, Inc., or by the MLS. Edina Realty, Inc., is not a multiple listing service (MLS), nor does it offer MLS access.
Copyright 2025 Stellar MLS as distributed by the MLS GRID. All Rights Reserved.
Payment Calculator
Interest rate and annual percentage rate (APR) are based on current market conditions, are for informational purposes only, are subject to change without notice and may be subject to pricing add-ons related to property type, loan amount, loan-to-value, credit score and other variables. Estimated closing costs used in the APR calculation are assumed to be paid by the borrower at closing. If the closing costs are financed, the loan, APR and payment amounts will be higher. If the down payment is less than 20%, mortgage insurance may be required and could increase the monthly payment and APR. Contact us for details. Additional loan programs may be available. Accuracy is not guaranteed, and all products may not be available in all borrower's geographical areas and are based on their individual situation. This is not a credit decision or a commitment to lend.
Sales History & Tax Summary for 488 Fieldstone Lane
Sales History
| Date | Price | Change |
|---|---|---|
| Currently not available. | ||
Tax Summary
| Tax Year | Estimated Market Value | Total Tax |
|---|---|---|
| Currently not available. | ||
Data powered by ATTOM Data Solutions. Copyright© 2025. Information deemed reliable but not guaranteed.
Schools
Schools nearby 488 Fieldstone Lane
| Schools in attendance boundaries | Grades | Distance | Rating |
|---|---|---|---|
| Loading... | |||
| Schools nearby | Grades | Distance | Rating |
|---|---|---|---|
| Loading... | |||
Data powered by ATTOM Data Solutions. Copyright© 2025. Information deemed reliable but not guaranteed.
The schools shown represent both the assigned schools and schools by distance based on local school and district attendance boundaries. Attendance boundaries change based on various factors and proximity does not guarantee enrollment eligibility. Please consult your real estate agent and/or the school district to confirm the schools this property is zoned to attend. Information is deemed reliable but not guaranteed.
SchoolDigger ® Rating
The SchoolDigger rating system is a 1-5 scale with 5 as the highest rating. SchoolDigger ranks schools based on test scores supplied by each state's Department of Education. They calculate an average standard score by normalizing and averaging each school's test scores across all tests and grades.
Coming soon properties will soon be on the market, but are not yet available for showings.