$419,000
Off-Market Date: 12/19/20254899 NW 36th Street Bell, FL 32619
Pending MLS# GC533481
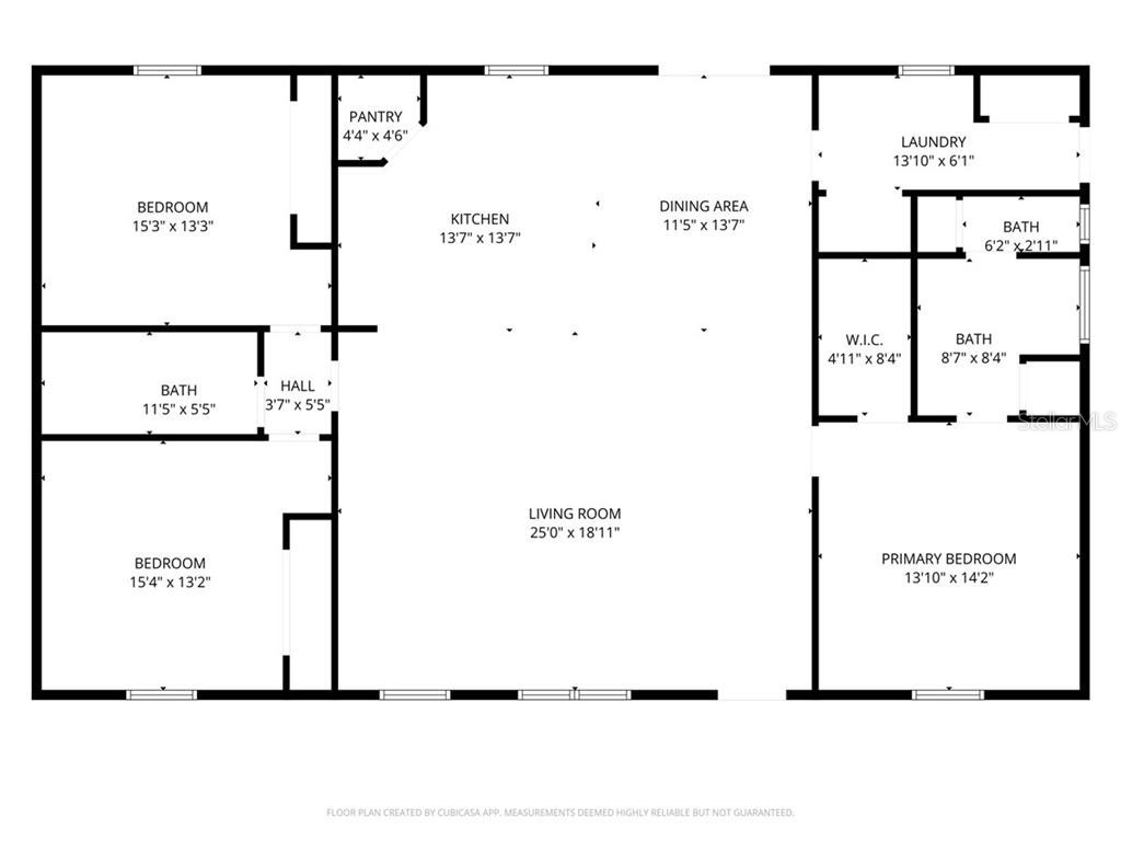
3 beds 2 baths 1,804 sq ft Single Family
Details for 4899 NW 36th Street
MLS# GC533481
Description for 4899 NW 36th Street, Bell, FL, 32619
Under contract-accepting backup offers. BRAND NEW CONSTRUCTION in the HIGHLY DESIRABLE HIDDEN OAKS NEIGHBORHOOD! Expected completion by mid-October! This 3 bedroom, 2 bathroom, site-built home SITTING ON 5 ACRES boasts over 1,800 heated & cooled square feet and features SO many upgrades such as luxury vinyl plank flooring, granite countertops, soft close doors & drawers, and stainless steel appliances! Spray foam insulation (low energy bill) and covered porches the front of the home - making the perfect spot to sit and relax! 1 year builder warranty! Fiber optic internet is available here. Located just north of Bell, this home sits in a quaint subdivision on a wooded lot on a PAVED ROAD! No HOA and light deed restrictions! Easy commute to High Springs and Alachua and only 3 miles to the historic Suwannee River, Rock Bluff General Store, and Rock Bluff Springs! Come enjoy low property taxes and "A" rated schools. The countryside's peace and quiet is calling! Inquire today for more details and the opportunity to see such a well built home ready for you and your family!
Listing Information
Property Type: Residential, Single Family Residence
Status: Pending
Bedrooms: 3
Bathrooms: 2
Lot Size: 4.69 Acres
Square Feet: 1,804 sq ft
Year Built: 2025
Stories: 1 Story
Construction: HardiPlank Type
Construction Display: New Construction
Subdivision: Hidden Oaks First Add
Foundation: Slab
County: Gilchrist
Construction Status: New Construction
Room Information
Main Floor
Primary Bedroom:
Kitchen:
Great Room:
Bathrooms
Full Baths: 2
Additonal Room Information
Laundry: Inside, Laundry Room
Interior Features
Appliances: Range Hood, Dishwasher, Range, Refrigerator
Flooring: Luxury Vinyl
Additional Interior Features: Open Floorplan, Ceiling Fan(s)
Utilities
Water: Well
Sewer: Septic Tank
Other Utilities: Cable Available,Electricity Available
Cooling: Ceiling Fan(s), Central Air
Heating: Central
Exterior / Lot Features
Roof: Shingle
Additional Exterior/Lot Features: Other, Patio, Covered
Community Features
Security Features: Smoke Detector(s)
Driving Directions
From Bell, head north on US 129 for 3 miles. Turn left onto NW County Road 340 for 1 mile. Turn left into Hidden Oaks onto NW 46th Ct for 0.2 mi. Take the two round abouts toward the back of the subdivision and the property will be located on the left.
Financial Considerations
Terms: Cash,Conventional,FHA,USDA Loan
Tax/Property ID: 14-08-14-0361-0000-0100
Tax Amount: 707
Tax Year: 2024
A broker reciprocity listing courtesy: HOMETOWN REALTY OF NORTH FLORIDA, INC
Based on information provided by Stellar MLS as distributed by the MLS GRID. Information from the Internet Data Exchange is provided exclusively for consumers’ personal, non-commercial use, and such information may not be used for any purpose other than to identify prospective properties consumers may be interested in purchasing. This data is deemed reliable but is not guaranteed to be accurate by Edina Realty, Inc., or by the MLS. Edina Realty, Inc., is not a multiple listing service (MLS), nor does it offer MLS access.
Copyright 2026 Stellar MLS as distributed by the MLS GRID. All Rights Reserved.
Sales History & Tax Summary for 4899 NW 36th Street
Sales History
| Date | Price | |
|---|---|---|
| Currently not available. | ||
Tax Summary
| Tax Year | Estimated Market Value | Total Tax |
|---|---|---|
| Currently not available. | ||
Data powered by ATTOM Data Solutions. Copyright© 2026. Information deemed reliable but not guaranteed.
Schools
Schools nearby 4899 NW 36th Street
| Schools in attendance boundaries | Grades | Distance | Rating |
|---|---|---|---|
| Loading... | |||
| Schools nearby | Grades | Distance | Rating |
|---|---|---|---|
| Loading... | |||
Data powered by ATTOM Data Solutions. Copyright© 2026. Information deemed reliable but not guaranteed.
The schools shown represent both the assigned schools and schools by distance based on local school and district attendance boundaries. Attendance boundaries change based on various factors and proximity does not guarantee enrollment eligibility. Please consult your real estate agent and/or the school district to confirm the schools this property is zoned to attend. Information is deemed reliable but not guaranteed.
SchoolDigger ® Rating
The SchoolDigger rating system is a 1-5 scale with 5 as the highest rating. SchoolDigger ranks schools based on test scores supplied by each state's Department of Education. They calculate an average standard score by normalizing and averaging each school's test scores across all tests and grades.
Coming soon properties will soon be on the market, but are not yet available for showings.