49 Compass Point North Port, FL 34287
For Sale MLS# C7516321
2 beds 2 baths 1,344 sq ft Single Family
Details for 49 Compass Point
MLS# C7516321
Description for 49 Compass Point, North Port, FL, 34287
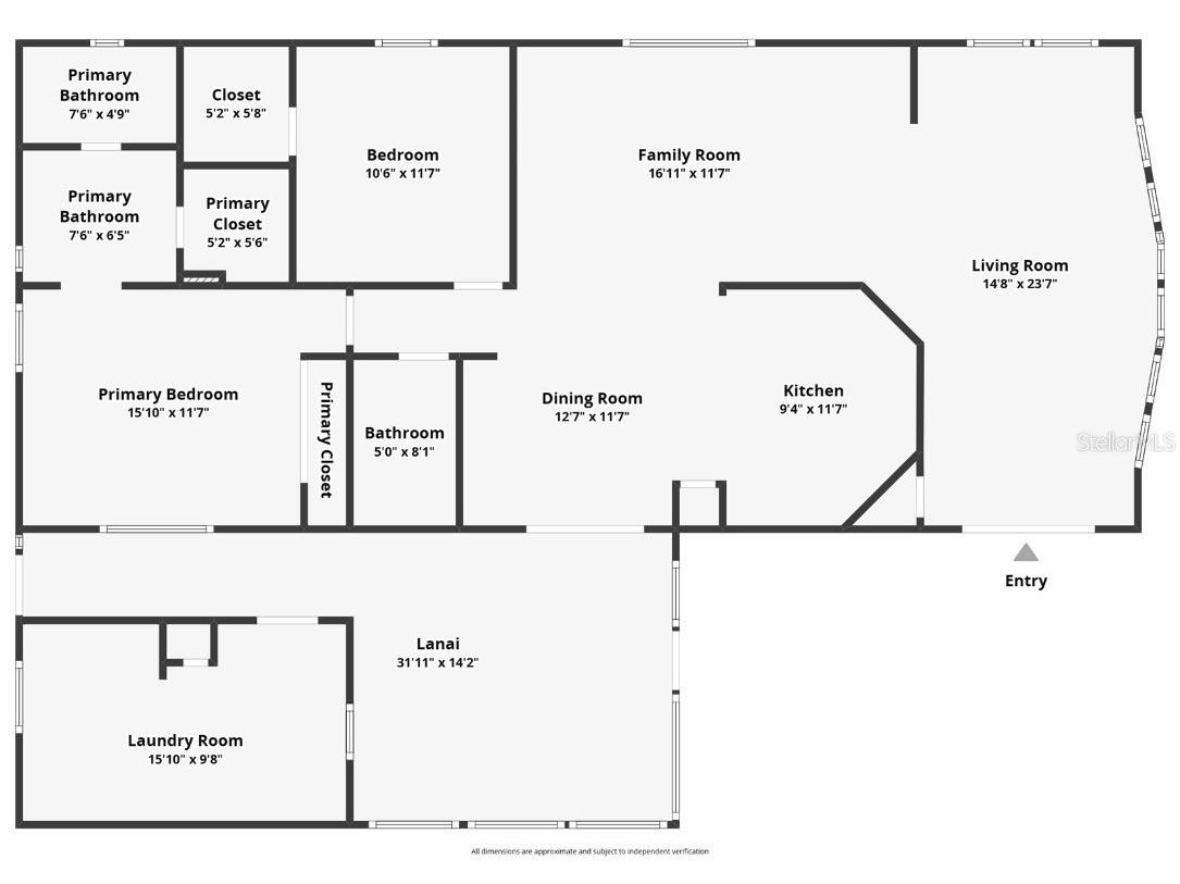
DOUBLE LOT! NO NEIGHBORS ON ONE SIDE! Harbor Isles Gem! Elegant 2-Bedroom Double Wide on Double Lot at Cul-de-Sac End! NEW ROOF & CARPORT! Tucked at the end of a peaceful cul-de-sac in the highly sought-after Harbor Isles gated community, this beautifully maintained 2-bedroom, 2-bath manufactured double-wide home is truly something special. Sitting on a RARE DOUBLE LOT, this home gives you extra room to spread out, relax, and enjoy the Florida sunshine all year long. Step inside and you’ll instantly notice the bright, open layout offering a spacious 1,344 sq. ft. of living space. There’s a living room and family room with LAMINATE FLOORING and custom LEVLOR BLINDS ($2400. value), spacious dining room offering built in hutch & updated light chandelier, giving you plenty of space to entertain, unwind, or simply enjoy the easy flow of this home. The kitchen is a true standout, featuring a MARTHA STEWART CENTER ISLAND with pull-out drawers, a butcher block countertop, stainless appliances, decorative stainless backsplash and a breakfast bar—perfect for morning coffee or casual meals. There’s ample cabinet and counter space, plus a NEW STOVE (2yr) and dishwasher that have barely been used. NEW WATERPROOF VINYL FLOORING adds style and durability in the kitchen and dining areas. Both bedrooms are partially furnished and generously sized, offering plenty of comfort and added built-in storage. A NEW ROOF, NEW CARPORT, and NEW SCREENEING were all added in 2023, giving you peace of mind and big value. Enjoy the screened carport area for morning breezes or relax in your private back patio, surrounded by white vinyl privacy fencing—a perfect spot to enjoy the outdoors. Outside, there’s also a storage shed/workshop complete with washer, dryer, and wet sink—ideal for hobbies or extra storage. The front landscaping is inviting offering multi colored rock gardens, accent lighting, and an array of shrubbery and mature Palms. This home is located in Harbor Isles, a gated 55+ community packed with amenities including a heated pool, sauna, hot tub, fitness center, tennis, pickleball, shuffleboard, and more. The marina offers fishing, kayaking, and direct access to the Myakka River and Gulf. With low monthly fees of just $190, which include cable TV and internet, this home offers both comfort and incredible value. Just minutes from Wellen Park, beaches, shops, dining, and quick access to I-75—this is Florida living at its best! Don't miss your chance to own a slice of paradise—schedule your private tour today!
Listing Information
Property Type: Residential, Manufactured Home
Status: Active
Bedrooms: 2
Bathrooms: 2
Lot Size: 0.20 Acres
Square Feet: 1,344 sq ft
Year Built: 1980
Stories: 1 Story
Construction: Vinyl Siding
Construction Display: New Construction
Subdivision: Harbor Isles I
Foundation: Crawlspace
County: Sarasota
Construction Status: New Construction
School Information
Elementary: Glenallen Elementary
Middle: Heron Creek Middle
High: North Port High
Room Information
Main Floor
Porch: 8x10
Bedroom 2: 10x11
Primary Bedroom: 12x13
Family Room: 12x19
Living Room: 14x23
Dining Room: 7x11
Kitchen: 8x10
Bathrooms
Full Baths: 2
Additonal Room Information
Laundry: Other, Outside
Interior Features
Appliances: Range Hood, Range, Refrigerator, Washer, Microwave, Dishwasher, Dryer, Electric Water Heater
Flooring: Carpet,Laminate,Vinyl
Basement: Crawl Space
Doors/Windows: Window Treatments
Additional Interior Features: Split Bedrooms, Walk-In Closet(s), Separate/Formal Living Room, Separate/Formal Dining Room, Cathedral Ceiling(s), Window Treatments, Living/Dining Room
Utilities
Water: Public
Sewer: Public Sewer
Other Utilities: Cable Available,Electricity Connected,Municipal Utilities,Sewer Connected,Water Connected
Cooling: Central Air
Heating: Central
Exterior / Lot Features
Parking Description: Golf Cart Garage, driveway, Oversized, Covered
Roof: Roof Over
Pool: Association, Community
Lot View: Park/Greenbelt
Lot Dimensions: 60x135x135x95
Fencing: fenced, Vinyl
Additional Exterior/Lot Features: Rain Gutters, Lighting, Storage, Covered, Patio, Porch, Rear Porch, Side Porch, Front Porch, Screened, Irregular Lot, Landscaped, Cul-de-Sac, Cleared, Dead End, Oversized Lot, Buyer Approval Required, Greenbelt, Outside City Limits
Out Buildings: Storage, Shed(s)
Community Features
Community Features: Recreation Area, Fitness, Golf Carts OK, Park, Gated, Street Lights, Tennis Court(s), Clubhouse, Pool
Security Features: Gated Community, Gated with Guard
Association Amenities: Recreation Facilities, Clubhouse, Fitness Center, Security, Cable TV, Pool, Gated
HOA Dues Include: Association Management, Common Areas, Reserve Fund, Road Maintenance, Pool(s), Internet, Cable TV, Taxes, Recreation Facilities
Homeowners Association: Yes
HOA Dues: $190 / Monthly
Driving Directions
US-41 N, L-on Palm Harbor Dr. Go through gate. Slight left onto Lakeview Dr, L-on Compass Point. Home on right side.
Financial Considerations
Terms: Cash,Conventional
Tax/Property ID: 0789011049
Tax Amount: 848.76
Tax Year: 2024
A broker reciprocity listing courtesy: KW PEACE RIVER PARTNERS
Based on information provided by Stellar MLS as distributed by the MLS GRID. Information from the Internet Data Exchange is provided exclusively for consumers’ personal, non-commercial use, and such information may not be used for any purpose other than to identify prospective properties consumers may be interested in purchasing. This data is deemed reliable but is not guaranteed to be accurate by Edina Realty, Inc., or by the MLS. Edina Realty, Inc., is not a multiple listing service (MLS), nor does it offer MLS access.
Copyright 2026 Stellar MLS as distributed by the MLS GRID. All Rights Reserved.
Payment Calculator
Interest rate and annual percentage rate (APR) are based on current market conditions, are for informational purposes only, are subject to change without notice and may be subject to pricing add-ons related to property type, loan amount, loan-to-value, credit score and other variables. Estimated closing costs used in the APR calculation are assumed to be paid by the borrower at closing. If the closing costs are financed, the loan, APR and payment amounts will be higher. If the down payment is less than 20%, mortgage insurance may be required and could increase the monthly payment and APR. Contact us for details. Additional loan programs may be available. Accuracy is not guaranteed, and all products may not be available in all borrower's geographical areas and are based on their individual situation. This is not a credit decision or a commitment to lend.
Sales History & Tax Summary for 49 Compass Point
Sales History
| Date | Price | |
|---|---|---|
| Currently not available. | ||
Tax Summary
| Tax Year | Estimated Market Value | Total Tax |
|---|---|---|
| Currently not available. | ||
Data powered by ATTOM Data Solutions. Copyright© 2026. Information deemed reliable but not guaranteed.
Schools
Schools nearby 49 Compass Point
| Schools in attendance boundaries | Grades | Distance | Rating |
|---|---|---|---|
| Loading... | |||
| Schools nearby | Grades | Distance | Rating |
|---|---|---|---|
| Loading... | |||
Data powered by ATTOM Data Solutions. Copyright© 2026. Information deemed reliable but not guaranteed.
The schools shown represent both the assigned schools and schools by distance based on local school and district attendance boundaries. Attendance boundaries change based on various factors and proximity does not guarantee enrollment eligibility. Please consult your real estate agent and/or the school district to confirm the schools this property is zoned to attend. Information is deemed reliable but not guaranteed.
SchoolDigger ® Rating
The SchoolDigger rating system is a 1-5 scale with 5 as the highest rating. SchoolDigger ranks schools based on test scores supplied by each state's Department of Education. They calculate an average standard score by normalizing and averaging each school's test scores across all tests and grades.
Coming soon properties will soon be on the market, but are not yet available for showings.